Omschrijving
Adres
Boortorenweg 20, Hengelo
Omschrijving
Aan de Boortorenweg 20 in Hengelo ontwikkelt Fresh Real Estate een hoogwaardige en toekomstbestendige bedrijfsontwikkeling op een royale kavel van maar liefst 14.630 m². Een locatie waar ruimte, flexibiliteit en representativiteit samenkomen.
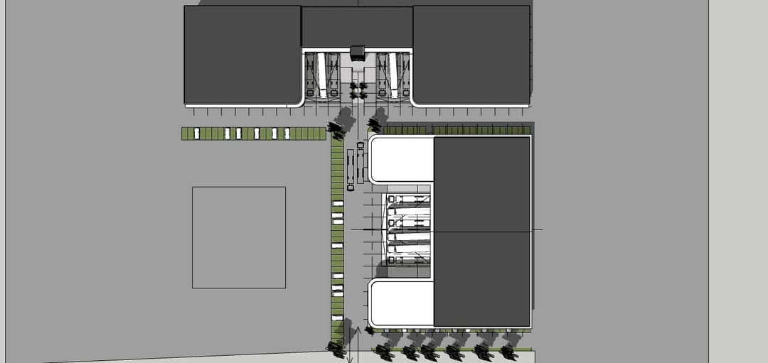
Op dit terrein worden vier moderne bedrijfs-/kantoorruimten gerealiseerd: Warehouse 1, 2, 3 en 4. De gebouwen zijn ontworpen met oog voor functionaliteit, uitstraling en efficiënt gebruik, en worden omringd door ruime parkeervoorzieningen op eigen terrein. Warehouse 1 en 2 beschikken elk over ca. 1.485 m² bedrijfsruimte ca. 320 m² kantoorruimte en een entresolvloer van 197 m². Warehouse 3 en 4 beschikken elk over ca. 1.959 m² bedrijfsruimte en ca. 307 m² kantoorruimte. Elk warehouse zal worden uitgevoerd met 4 overheaddeuren. Per warehouse zijn er 3 overheaddeuren toegankelijk via de laadkuil welke zullen worden voorzien van Dockshelters en Docklevelers. Genoemde oppervlaktes zijn BVO.
De opzet van het plan biedt maximale flexibiliteit. Warehouse 1 en 2 zijn onderling te koppelen, net als Warehouse 3 en 4, waardoor grotere metrages eenvoudig realiseerbaar zijn. Ideaal voor groeiende ondernemingen, logistieke spelers of bedrijven die werkplaats, opslag en kantoor efficiënt willen combineren.
Deze ontwikkeling staat voor kwaliteit, schaalbaarheid en toekomstwaarde — een krachtige nieuwe bedrijfsbestemming op een strategische plek in Hengelo.
Warehouse 1 (koppelbaar met Warehouse 2)
1.485 m² bedrijfsruimte
197 m² entresol
157 m² kantoorruimte begane grond
163 m² kantoorruimte 1ste verdieping
4 overheaddeuren, waarvan er 3 zijn uitgerust met Dockshelters en Docklevelers
Warehouse 2 (koppelbaar met Warehouse 1)
1.485 m² bedrijfsruimte
197 m² entresol
157 m² kantoorruimte begane grond
163 m² kantoorruimte 1ste verdieping
4 overheaddeuren, waarvan er 3 zijn uitgerust met Dockshelters en Docklevelers
Warehouse 3 (koppelbaar met Warehouse 4)
1.959 m² bedrijfsruimte
307 m² kantoorruimte
4 overheaddeuren, waarvan er 3 zijn uitgerust met Dockshelters en Docklevelers
Warehouse 4 (koppelbaar met Warehouse 3
1959 m² bedrijfsruimte
307 m² kantoorruimte
4 overheaddeuren, waarvan er 3 zijn uitgerust met Dockshelters en Docklevelers
Locatie
De Boortorenweg is gelegen op een goed ontsloten bedrijvige locatie in Hengelo, met een sterke verbinding naar de regionale en nationale infrastructuur.
Bereikbaarheid :
- Snelle aansluiting op de A1 en A35
- Goed bereikbaar per auto en openbaar vervoer
- Gelegen in een ondernemende omgeving met diverse bedrijven en voorzieningen
- Centrale ligging binnen de regio Twente
Huurprijs
bedrijfsruimte € 85,= per m² per jaar
kantoorruimte € 125,= per m² per jaar
parkeren € 350,= per plaats per jaar
(genoemde bedragen zijn exclusief BTW)
Parkeren
Rondom de nieuw te realiseren warehouses kunnen in totaal ca. 120 personenauto’s worden geparkeerd.
Huurtermijn
10 jaar
Opzegtermijn
12 maanden
Indexering
Jaarlijks, voor het eerst 1 jaar na huuringangsdatum, op basis van de wijziging van het prijsindexcijfer volgens de Consumentenprijsindex (CPI), Alle Huishoudens (2015=100), gepubliceerd door het Centraal Bureau voor de Statistiek (CBS).
Zekerheidsstelling
Bankgarantie/ waarborgsom ter grootte van een bruto betalingsverplichting van minimaal 3 (drie) maanden (huur, servicekosten en BTW), afhankelijk van de financiële gegoedheid van de huurder.
BTW
Verhuurder wenst te opteren voor BTW belaste verhuur. Indien huurder niet voldoet aan de criteria, zal er een nader overeen te komen percentage ter compensatie van de gederfde BTW worden vastgesteld.
Specificaties van Warehouse 1, 2, 3 en 4 zijn beschreven in de objectinformatie, welke op aanvraag kan worden toegestuurd.
Boortorenweg 20, Hengelo
Omschrijving
Aan de Boortorenweg 20 in Hengelo ontwikkelt Fresh Real Estate een hoogwaardige en toekomstbestendige bedrijfsontwikkeling op een royale kavel van maar liefst 14.630 m². Een locatie waar ruimte, flexibiliteit en representativiteit samenkomen.
Op dit terrein worden vier moderne bedrijfs-/kantoorruimten gerealiseerd: Warehouse 1, 2, 3 en 4. De gebouwen zijn ontworpen met oog voor functionaliteit, uitstraling en efficiënt gebruik, en worden omringd door ruime parkeervoorzieningen op eigen terrein. Warehouse 1 en 2 beschikken elk over ca. 1.485 m² bedrijfsruimte ca. 320 m² kantoorruimte en een entresolvloer van 197 m². Warehouse 3 en 4 beschikken elk over ca. 1.959 m² bedrijfsruimte en ca. 307 m² kantoorruimte. Elk warehouse zal worden uitgevoerd met 4 overheaddeuren. Per warehouse zijn er 3 overheaddeuren toegankelijk via de laadkuil welke zullen worden voorzien van Dockshelters en Docklevelers. Genoemde oppervlaktes zijn BVO.
De opzet van het plan biedt maximale flexibiliteit. Warehouse 1 en 2 zijn onderling te koppelen, net als Warehouse 3 en 4, waardoor grotere metrages eenvoudig realiseerbaar zijn. Ideaal voor groeiende ondernemingen, logistieke spelers of bedrijven die werkplaats, opslag en kantoor efficiënt willen combineren.
Deze ontwikkeling staat voor kwaliteit, schaalbaarheid en toekomstwaarde — een krachtige nieuwe bedrijfsbestemming op een strategische plek in Hengelo.
Warehouse 1 (koppelbaar met Warehouse 2)
1.485 m² bedrijfsruimte
197 m² entresol
157 m² kantoorruimte begane grond
163 m² kantoorruimte 1ste verdieping
4 overheaddeuren, waarvan er 3 zijn uitgerust met Dockshelters en Docklevelers
Warehouse 2 (koppelbaar met Warehouse 1)
1.485 m² bedrijfsruimte
197 m² entresol
157 m² kantoorruimte begane grond
163 m² kantoorruimte 1ste verdieping
4 overheaddeuren, waarvan er 3 zijn uitgerust met Dockshelters en Docklevelers
Warehouse 3 (koppelbaar met Warehouse 4)
1.959 m² bedrijfsruimte
307 m² kantoorruimte
4 overheaddeuren, waarvan er 3 zijn uitgerust met Dockshelters en Docklevelers
Warehouse 4 (koppelbaar met Warehouse 3
1959 m² bedrijfsruimte
307 m² kantoorruimte
4 overheaddeuren, waarvan er 3 zijn uitgerust met Dockshelters en Docklevelers
Locatie
De Boortorenweg is gelegen op een goed ontsloten bedrijvige locatie in Hengelo, met een sterke verbinding naar de regionale en nationale infrastructuur.
Bereikbaarheid :
- Snelle aansluiting op de A1 en A35
- Goed bereikbaar per auto en openbaar vervoer
- Gelegen in een ondernemende omgeving met diverse bedrijven en voorzieningen
- Centrale ligging binnen de regio Twente
Huurprijs
bedrijfsruimte € 85,= per m² per jaar
kantoorruimte € 125,= per m² per jaar
parkeren € 350,= per plaats per jaar
(genoemde bedragen zijn exclusief BTW)
Parkeren
Rondom de nieuw te realiseren warehouses kunnen in totaal ca. 120 personenauto’s worden geparkeerd.
Huurtermijn
10 jaar
Opzegtermijn
12 maanden
Indexering
Jaarlijks, voor het eerst 1 jaar na huuringangsdatum, op basis van de wijziging van het prijsindexcijfer volgens de Consumentenprijsindex (CPI), Alle Huishoudens (2015=100), gepubliceerd door het Centraal Bureau voor de Statistiek (CBS).
Zekerheidsstelling
Bankgarantie/ waarborgsom ter grootte van een bruto betalingsverplichting van minimaal 3 (drie) maanden (huur, servicekosten en BTW), afhankelijk van de financiële gegoedheid van de huurder.
BTW
Verhuurder wenst te opteren voor BTW belaste verhuur. Indien huurder niet voldoet aan de criteria, zal er een nader overeen te komen percentage ter compensatie van de gederfde BTW worden vastgesteld.
Specificaties van Warehouse 1, 2, 3 en 4 zijn beschreven in de objectinformatie, welke op aanvraag kan worden toegestuurd.
Kaart
Kaart laden...
Kadastrale grens
Bebouwing
Reistijd
Krijg inzicht in de bereikbaarheid van dit object vanuit bijvoorbeeld een openbaar vervoer station of vanuit een adres.