Bolder 1-D 6582 BZ Heumen
€ 1.600 /mnd
Omschrijving
Op bedrijventerrein Sluisweg Malden/Heumen direct nabij de oprit naar de A 73/77 bijzonder gunstig op de hoek van de Bolder en de Schutkolk gelegen kantoor/bedrijfsruimte van plm. 148 m2 verdeeld over de begane grond en eerste verdieping te huur aangeboden.
De ruimte is uitermate geschikt als bedrijfsruimte met kantoor/showroom.
De huurprijs bedraagt € 1.600,= per maand exclusief BTW en exclusief voorschot € 100,- gas, water en elektra per maand.
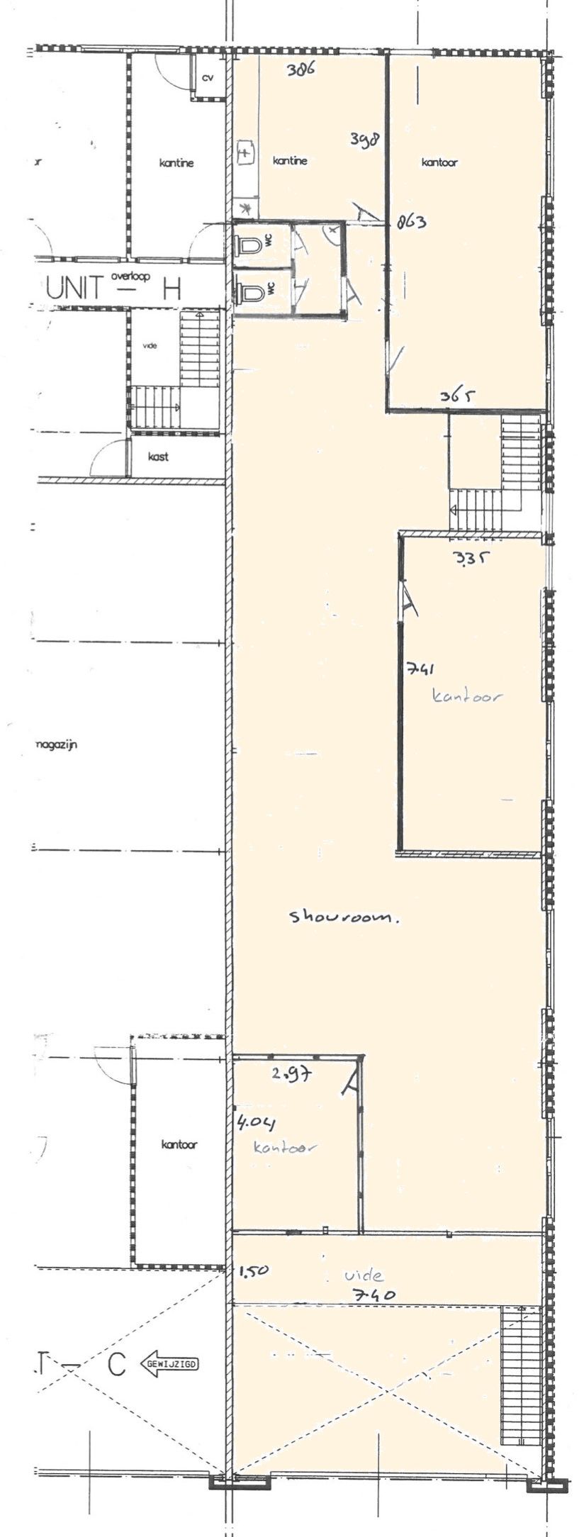
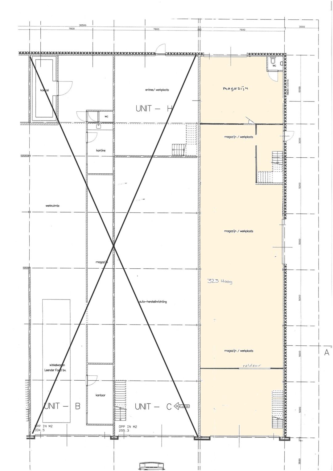
Indeling: Via de roldeur met loopdeur heeft u toegang tot de bedrijfsruimte van in totaal 93 m2 waarbij de 1e 5 meter een vrije hoogte heeft van 6.70 meter en de daar achtergelegen ruimte heeft een vrije hoogte van plm. 3.20 meter.
Via een trap is de verdieping van 55 m2 met kantoor, toilet en pantry bereikbaar.
Parkeer mogelijkheden op eigen terrein recht voor de deur.
De ruimte is uitermate geschikt als bedrijfsruimte met kantoor/showroom.
De huurprijs bedraagt € 1.600,= per maand exclusief BTW en exclusief voorschot € 100,- gas, water en elektra per maand.
Indeling: Via de roldeur met loopdeur heeft u toegang tot de bedrijfsruimte van in totaal 93 m2 waarbij de 1e 5 meter een vrije hoogte heeft van 6.70 meter en de daar achtergelegen ruimte heeft een vrije hoogte van plm. 3.20 meter.
Via een trap is de verdieping van 55 m2 met kantoor, toilet en pantry bereikbaar.
Parkeer mogelijkheden op eigen terrein recht voor de deur.
Kenmerken
Overdracht
- Huurprijs
- € 1.600 per maand
- Oorspronkelijke huurprijs
- € 2.750 per maand
- Servicekosten
- € 100 per maand (21% BTW van toepassing)
- Aangeboden sinds
-
- Status
- Beschikbaar
- Aanvaarding
- In overleg
Bouw
- Hoofdfunctie
- Bedrijfshal
- Soort bouw
- Bestaande bouw
- Bouwjaar
- 2000
Oppervlakten
- Oppervlakte
- 148 m² (in units vanaf 92 m²)
- Bedrijfshal oppervlak
- 92 m²
- Kantoor oppervlak
- 56 m²
- Vrije hoogte
- 7 m
- Vrije overspanning
- 7 m
- Draagvermogen
- 250 kg/m²
Indeling
- Aantal bouwlagen
- 2 bouwlagen
- Voorzieningen
- Overheaddeuren, krachtstroom, betonvloer, heater, toilet, pantry en inbouwarmaturen
Energie
- Energielabel
- A++
Omgeving
- Ligging
- Bedrijventerrein
Parkeergelegenheid
- Parkeerplaatsen
- 6 niet-overdekte parkeerplaatsen
NVM makelaar
Foto's