Omschrijving
OBJECT
Binnenkort beschikbaar! Deze turn-key kantoor-/bedrijfsunit van circa 200 m² op een prominente hoeklocatie binnen het bedrijvencomplex aan de Boslaan. De ruimte komt vrij door de verhuizing van Mackaay ICT Services naar Aalsmeer.
Op de begane grond bevindt zich een compacte opslagruimte met overheaddeur. Het overige deel van de begane grond en de verdiepingsvloer zijn ingericht als moderne, lichte kantoorruimte met alle benodigde voorzieningen. De hoekligging zorgt voor goede zichtbaarheid en een representatieve uitstraling. Geschikt voor diverse zakelijke gebruikers, zoals dienstverleners, ICT-bedrijven, advieskantoren of combinatie kantoor/lichte bedrijfsvoering.
LOCATIE
De unit is gelegen op Bedrijvenpark Boslaan, aan de rand van het centrum van Hoofddorp. Een gunstige locatie met winkels, horeca en voorzieningen op korte afstand. De bereikbaarheid is uitstekend via de A4 en de N196/N201, met snelle verbindingen richting Amsterdam, luchthaven Schiphol en Haarlem. Ook per openbaar vervoer is de locatie goed bereikbaar dankzij een nabijgelegen bushalte met verbinding naar NS-station Hoofddorp. Het nabijgelegen Hyde Park versterkt de aantrekkelijkheid van de omgeving.
BESTEMMINGSPLAN
Bedrijf tot en met categorie 2 conform bestemmingsplan ‘Hoofddorp Oost’.
ENERGIELABEL
Het object beschikt over energielabel B (geldig tot 04-04-2033).
VLOEROPPERVLAKTE
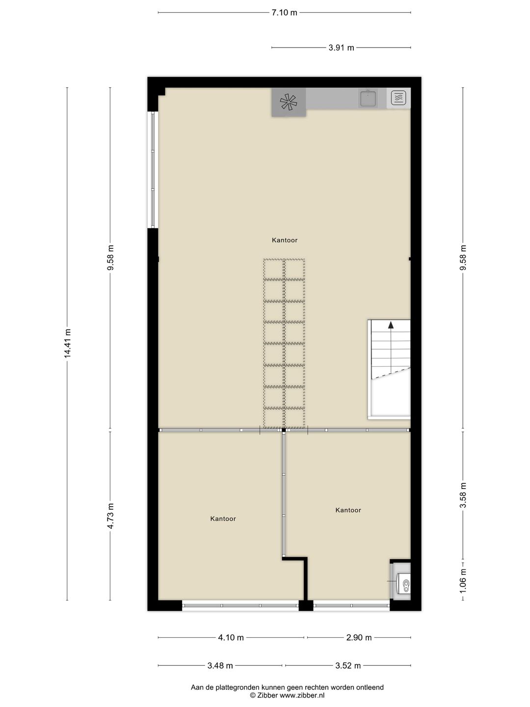
Voor de verhuur is beschikbaar:
• Begane grond: ca. 80 m² kantoorruimte en ca. 20 m² opslagruimte
• 1e verdieping: ca. 100 m² kantoorruimte
• Totaal: ca. 200 m² v.v.o.
Er is een NEN 2580 meetrapport aanwezig.
PARKEREN
Circa 4 parkeerplaatsen gelegen voor/naast de unit.
VOORZIENINGEN OPSLAGRUIMTE
• Elektrische overheaddeur (ca. 3,20 x 2,55 m.)
• Glad afgewerkte betonvloer
• Wandcontactdozen
• Brandslanghaspel
• Verlichtingsarmaturen
• Vrije hoogte ca. 3,00 meter
VOORZIENINGEN KANTOORRUIMTE
• Separate entreedeur
• Alarminstallatie (as is)
• Toiletruimte met fontein
• Pvc vloerafwerking
• Kabelgoten voor elektra en data
• Diverse glazen scheidingswanden
• Cv-installatie met radiatoren
• Luxe keuken voorzien van vaatwasser, combi-oven en Amerikaanse koelkast
• Te openen ramen (inclusief raambekleding en rolluiken specifiek op de begane grond)
• Systeemplafonds met verlichtingsarmaturen en mechanische ventilatie
• Airconditioning
• Lichtstraat
HUURPRIJS
€ 2.500,- per maand te vermeerderen met servicekosten en BTW.
NUTSVOORZIENINGEN
Huurder dient zelf leveringscontracten af te sluiten voor gas, water, elektra (3x25A) en internet/telefonie. Er is een glasvezelaansluiting aanwezig.
SERVICEKOSTEN
Nader overeen te komen.
HUURVOORWAARDEN
• Huurtermijn: 5 jaar met telkens een verlengingsmogelijkheid van 5 jaar. Afwijkende huurperioden zijn bespreekbaar.
• Opzegtermijn: 12 maanden, doch afhankelijk van de overeen te komen huurperioden.
• Betalingen: per maand vooruit.
• BTW: de verhuurder opteert voor BTW-belaste verhuur.
• Zekerheidsstelling: bankgarantie of waarborgsom ter grootte van drie maanden huur inclusief servicekosten en BTW.
• Huurprijsaanpassing: jaarlijks, voor het eerst één jaar na de huuringangsdatum, op basis van de wijziging van het maandprijsindexcijfer volgens de consumentenprijsindex (CPI) reeks alle huishoudens (2015=100), gepubliceerd door het Centraal Bureau voor de Statistiek (CBS).
• Huurovereenkomst: gebaseerd op het model zoals in 2025 is vastgesteld door de Raad voor Onroerende Zaken (ROZ).
• Aanvaarding/oplevering: in overleg.
VOORBEHOUD
Definitieve goedkeuring en gunning door verhuurder.
DISCLAIMER
De vermelde informatie is van algemene aard en is niet meer dan een uitnodiging om in onderhandeling te treden. Bezichtigingen vinden uitsluitend op afspraak plaats. Aan de inhoud van deze zorgvuldig samengestelde informatie kunnen geen rechten worden ontleend.
Binnenkort beschikbaar! Deze turn-key kantoor-/bedrijfsunit van circa 200 m² op een prominente hoeklocatie binnen het bedrijvencomplex aan de Boslaan. De ruimte komt vrij door de verhuizing van Mackaay ICT Services naar Aalsmeer.
Op de begane grond bevindt zich een compacte opslagruimte met overheaddeur. Het overige deel van de begane grond en de verdiepingsvloer zijn ingericht als moderne, lichte kantoorruimte met alle benodigde voorzieningen. De hoekligging zorgt voor goede zichtbaarheid en een representatieve uitstraling. Geschikt voor diverse zakelijke gebruikers, zoals dienstverleners, ICT-bedrijven, advieskantoren of combinatie kantoor/lichte bedrijfsvoering.
LOCATIE
De unit is gelegen op Bedrijvenpark Boslaan, aan de rand van het centrum van Hoofddorp. Een gunstige locatie met winkels, horeca en voorzieningen op korte afstand. De bereikbaarheid is uitstekend via de A4 en de N196/N201, met snelle verbindingen richting Amsterdam, luchthaven Schiphol en Haarlem. Ook per openbaar vervoer is de locatie goed bereikbaar dankzij een nabijgelegen bushalte met verbinding naar NS-station Hoofddorp. Het nabijgelegen Hyde Park versterkt de aantrekkelijkheid van de omgeving.
BESTEMMINGSPLAN
Bedrijf tot en met categorie 2 conform bestemmingsplan ‘Hoofddorp Oost’.
ENERGIELABEL
Het object beschikt over energielabel B (geldig tot 04-04-2033).
VLOEROPPERVLAKTE
Voor de verhuur is beschikbaar:
• Begane grond: ca. 80 m² kantoorruimte en ca. 20 m² opslagruimte
• 1e verdieping: ca. 100 m² kantoorruimte
• Totaal: ca. 200 m² v.v.o.
Er is een NEN 2580 meetrapport aanwezig.
PARKEREN
Circa 4 parkeerplaatsen gelegen voor/naast de unit.
VOORZIENINGEN OPSLAGRUIMTE
• Elektrische overheaddeur (ca. 3,20 x 2,55 m.)
• Glad afgewerkte betonvloer
• Wandcontactdozen
• Brandslanghaspel
• Verlichtingsarmaturen
• Vrije hoogte ca. 3,00 meter
VOORZIENINGEN KANTOORRUIMTE
• Separate entreedeur
• Alarminstallatie (as is)
• Toiletruimte met fontein
• Pvc vloerafwerking
• Kabelgoten voor elektra en data
• Diverse glazen scheidingswanden
• Cv-installatie met radiatoren
• Luxe keuken voorzien van vaatwasser, combi-oven en Amerikaanse koelkast
• Te openen ramen (inclusief raambekleding en rolluiken specifiek op de begane grond)
• Systeemplafonds met verlichtingsarmaturen en mechanische ventilatie
• Airconditioning
• Lichtstraat
HUURPRIJS
€ 2.500,- per maand te vermeerderen met servicekosten en BTW.
NUTSVOORZIENINGEN
Huurder dient zelf leveringscontracten af te sluiten voor gas, water, elektra (3x25A) en internet/telefonie. Er is een glasvezelaansluiting aanwezig.
SERVICEKOSTEN
Nader overeen te komen.
HUURVOORWAARDEN
• Huurtermijn: 5 jaar met telkens een verlengingsmogelijkheid van 5 jaar. Afwijkende huurperioden zijn bespreekbaar.
• Opzegtermijn: 12 maanden, doch afhankelijk van de overeen te komen huurperioden.
• Betalingen: per maand vooruit.
• BTW: de verhuurder opteert voor BTW-belaste verhuur.
• Zekerheidsstelling: bankgarantie of waarborgsom ter grootte van drie maanden huur inclusief servicekosten en BTW.
• Huurprijsaanpassing: jaarlijks, voor het eerst één jaar na de huuringangsdatum, op basis van de wijziging van het maandprijsindexcijfer volgens de consumentenprijsindex (CPI) reeks alle huishoudens (2015=100), gepubliceerd door het Centraal Bureau voor de Statistiek (CBS).
• Huurovereenkomst: gebaseerd op het model zoals in 2025 is vastgesteld door de Raad voor Onroerende Zaken (ROZ).
• Aanvaarding/oplevering: in overleg.
VOORBEHOUD
Definitieve goedkeuring en gunning door verhuurder.
DISCLAIMER
De vermelde informatie is van algemene aard en is niet meer dan een uitnodiging om in onderhandeling te treden. Bezichtigingen vinden uitsluitend op afspraak plaats. Aan de inhoud van deze zorgvuldig samengestelde informatie kunnen geen rechten worden ontleend.
Kaart
Kaart laden...
Kadastrale grens
Bebouwing
Reistijd
Krijg inzicht in de bereikbaarheid van dit object vanuit bijvoorbeeld een openbaar vervoer station of vanuit een adres.