Industrieweg 35-c 7903 AH Hoogeveen
€ 6.500 /mnd
Omschrijving
Op een zichtlocatie gelegen bedrijfsobject (bouwjaar 2001) ter grootte van totaal circa 1.150 m² vloeroppervlak. In de afgelopen periode is sterk ingezet op verduurzaming van het geheel waardoor de aangeboden ruimte over een A-label beschikt.
Omgeving
Gelegen op het Bedrijventerrein De Wieken. Dit bedrijventerrein is meer dan 400 hectare groot en is daarmee qua oppervlakte het op één na grootste bedrijventerrein van Noord-Nederland. Op de Wieken zijn ruim 700 bedrijven gevestigd, waaronder meerdere grote, internationaal georiënteerde ondernemingen.
Locatie
Het object is centraal op het bedrijventerrein gelegen op één van de drukste punten met een uitstekende bereikbaarheid. De op- en afritten van de autosnelweg A28 en A37 liggen op korte afstand.
Oppervlakte
De totale verhuurbare oppervlakte bedraagt circa 1.150 m² bestaande uit:
- ca. 435 m² kantoorruimte (verdeeld over begane grond en eerste verdieping);
- ca. 715 m² bedrijfsruimten (werk- en expeditieruimten).
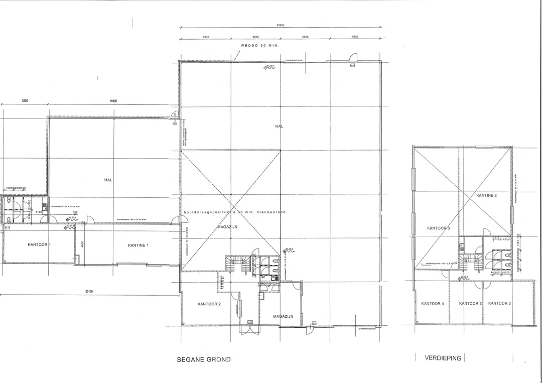
Indeling
Begane grond: entree met receptieruimte, hal en open trap, diverse kantoren, vergaderruimte, pantry, toiletruimten, onderzoeks/testruimten, expeditieruimte.
Verdieping: centrale hal met pantry en toiletgroep, 5 kantoren waarvan 1 groot kantoor dat eventueel gesplitst zou kunnen worden.
Voorzieningen kantoorgedeelte
Er is in de afgelopen periode sterk ingezet op verduurzaming van vooral ook het kantoorgedeelte waarbij o.a. alle glazen voorpuien vernieuwd zijn en voorzien van triple (!) beglazing, alle tl-verlichtingsarmaturen vervangen zijn door led-verlichting en is waar mogelijk extra isolatiemateriaal aangebracht.
Verder is het kantoorgedeelte voorzien van:
- elektrische installatie;
- centrale verwarming;
- airconditioning;
- systeemplafonds;
- kabelgoten;
- pantry;
- sanitaire voorzieningen;
- mechanische ventilatie;
- inbraakbeveiligingsinstallatie;
- brandmeldinstallatie;
- brandblusmiddelen;
- vluchtwegsignalering.
Voorzieningen bedrijfshal:
- elektrische installatie met krachtstroom;
- heater;
- betonvloer;
- geïsoleerde gevels;
- 2 elektrisch bediende overheaddeuren;
- TL-verlichting;
- buitenverlichting t.p.v. overheaddeuren.
Vrije hoogte expeditiehal ca. 7,05 m.
Terrein/parkeren
Het ruime terrein is voorzien van verharding en tuinaanleg.
Bestemming
Bestemmingsplan De Wieken 2010, onherroepelijk vastgesteld op 5 november 2014. Deze locatie heeft daarin de bestemming Bedrijventerrein-4, bouwklasse 3. De voor 'Bedrijventerrein - 4' aangewezen gronden zijn bestemd voor bedrijven, behorende tot categorie 1 t/m 4.1, zoals genoemd in de Staat van bedrijfsactiviteiten - 4, met dien verstande dat het gebruik van de gronden per bouwperceel een maximale geluidruimte tot gevolg heeft van 63 dB(A) per m²; praktijkopleidingen ten behoeve van deze bedrijvigheid met dien verstande dat de oppervlakte maximaal 1.500 m² bedraagt; detailhandel in auto's, motoren, boten, caravans, keukens, sanitair, buitenmeubilair zoals buitenkeukens en tuinmeubelen, campingartikelen, woninginrichting en (grove) bouwmaterialen; kringloopwinkels; kantoren, met dien verstande dat de oppervlakte maximaal 1.500 m² bedraagt; e-commerce; sociale werkvoorzieningen. De locatie heeft de gebiedsaanduidingen “luchtvaartverkeerzone - hoogtebeperking” en “milieuzone - grondwaterbeschermingsgebied”.
Huurcondities:
- huurprijs: € 6.500,- per maand exclusief BTW;
- aanvaarding: in overleg;
- huurbetaling: per maand vooruit te voldoen;
- huurtermijn: 5 jaren + 5 optiejaren;
- opzegtermijn: 12 maanden;
- huurovereenkomst: conform model ROZ;
- indexering: jaarlijks op basis van de CPI-index van het CBS;
- zekerheidstelling: borg ter grootte van 3 maanden huur, vermeerderd met de verschuldigde omzetbelasting.
Extra voorbehoud
Definitieve goedkeuring verhuurder.
Omzetbelasting
Verhuurder wenst te opteren voor een met BTW-belaste huur/verhuur. Ingeval huurder de BTW niet kan verrekenen zal de huurprijs met een nader vast te stellen bedrag worden verhoogd ter compensatie van de gevolgen van het vervallen van de mogelijkheden om te opteren voor BTW-belaste verhuur.
Aansprakelijkheid
Vorenstaande behelst vrijblijvende informatie. Alle verstrekte informatie moet worden beschouwd als een uitnodiging tot het doen van een bod of om in onderhandeling te treden. Wij kunnen niet instaan voor de juistheid of volledigheid van deze gegevens.
Omgeving
Gelegen op het Bedrijventerrein De Wieken. Dit bedrijventerrein is meer dan 400 hectare groot en is daarmee qua oppervlakte het op één na grootste bedrijventerrein van Noord-Nederland. Op de Wieken zijn ruim 700 bedrijven gevestigd, waaronder meerdere grote, internationaal georiënteerde ondernemingen.
Locatie
Het object is centraal op het bedrijventerrein gelegen op één van de drukste punten met een uitstekende bereikbaarheid. De op- en afritten van de autosnelweg A28 en A37 liggen op korte afstand.
Oppervlakte
De totale verhuurbare oppervlakte bedraagt circa 1.150 m² bestaande uit:
- ca. 435 m² kantoorruimte (verdeeld over begane grond en eerste verdieping);
- ca. 715 m² bedrijfsruimten (werk- en expeditieruimten).
Indeling
Begane grond: entree met receptieruimte, hal en open trap, diverse kantoren, vergaderruimte, pantry, toiletruimten, onderzoeks/testruimten, expeditieruimte.
Verdieping: centrale hal met pantry en toiletgroep, 5 kantoren waarvan 1 groot kantoor dat eventueel gesplitst zou kunnen worden.
Voorzieningen kantoorgedeelte
Er is in de afgelopen periode sterk ingezet op verduurzaming van vooral ook het kantoorgedeelte waarbij o.a. alle glazen voorpuien vernieuwd zijn en voorzien van triple (!) beglazing, alle tl-verlichtingsarmaturen vervangen zijn door led-verlichting en is waar mogelijk extra isolatiemateriaal aangebracht.
Verder is het kantoorgedeelte voorzien van:
- elektrische installatie;
- centrale verwarming;
- airconditioning;
- systeemplafonds;
- kabelgoten;
- pantry;
- sanitaire voorzieningen;
- mechanische ventilatie;
- inbraakbeveiligingsinstallatie;
- brandmeldinstallatie;
- brandblusmiddelen;
- vluchtwegsignalering.
Voorzieningen bedrijfshal:
- elektrische installatie met krachtstroom;
- heater;
- betonvloer;
- geïsoleerde gevels;
- 2 elektrisch bediende overheaddeuren;
- TL-verlichting;
- buitenverlichting t.p.v. overheaddeuren.
Vrije hoogte expeditiehal ca. 7,05 m.
Terrein/parkeren
Het ruime terrein is voorzien van verharding en tuinaanleg.
Bestemming
Bestemmingsplan De Wieken 2010, onherroepelijk vastgesteld op 5 november 2014. Deze locatie heeft daarin de bestemming Bedrijventerrein-4, bouwklasse 3. De voor 'Bedrijventerrein - 4' aangewezen gronden zijn bestemd voor bedrijven, behorende tot categorie 1 t/m 4.1, zoals genoemd in de Staat van bedrijfsactiviteiten - 4, met dien verstande dat het gebruik van de gronden per bouwperceel een maximale geluidruimte tot gevolg heeft van 63 dB(A) per m²; praktijkopleidingen ten behoeve van deze bedrijvigheid met dien verstande dat de oppervlakte maximaal 1.500 m² bedraagt; detailhandel in auto's, motoren, boten, caravans, keukens, sanitair, buitenmeubilair zoals buitenkeukens en tuinmeubelen, campingartikelen, woninginrichting en (grove) bouwmaterialen; kringloopwinkels; kantoren, met dien verstande dat de oppervlakte maximaal 1.500 m² bedraagt; e-commerce; sociale werkvoorzieningen. De locatie heeft de gebiedsaanduidingen “luchtvaartverkeerzone - hoogtebeperking” en “milieuzone - grondwaterbeschermingsgebied”.
Huurcondities:
- huurprijs: € 6.500,- per maand exclusief BTW;
- aanvaarding: in overleg;
- huurbetaling: per maand vooruit te voldoen;
- huurtermijn: 5 jaren + 5 optiejaren;
- opzegtermijn: 12 maanden;
- huurovereenkomst: conform model ROZ;
- indexering: jaarlijks op basis van de CPI-index van het CBS;
- zekerheidstelling: borg ter grootte van 3 maanden huur, vermeerderd met de verschuldigde omzetbelasting.
Extra voorbehoud
Definitieve goedkeuring verhuurder.
Omzetbelasting
Verhuurder wenst te opteren voor een met BTW-belaste huur/verhuur. Ingeval huurder de BTW niet kan verrekenen zal de huurprijs met een nader vast te stellen bedrag worden verhoogd ter compensatie van de gevolgen van het vervallen van de mogelijkheden om te opteren voor BTW-belaste verhuur.
Aansprakelijkheid
Vorenstaande behelst vrijblijvende informatie. Alle verstrekte informatie moet worden beschouwd als een uitnodiging tot het doen van een bod of om in onderhandeling te treden. Wij kunnen niet instaan voor de juistheid of volledigheid van deze gegevens.
Kenmerken
Overdracht
- Huurprijs
- € 6.500 per maand
- Aangeboden sinds
-
- Status
- Beschikbaar
- Aanvaarding
- In overleg
Bouw
- Hoofdfunctie
- Bedrijfshal
- Soort bouw
- Bestaande bouw
- Bouwjaar
- 2001
Oppervlakten
- Oppervlakte
- 1.150 m² (in units vanaf 715 m²)
- Bedrijfshal oppervlak
- 715 m²
- Kantoor oppervlak
- 435 m²
- Vrije hoogte
- 7,1 m
Indeling
- Aantal bouwlagen
- 2 bouwlagen
- Voorzieningen
- Overheaddeuren, krachtstroom, betonvloer, heater, inbouwarmaturen en te openen ramen
Energie
- Energielabel
- A
Omgeving
- Ligging
- Bedrijventerrein
- Bereikbaarheid
- Bushalte op 500 m tot 1000 m, NS Intercitystation op 1000 m tot 1500 m en snelwegafrit op 2000 m tot 3000 m
Parkeergelegenheid
- Parkeerplaatsen
- 12 niet-overdekte parkeerplaatsen
NVM makelaar
Foto's