Franklinstraat 3-a 7903 AC Hoogeveen

€ 2.250 /mnd

Omschrijving

Op zoek naar een bedrijfsobject met een eigen gezicht en kwaliteitsuitstraling? Dan is dit nieuw te realiseren bedrijfsobject mogelijk iets voor u. Op bedrijventerrein De Wieken in Hoogeveen zal een vrijstaand bedrijfspand gerealiseerd worden te gebruiken als bijvoorbeeld showroom, kantoor, bedrijfsruimte of een combinatie daarvan. Gestreefd wordt naar een uitvoering met energielabel A+++.

Locatie
Gelegen op bedrijventerrein De Wieken, één van de grootste bedrijventerreinen van Noord-Nederland. Hoogeveen is strategisch gelegen aan de autosnelwegen A28 (Zwolle - Groningen) en A37 (Hoogeveen – Duitsland). De Franklinstraat ligt op respectievelijk circa 2 en 4 kilometer afstand van de op- en afritten van deze snelwegen. Daarnaast bevinden zich zowel het NS-station (circa 850 meter) als het kernwinkelgebied van Hoogeveen (circa 1 kilometer) op loopafstand.

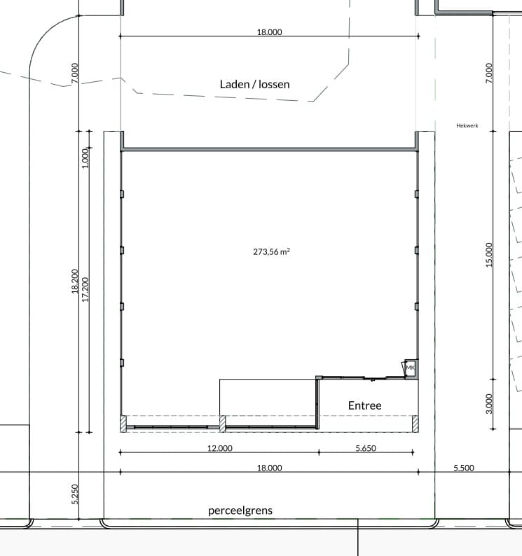
Oppervlakte
Totaal ± 274 m² bedrijfsruimte.

Opleveringsniveau:
- nutsvoorzieningen tot in de meterkast;
- geïsoleerde betonvloer (draagkracht 1.500 kg per m²) met voorbereiding voor vloerverwarming;
- overheaddeur;
- diverse glazen puien.
Eventueel gewenste aanpassingen van indeling en uitvoering zijn in onderling overleg en tegen nader te bepalen voorwaarden bespreekbaar.

Hoogte:
- goothoogte circa 4 meter;
- nokhoogte circa 7 meter.

Parkeren/terrein
Voldoende eigen parkeergelegenheid direct voor het pand. Gezamenlijk te gebruiken buitenterrein t.b.v. verkeersbewegingen.

Bestemming
Bestemmingsplan Industrieterrein De Wieken 2010, vastgesteld op 5 november 2014. Bestemming Bedrijventerrein-3, bouwklasse 2; ten behoeve van de vestiging van bedrijven binnen de categorie 1 t/m 3.2 alsmede o.a. praktijkopleidingen ten behoeve van bovengenoemde bedrijvigheid met dien verstande dat de oppervlakte maximaal 1.500 m² bedraagt, detailhandel in auto's, motoren, boten, caravans, keukens, sanitair, buitenmeubilair, campingartikelen, woninginrichting en (grove) bouwmaterialen, kringloopwinkels, e-commerce, kantoren, met dien verstande dat de oppervlakte maximaal 1.500 m² bedraagt, sociale werkvoorzieningen.

Huurvoorwaarden:
- huurprijs: € 2.250,- per maand, exclusief BTW;
- huuringangsdatum: in overleg;
- huurbetaling: per maand vooruit te voldoen;
- huurtermijn: 5 jaar met verlenging per 5 jaar;
- opzegtermijn: 12 maanden;
- huurovereenkomst: conform model ROZ;
- indexering: jaarlijks op basis van de CPI-index van het CBS;
- zekerheidstelling: borg/bankgarantie ter grootte van 3 maanden huur en BTW.

Omzetbelasting verhuur
Verhuurder wenst te opteren voor een met BTW-belaste huur/verhuur. Ingeval huurder de BTW niet kan verrekenen zal de huurprijs met een nader vast te stellen bedrag worden verhoogd ter compensatie van de gevolgen van het vervallen van de mogelijkheden om te opteren voor BTW-belaste verhuur.

Voorbehoud
Definitieve goedkeuring verhuurder.

Aansprakelijkheid
Vorenstaande behelst vrijblijvende informatie. Alle verstrekte informatie moet worden beschouwd als een uitnodiging tot het doen van een bod of om in onderhandeling te treden. Wij kunnen niet instaan voor de juistheid of volledigheid van deze gegevens.

Kenmerken

Overdracht

Huurprijs
€ 2.250 per maand
Aangeboden sinds
Status
Beschikbaar
Aanvaarding
In overleg

Bouw

Hoofdfunctie
Bedrijfshal
Soort bouw
Nieuwbouw
Bouwjaar
Na 2020

Oppervlakten

Oppervlakte
274 m²
Bedrijfshal oppervlak
274 m²
Vrije hoogte
7,2 m
Vrije overspanning
18 m
Draagvermogen
1.500 kg/m²

Indeling

Voorzieningen
Overheaddeuren, krachtstroom en betonvloer

Energie

Energielabel
A+++

Omgeving

Ligging
Bedrijventerrein
Bereikbaarheid
Bushalte op minder dan 500 m, NS Intercitystation op 500 m tot 1000 m en snelwegafrit op 2000 m tot 3000 m

Parkeergelegenheid

Parkeerplaatsen
4 niet-overdekte parkeerplaatsen

Kaart

Kaart laden...

Kadastrale grens Bebouwing

Reistijd

Krijg inzicht in de bereikbaarheid van dit object vanuit bijvoorbeeld een openbaar vervoer station of vanuit een adres.

Franklinstraat 3-a

€ 2.250 /mnd