Hoefsmidstraat 44-D 3194 AA Hoogvliet Rotterdam
€ 179.000 k.k.
Omschrijving
Luxe afgewerkte multifunctionele bedrijfsruimte met kantoor. De bedrijfsruimte is uitstekend gelegen direct bij de entree en de op- en afritten van de snelweg A15 op bedrijventerrein De Nieuwe Gadering in Rotterdam-Hoogvliet.
De bedrijfsruimte o.a. voorzien van een handbedienbare overheaddeur, 2 pantry’s, toiletruimte, diverse airco-units en ledverlichting.
Locatie:
Bedrijventerrein Gadering is gelegen aan de zuidkant van Rotterdam. Het bedrijventerrein is uitstekend bereikbaar van en naar de rijksweg A15 (Europoort-Rotterdam-Gorinchem).
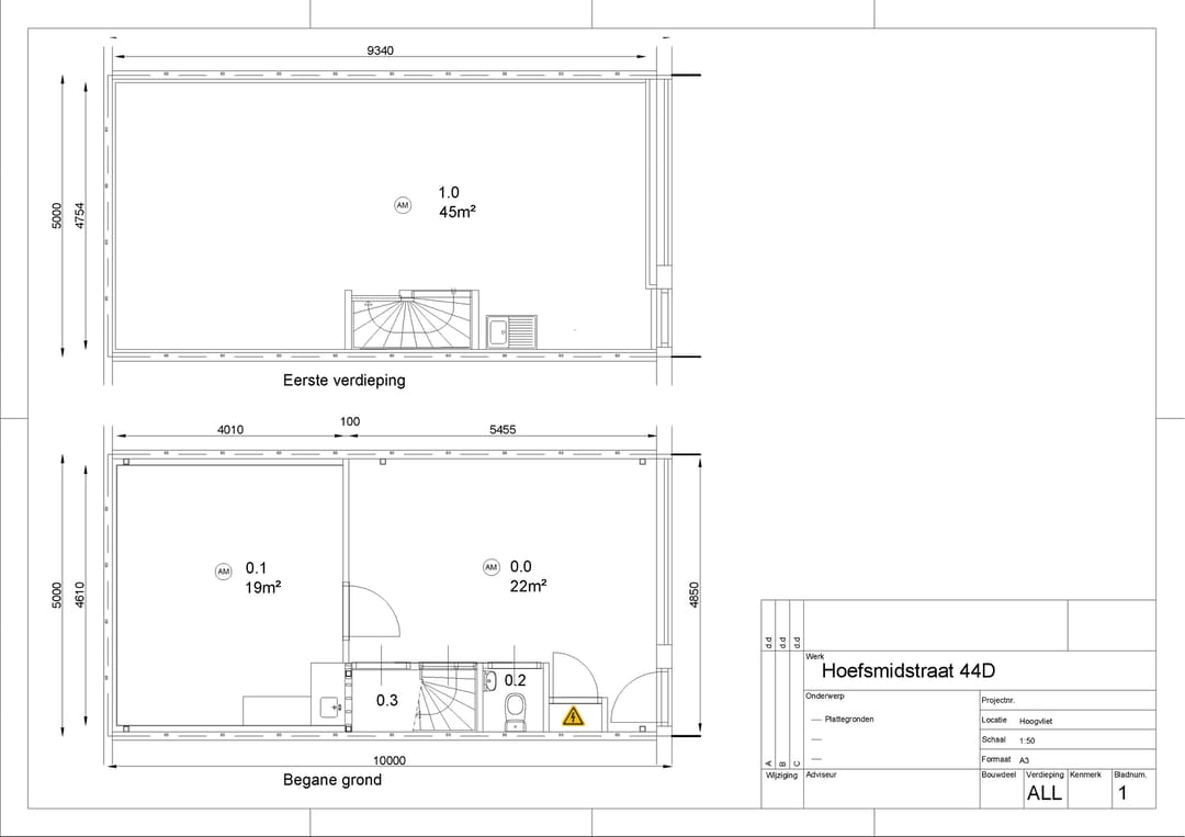
Afmetingen:
- bedrijfsruimte begane grond : 50 m² BVO;
- kantoorruimte verdieping : 50 m² BVO.
Parkeren:
2 eigen parkeerplaatsen alsmede een gedeeld privéterrein met een aantal gedeelde parkeerplaatsen.
Bestemming:
Bedrijfsdoeleinden t/m categorie 4.2.
Energielabel:
A++, geldig tot en met 17 februari 2036.
Bouwjaar:
1985.
Kadastrale gegevens:
- gemeente : Hoogvliet;
- sectie : B;
- nummer : 3768;
- grootte : 95 m² (erfpachtgrond met canon);
- alsmede 1/5e onverdeeld aandeel in mandelig gebied Hoogvliet B 3764.
Het betreft het recht van erfpacht, eindigende op negentien maart tweeduizendvierentachtig (19-03-2084) van een perceel grond, eigendom van de gemeente Rotterdam, kadastraal bekend gemeente Hoogvliet, sectie B nummer 3768, groot vijfennegentig centiare (95 ca), met de rechten van de erfpachter(s) op de zich op die grond bevindende opstallen, bestaande uit de bedrijfsruimte, kantoorruimte alsmede buitenterrein, staande en gelegen aan de Hoefsmidstraat 44d, 3194 AA te Hoogvliet Rotterdam.
Alsmede het 1/5e onverdeeld aandeel in het recht van erfpacht, eindigende op negentien maart tweeduizendvierentachtig (19-03-2084) van een perceel grond, eigendom van de gemeente Rotterdam, kadastraal bekend gemeente Hoogvliet, sectie B nummer 3764, groot drie are (3 a) negentig centiare (90 ca).
De canon is € 2.589,80 per jaar en wordt per kwartaal in rekening gebracht.
Bouwaard/algemeen:
- onderheide fundering;
- onderheide betonvloer;
- opbouw staalconstructie;
- gevels: deels metselwerk en deels verticaal geprofileerde stalen gevelbeplating;
- hardhouten gevelkozijnen met isolerende beglazing;
- unit-scheidende wanden;
- geïsoleerd staaldak met bitumineuze dakbedekking (vernieuwd in 2018) en 2 solarcube’s;
- meterkast met aansluitingen voor elektra, gas, water en telefonie/internet;
- brandblusmiddelen.
Voorzieningen/specificaties:
Begane grond:
- betonvloer, maximale vloerbelasting van 2.000 kg/m²;
- vrije hoogte van ca. 2,50 meter;
- gedeeltelijk voorzien van geïsoleerde voorzetwanden;
- handbedienbare overheaddeur met lichtdoorlatende segmenten;
- systeemplafond met ledverlichting;
- betegelde toiletruimte met fonteintje;
- kabelgoten met wandcontactdozen;
- airco-units;
- pantry.
Verdieping:
- systeemvloer staal/hout, maximale vloerbelasting van 350 kg/m²;
- systeemplafond met ledverlichting;
- geïsoleerde voorzetwanden;
- airco-plafondunit;
- kabelgoten met wandcontactdozen;
- pantry.
Vraagprijs:
€ 179.000,- k.k. (geen BTW).
As is, where is:
De in deze verkoopbrochure gepresenteerde verkoop is gebaseerd op het ‘as is, where is’-principe waarbij de eigendom wordt aanvaard in de feitelijke, commerciële, juridische, milieukundige, technische en fiscale situatie zoals het is op de datum van overdracht, aldus met alle fouten en met inbegrip van alle bekende en onbekende, zichtbare en onzichtbare gebreken, lasten, beperkingen en verplichtingen. De verkoper zal na voltooiing van de transactie geen enkele aansprakelijkheid aanvaarden.
Oplevering:
Per direct beschikbaar.
Deze informatie is door ons met de nodige zorgvuldigheid samengesteld. Onzerzijds wordt echter geen enkele aansprakelijkheid aanvaard voor enige onvolledigheid, onjuistheid of anderszins, dan wel de gevolgen daarvan. Alle opgegeven maten en oppervlakten zijn indicatief.
De bedrijfsruimte o.a. voorzien van een handbedienbare overheaddeur, 2 pantry’s, toiletruimte, diverse airco-units en ledverlichting.
Locatie:
Bedrijventerrein Gadering is gelegen aan de zuidkant van Rotterdam. Het bedrijventerrein is uitstekend bereikbaar van en naar de rijksweg A15 (Europoort-Rotterdam-Gorinchem).
Afmetingen:
- bedrijfsruimte begane grond : 50 m² BVO;
- kantoorruimte verdieping : 50 m² BVO.
Parkeren:
2 eigen parkeerplaatsen alsmede een gedeeld privéterrein met een aantal gedeelde parkeerplaatsen.
Bestemming:
Bedrijfsdoeleinden t/m categorie 4.2.
Energielabel:
A++, geldig tot en met 17 februari 2036.
Bouwjaar:
1985.
Kadastrale gegevens:
- gemeente : Hoogvliet;
- sectie : B;
- nummer : 3768;
- grootte : 95 m² (erfpachtgrond met canon);
- alsmede 1/5e onverdeeld aandeel in mandelig gebied Hoogvliet B 3764.
Het betreft het recht van erfpacht, eindigende op negentien maart tweeduizendvierentachtig (19-03-2084) van een perceel grond, eigendom van de gemeente Rotterdam, kadastraal bekend gemeente Hoogvliet, sectie B nummer 3768, groot vijfennegentig centiare (95 ca), met de rechten van de erfpachter(s) op de zich op die grond bevindende opstallen, bestaande uit de bedrijfsruimte, kantoorruimte alsmede buitenterrein, staande en gelegen aan de Hoefsmidstraat 44d, 3194 AA te Hoogvliet Rotterdam.
Alsmede het 1/5e onverdeeld aandeel in het recht van erfpacht, eindigende op negentien maart tweeduizendvierentachtig (19-03-2084) van een perceel grond, eigendom van de gemeente Rotterdam, kadastraal bekend gemeente Hoogvliet, sectie B nummer 3764, groot drie are (3 a) negentig centiare (90 ca).
De canon is € 2.589,80 per jaar en wordt per kwartaal in rekening gebracht.
Bouwaard/algemeen:
- onderheide fundering;
- onderheide betonvloer;
- opbouw staalconstructie;
- gevels: deels metselwerk en deels verticaal geprofileerde stalen gevelbeplating;
- hardhouten gevelkozijnen met isolerende beglazing;
- unit-scheidende wanden;
- geïsoleerd staaldak met bitumineuze dakbedekking (vernieuwd in 2018) en 2 solarcube’s;
- meterkast met aansluitingen voor elektra, gas, water en telefonie/internet;
- brandblusmiddelen.
Voorzieningen/specificaties:
Begane grond:
- betonvloer, maximale vloerbelasting van 2.000 kg/m²;
- vrije hoogte van ca. 2,50 meter;
- gedeeltelijk voorzien van geïsoleerde voorzetwanden;
- handbedienbare overheaddeur met lichtdoorlatende segmenten;
- systeemplafond met ledverlichting;
- betegelde toiletruimte met fonteintje;
- kabelgoten met wandcontactdozen;
- airco-units;
- pantry.
Verdieping:
- systeemvloer staal/hout, maximale vloerbelasting van 350 kg/m²;
- systeemplafond met ledverlichting;
- geïsoleerde voorzetwanden;
- airco-plafondunit;
- kabelgoten met wandcontactdozen;
- pantry.
Vraagprijs:
€ 179.000,- k.k. (geen BTW).
As is, where is:
De in deze verkoopbrochure gepresenteerde verkoop is gebaseerd op het ‘as is, where is’-principe waarbij de eigendom wordt aanvaard in de feitelijke, commerciële, juridische, milieukundige, technische en fiscale situatie zoals het is op de datum van overdracht, aldus met alle fouten en met inbegrip van alle bekende en onbekende, zichtbare en onzichtbare gebreken, lasten, beperkingen en verplichtingen. De verkoper zal na voltooiing van de transactie geen enkele aansprakelijkheid aanvaarden.
Oplevering:
Per direct beschikbaar.
Deze informatie is door ons met de nodige zorgvuldigheid samengesteld. Onzerzijds wordt echter geen enkele aansprakelijkheid aanvaard voor enige onvolledigheid, onjuistheid of anderszins, dan wel de gevolgen daarvan. Alle opgegeven maten en oppervlakten zijn indicatief.
Kenmerken
Overdracht
- Vraagprijs
- € 179.000 kosten koper
- Oorspronkelijke vraagprijs
- € 195.000 kosten koper
- Aangeboden sinds
-
- Status
- Beschikbaar
- Aanvaarding
- Per direct beschikbaar
Bouw
- Hoofdfunctie
- Bedrijfshal
- Soort bouw
- Bestaande bouw
- Bouwjaar
- 1985
Oppervlakten
- Oppervlakte
- 100 m²
- Bedrijfshal oppervlak
- 50 m²
- Kantoor oppervlak
- 50 m²
- Vrije hoogte
- 2,5 m
- Draagvermogen
- 2.000 kg/m²
- Perceel
- 95 m²
Indeling
- Aantal bouwlagen
- 1 bouwlaag
- Voorzieningen
- Airconditioning, mechanische ventilatie, overheaddeuren, betonvloer, toilet, pantry en inbouwarmaturen
Energie
- Energielabel
- A++
Omgeving
- Ligging
- Bedrijventerrein
Parkeergelegenheid
- Parkeerplaatsen
- 2 niet-overdekte parkeerplaatsen
Foto's
Plattegrond
First floor
Floor 1