Protonweg 14-E 1627 LD Hoorn (NH)

€ 3.950 /mnd

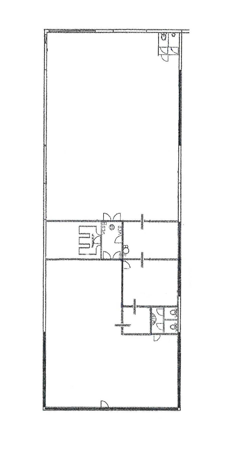
Omschrijving

Protonweg 14E, Hoorn

Op zichtlocatie aan de provinciale weg Hoorn-Enkhuizen gesitueerde showroom-/bedrijfsruimte met magazijn, kantoorruimte, een verhard buitenterrein en 10 parkeerplaatsen op eigen terrein.

De ruimte is circa 600 m² en voorzien van een gladde betonvloer en toilet. Gesitueerd op bedrijventerrein Hoorn '80.

Kenmerken

Overdracht

Huurprijs
€ 3.950 per maand
Servicekosten
€ 60 per maand (21% BTW van toepassing)
Aangeboden sinds
Status
Beschikbaar
Aanvaarding
In overleg

Bouw

Hoofdfunctie
Bedrijfshal
Soort bouw
Bestaande bouw
Bouwjaar
1977

Oppervlakten

Oppervlakte
600 m²
Bedrijfshal oppervlak
600 m²
Vrije hoogte
3,6 m
Vrije overspanning
15 m

Indeling

Voorzieningen
Overheaddeuren, betonvloer, heater en toilet

Energie

Energielabel
A++

Omgeving

Ligging
Bedrijventerrein

Parkeergelegenheid

Parkeerplaatsen
10 niet-overdekte parkeerplaatsen

Kaart

Kaart laden...

Kadastrale grens Bebouwing

Reistijd

Krijg inzicht in de bereikbaarheid van dit object vanuit bijvoorbeeld een openbaar vervoer station of vanuit een adres.

Protonweg 14-E

€ 3.950 /mnd