Omschrijving
James Wattlaan, Lelystad - Nieuw te Realiseren Logistiek Center
Nieuw te realiseren logistiek center op bedrijventerrein Larserpoort nabij Lelystad Airport.
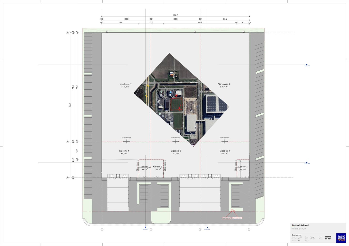
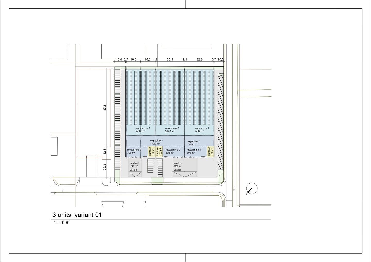
Het gebouw omvat circa 10.934 m² BVO, verdeeld over drie units van elk circa 3.645 m², waarvan twee units samen te voegen zijn. Het object kan ook in zijn geheel worden gehuurd. Per unit is ruimte voor circa 5.600 palletplaatsen, wat neerkomt op een totaal van circa 16.800 palletplaatsen.
Elke unit beschikt over kantoorruimte, drie overheaddeuren, drie loading docks, vloerbelasting van 3.500-5.000 kg/m2 en een vrije hoogte van circa 12,2 meter.
Het gebouw wordt turn-key opgeleverd, met invloed van de huurder/gebruiker op indeling en afwerking in de ontwerpfase.
De locatie bevindt zich nabij Lelystad Airport. Het terrein is volledig verhard en beschikt over 126 parkeerplaatsen op eigen terrein, evenredig verdeeld over de units.
De locatie heeft een uitstekende bereikbaarheid met directe aansluiting op de A6 en de N302.
Het is geschikt voor logistieke en industriële bedrijfsactiviteiten tot en met milieu categorie 4.1.
Indien er sprake is van (lichte) productie of een hogere stroomvraag, bestaat de mogelijkheid om de energiecapaciteit uit te breiden, in overleg en afhankelijk van het gebruiksprofiel.
Verwachte oplevering: Q1 2027.
Huurprijs: op aanvraag.
Nieuw te realiseren logistiek center op bedrijventerrein Larserpoort nabij Lelystad Airport.
Het gebouw omvat circa 10.934 m² BVO, verdeeld over drie units van elk circa 3.645 m², waarvan twee units samen te voegen zijn. Het object kan ook in zijn geheel worden gehuurd. Per unit is ruimte voor circa 5.600 palletplaatsen, wat neerkomt op een totaal van circa 16.800 palletplaatsen.
Elke unit beschikt over kantoorruimte, drie overheaddeuren, drie loading docks, vloerbelasting van 3.500-5.000 kg/m2 en een vrije hoogte van circa 12,2 meter.
Het gebouw wordt turn-key opgeleverd, met invloed van de huurder/gebruiker op indeling en afwerking in de ontwerpfase.
De locatie bevindt zich nabij Lelystad Airport. Het terrein is volledig verhard en beschikt over 126 parkeerplaatsen op eigen terrein, evenredig verdeeld over de units.
De locatie heeft een uitstekende bereikbaarheid met directe aansluiting op de A6 en de N302.
Het is geschikt voor logistieke en industriële bedrijfsactiviteiten tot en met milieu categorie 4.1.
Indien er sprake is van (lichte) productie of een hogere stroomvraag, bestaat de mogelijkheid om de energiecapaciteit uit te breiden, in overleg en afhankelijk van het gebruiksprofiel.
Verwachte oplevering: Q1 2027.
Huurprijs: op aanvraag.
Kaart
Kaart laden...
Kadastrale grens
Bebouwing
Reistijd
Krijg inzicht in de bereikbaarheid van dit object vanuit bijvoorbeeld een openbaar vervoer station of vanuit een adres.