Sydneystraat 4-8 1175 RN Lijnden
Huurprijs op aanvraag
Omschrijving
OBJECT
Te huur, 4 multifunctionele nieuwbouw bedrijfsunits vanaf circa 198 m² per unit gelegen aan de Sydneystraat 2-8 A te Lijnden, op Airport Business Park Lijnden.
LOCATIE
De bereikbaarheid van deze locatie per auto is uitstekend! Door de ligging van het bedrijvenpark direct aan de Rijksweg A9 is het minder dan een kwartier rijden naar Schiphol, Haarlem, de havens van Amsterdam en Amsterdam zelf.
De bereikbaarheid per openbaar vervoer is goed, met een bushalte op slechts 4 minuten loopafstand.
KADASTRALE GEGEVENS
Gemeente: Haarlemmermeer
Sectie: H
Nummer: 10965
BESCHIKBAAR
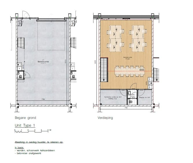
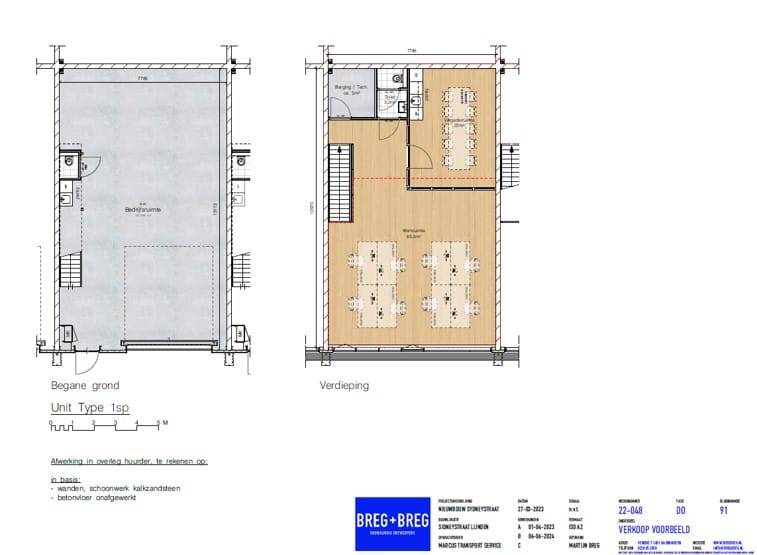
De 4 bedrijfsunits met bedrijfs- en kantoorruimte hebben per unit een totale oppervlakte van circa 198 m² v.v.o. en is als volgt verdeeld:
Begane grond: circa 102 m²;
Eerste verdieping: circa 96 m².
PARKEREN
2 parkeerplaatsen per unit. Tevens is het terrein voorzien van bezoekersparkeerplaatsen.
HUURPRIJS
Op aanvraag.
BESCHIKBAARHEID
Huisnummer 4: beschikbaar;
Huisnummer 6A: beschikbaar;
Huisnummer 8: beschikbaar;
Huisnummer 8A: beschikbaar.
HUURTERMIJN
5 jaar + een mogelijkheid tot verlenging met 5 jaar.
OPLEVERINGSNIVEAU
Het object zal worden opgeleverd in een casco plus staat inclusief de navolgende voorzieningen:
- basis verlichting;
- elektrische overheaddeur;
- basisaansluiting voor pantry;
- basisaansluiting voor toiletgroep;
- mantelbuizen voor elektrische laadpalen op de parkeerplaatsen;
- dekvloer 1e etage.
HUURBETALING
Per kwartaal vooruit.
BANKGARANTIE
Een bankgarantie ter grootte van drie maanden huur vermeerderd met servicekosten en BTW dient gesteld en afgegeven te worden door een erkende Nederlandse bankinstelling.
HUURPRIJSAANPASSING
Jaarlijks, voor het eerst na het eerste huurjaar, conform de consumentenprijsindexcijfers, reeks CPI alle huishoudens, totaal (2015=100).
AANVAARDING
Per direct.
SERVICEKOSTEN
Definitief nader vast te stellen door verhuurder.
RECLAME
Het aanbrengen van de reclame behoeft de goedkeuring van de eigenaar en verhuurder, alsmede de gemeente Haarlemmermeer.
VOORBEHOUD
Definitieve goedkeuring opdrachtgever.
Voor meer informatie kunt u contact opnemen met ons kantoor of met uw eigen makelaar.
Huurcontract: Modelhuurcontract ROZ welke is vastgesteld door de Raad van Onroerende zaken in februari 2015. Opzegging 12 maanden voor het einde van de huurovereenkomst. Gebruik volgens het huidige bestemmingsplan.
Gunning: Verhuurder behoudt zich het recht voor het object te verhuren/ te gunnen aan de gegadigde van zijn keuze.
Informatie: Wij hebben ernaar gestreefd dat de informatie zo nauwkeurig mogelijk is, toch moet u ervan uit gaan dat de inhoud slechts indicatief is. Deze informatie wordt aan meerdere personen verstrekt en aan deze gegevens kunnen geen rechten worden ontleend.
ALLE INFORMATIE IS GEHEEL VRIJBLIJVEND EN ONDER VOORBEHOUD EN HIERAAN KUNNEN GEEN RECHTEN ONTLEEND WORDEN
Te huur, 4 multifunctionele nieuwbouw bedrijfsunits vanaf circa 198 m² per unit gelegen aan de Sydneystraat 2-8 A te Lijnden, op Airport Business Park Lijnden.
LOCATIE
De bereikbaarheid van deze locatie per auto is uitstekend! Door de ligging van het bedrijvenpark direct aan de Rijksweg A9 is het minder dan een kwartier rijden naar Schiphol, Haarlem, de havens van Amsterdam en Amsterdam zelf.
De bereikbaarheid per openbaar vervoer is goed, met een bushalte op slechts 4 minuten loopafstand.
KADASTRALE GEGEVENS
Gemeente: Haarlemmermeer
Sectie: H
Nummer: 10965
BESCHIKBAAR
De 4 bedrijfsunits met bedrijfs- en kantoorruimte hebben per unit een totale oppervlakte van circa 198 m² v.v.o. en is als volgt verdeeld:
Begane grond: circa 102 m²;
Eerste verdieping: circa 96 m².
PARKEREN
2 parkeerplaatsen per unit. Tevens is het terrein voorzien van bezoekersparkeerplaatsen.
HUURPRIJS
Op aanvraag.
BESCHIKBAARHEID
Huisnummer 4: beschikbaar;
Huisnummer 6A: beschikbaar;
Huisnummer 8: beschikbaar;
Huisnummer 8A: beschikbaar.
HUURTERMIJN
5 jaar + een mogelijkheid tot verlenging met 5 jaar.
OPLEVERINGSNIVEAU
Het object zal worden opgeleverd in een casco plus staat inclusief de navolgende voorzieningen:
- basis verlichting;
- elektrische overheaddeur;
- basisaansluiting voor pantry;
- basisaansluiting voor toiletgroep;
- mantelbuizen voor elektrische laadpalen op de parkeerplaatsen;
- dekvloer 1e etage.
HUURBETALING
Per kwartaal vooruit.
BANKGARANTIE
Een bankgarantie ter grootte van drie maanden huur vermeerderd met servicekosten en BTW dient gesteld en afgegeven te worden door een erkende Nederlandse bankinstelling.
HUURPRIJSAANPASSING
Jaarlijks, voor het eerst na het eerste huurjaar, conform de consumentenprijsindexcijfers, reeks CPI alle huishoudens, totaal (2015=100).
AANVAARDING
Per direct.
SERVICEKOSTEN
Definitief nader vast te stellen door verhuurder.
RECLAME
Het aanbrengen van de reclame behoeft de goedkeuring van de eigenaar en verhuurder, alsmede de gemeente Haarlemmermeer.
VOORBEHOUD
Definitieve goedkeuring opdrachtgever.
Voor meer informatie kunt u contact opnemen met ons kantoor of met uw eigen makelaar.
Huurcontract: Modelhuurcontract ROZ welke is vastgesteld door de Raad van Onroerende zaken in februari 2015. Opzegging 12 maanden voor het einde van de huurovereenkomst. Gebruik volgens het huidige bestemmingsplan.
Gunning: Verhuurder behoudt zich het recht voor het object te verhuren/ te gunnen aan de gegadigde van zijn keuze.
Informatie: Wij hebben ernaar gestreefd dat de informatie zo nauwkeurig mogelijk is, toch moet u ervan uit gaan dat de inhoud slechts indicatief is. Deze informatie wordt aan meerdere personen verstrekt en aan deze gegevens kunnen geen rechten worden ontleend.
ALLE INFORMATIE IS GEHEEL VRIJBLIJVEND EN ONDER VOORBEHOUD EN HIERAAN KUNNEN GEEN RECHTEN ONTLEEND WORDEN
Kenmerken
Overdracht
- Huurprijs
- Huurprijs op aanvraag
- Aangeboden sinds
-
- Status
- Beschikbaar
- Aanvaarding
- In overleg
Bouw
- Hoofdfunctie
- Bedrijfshal
- Soort bouw
- Bestaande bouw
- Bouwjaar
- 2024
Oppervlakten
- Oppervlakte
- 198 m²
- Bedrijfshal oppervlak
- 198 m²
- Perceel
- 4.070 m²
Indeling
- Voorzieningen
- Overheaddeuren, toilet en pantry
Energie
- Energielabel
- Niet verplicht
Omgeving
- Ligging
- Bedrijventerrein
Parkeergelegenheid
- Parkeerplaatsen
- 2 niet-overdekte parkeerplaatsen
Foto's