Omschrijving
Multifunctionele bedrijfsruimte op bedrijventerrein "Oud Camp - Coldenhovenlaan", beschikbaar voor verhuur.
Het betreft een ruimte op de begane grond van ca. 400 m2 B.V.O en ca. 318,80 m2 B.V.O op de verdiepingen.
De bedrijfsruimte is voorzien van een ruime bedrijfshal (hoogte ca. 9 meter), diverse afsluitbare ruimtes op de begane grond en de tweede verdieping, twee toiletten, en een keukenblok.
Het pand is tevens voorzien van vloerverwarming, airconditioning en led verlichting in het systeemplafond.
Het bedrijventerrein Oud Camp - Coldenhovenlaan is gelegen dichtbij de A20.
Uitvalswegen richting Den Haag en Rotterdam bevinden zich op enkele autominuten afstand. Parkeerplaatsen direct voor de bedrijfsruimte.
Indeling
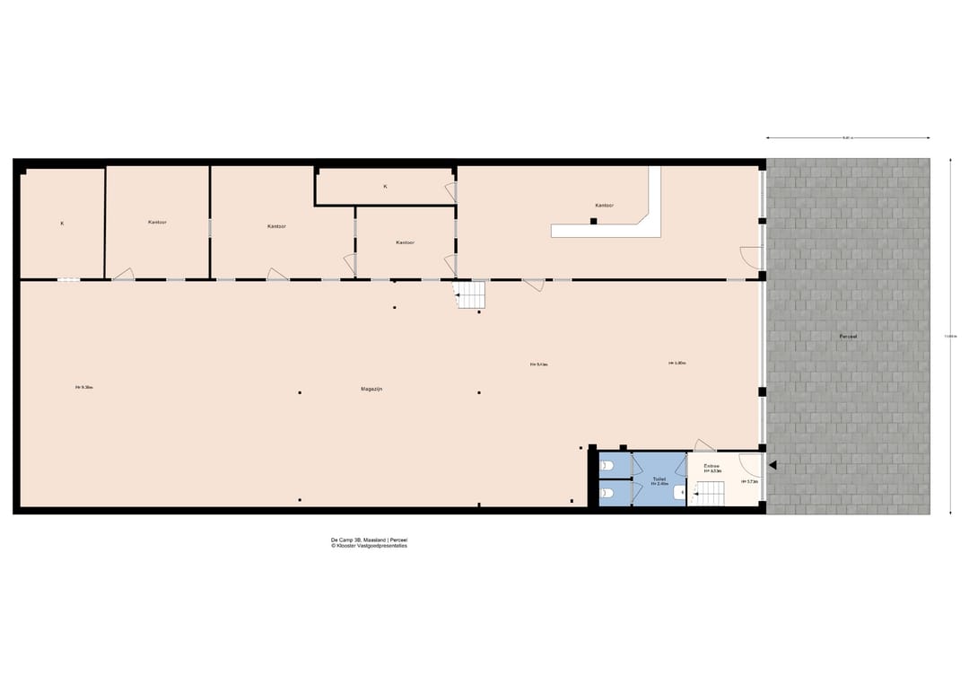
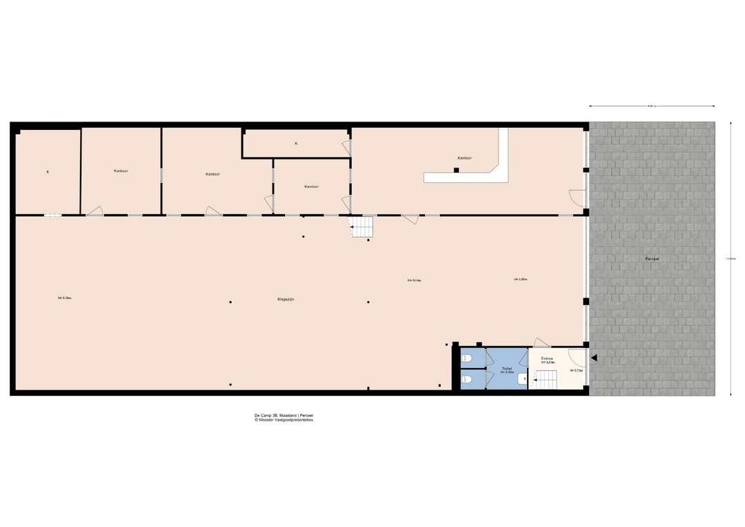
Begane grond
Entree via loopdeur in de hal met vaste trapopgang naar de tweede verdieping, twee toiletten en een toegangsdeur naar de bedrijfshal.
De bedrijfshal is bereikbaar via een elektrische overheaddeur en heeft een vrije hoogte van circa 9 meter. De hal is voorzien van vloerverwarming en een lichtstraat voor daglichttoetreding. Vanuit de bedrijfshal is via een vaste trap de eerste verdieping bereikbaar. Daarnaast zijn er toegangsdeuren naar de kantoorruimten en een berging.
De kantoorruimten zijn bereikbaar via een loopdeur vanaf buiten. De voorste ruimte is ingericht als receptie en beschikt over veel daglicht door een grote raampartij. Daarachter bevinden zich drie kantoorruimten en twee bergingen. De verschillende ruimtes staan met elkaar in verbinding middels tussendeuren. Drie van de vier kantoorruimten hebben via een deur directe toegang tot de bedrijfshal.
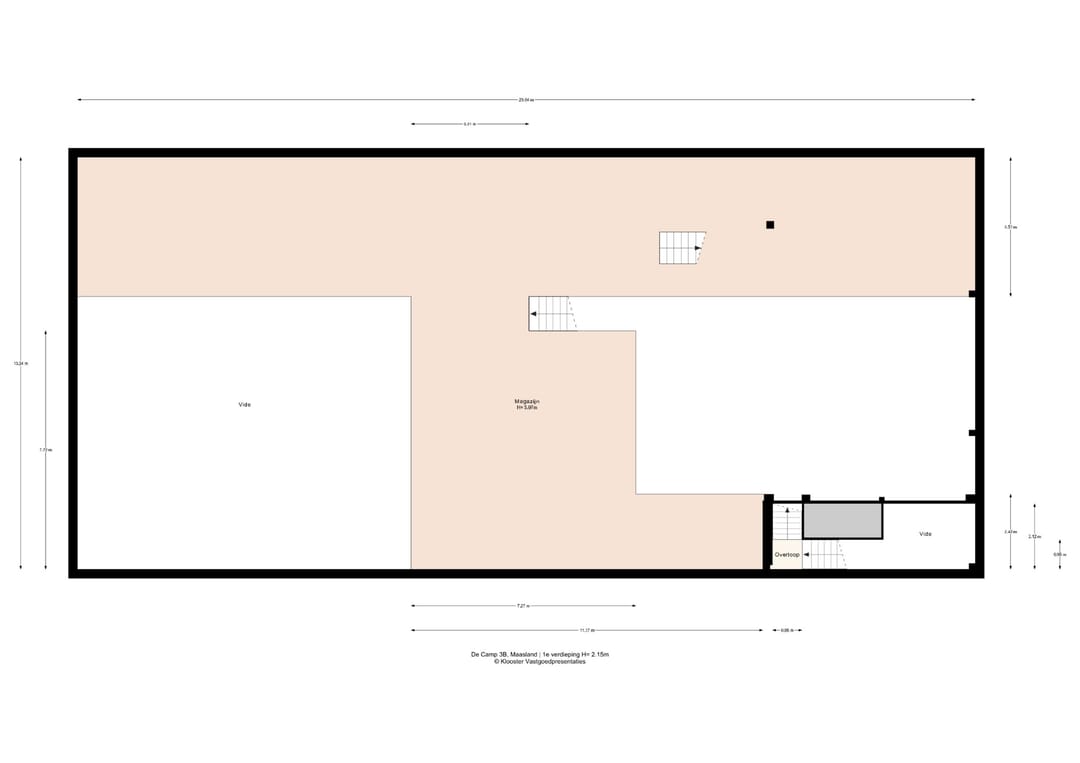
Eerste verdieping
Bereikbaar via een vaste trap vanuit de bedrijfshal. De verdieping bestaat uit een vide en een opslagruimte boven de kantoorruimten. Vanuit de opslagruimte leidt een vaste trap naar de tweede verdieping.
Tweede verdieping
De tweede verdieping is tevens bereikbaar via een eigen entree op de begane grond en beschikt over een berging en twee kantoorruimten, waarvan één met keukenblok.
De bedrijfsruimte kenmerkt zich tevens door;
- centrale ligging op bedrijventerrein 'Oud Camp - Coldenhovenlaan';
- goede bereikbaarheid;
- bedrijfshal met hoogte van ca. 9 meter en vier afgesloten kantoorruimten op de begane grond;
- zelfstandige entree op de begane grond met toiletten en trapopgang naar kantoorruimten (incl. keuken) op de tweede verdieping;
- voorzien van ca. 70 zonnepanelen;
- vloerverwarming in de bedrijfshal;
- systeemplafond, airconditioning en led verlichting;
- centrale verwarming in de kantoren op de verdieping;
- vier eigen parkeerplaatsen aan de voorzijde;
- alarminstallatie aanwezig;
- glasvezel internet aanwezig;
- eigen gas-, water- en elektra aanwezig;
- actieve VvE met maandelijkse bijdrage/servicekosten € 435,- per maand.
Het gehuurde: Oud Camp 3B te Maasland
Huurprijs: € 4.560,- per maand, excl. BTW en servicekosten.
Bouwjaar: ca. 2005
Oppervlakte totaal: ca. 718,80 m2 b.v.o. (ca. 400 m2 op de begane grond, ca. 221,80 m2 op de eerste verdieping en ca. 97 m2 op de tweede verdieping)
Bestemmingsplan
Bedrijfsdoeleinden voor bedrijven tot en met categorie B3.1 van de staat van bedrijfsactiviteiten.
Het bestemmingsplan 'Bedrijven Coldenhovenlaan 2013', vastgesteld op 19 juli 2013 is van toepassing.
Bereikbaarheid
Per auto: goed bereikbaar
per openbaar vervoer: op loopafstand
Aanvaarding
In huidige staat en in nader overleg.
Voorschot servicekosten
In nader overleg met de verhuurder vast te stellen. Een en ander is mede afhankelijk van de wensen van de huurder.
Huurtermijn
Minimale huurtermijn van 5 jaar.
Bankgarantie
Ter grootte van drie maanden huur plus servicekosten, beiden te vermeerderen met BTW.
BTW
Verhuurder wenst te opteren voor BTW-belaste huur en verhuur. Ingeval huurder de BTW niet kan verrekenen, zal de huurprijs in overleg met huurder worden verhoogd ter compensatie van de gevolgen van het vervallen van de mogelijkheid om te opteren voor BTW-belaste huur.
Huurovereenkomst
De te sluiten huurovereenkomst zal worden opgemaakt conform het model dat door de Raad van Onroerende Zaken is vastgesteld op 30 januari 2015, met bijbehorende Algemene Bepalingen welke op 17 februari 2015 zijn gedeponeerd bij de griffie van de Rechtbank te Den Haag onder nummer 15/21.
Huurprijsherziening
De huurprijs zal voor het eerst één jaar na huuringangsdatum en vervolgens jaarlijks worden aangepast op basis van de wijziging van het maandprijsindexcijfer volgens de consumentenprijsindex (CPI), reeks Alle huishoudens (2006 = 100), gepubliceerd door het Centraal Bureau voor de Statistiek (CBS), met dien verstande, dat de huurprijs nimmer zal dalen beneden de laatst geldende huurprijs.
Voorbehoud
Onderhandelingen geschieden steeds onder het uitdrukkelijke voorbehoud van goedkeuring door opdrachtgever c.q. eigenaar.
Het betreft een ruimte op de begane grond van ca. 400 m2 B.V.O en ca. 318,80 m2 B.V.O op de verdiepingen.
De bedrijfsruimte is voorzien van een ruime bedrijfshal (hoogte ca. 9 meter), diverse afsluitbare ruimtes op de begane grond en de tweede verdieping, twee toiletten, en een keukenblok.
Het pand is tevens voorzien van vloerverwarming, airconditioning en led verlichting in het systeemplafond.
Het bedrijventerrein Oud Camp - Coldenhovenlaan is gelegen dichtbij de A20.
Uitvalswegen richting Den Haag en Rotterdam bevinden zich op enkele autominuten afstand. Parkeerplaatsen direct voor de bedrijfsruimte.
Indeling
Begane grond
Entree via loopdeur in de hal met vaste trapopgang naar de tweede verdieping, twee toiletten en een toegangsdeur naar de bedrijfshal.
De bedrijfshal is bereikbaar via een elektrische overheaddeur en heeft een vrije hoogte van circa 9 meter. De hal is voorzien van vloerverwarming en een lichtstraat voor daglichttoetreding. Vanuit de bedrijfshal is via een vaste trap de eerste verdieping bereikbaar. Daarnaast zijn er toegangsdeuren naar de kantoorruimten en een berging.
De kantoorruimten zijn bereikbaar via een loopdeur vanaf buiten. De voorste ruimte is ingericht als receptie en beschikt over veel daglicht door een grote raampartij. Daarachter bevinden zich drie kantoorruimten en twee bergingen. De verschillende ruimtes staan met elkaar in verbinding middels tussendeuren. Drie van de vier kantoorruimten hebben via een deur directe toegang tot de bedrijfshal.
Eerste verdieping
Bereikbaar via een vaste trap vanuit de bedrijfshal. De verdieping bestaat uit een vide en een opslagruimte boven de kantoorruimten. Vanuit de opslagruimte leidt een vaste trap naar de tweede verdieping.
Tweede verdieping
De tweede verdieping is tevens bereikbaar via een eigen entree op de begane grond en beschikt over een berging en twee kantoorruimten, waarvan één met keukenblok.
De bedrijfsruimte kenmerkt zich tevens door;
- centrale ligging op bedrijventerrein 'Oud Camp - Coldenhovenlaan';
- goede bereikbaarheid;
- bedrijfshal met hoogte van ca. 9 meter en vier afgesloten kantoorruimten op de begane grond;
- zelfstandige entree op de begane grond met toiletten en trapopgang naar kantoorruimten (incl. keuken) op de tweede verdieping;
- voorzien van ca. 70 zonnepanelen;
- vloerverwarming in de bedrijfshal;
- systeemplafond, airconditioning en led verlichting;
- centrale verwarming in de kantoren op de verdieping;
- vier eigen parkeerplaatsen aan de voorzijde;
- alarminstallatie aanwezig;
- glasvezel internet aanwezig;
- eigen gas-, water- en elektra aanwezig;
- actieve VvE met maandelijkse bijdrage/servicekosten € 435,- per maand.
Het gehuurde: Oud Camp 3B te Maasland
Huurprijs: € 4.560,- per maand, excl. BTW en servicekosten.
Bouwjaar: ca. 2005
Oppervlakte totaal: ca. 718,80 m2 b.v.o. (ca. 400 m2 op de begane grond, ca. 221,80 m2 op de eerste verdieping en ca. 97 m2 op de tweede verdieping)
Bestemmingsplan
Bedrijfsdoeleinden voor bedrijven tot en met categorie B3.1 van de staat van bedrijfsactiviteiten.
Het bestemmingsplan 'Bedrijven Coldenhovenlaan 2013', vastgesteld op 19 juli 2013 is van toepassing.
Bereikbaarheid
Per auto: goed bereikbaar
per openbaar vervoer: op loopafstand
Aanvaarding
In huidige staat en in nader overleg.
Voorschot servicekosten
In nader overleg met de verhuurder vast te stellen. Een en ander is mede afhankelijk van de wensen van de huurder.
Huurtermijn
Minimale huurtermijn van 5 jaar.
Bankgarantie
Ter grootte van drie maanden huur plus servicekosten, beiden te vermeerderen met BTW.
BTW
Verhuurder wenst te opteren voor BTW-belaste huur en verhuur. Ingeval huurder de BTW niet kan verrekenen, zal de huurprijs in overleg met huurder worden verhoogd ter compensatie van de gevolgen van het vervallen van de mogelijkheid om te opteren voor BTW-belaste huur.
Huurovereenkomst
De te sluiten huurovereenkomst zal worden opgemaakt conform het model dat door de Raad van Onroerende Zaken is vastgesteld op 30 januari 2015, met bijbehorende Algemene Bepalingen welke op 17 februari 2015 zijn gedeponeerd bij de griffie van de Rechtbank te Den Haag onder nummer 15/21.
Huurprijsherziening
De huurprijs zal voor het eerst één jaar na huuringangsdatum en vervolgens jaarlijks worden aangepast op basis van de wijziging van het maandprijsindexcijfer volgens de consumentenprijsindex (CPI), reeks Alle huishoudens (2006 = 100), gepubliceerd door het Centraal Bureau voor de Statistiek (CBS), met dien verstande, dat de huurprijs nimmer zal dalen beneden de laatst geldende huurprijs.
Voorbehoud
Onderhandelingen geschieden steeds onder het uitdrukkelijke voorbehoud van goedkeuring door opdrachtgever c.q. eigenaar.
Kaart
Kaart laden...
Kadastrale grens
Bebouwing
Reistijd
Krijg inzicht in de bereikbaarheid van dit object vanuit bijvoorbeeld een openbaar vervoer station of vanuit een adres.