Omschrijving
Bijzonder fraai en statig Rijksmonument, gelegen op 306 m2 eigen grond in het centrum van Middelburg.
Het aantrekkelijke historische centrum van Middelburg, het NS station, de Zeeuwse bibliotheek en het abdijcomplex vindt u op korte loopafstand.
De bestemming is "Bedrijf", waarbij het gaat om alle onder A genoemde categorieën op de Staat van Bedrijfsactiviteiten 'functiemenging'. Deze staat is desgewenst bij ons op te vragen.
Voor alle overige plannen, zoals bijvoorbeeld detailhandel, dient een vrijstelling voor functiewijziging te worden aangevraagd bij de gemeente Middelburg.
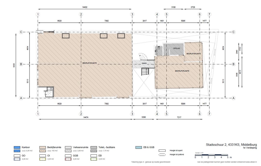
De circa 538 m2 VVO die is onderverdeeld in:
- Bedrijfsruimte ca. 408 m2
- Kantoorruimte ca. 19 m2
- Verkeersruimte ca. 82
- Toilet en facilitair ca. 30
In het pand is een constructie geplaatst, losse elementen, welke ruimte over meerdere verdiepingen biedt:
- Circa 258 m2 VVO op de begane grond
- Circa 193 m2 VVO op de eerste verdieping
- Circa 87 m2 VVO op tweede verdieping
De indeling is als volgt:
- Begane grond - Entree aan oostzijde (ook entreemogelijkheden aan zuid- en noordzijde), receptiemogelijkheid, grote open ruimte, (vergader)ruimte, toiletgroep, pantry.
- Eerste verdieping - grote open ruimte, tweede ruimte, afsluitbare (vergader)ruimte, toilet, serverruimte.
- Tweede verdieping - twee open ruimtes.
Een unieke kans om in een prachtige historisch pand te werken!!
Op het aangebodene rust een aanbiedingsverplichting. We informeren u daarover graag nader.
Bezichtigingen vinden op afspraak plaats.
De oplevering gaat in overleg.
In de koopovereenkomst worden een ouderdoms- en asbestclausule opgenomen.
Het aantrekkelijke historische centrum van Middelburg, het NS station, de Zeeuwse bibliotheek en het abdijcomplex vindt u op korte loopafstand.
De bestemming is "Bedrijf", waarbij het gaat om alle onder A genoemde categorieën op de Staat van Bedrijfsactiviteiten 'functiemenging'. Deze staat is desgewenst bij ons op te vragen.
Voor alle overige plannen, zoals bijvoorbeeld detailhandel, dient een vrijstelling voor functiewijziging te worden aangevraagd bij de gemeente Middelburg.
De circa 538 m2 VVO die is onderverdeeld in:
- Bedrijfsruimte ca. 408 m2
- Kantoorruimte ca. 19 m2
- Verkeersruimte ca. 82
- Toilet en facilitair ca. 30
In het pand is een constructie geplaatst, losse elementen, welke ruimte over meerdere verdiepingen biedt:
- Circa 258 m2 VVO op de begane grond
- Circa 193 m2 VVO op de eerste verdieping
- Circa 87 m2 VVO op tweede verdieping
De indeling is als volgt:
- Begane grond - Entree aan oostzijde (ook entreemogelijkheden aan zuid- en noordzijde), receptiemogelijkheid, grote open ruimte, (vergader)ruimte, toiletgroep, pantry.
- Eerste verdieping - grote open ruimte, tweede ruimte, afsluitbare (vergader)ruimte, toilet, serverruimte.
- Tweede verdieping - twee open ruimtes.
Een unieke kans om in een prachtige historisch pand te werken!!
Op het aangebodene rust een aanbiedingsverplichting. We informeren u daarover graag nader.
Bezichtigingen vinden op afspraak plaats.
De oplevering gaat in overleg.
In de koopovereenkomst worden een ouderdoms- en asbestclausule opgenomen.
Kaart
Kaart laden...
Kadastrale grens
Bebouwing
Reistijd
Krijg inzicht in de bereikbaarheid van dit object vanuit bijvoorbeeld een openbaar vervoer station of vanuit een adres.