De Huufkes 35 5674 TL Nuenen
Huurprijs op aanvraag
Omschrijving
BEDRIJFSRUIMTE MET KANTOORRUIMTE VAN TOTAAL CIRCA 5.000 M² == GELEGEN OP EEN PERCEEL VAN 10.000 M² == VRIJE HOOGTE CA. 7,3 M
Namens onze opdrachtgever bieden wij deze multifunctionele bedrijfsruimte in Nuenen aan gelegen op bedrijventerrein Eeneind. Dit bedrijventerrein ligt aan de zuidzijde van Nuenen. Bedrijventerrein Eeneind vormt samen met het bedrijventerrein de Spaarpot in Geldrop een belangrijk industriegebied aan de oostkant van Eindhoven.
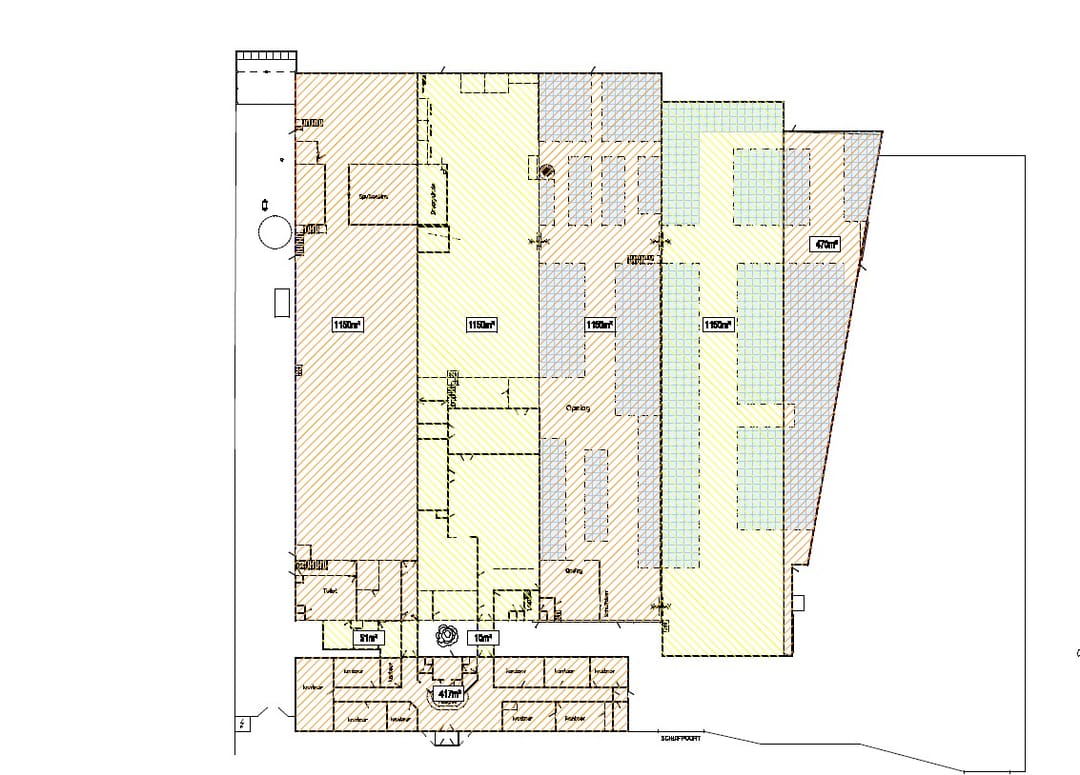
Het geheel bestaat uit een bedrijfshal met/zonder kantoorruimte. De bedrijfshal is voorzien van meerdere overheaddeuren. De totale oppervlakte bedraagt maar liefst circa 5000m² en gelegen op een kavel van 10.000 m².
De bedrijfsruimte bestaat momenteel uit 4 afgescheiden ruimtes van 1150 m², een apart gedeelte van 450m² en 300m² kantoor (deze aparte units zijn ook samen te voegen tot één ruimte), daarnaast is er nog een royale zolder als opslag/magazijn. De loods heeft twee overheaddeuren met een hoogte van ca. 4.00 m1 en nog een derde roldeur.
Op de eerste verdieping is een ruime kantine met keuken aanwezig.
Bereikbaarheid
Het bedrijventerrein is goed bereikbaar via de Collse Hoefdijk, richting de oprit van de A270 en A67. Daarnaast is het object met openbaar vervoer goed te bereiken.
HUURPRIJS BEDRIJFSRUIMTE:
€ 65,- per jaar te vermeerderen met de verschuldigde BTW.
SERVICEKOSTEN:
G/W/L
HUURTERMIJN:
De huurtermijn en aansluitende verlengingstermijnen gaat in overleg.
AANVAARDING:
In nader overleg, doch op korte termijn mogelijk.
WEDERZIJDSE OPZEGTERMIJN:
Een wederzijdse opzegtermijn gaat in overleg.
BETAALTERMIJN:
Huur dient per kwartaal bij vooruitbetaling te worden voldaan, inclusief en de verschuldigde BTW over de huur.
ZEKERHEIDSSTELLING:
Bankgarantie of waarborgsom ter grootte van een bedrag gelijk aan 3 (drie) maanden betalingsverplichting inclusief BTW.
INDEXERING:
Jaarlijks voor het eerst 1 (één) jaar na huuringangsdatum op basis van het CPI- alle bestedingen afgegeven door het CBS (2015=100).
HUUROVEREENKOMST:
Standaard model van de Raad voor Onroerende Zaken (ROZ2025), welke gehanteerd wordt door de Nederlandse Vereniging van Makelaars (NVM), aangevuld met van toepassing zijnde bijzondere bepalingen. Een huurovereenkomst is onder voorbehoud definitieve goedkeuring namens opdrachtgever/eigenaar welke goedkeuring wordt geacht te zijn verkregen nadat de tekeningbevoegde de huurovereenkomst heeft getekend.
Voor meer informatie of een bezichtiging neem graag contact met ons op. Wij geven u graag een rondleiding!
GOEDKEURING
Het bovenstaande is onder finaal voorbehoud van de eigenaar.
Disclaimer: Ondanks dat deze publicatie met de grootst mogelijke zorgvuldigheid is samengesteld is de Online Bedrijfsmakelaar BV niet aansprakelijk te stellen voor onjuiste of onvolledige informatie die in deze publicatie vermeld staan. Aan deze gegevens kunnen geen rechten worden ontleend.
====================
Alle beschikbare informatie ontvangen?
Benieuwd naar alle beschikbare informatie over dit pand? Vraag dan nu, onder de grote contactbutton, de gratis objectbrochure van De Huufkes 35 in Nuenen aan en ontvang de objectbrochure binnen 5 minuten in uw mailbox. Uiteraard kunt u ook direct een geheel vrijblijvende bezichtiging met de beheerder van het pand inplannen.
Namens onze opdrachtgever bieden wij deze multifunctionele bedrijfsruimte in Nuenen aan gelegen op bedrijventerrein Eeneind. Dit bedrijventerrein ligt aan de zuidzijde van Nuenen. Bedrijventerrein Eeneind vormt samen met het bedrijventerrein de Spaarpot in Geldrop een belangrijk industriegebied aan de oostkant van Eindhoven.
Het geheel bestaat uit een bedrijfshal met/zonder kantoorruimte. De bedrijfshal is voorzien van meerdere overheaddeuren. De totale oppervlakte bedraagt maar liefst circa 5000m² en gelegen op een kavel van 10.000 m².
De bedrijfsruimte bestaat momenteel uit 4 afgescheiden ruimtes van 1150 m², een apart gedeelte van 450m² en 300m² kantoor (deze aparte units zijn ook samen te voegen tot één ruimte), daarnaast is er nog een royale zolder als opslag/magazijn. De loods heeft twee overheaddeuren met een hoogte van ca. 4.00 m1 en nog een derde roldeur.
Op de eerste verdieping is een ruime kantine met keuken aanwezig.
Bereikbaarheid
Het bedrijventerrein is goed bereikbaar via de Collse Hoefdijk, richting de oprit van de A270 en A67. Daarnaast is het object met openbaar vervoer goed te bereiken.
HUURPRIJS BEDRIJFSRUIMTE:
€ 65,- per jaar te vermeerderen met de verschuldigde BTW.
SERVICEKOSTEN:
G/W/L
HUURTERMIJN:
De huurtermijn en aansluitende verlengingstermijnen gaat in overleg.
AANVAARDING:
In nader overleg, doch op korte termijn mogelijk.
WEDERZIJDSE OPZEGTERMIJN:
Een wederzijdse opzegtermijn gaat in overleg.
BETAALTERMIJN:
Huur dient per kwartaal bij vooruitbetaling te worden voldaan, inclusief en de verschuldigde BTW over de huur.
ZEKERHEIDSSTELLING:
Bankgarantie of waarborgsom ter grootte van een bedrag gelijk aan 3 (drie) maanden betalingsverplichting inclusief BTW.
INDEXERING:
Jaarlijks voor het eerst 1 (één) jaar na huuringangsdatum op basis van het CPI- alle bestedingen afgegeven door het CBS (2015=100).
HUUROVEREENKOMST:
Standaard model van de Raad voor Onroerende Zaken (ROZ2025), welke gehanteerd wordt door de Nederlandse Vereniging van Makelaars (NVM), aangevuld met van toepassing zijnde bijzondere bepalingen. Een huurovereenkomst is onder voorbehoud definitieve goedkeuring namens opdrachtgever/eigenaar welke goedkeuring wordt geacht te zijn verkregen nadat de tekeningbevoegde de huurovereenkomst heeft getekend.
Voor meer informatie of een bezichtiging neem graag contact met ons op. Wij geven u graag een rondleiding!
GOEDKEURING
Het bovenstaande is onder finaal voorbehoud van de eigenaar.
Disclaimer: Ondanks dat deze publicatie met de grootst mogelijke zorgvuldigheid is samengesteld is de Online Bedrijfsmakelaar BV niet aansprakelijk te stellen voor onjuiste of onvolledige informatie die in deze publicatie vermeld staan. Aan deze gegevens kunnen geen rechten worden ontleend.
====================
Alle beschikbare informatie ontvangen?
Benieuwd naar alle beschikbare informatie over dit pand? Vraag dan nu, onder de grote contactbutton, de gratis objectbrochure van De Huufkes 35 in Nuenen aan en ontvang de objectbrochure binnen 5 minuten in uw mailbox. Uiteraard kunt u ook direct een geheel vrijblijvende bezichtiging met de beheerder van het pand inplannen.
Kenmerken
Overdracht
- Huurprijs
- Huurprijs op aanvraag
- Aangeboden sinds
-
- Status
- Beschikbaar
- Aanvaarding
- In overleg
Bouw
- Hoofdfunctie
- Bedrijfshal
- Mogelijke functie(s)
- Kantoorruimte
- Soort bouw
- Bestaande bouw
- Bouwjaar
- 1987
Oppervlakten
- Oppervlakte
- 5.000 m² (in units vanaf 250 m²)
- Bedrijfshal oppervlak
- 5.000 m²
- Terrein oppervlak
- 5.000 m²
- Vrije hoogte
- 7,3 m
- Perceel
- 10.129 m²
Indeling
- Voorzieningen
- Overheaddeuren, krachtstroom, betonvloer, heater, toilet en pantry
Energie
- Energielabel
- E 1,60
Omgeving
- Ligging
- Bedrijventerrein
Foto's