Marconistraat 46 7575 AR Oldenzaal

€ 84.000 /jr € 925.000 k.k.

Omschrijving

TE KOOP / TE HUUR MULTIFUNCTIONEEL BEDRIJFSCOMPLEK

Aan de Marconistraat 46 te Oldenzaal bieden wij een multifunctioneel bedrijfscomplex aan. Het object bestaat uit een ruime bedrijfsruimte in combinatie met moderne kantoorruimte en diverse nevenruimten. Daarnaast beschikt het pand over een royaal, geasfalteerd buitenterrein met volop mogelijkheden.
Dankzij het ruime buitenterrein is dit bedrijfspand bijzonder geschikt voor ondernemingen in de transportsector, logistiek of de automotive branche. Het terrein leent zich uitstekend voor het stallen van voertuigen, opslag in de buitenlucht en het efficiënt laden en lossen.
Het object is zowel te koop als te huur, wat flexibiliteit biedt voor ondernemers én beleggers.

BESTEMMINGSPLAN
Bedrijventerrein “De Eekte-Hazewinkel” met als bestemming op grond van artikel 4 van de planvoorschriften “Bedrijventerrein” met als functieaanduiding “bedrijf tot en met categorie 4.1”.
Voor meer gedetailleerde informatie verwijzen we u naar de website:
omgevingswet.overheid.nl/regels-op-de-kaart/zoeken/locatie.

KADASTRAAL
Gemeente : Oldenzaal
Sectie : E
Nummer : 1056
Groot : 2.533 m²

BOUWJAAR
1983.

OPPERVLAKTEN
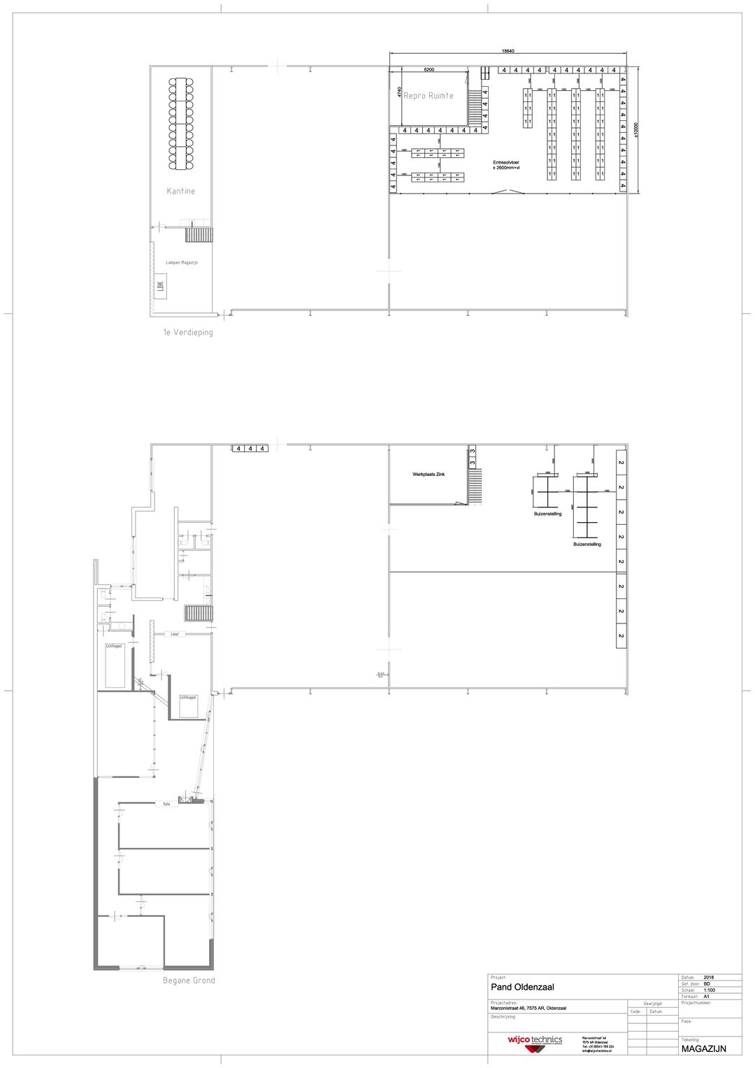
De totale oppervlakte van het onderhavige object bedraagt circa 1.245 m² en is als volgt onderverdeeld:
- Gelegen op de begane grond ca. 360 m² kantoorruimte.
- Gelegen op de begane grond ca. 615 m² bedrijfsruimte.
- Gelegen op de eerste verdieping, ca. 60 m² kantine.
- Gelegen op de eerste verdieping, ca. 210 m² entresol/opslagruimte.
De oppervlakten zijn gemeten door verkopend makelaar uit een kopie bouwtekening. De opgegeven metrage is derhalve indicatief; er kunnen geen rechten aan worden ontleend noch kan er sprake zijn van enige verrekening achteraf.
Het object beschikt over een volledig omheind en geasfalteerd buitenterrein, gesitueerd aan de voorzijde van het object met een totale oppervlakte van circa 1.500 m²

INDELING
Kantoorruimte: Centrale entree met receptie en gangpad, 7 kantoorkamers, 2 toiletgroepen en 2 pantry’s
Bedrijfsruimte: 5 elektrische overheaddeuren welke toegang verschaffen tot de bedrijfsruimte. 2/5 deel van deze bedrijfsruimte is voorzien van een betonnen vloer en 3/5 deel is voorzien van klinkerbestrating. Tevens beschikt het pand over een smeerput ten behoeve van vrachtwagens.

OPLEVERINGSNIVEAU
Het object wordt opgeleverd met o.a. de volgende voorzieningen:
Algemeen
- Alarminstallatie
- Poederblussers en brandslanghaspels
- Mechanische ventilatie
- Geheel geasfalteerd en omheind ruim parkeerterrein
- 2 stalen toegangspoorten

Kantoorruimte
- Systeemplafonds met inbouwverlichtingsarmaturen
- CV (gas) installatie met radiatoren
- Plat dak voorzien van lichtkoepels
- Scheidingswanden
- Plafond airco’s
- Kabelgoten voorzien van wandcontactdozen en bekabeling (cat. 5)
- Pantry
- Toiletgroepen (2x)

Bedrijfsruimte
- Deels betonvloer, deels klinkervloer
- Kunststof lichtstraat
- Direct gestookte heater(s)
- 5 elektrische overheaddeuren

KOOPSOM
€ 925.000,-- kosten koper.

ZEKERHEIDSSTELLING
Waarborgsom ter grootte van 10% van de koopsom te storten bij of af te geven aan de notaris uiterlijk 10 dagen na ondertekening van de koopovereenkomst.

HUURPRIJS
€ 84.000,-- per jaar, te vermeerderen met btw.

HUURTERMIJN
5 jaar.

VERLENINGSTERMIJN
Met aansluitende periode van telkens 5 jaar.

OPZEGTERMIJN
12 (twaalf) maanden voorafgaande aan de expiratiedatum.

BTW
Er is sprake van een verhuur met btw. Indien huurder niet voldoet aan de fiscale 90% btw-norm zal er een btw-vervangende opslag worden berekend.

ZEKERHEIDSSTELLING
Doorlopende bankgarantie of waarborgsom ter grootte van 3 maanden huur inclusief eventuele servicekosten en inclusief btw.

INDEXERING
Jaarlijks, voor het eerst één jaar na huuringangsdatum, op basis van de wijziging van het maandprijsindexcijfer volgens de consumentenprijsindex (CPI), reeks CPI - Alle huishoudens (2015=100), gepubliceerd door het Centraal Bureau voor de Statistiek (CBS).

BEREIKBAARHEID
De bedrijfsruimte aan de Marconistraat is uitstekend bereikbaar. Het object ligt nabij de Eektestraat, één van de belangrijkste invalswegen van Oldenzaal.
De op- en afrit van de Rijksweg A1 (richting Amsterdam en Duitsland) bevindt zich op slechts circa 2 minuten rijafstand. Hierdoor is sprake van een snelle en directe verbinding met zowel de Randstad als de Duitse markt. Ook lokale uitvalswegen naar omliggende plaatsen zijn snel en goed bereikbaar.

OMGEVINGSFACTOREN
In de directe omgeving bevinden zich diverse industriële, handels- en transportbedrijven. Het bedrijventerrein kent een dynamische mix van lokale ondernemers en grotere, regionaal opererende bedrijven.
Een belangrijk onderdeel van het terrein is de woonboulevard van Oldenzaal, alsmede bedrijven als Trioliet, Subway, Leenbakker en PrePain.
Deze combinatie zorgt voor een levendige en ondernemende omgeving met een sterke economische basis.

LOCATIEAANDUIDING
Het object is gelegen op bedrijventerrein Eekte-Hazewinkel, het grootste bedrijventerrein van Oldenzaal met circa 87 hectare netto terrein.
Het terrein ligt strategisch tussen de Rijksweg A1 (afslag Oldenzaal-Zuid) en het stadscentrum. Hierdoor profiteert de locatie van zowel uitstekende bereikbaarheid als nabijheid van voorzieningen.
Eekte-Hazewinkel is een gemengd bedrijventerrein met ruimte voor productie, logistiek, handel en dienstverlening. Daarnaast beschikt het terrein over een actieve ondernemersvereniging die zich inzet voor de belangen van de gevestigde bedrijven en de verdere ontwikkeling van het gebied.

MILIEU / BODEMGESTELDHEID
Het is verkoper niet bekend dat er feiten zijn waaruit blijkt dat de grond en/of grondwater onder en/of rondom het object enige verontreiniging bevat die voortzetting van het huidige gebruik belemmert of die heeft geleid of mogelijk zou kunnen leiden tot een saneringsverplichting van de grond en/of grondwater onder en rondom het object, dan wel het nemen van andere maatregelen (IBC-variant; isoleren, beheersen en controleren).

PARKEREN
Ruim voldoende parkeren op eigen terrein.
Het object beschikt over een volledig omheind en geasfalteerd buitenterrein, gesitueerd aan de voorzijde van het object met een totale oppervlakte van circa 1.500 m².

AANVAARDING
Aanvaarding per direct, een en ander in goed overleg.
Beschikbaar per 01 juni 2026, danwel eerder in overleg met huidige huurder.

VOORBEHOUD
Definitieve goedkeuring opdrachtgever en/of verkoper/verhuurder.

INFORMATIE
Wij hebben getracht middels deze zorgvuldig samengestelde
documentatie u zo uitgebreid mogelijk te informeren. Desondanks
kunnen hieraan geen rechten worden ontleend. Slechts de feitelijke
situatie geeft u een juist beeld.

Kenmerken

Overdracht

Vraagprijs
€ 925.000 kosten koper
Huurprijs
€ 84.000 per jaar
Aangeboden sinds
Status
Beschikbaar
Aanvaarding
Per direct beschikbaar

Bouw

Hoofdfunctie
Bedrijfshal
Soort bouw
Bestaande bouw
Bouwjaar
1983

Oppervlakten

Oppervlakte
1.605 m²
Bedrijfshal oppervlak
1.245 m²
Kantoor oppervlak
360 m²
Perceel
2.533 m²

Indeling

Aantal bouwlagen
2 bouwlagen
Voorzieningen
Mechanische ventilatie, lichtstraten, overheaddeuren, betonvloer, heater, toilet en pantry

Energie

Energielabel
Niet beschikbaar

Kaart

Kaart laden...

Kadastrale grens Bebouwing

Reistijd

Krijg inzicht in de bereikbaarheid van dit object vanuit bijvoorbeeld een openbaar vervoer station of vanuit een adres.

Marconistraat 46

€ 84.000 /jr € 925.000 k.k.