Ramgatseweg 11-D 4941 VN Raamsdonksveer
€ 350.000 k.k.
Omschrijving
Bedrijfsunit met bedrijfsruimte van ca. 100 m², kantoorruimte van ca. 57 m², 4 eigen parkeerplaatsen en verdere aanhorigheden
Situering
De bedrijfsunit is gelegen aan de Ramgatseweg 11D te Raamsdonkveer op het bedrijventerrein “Dombosch”. Het is een belangrijk industrieel gebied in de regio.
Dombosch heeft een strategische ligging langs de A27 snelweg, wat het aantrekkelijk maakt voor bedrijven vanwege de goede bereikbaarheid.
Het terrein omvat verschillende soorten bedrijven, waaronder fabrieken, distributiecentra, en kantoren. Er zijn ook diverse dienstverlenende bedrijven actief op Dombosch, zoals transportbedrijven en technische serviceproviders. De aanwezigheid van deze diverse bedrijven zorgt voor een dynamische en gevarieerde zakelijke
omgeving.
Opleveringsniveau
Bedrijfsruimte:
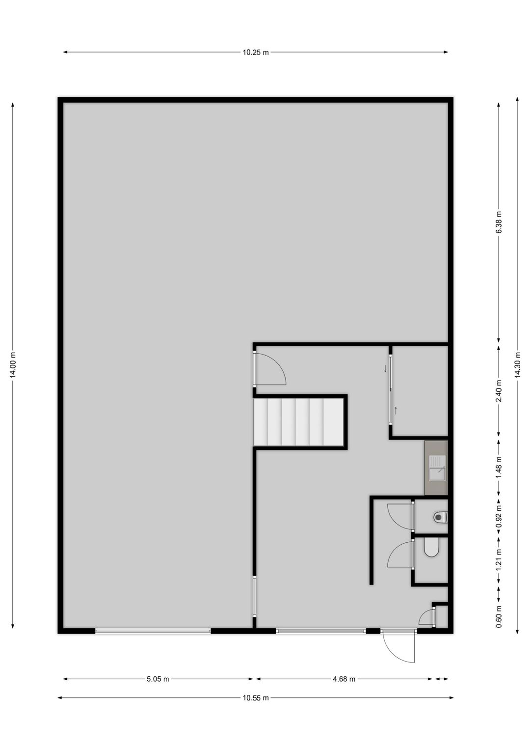
- Oppervlakte ca. 100 m²
- Vrije hoogte ca. 4,9 m
- Gladde betonvloer
- Overheaddeur (b: ca. 3,49 m h: ca. 4,20 m)
Kantoorruimte begane grond:
- Oppervlakte ca. 35 m²
- Systeemplafond met geïntegreerde verlichting
- Radiatoren
- Pantry
- Toilet en apart urinoir
Kantoorruimte eerste verdieping:
- Oppervlakte ca. 22 m²
- Systeemplafond met geïntegreerde verlichting
- Radiatoren
- Airconditioning
Bedrijfsunit:
- Staalconstructie met metselwerk wanden
- Bitumineus gedekt
- Gladde betonvloer
- Kunststof kozijnen met dubbele beglazing
Algemeen:
- Bouwjaar 1999
- Alarminstallatie
- Stroomvoorziening 3 x 25 Ampère
Bestemmingsplan
Het object valt binnen het bestemmingsplan van de Gemeente Geertruidenberg “Dombosch” met de bestemming “Bedrijventerrein’ en de functieaanduiding “bedrijf tot en met categorie 4.1“.
Vraagprijs: € 350.000,- k.k.
Oplevering: In overleg.
Deze informatieverstrekking geschiedt geheel vrijblijvend en onder voorbehoud van tussentijdse verhuur c.q. wijzigingen.
Voor nadere informatie en/ of een afspraak voor een bezichtiging kunt u te allen tijde contact opnemen.
Situering
De bedrijfsunit is gelegen aan de Ramgatseweg 11D te Raamsdonkveer op het bedrijventerrein “Dombosch”. Het is een belangrijk industrieel gebied in de regio.
Dombosch heeft een strategische ligging langs de A27 snelweg, wat het aantrekkelijk maakt voor bedrijven vanwege de goede bereikbaarheid.
Het terrein omvat verschillende soorten bedrijven, waaronder fabrieken, distributiecentra, en kantoren. Er zijn ook diverse dienstverlenende bedrijven actief op Dombosch, zoals transportbedrijven en technische serviceproviders. De aanwezigheid van deze diverse bedrijven zorgt voor een dynamische en gevarieerde zakelijke
omgeving.
Opleveringsniveau
Bedrijfsruimte:
- Oppervlakte ca. 100 m²
- Vrije hoogte ca. 4,9 m
- Gladde betonvloer
- Overheaddeur (b: ca. 3,49 m h: ca. 4,20 m)
Kantoorruimte begane grond:
- Oppervlakte ca. 35 m²
- Systeemplafond met geïntegreerde verlichting
- Radiatoren
- Pantry
- Toilet en apart urinoir
Kantoorruimte eerste verdieping:
- Oppervlakte ca. 22 m²
- Systeemplafond met geïntegreerde verlichting
- Radiatoren
- Airconditioning
Bedrijfsunit:
- Staalconstructie met metselwerk wanden
- Bitumineus gedekt
- Gladde betonvloer
- Kunststof kozijnen met dubbele beglazing
Algemeen:
- Bouwjaar 1999
- Alarminstallatie
- Stroomvoorziening 3 x 25 Ampère
Bestemmingsplan
Het object valt binnen het bestemmingsplan van de Gemeente Geertruidenberg “Dombosch” met de bestemming “Bedrijventerrein’ en de functieaanduiding “bedrijf tot en met categorie 4.1“.
Vraagprijs: € 350.000,- k.k.
Oplevering: In overleg.
Deze informatieverstrekking geschiedt geheel vrijblijvend en onder voorbehoud van tussentijdse verhuur c.q. wijzigingen.
Voor nadere informatie en/ of een afspraak voor een bezichtiging kunt u te allen tijde contact opnemen.
Kenmerken
Overdracht
- Vraagprijs
- € 350.000 kosten koper
- Aangeboden sinds
-
- Status
- Beschikbaar
- Aanvaarding
- In overleg
Bouw
- Hoofdfunctie
- Bedrijfshal
- Soort bouw
- Bestaande bouw
- Bouwjaar
- 1999
Oppervlakten
- Oppervlakte
- 157 m² (in units vanaf 100 m²)
- Bedrijfshal oppervlak
- 100 m²
- Kantoor oppervlak
- 57 m²
- Vrije hoogte
- 4,9 m
- Vrije overspanning
- 14 m
Indeling
- Aantal bouwlagen
- 2 bouwlagen
- Voorzieningen
- Overheaddeuren, betonvloer, airconditioning en te openen ramen
Energie
- Energielabel
- Niet beschikbaar
Omgeving
- Ligging
- Bedrijventerrein
- Bereikbaarheid
- Bushalte op 1000 m tot 1500 m, busknooppunt op 1000 m tot 1500 m, metrohalte op 5000 m of meer, metroknooppunt op 5000 m of meer, NS Intercitystation op 5000 m of meer, snelwegafrit op 1000 m tot 1500 m, Tramhalte op 5000 m of meer en tramknooppunt op 5000 m of meer
- Lokale voorzieningen
- Bank op 5000 m of meer, ontspanning op 3000 m tot 4000 m, restaurant op 2000 m tot 3000 m en winkel op 2000 m tot 3000 m
Parkeergelegenheid
- Parkeerplaatsen
- 4 niet-overdekte parkeerplaatsen
Foto's