Keulseweg 31 5953 HE Reuver
€ 175.000 v.o.n.
Omschrijving
Onder de naam “De Poort van Offenbeek” worden op bedrijventerrein “Molenveld” te Reuver tien multifunctionele bedrijfsruimtes gerealiseerd. Oppervlaktes van de ruimtes variëren van 79 m² tot 121 m² en elke ruimte beschikt standaard over een entresol van ca. 32 m² tot 35 m² die indien gewenst uit te breiden is. De units zijn gelegen op een zichtlocatie nabij het spoor. Via de in de directe nabijheid gelegen A73 vindt ontsluiting plaats naar enerzijds Venlo en anderzijds Roermond. Het Noord-Limburgse Reuver grenst direct aan Duitsland waardoor dit grote achterland op slechts enkele kilometers bereikbaar is.
Locatie
Bedrijventerrein “Molenveld” is aan de rand van Reuver, nabij de Rijksweg, gelegen. Het betreft een gemengd bedrijventerrein waar voornamelijk industriële en zakelijke bedrijven gevestigd zijn. De Keulseweg is een locatie met een rijke historie dankzij de klei industrie van Offenbeek. Het aan de overzijde gelegen “Grescollege” houdt deze historie levendig. Het bedrijventerrein is zeer goed bereikbaar door de nabijgelegen Rijksweg en de op korte afstand gelegen autosnelweg A73. Daarnaast is het bedrijventerrein ook goed per openbaar vervoer bereikbaar. Het station en bushalte zijn op loopafstand gelegen.
Object
De bedrijfsruimtes worden opgebouwd uit metalen sandwichpanelen. Op de metalen dakliggers worden verzinkte zelfdragende geprofileerde metalen dakplaten vast geschoten die onderling op de lasnaden aan elkaar geschroefd worden. Bovenop de metalen dakplaten wordt een losliggend dampscherm uit PE-folie (0,20 mm dikte) geplaatst. Hierop wordt een isolatie uit PIR, dikte 140 mm, mechanisch bevestigd. Als waterdichting wordt een dak dichting uit PVC, dikte 1,5 mm geplaatst. Tussen de twee grote blokken en de kleinere blokken is een brandcompartimeringswand uit volle betonpanelen van 14 cm voorzien. Tussen de andere units worden de scheidingswanden eveneens uitgevoerd in volle betonpanelen van 14 cm. Alle bedrijfsruimtes worden van een betonvloer voorzien. Oplevering van de units vindt casco plaats.
Bedrijfsunits
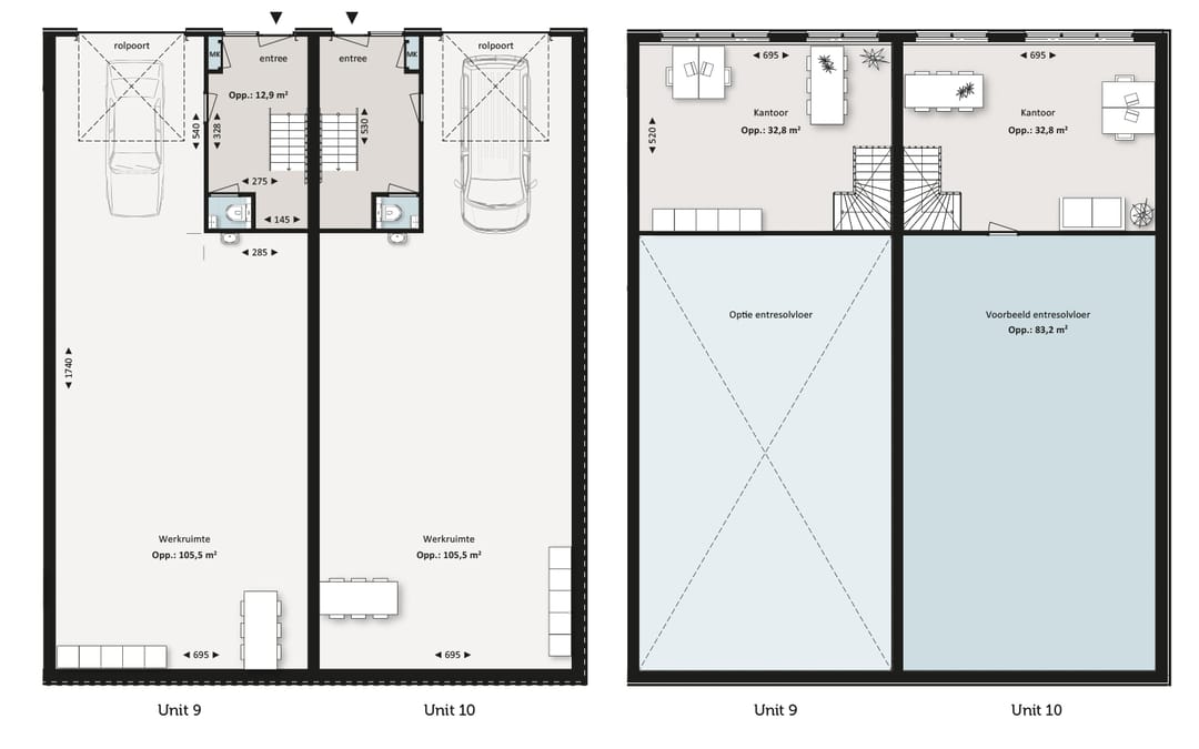
De tien bedrijfsunits variëren in oppervlakte van 79 m² tot 121 m² met elk een entresol van 32 m² tot 35 m² die indien gewenst uitbreidbaar is. Iedere unit is toegankelijk middels een elektrisch bedienbare sectionaal poort en beschikt over twee eigen parkeerplaatsen.
Bestemming
De bestemming ter plaatse is “bedrijventerrein”, conform het geldende bestemmingsplan “Bebouwde gebieden Beesel” zoals vastgesteld op 16 december 2019. Onder deze bestemming zijn de volgende activiteiten toegestaan: bedrijfsactiviteiten tot en met categorie 3.1. Voor meer informatie wordt verwezen naar het Omgevingsloket.
Informatie
Voor deze bedrijfsunits is een uitgebreide brochure, met prijslijst en inschrijfformulier, beschikbaar die op aanvraag wordt toegestuurd. Koopsom van de units vanaf € 175.000,- excl. BTW. Reacties zullen op volgorde van binnenkomst worden behandeld waarbij de uiteindelijke toewijzing door ontwikkelaar geschiedt.
Locatie
Bedrijventerrein “Molenveld” is aan de rand van Reuver, nabij de Rijksweg, gelegen. Het betreft een gemengd bedrijventerrein waar voornamelijk industriële en zakelijke bedrijven gevestigd zijn. De Keulseweg is een locatie met een rijke historie dankzij de klei industrie van Offenbeek. Het aan de overzijde gelegen “Grescollege” houdt deze historie levendig. Het bedrijventerrein is zeer goed bereikbaar door de nabijgelegen Rijksweg en de op korte afstand gelegen autosnelweg A73. Daarnaast is het bedrijventerrein ook goed per openbaar vervoer bereikbaar. Het station en bushalte zijn op loopafstand gelegen.
Object
De bedrijfsruimtes worden opgebouwd uit metalen sandwichpanelen. Op de metalen dakliggers worden verzinkte zelfdragende geprofileerde metalen dakplaten vast geschoten die onderling op de lasnaden aan elkaar geschroefd worden. Bovenop de metalen dakplaten wordt een losliggend dampscherm uit PE-folie (0,20 mm dikte) geplaatst. Hierop wordt een isolatie uit PIR, dikte 140 mm, mechanisch bevestigd. Als waterdichting wordt een dak dichting uit PVC, dikte 1,5 mm geplaatst. Tussen de twee grote blokken en de kleinere blokken is een brandcompartimeringswand uit volle betonpanelen van 14 cm voorzien. Tussen de andere units worden de scheidingswanden eveneens uitgevoerd in volle betonpanelen van 14 cm. Alle bedrijfsruimtes worden van een betonvloer voorzien. Oplevering van de units vindt casco plaats.
Bedrijfsunits
De tien bedrijfsunits variëren in oppervlakte van 79 m² tot 121 m² met elk een entresol van 32 m² tot 35 m² die indien gewenst uitbreidbaar is. Iedere unit is toegankelijk middels een elektrisch bedienbare sectionaal poort en beschikt over twee eigen parkeerplaatsen.
Bestemming
De bestemming ter plaatse is “bedrijventerrein”, conform het geldende bestemmingsplan “Bebouwde gebieden Beesel” zoals vastgesteld op 16 december 2019. Onder deze bestemming zijn de volgende activiteiten toegestaan: bedrijfsactiviteiten tot en met categorie 3.1. Voor meer informatie wordt verwezen naar het Omgevingsloket.
Informatie
Voor deze bedrijfsunits is een uitgebreide brochure, met prijslijst en inschrijfformulier, beschikbaar die op aanvraag wordt toegestuurd. Koopsom van de units vanaf € 175.000,- excl. BTW. Reacties zullen op volgorde van binnenkomst worden behandeld waarbij de uiteindelijke toewijzing door ontwikkelaar geschiedt.
Kenmerken
Overdracht
- Vraagprijs
- € 175.000 vrij op naam
- Aangeboden sinds
-
- Status
- Beschikbaar
- Aanvaarding
- In overleg
Bouw
- Hoofdfunctie
- Bedrijfshal
- Soort bouw
- Nieuwbouw
- Bouwjaar
- Na 2020
Oppervlakten
- Oppervlakte
- 153 m² (in units vanaf 111 m²)
- Bedrijfshal oppervlak
- 153 m²
- Perceel
- 2.300 m²
Indeling
- Voorzieningen
- Overheaddeuren en betonvloer
Energie
- Energielabel
- Niet beschikbaar
Omgeving
- Ligging
- Bedrijventerrein
Parkeergelegenheid
- Parkeerplaatsen
- 2 niet-overdekte parkeerplaatsen
Foto's