Omschrijving
Centraal in Roosendaal, tussen de wijk Hulsdonk en de gewilde woonwijk Tolberg, op kleinschalig bedrijventerrein “Vijfhuizenberg” gunstig gelegen, riante bedrijfswoning met grote multifunctionele, in units verdeelde, loods/bedrijfsruimte en grote tuin met zwembad.
ZEER ROYALE, LUXE, STIJLVOLLE WONING MET GROTE BEDRIJFSRUIMTE/LOODS!
AANLEUNWONING/MANTELZORG MOGELIJK!
Bouwjaar: circa 2004.
Perceelsoppervlakte: circa 1.095 m2.
Inhoud woonhuis: circa 1.050 m3.
Woonoppervlakte woonhuis: circa 247 m2.
Externe bergruimte: circa 185 m2.
Energielabel woonhuis: A+.
Energielabel loods: A++.
LIGGING CENTRAAL IN ROOSENDAAL OP KLEINSCHALIG BEDRIJVENTERREIN!
Het woonhuis is voorzien van zeer goede isolatie, HR++ dubbele beglazing, 56 zonnepanelen, koelen en verwarmen door airco’s (stroom via zonnepanelen) en dus zeer lage energiekosten. Verder is de gehele woning zeer degelijk gebouwd en zeer goed, uitermate compleet afgewerkt. De grote ruimte en de zeer praktische, unieke indeling bieden u dan ook zeer veel mogelijkheden voor bijzonder gebruik, zoals:
- Mantelzorg/aanleunwoning.
- Diverse mogelijkheden voor eventueel bijzondere hobby’s.
- Thuiswerkruimtes, kantoor, etc.
- Inwonende kinderen (toch zelfstandig).
ENERGIELABEL: A+ (woonhuis) en A++ (units)!
Indeling van het terrein en de gebouwen:
Perceel:
Entree via brede oprit naast de royale voortuin met aan de zijkant/achterkant van de woning royale parkeermogelijkheden en achter de woning een tuin met zwembad. De loods is goed bereikbaar vanuit de oprit/parkeermogelijkheden en de units aan de achterzijde zijn goed bereikbaar via een breed bestraat pad aan de achterzijde.
Woonhuis/semibungalow:
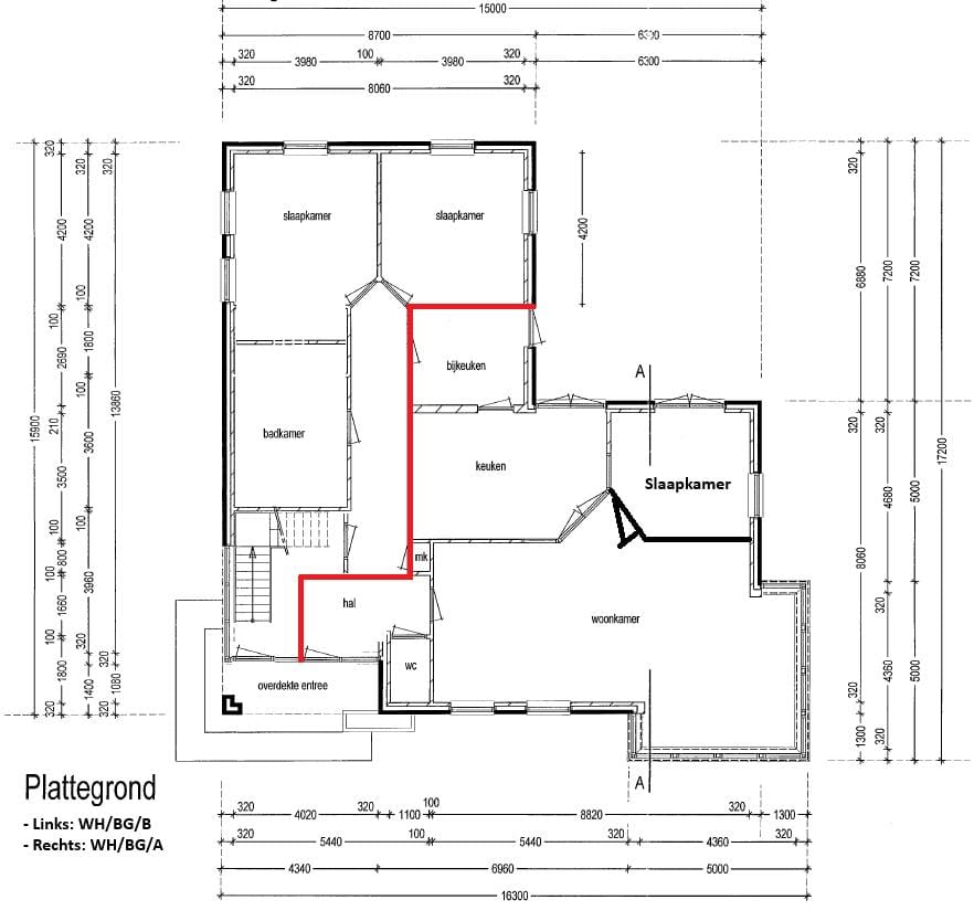
Entree via oprit en voortuin. Met twee aparte entrees naar de woning. De begane grond is momenteel ingedeeld als levensloopbestendige woning met aangrenzende aanleun-/mantelzorgwoning. U kunt de gehele begane grond ook eenvoudig als één geheel benutten, waardoor u echt een riante ruimte heeft. Daarnaast heeft u dan ook op de eerste verdieping nog vier compleet ingerichte kamers met elk een complete badkamer en suite.
Levensloopbestendige bungalow:
Indeling begane grond:
• Voorzien van vloerverwarming en vier airco’s (2025).
• Hal met meterkast.
• Toilet.
• Mooie woonkamer met erker.
• Royale woonkeuken voorzien van koelkast, diepvries, Boretti gasfornuis, afzuigkap, oven en vaatwasser. Vanuit de keuken heeft u een mooi zicht op de tuin aan de achterzijde.
• Slaapkamer I met eerste badkamer en suite.
• Bijkeuken met vaste kast en deur naar tweede gang.
• Gang met diverse vaste kasten. Bereikbaar via aparte entree ofwel via voornoemde bijkeuken.
• Tweede woonkamer/hobbykamer met open keuken voorzien van koel/vriescombinatie, inductiekookplaat, combimagnetron en afzuigkap.
• Slaapkamer II.
• Badkamer II.
• Verwarming door CV ketel.
• Royale tuin met zwembad.
Indeling eerste verdieping met vier mooie slaapkamers met elke een badkamer en suite:
• Aparte hal met trap naar eerste verdieping. Deze hal is zowel vanuit de gang (intern) toegankelijk als ook via een aparte, tweede voordeur.
• Overloop.
• Centrale keuken met twee magnetrons, twee inductiekookplaten, drie afzuigkappen en diverse voorraadkasten.
• Royale wasruimte met wasmachine, droger, WTW-unit en boiler.
Slaapkamer/kamer III:
• Voorzien van laminaatvloer.
• Woonkamer/slaapkamer.
• Kledingkast, airco (ook verwarmen) en koelkast.
• Badkamer voorzien van inloopdouche, wandcloset en vast wastafelmeubel.
Slaapkamer/kamer IV:
• Indeling en afwerking vergelijkbaar met voornoemde slaapkamer III.
Slaapkamer/kamer V:
• Indeling en afwerking vergelijkbaar met slaapkamer III, echter iets kleiner.
Slaapkamer/kamer VI:
• Indeling en afwerking vergelijkbaar met slaapkamer III, echter iets kleiner.
Achterliggende loods:
Deze loods is geheel, perfect geïsoleerd en voorzien van HR++ dubbele beglazing.
Totale vloeroppervlakte begane grond is circa 180 m2.
Deze luxe loods kan desgewenst ook (gedeeltelijk) in de huidige, bestaande units verhuurd worden, hetgeen uw woonlasten aanzienlijk kan verlagen.
Indeling loods begane grond:
• Loods/werk/opslagruimte bestaande uit twee garages met twee grote professionele overheaddeuren (momenteel in eigen gebruik).
Volledig ingerichte kantoorunit op de begane grond:
• Hal.
• Kamer I met open keuken voorzien van koel/vriescombinatie, inductiekookplaat, combimagnetron, vaatwasser en afzuigkap.
• Kamer II.
• Badkamer voorzien van inloopdouche, wandcloset, vast wastafelmeubel en designradiator.
• Buitenruimte/zitje.
Indeling verdieping boven begane grond loods:
Let op: Deze units mogen niet gebruikt/verhuurd worden als woonruimte, echter wel als kantoor/praktijk/bedrijfsruimte.
Bedrijfsunit 1 bestaande uit:
• Eigen hal/entree op begane grond
• Berging op begane grond (circa 4 m2).
Op verdieping:
• Portaal/hal.
• Toilet.
• Eerste kamer/kantoor/praktijkruimte.
• Open keuken voorzien van aanrecht, vaatwasser, koel/vriescombinatie en kookeiland met combimagnetron en inductiekookplaat.
• Vaste kast met mechanische ventilatie.
• Tweede kamer/kantoor/praktijkruimte met vaste kastenwand.
• Badkamer met inloopdouche en vast wastafelmeubel.
Bedrijfsunit 2:
• Bedrijfsunit vergelijkbaar met bedrijfsunit I, echter met mogelijkheid tot uitbreiding op de begane grond (opslag en/of één of twee garages). Thans in gebruik/verhuurd aan schoonheidssalon.
Bedrijfsunit 3:
• Bedrijfsunit vergelijkbaar met bedrijfsunit I, thans in gebruik/verhuurd aan kapsalon.
Bedrijfsunit 4:
Magazijn/opslagruimte met op begane grond een zeer sterk noodstroom aggregaat, die het gehele object (woonhuis/bungalow/loods/etc.) van stroom zou kunnen voorzien.
Belangrijke opmerking/disclaimer: alle bijgevoegde plattegronden/tekeningen zijn louter indicatief en kunnen mogelijk (iets) afwijken van de werkelijke situatie. Aan deze tekeningen kunnen dan ook geen rechten aan worden ontleend.
Toelichtingsclausule NEN2580:
De Meetinstructie is gebaseerd op de NEN2580 (maar wijkt hier wel enigszins vanaf). De Meetinstructie is bedoeld om een meer eenduidige manier van meten toe te passen voor het geven van een indicatie van de gebruiksoppervlakte. De Meetinstructie sluit verschillen in meetuitkomsten niet volledig uit, door bijvoorbeeld interpretatieverschillen, afrondingen of beperkingen bij het uitvoeren van de meting.
U kunt de meetinstructie nalezen via de website van de NVM: nvm.nl/wonen/kopen/meetinstructie/ of eventueel op te vragen via ons kantoor.
ZEER ROYALE, LUXE, STIJLVOLLE WONING MET GROTE BEDRIJFSRUIMTE/LOODS!
AANLEUNWONING/MANTELZORG MOGELIJK!
Bouwjaar: circa 2004.
Perceelsoppervlakte: circa 1.095 m2.
Inhoud woonhuis: circa 1.050 m3.
Woonoppervlakte woonhuis: circa 247 m2.
Externe bergruimte: circa 185 m2.
Energielabel woonhuis: A+.
Energielabel loods: A++.
LIGGING CENTRAAL IN ROOSENDAAL OP KLEINSCHALIG BEDRIJVENTERREIN!
Het woonhuis is voorzien van zeer goede isolatie, HR++ dubbele beglazing, 56 zonnepanelen, koelen en verwarmen door airco’s (stroom via zonnepanelen) en dus zeer lage energiekosten. Verder is de gehele woning zeer degelijk gebouwd en zeer goed, uitermate compleet afgewerkt. De grote ruimte en de zeer praktische, unieke indeling bieden u dan ook zeer veel mogelijkheden voor bijzonder gebruik, zoals:
- Mantelzorg/aanleunwoning.
- Diverse mogelijkheden voor eventueel bijzondere hobby’s.
- Thuiswerkruimtes, kantoor, etc.
- Inwonende kinderen (toch zelfstandig).
ENERGIELABEL: A+ (woonhuis) en A++ (units)!
Indeling van het terrein en de gebouwen:
Perceel:
Entree via brede oprit naast de royale voortuin met aan de zijkant/achterkant van de woning royale parkeermogelijkheden en achter de woning een tuin met zwembad. De loods is goed bereikbaar vanuit de oprit/parkeermogelijkheden en de units aan de achterzijde zijn goed bereikbaar via een breed bestraat pad aan de achterzijde.
Woonhuis/semibungalow:
Entree via oprit en voortuin. Met twee aparte entrees naar de woning. De begane grond is momenteel ingedeeld als levensloopbestendige woning met aangrenzende aanleun-/mantelzorgwoning. U kunt de gehele begane grond ook eenvoudig als één geheel benutten, waardoor u echt een riante ruimte heeft. Daarnaast heeft u dan ook op de eerste verdieping nog vier compleet ingerichte kamers met elk een complete badkamer en suite.
Levensloopbestendige bungalow:
Indeling begane grond:
• Voorzien van vloerverwarming en vier airco’s (2025).
• Hal met meterkast.
• Toilet.
• Mooie woonkamer met erker.
• Royale woonkeuken voorzien van koelkast, diepvries, Boretti gasfornuis, afzuigkap, oven en vaatwasser. Vanuit de keuken heeft u een mooi zicht op de tuin aan de achterzijde.
• Slaapkamer I met eerste badkamer en suite.
• Bijkeuken met vaste kast en deur naar tweede gang.
• Gang met diverse vaste kasten. Bereikbaar via aparte entree ofwel via voornoemde bijkeuken.
• Tweede woonkamer/hobbykamer met open keuken voorzien van koel/vriescombinatie, inductiekookplaat, combimagnetron en afzuigkap.
• Slaapkamer II.
• Badkamer II.
• Verwarming door CV ketel.
• Royale tuin met zwembad.
Indeling eerste verdieping met vier mooie slaapkamers met elke een badkamer en suite:
• Aparte hal met trap naar eerste verdieping. Deze hal is zowel vanuit de gang (intern) toegankelijk als ook via een aparte, tweede voordeur.
• Overloop.
• Centrale keuken met twee magnetrons, twee inductiekookplaten, drie afzuigkappen en diverse voorraadkasten.
• Royale wasruimte met wasmachine, droger, WTW-unit en boiler.
Slaapkamer/kamer III:
• Voorzien van laminaatvloer.
• Woonkamer/slaapkamer.
• Kledingkast, airco (ook verwarmen) en koelkast.
• Badkamer voorzien van inloopdouche, wandcloset en vast wastafelmeubel.
Slaapkamer/kamer IV:
• Indeling en afwerking vergelijkbaar met voornoemde slaapkamer III.
Slaapkamer/kamer V:
• Indeling en afwerking vergelijkbaar met slaapkamer III, echter iets kleiner.
Slaapkamer/kamer VI:
• Indeling en afwerking vergelijkbaar met slaapkamer III, echter iets kleiner.
Achterliggende loods:
Deze loods is geheel, perfect geïsoleerd en voorzien van HR++ dubbele beglazing.
Totale vloeroppervlakte begane grond is circa 180 m2.
Deze luxe loods kan desgewenst ook (gedeeltelijk) in de huidige, bestaande units verhuurd worden, hetgeen uw woonlasten aanzienlijk kan verlagen.
Indeling loods begane grond:
• Loods/werk/opslagruimte bestaande uit twee garages met twee grote professionele overheaddeuren (momenteel in eigen gebruik).
Volledig ingerichte kantoorunit op de begane grond:
• Hal.
• Kamer I met open keuken voorzien van koel/vriescombinatie, inductiekookplaat, combimagnetron, vaatwasser en afzuigkap.
• Kamer II.
• Badkamer voorzien van inloopdouche, wandcloset, vast wastafelmeubel en designradiator.
• Buitenruimte/zitje.
Indeling verdieping boven begane grond loods:
Let op: Deze units mogen niet gebruikt/verhuurd worden als woonruimte, echter wel als kantoor/praktijk/bedrijfsruimte.
Bedrijfsunit 1 bestaande uit:
• Eigen hal/entree op begane grond
• Berging op begane grond (circa 4 m2).
Op verdieping:
• Portaal/hal.
• Toilet.
• Eerste kamer/kantoor/praktijkruimte.
• Open keuken voorzien van aanrecht, vaatwasser, koel/vriescombinatie en kookeiland met combimagnetron en inductiekookplaat.
• Vaste kast met mechanische ventilatie.
• Tweede kamer/kantoor/praktijkruimte met vaste kastenwand.
• Badkamer met inloopdouche en vast wastafelmeubel.
Bedrijfsunit 2:
• Bedrijfsunit vergelijkbaar met bedrijfsunit I, echter met mogelijkheid tot uitbreiding op de begane grond (opslag en/of één of twee garages). Thans in gebruik/verhuurd aan schoonheidssalon.
Bedrijfsunit 3:
• Bedrijfsunit vergelijkbaar met bedrijfsunit I, thans in gebruik/verhuurd aan kapsalon.
Bedrijfsunit 4:
Magazijn/opslagruimte met op begane grond een zeer sterk noodstroom aggregaat, die het gehele object (woonhuis/bungalow/loods/etc.) van stroom zou kunnen voorzien.
Belangrijke opmerking/disclaimer: alle bijgevoegde plattegronden/tekeningen zijn louter indicatief en kunnen mogelijk (iets) afwijken van de werkelijke situatie. Aan deze tekeningen kunnen dan ook geen rechten aan worden ontleend.
Toelichtingsclausule NEN2580:
De Meetinstructie is gebaseerd op de NEN2580 (maar wijkt hier wel enigszins vanaf). De Meetinstructie is bedoeld om een meer eenduidige manier van meten toe te passen voor het geven van een indicatie van de gebruiksoppervlakte. De Meetinstructie sluit verschillen in meetuitkomsten niet volledig uit, door bijvoorbeeld interpretatieverschillen, afrondingen of beperkingen bij het uitvoeren van de meting.
U kunt de meetinstructie nalezen via de website van de NVM: nvm.nl/wonen/kopen/meetinstructie/ of eventueel op te vragen via ons kantoor.
Kaart
Kaart laden...
Kadastrale grens
Bebouwing
Reistijd
Krijg inzicht in de bereikbaarheid van dit object vanuit bijvoorbeeld een openbaar vervoer station of vanuit een adres.