Klerkenveld 9 4704 SV Roosendaal
€ 1.095 /mnd
Omschrijving
Bent u op zoek naar een zeer nette, energiezuinige (label A++) en tot in de puntjes zelfstandig afgewerkte kantoorruimte met 2 eigen parkeerplaatsen? Dan is deze volledig gelijkvloerse bedrijfsruimte van ca 85 m² V.V.O., gelegen op een geliefde locatie, wellicht iets voor u.
De zelfstandige bedrijfsruimte maakt onderdeel uit van het bedrijfsverzamelgebouw Business Center Borchwerf 2, gerealiseerd in 2012. De bedrijfsruimte is in de huidige vorm opgedeeld in 3 separate moderne en multifunctionele units van circa 43 m² V.V.O., 9,5 m² V.V.O. en 18 m² V.V.O., allen praktisch gelegen op de begane grond. Het object is strategisch gelegen op een centrale locatie binnen bedrijventerrein Borchwerf II, met directe aansluiting op de A17 – de belangrijke snelwegverbinding tussen Antwerpen/Vlissingen en Rotterdam/Utrecht.
Verder kenmerkt de bedrijfsunit zich met een gezamenlijke entree, separate toiletruimte en nette en frisse pantry. De voorzijde is voorzien van een grote pui waardoor een grote hoeveelheid lichtinval aanwezig is.
De garage is momenteel ingericht als bedrijfsruimte, maar kan desgewenst eenvoudig worden teruggebracht naar de oorspronkelijke staat als garage/opslagplaats (circa 32 m² V.V.O.). De gehele unit is keurig afgewerkt en gestoffeerd.
Huurprijs: € 1.095,- per maand exclusief BTW en servicekosten
Servicekosten: € 50,- per maand.
Water en licht: voorschot € 50,- per maand.
Bouwjaar : 2012
VVO totaal: ca 85 m²
BVO totaal: ca 103 m²
Energielabel: A++
Gemeente: Roosendaal en Nispen
Sectie : B
Nummer : 7809
Appartementenindex : A98
Indeling:
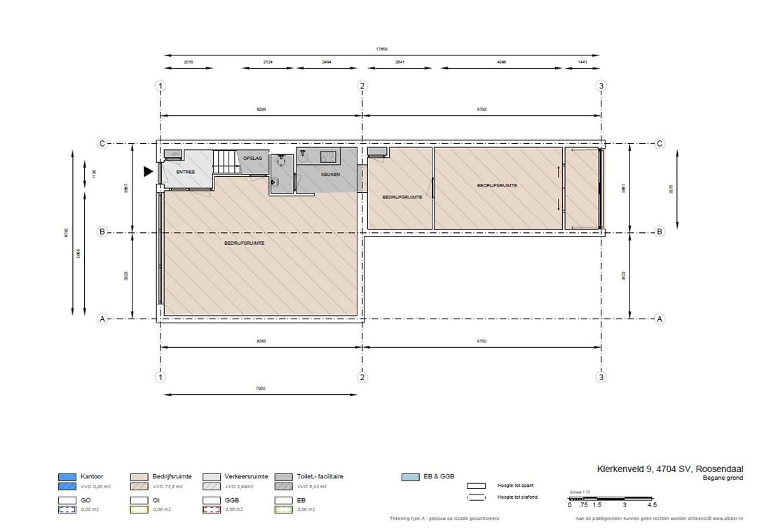
Via de gezamenlijke entree, voorzien van een meterkast, is de exclusieve bedrijfsruimte op de begane grond te bereiken. De totale verhuurbare vloeroppervlakte van deze bedrijfsruimte bedraagt ca 85 m². De kantoorruimte aan de voorzijde (ca 43 m²) is praktisch ingericht en de aan de voorzijde aanwezige pui is voorzien van royale raampartijen die zorgen voor veel natuurlijk lichtinval.
De moderne en frisse pantry, bestaande uit een rechte opstelling, voorzien van aanrecht met bovenkasten, koelkast, close-in-boiler en spoelbak, is een praktische toevoeging aan het geheel. Het toilet is tevens netjes afgewerkt en is gesitueerd in de aangrenzende ruimte naast de pantry.
Achter het kantoor bevindt zich een volledig afgewerkte ruimte die is gerealiseerd in de voormalige garage. Deze is opgedeeld in twee afzonderlijke ruimtes (ca. 9,5 m² en 18 m²) en biedt directe toegang tot de binnenplaats van het garageplein via een schuifpui, welke afsluitbaar is met de bestaande garagedeur. Hierdoor kunnen de voor- en achtergelegen ruimtes desgewenst eenvoudig door aparte gebruikers worden benut. Indien gewenst kan deze achtergelegen ruimte ook worden teruggebracht in de oorspronkelijke staat als garage.
De unit is volledig afgewerkt en instapklaar, voorzien van een nette PVC-vloer, gestucte wanden gecombineerd met steigerhout elementen, alsmede systeemplafonds met geïntegreerde verlichtingsarmaturen. Verwarming en koeling vinden plaats via topunits.
Buitenterrein/parkeren
Het terrein is volledig verhard. De parkeerplaatsen bevinden zich direct aan de voorzijde van het pand. Twee toegewezen parkeerplaatsen behoren tot het gehuurde en zijn bij de huur inbegrepen.
Overige bijzonderheden:
- Hoogwaardig afgewerkte en volledig geïsoleerde bedrijfsruimte.
- Twee parkeerplaatsen voor eigen gebruik.
- Gezamenlijk gebruik van de entree met het bedrijf op de eerste verdieping.
- Beschikbaarheid: per direct, huurperiode in overleg.
- Bestemming: Bedrijventerrein - 2, in gebruik als kantoor/bedrijfsruimte en als zodanig geschikt.
- De voor 'Bedrijventerrein - 2' aangewezen gronden zijn in dit specifieke geval bestemd voor (1) industriële en ambachtelijke bedrijven voor zover deze voorkomen in categorie 3.1 en 3.2 van de Staat van Bedrijfsactiviteiten alsmede groothandelsbedrijven en (2) zelfstandige kantoren.
- Gezamenlijke extern toiletgebouw, bereikbaar vanaf garageplein
- BTW belaste verhuur.
- Zekerheidstelling: Bankgarantie ter grootte van een kwartaalverplichting.
- Huurovereenkomst kantoorruimte: Model ROZ (Raad voor Onroerende Zaken).
- Indexering: Jaarlijks op basis van een wijziging van de maandelijkse prijsindexcijfers volgende de consumentenprijsindex gepubliceerd door het Centraal Bureau voor de Statistiek (CBS).
- BTW: Alle in deze informatie genoemde bedragen zijn, tenzij uitdrukkelijk anders vermeld, exclusief BTW.
- Voorts is er in deze informatie van uitgegaan dat de prestaties van huurder voor meer dan 90% in de BTW belaste sfeer plaatsvinden.
De zelfstandige bedrijfsruimte maakt onderdeel uit van het bedrijfsverzamelgebouw Business Center Borchwerf 2, gerealiseerd in 2012. De bedrijfsruimte is in de huidige vorm opgedeeld in 3 separate moderne en multifunctionele units van circa 43 m² V.V.O., 9,5 m² V.V.O. en 18 m² V.V.O., allen praktisch gelegen op de begane grond. Het object is strategisch gelegen op een centrale locatie binnen bedrijventerrein Borchwerf II, met directe aansluiting op de A17 – de belangrijke snelwegverbinding tussen Antwerpen/Vlissingen en Rotterdam/Utrecht.
Verder kenmerkt de bedrijfsunit zich met een gezamenlijke entree, separate toiletruimte en nette en frisse pantry. De voorzijde is voorzien van een grote pui waardoor een grote hoeveelheid lichtinval aanwezig is.
De garage is momenteel ingericht als bedrijfsruimte, maar kan desgewenst eenvoudig worden teruggebracht naar de oorspronkelijke staat als garage/opslagplaats (circa 32 m² V.V.O.). De gehele unit is keurig afgewerkt en gestoffeerd.
Huurprijs: € 1.095,- per maand exclusief BTW en servicekosten
Servicekosten: € 50,- per maand.
Water en licht: voorschot € 50,- per maand.
Bouwjaar : 2012
VVO totaal: ca 85 m²
BVO totaal: ca 103 m²
Energielabel: A++
Gemeente: Roosendaal en Nispen
Sectie : B
Nummer : 7809
Appartementenindex : A98
Indeling:
Via de gezamenlijke entree, voorzien van een meterkast, is de exclusieve bedrijfsruimte op de begane grond te bereiken. De totale verhuurbare vloeroppervlakte van deze bedrijfsruimte bedraagt ca 85 m². De kantoorruimte aan de voorzijde (ca 43 m²) is praktisch ingericht en de aan de voorzijde aanwezige pui is voorzien van royale raampartijen die zorgen voor veel natuurlijk lichtinval.
De moderne en frisse pantry, bestaande uit een rechte opstelling, voorzien van aanrecht met bovenkasten, koelkast, close-in-boiler en spoelbak, is een praktische toevoeging aan het geheel. Het toilet is tevens netjes afgewerkt en is gesitueerd in de aangrenzende ruimte naast de pantry.
Achter het kantoor bevindt zich een volledig afgewerkte ruimte die is gerealiseerd in de voormalige garage. Deze is opgedeeld in twee afzonderlijke ruimtes (ca. 9,5 m² en 18 m²) en biedt directe toegang tot de binnenplaats van het garageplein via een schuifpui, welke afsluitbaar is met de bestaande garagedeur. Hierdoor kunnen de voor- en achtergelegen ruimtes desgewenst eenvoudig door aparte gebruikers worden benut. Indien gewenst kan deze achtergelegen ruimte ook worden teruggebracht in de oorspronkelijke staat als garage.
De unit is volledig afgewerkt en instapklaar, voorzien van een nette PVC-vloer, gestucte wanden gecombineerd met steigerhout elementen, alsmede systeemplafonds met geïntegreerde verlichtingsarmaturen. Verwarming en koeling vinden plaats via topunits.
Buitenterrein/parkeren
Het terrein is volledig verhard. De parkeerplaatsen bevinden zich direct aan de voorzijde van het pand. Twee toegewezen parkeerplaatsen behoren tot het gehuurde en zijn bij de huur inbegrepen.
Overige bijzonderheden:
- Hoogwaardig afgewerkte en volledig geïsoleerde bedrijfsruimte.
- Twee parkeerplaatsen voor eigen gebruik.
- Gezamenlijk gebruik van de entree met het bedrijf op de eerste verdieping.
- Beschikbaarheid: per direct, huurperiode in overleg.
- Bestemming: Bedrijventerrein - 2, in gebruik als kantoor/bedrijfsruimte en als zodanig geschikt.
- De voor 'Bedrijventerrein - 2' aangewezen gronden zijn in dit specifieke geval bestemd voor (1) industriële en ambachtelijke bedrijven voor zover deze voorkomen in categorie 3.1 en 3.2 van de Staat van Bedrijfsactiviteiten alsmede groothandelsbedrijven en (2) zelfstandige kantoren.
- Gezamenlijke extern toiletgebouw, bereikbaar vanaf garageplein
- BTW belaste verhuur.
- Zekerheidstelling: Bankgarantie ter grootte van een kwartaalverplichting.
- Huurovereenkomst kantoorruimte: Model ROZ (Raad voor Onroerende Zaken).
- Indexering: Jaarlijks op basis van een wijziging van de maandelijkse prijsindexcijfers volgende de consumentenprijsindex gepubliceerd door het Centraal Bureau voor de Statistiek (CBS).
- BTW: Alle in deze informatie genoemde bedragen zijn, tenzij uitdrukkelijk anders vermeld, exclusief BTW.
- Voorts is er in deze informatie van uitgegaan dat de prestaties van huurder voor meer dan 90% in de BTW belaste sfeer plaatsvinden.
Kenmerken
Overdracht
- Huurprijs
- € 1.095 per maand
- Servicekosten
- € 100 per maand (21% BTW van toepassing)
- Aangeboden sinds
-
- Status
- Beschikbaar
- Aanvaarding
- Per direct beschikbaar
Bouw
- Hoofdfunctie
- Bedrijfshal
- Soort bouw
- Bestaande bouw
- Bouwjaar
- 2012
Oppervlakten
- Oppervlakte
- 85 m² (in units vanaf 10 m²)
- Bedrijfshal oppervlak
- 28 m²
- Kantoor oppervlak
- 57 m²
- Vrije hoogte
- 2,5 m
- Vrije overspanning
- 4 m
- Draagvermogen
- 250 kg/m²
Indeling
- Aantal bouwlagen
- 1 bouwlaag
- Voorzieningen
- Airconditioning, topkoeling, lichtstraten, betonvloer, toilet, pantry, inbouwarmaturen en te openen ramen
Energie
- Energielabel
- A++
Omgeving
- Ligging
- Bedrijventerrein, kantorenpark en landelijk gebied
- Bereikbaarheid
- Bushalte op minder dan 500 m, NS Intercitystation op 1000 m tot 1500 m en snelwegafrit op 500 m tot 1000 m
Parkeergelegenheid
- Parkeerplaatsen
- 2 niet-overdekte parkeerplaatsen
Foto's
Plattegrond
Begane Grond