Vlaardingweg 63-65 3044 CJ Rotterdam
Huurprijs op aanvraag
Omschrijving
CROSS-DOCK WAREHOUSE OP TOPLOCATIE
Hoogwaardig gerenoveerd cross-dock warehouse, in combinatie met de ligging ideaal als 'last-mile' locatie. Circa 6.380 m² bedrijfsruimte, circa 885 m² kantoorruimte en 63 parkeerplaatsen op eigen afgesloten terrein, gelegen aan de Vlaardingweg 63-65 te Rotterdam Spaanse Polder.
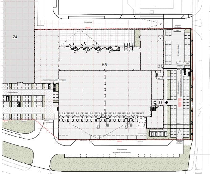
Het gebouw is uitgerust met 6 docks voor vrachtwagens (uit te breiden naar 9) en 17 docks voor bakwagens en hiermee uitermate geschikt voor cross-dock activiteiten.
Momenteel ondergaat het gebouw een grondige renovatie/modernisering, waarbij naast esthetica wordt gefocust op de functionaliteit en duurzaamheidsaspecten. Na realisatie betreft het een all-electric bedrijfscomplex met een BREEAM in-use ‘Very Good’ certificaat.
Verder is er een bijzonder grote hoeveelheid stroom beschikbaar! Er is een gecontracteerd transportvermogen van 212 kW en op het dak ligt voor 256 kWp aan PV-panelen.
LOCATIE
Het gebouw is gelegen op het bedrijventerrein Spaanse Polder. De Spaanse Polder is gelegen aan de rand van de stad, net buiten de ZE-zone en op minder dan 10 minuten rijden van Rotterdam The Hague Airport. Via de Matlingeweg is er een directe verbinding met de A13 van en naar Den Haag en de A20 (ring Rotterdam).
Het bedrijventerrein Spaanse Polder is voorts goed bereikbaar met het openbaar vervoer door busverbindingen van en naar Rotterdam CS, OV-knooppunt Marconiplein (metro en tram) tevens is het NS-treinstation Schiedam Rotterdam-West op loopafstand bereikbaar.
De Spaanse Polder wordt aan de noordzijde ontsloten door een directe aansluiting op de A13, de rijksweg van Rotterdam naar Den Haag. Aan de zuidzijde is een uitstekende verbinding met rijksweg A20. De toekomstige directe verbinding van de A13 en de A16 – die in 2025 in gebruik genomen wordt - zal de verkeerssituatie verder verbeteren.
De korte afstand tot het centrum van Rotterdam en de directe toegang tot diverse uitvalswegen maakt deze locatie bijzonder geschikt voor o.a. last-mile distributie. Met slechts 10 minuten rijden per auto of fiets bereikt u het hart van de stad. Dit strategische voordeel maakt een snelle en efficiënte service mogelijk voor de meer dan 664.000 inwoners van de stad.
BESCHIKBAARHEID
Vlaardingweg 63-65
Bedrijfsruimte: 6.380 m²
Kantoorruimte: 885 m²
Parkeren: 63 plaatsen
Tevens behoort het tot de mogelijkheden om (aaneengesloten) Schuttevaerweg 22 en 24 te huren:
Schuttevaerweg 22:
Bedrijfsruimte: 3.915 m²
Kantoorruimte: 795 m²
Parkeren: 47 plaatsen
Schuttevaerweg 24:
Bedrijfsruimte: 3.630 m²
Kantoorruimte: 720 m²
Parkeren: 44 plaatsen
Het totale complex aan de Schuttevaerweg / Vlaardingweg bestaat uit:
Schuttevaerweg 22-24 + Vlaardingweg 63-65
Bedrijfsruimte: 13.925 m²
Kantoorruimte: 2.400 m²
Parkeren: 154 plaatsen
OPLEVERINGSNIVEAU EN RENOVATIE WERKZAAMHEDEN
Vlaardingweg 63-65
• Vrije hoogte (onderkant spant): 6,25 m1;
• Vloerbelasting variërend (zie plattegrond op pagina 9);
• Volledig LED-verlichting;
• Gerenoveerde kantoorruimte inclusief pantry’s en sanitaire voorzieningen;
• 17 docks voor bakwagens;
• 6 docks voor trailers (er is uitbreidingsmogelijkheid naar 9);
• 4 overheaddeuren op maaiveld;
• PV-panelen inbegrepen: 255,75 kWp (verwachte opbrengst ca. 222.000 kWh per jaar*);
• Gecontracteerd transportvermogen: 212 kW.
*De verwachte opbrengst is van vele factoren afhankelijk en wordt niet gegarandeerd.
Renovatiewerkzaamheden
het complex wordt op grootschalig niveau gerenoveerd en omvat onder andere de volgende aspecten:
Algemene renovaties:
• Renoveren van de kantoorruimte incl. sanitaire ruimtes en pantry’s;
• Upgraden van het buitenterrein, waar mogelijk voorzien van hekwerk en elektrische poorten;
• Plaatsen nieuwe fietsenrekken met elektrische laadpunten;
• Aanleg groenvoorziening;
• Terrein voorzien van nieuwe LED armaturen.
Duurzaamheidsverbeteringen
• 10 EV oplaadstations
• Volledige bedrijfscomplex wordt voorzien van nieuwe LED verlichting;
• HR++ dubbele beglazing;
• Na renovatie volledig elektrisch gebouw.
Deze werkzaamheden zijn meer in detail toegelicht in de renovatiestukken van Bronsvoort Blaak architecten, welke op aanvraag beschikbaar zijn.
HUURUITGANGSPUNTEN
HUURBETALING
Per kwartaal vooruit.
HUURINDEXERING
Jaarlijks, voor het eerst 1 (één) jaar na huuringangsdatum, op basis van het maandprijsindexcijfer volgens de consumentenprijsindex CPI reeks CPI alle huishoudens (2015=100, dan wel meest recente tijdsbasis), gepubliceerd door het CBS.
HUUROVEREENKOMST
Huurovereenkomst is gebaseerd op ROZ model 2015.
ZEKERHEIDSSTELLING
Bankgarantie of waarborgsom ter grootte van tenminste drie maanden huur inclusief servicekosten en BTW.
BTW
Verhuurder wenst te opteren voor BTW-belaste huur en verhuur. Ingeval huurder de BTW niet kan verrekenen, zal de huurprijs in overleg met huurder worden verhoogd ter compensatie van de gevolgen van het vervallen van de mogelijkheid om te opteren voor BTW-belaste huur.
HUURPRIJS
Op aanvraag.
SERVICEKOSTEN
Nader te bepalen.
HUURINGANGSDATUM
In overleg.
HUURTERMIJN
5 jaar met verlengingsperioden van telkens 5 jaar. De opzegtermijn bedraagt 12 maanden.
Hoogwaardig gerenoveerd cross-dock warehouse, in combinatie met de ligging ideaal als 'last-mile' locatie. Circa 6.380 m² bedrijfsruimte, circa 885 m² kantoorruimte en 63 parkeerplaatsen op eigen afgesloten terrein, gelegen aan de Vlaardingweg 63-65 te Rotterdam Spaanse Polder.
Het gebouw is uitgerust met 6 docks voor vrachtwagens (uit te breiden naar 9) en 17 docks voor bakwagens en hiermee uitermate geschikt voor cross-dock activiteiten.
Momenteel ondergaat het gebouw een grondige renovatie/modernisering, waarbij naast esthetica wordt gefocust op de functionaliteit en duurzaamheidsaspecten. Na realisatie betreft het een all-electric bedrijfscomplex met een BREEAM in-use ‘Very Good’ certificaat.
Verder is er een bijzonder grote hoeveelheid stroom beschikbaar! Er is een gecontracteerd transportvermogen van 212 kW en op het dak ligt voor 256 kWp aan PV-panelen.
LOCATIE
Het gebouw is gelegen op het bedrijventerrein Spaanse Polder. De Spaanse Polder is gelegen aan de rand van de stad, net buiten de ZE-zone en op minder dan 10 minuten rijden van Rotterdam The Hague Airport. Via de Matlingeweg is er een directe verbinding met de A13 van en naar Den Haag en de A20 (ring Rotterdam).
Het bedrijventerrein Spaanse Polder is voorts goed bereikbaar met het openbaar vervoer door busverbindingen van en naar Rotterdam CS, OV-knooppunt Marconiplein (metro en tram) tevens is het NS-treinstation Schiedam Rotterdam-West op loopafstand bereikbaar.
De Spaanse Polder wordt aan de noordzijde ontsloten door een directe aansluiting op de A13, de rijksweg van Rotterdam naar Den Haag. Aan de zuidzijde is een uitstekende verbinding met rijksweg A20. De toekomstige directe verbinding van de A13 en de A16 – die in 2025 in gebruik genomen wordt - zal de verkeerssituatie verder verbeteren.
De korte afstand tot het centrum van Rotterdam en de directe toegang tot diverse uitvalswegen maakt deze locatie bijzonder geschikt voor o.a. last-mile distributie. Met slechts 10 minuten rijden per auto of fiets bereikt u het hart van de stad. Dit strategische voordeel maakt een snelle en efficiënte service mogelijk voor de meer dan 664.000 inwoners van de stad.
BESCHIKBAARHEID
Vlaardingweg 63-65
Bedrijfsruimte: 6.380 m²
Kantoorruimte: 885 m²
Parkeren: 63 plaatsen
Tevens behoort het tot de mogelijkheden om (aaneengesloten) Schuttevaerweg 22 en 24 te huren:
Schuttevaerweg 22:
Bedrijfsruimte: 3.915 m²
Kantoorruimte: 795 m²
Parkeren: 47 plaatsen
Schuttevaerweg 24:
Bedrijfsruimte: 3.630 m²
Kantoorruimte: 720 m²
Parkeren: 44 plaatsen
Het totale complex aan de Schuttevaerweg / Vlaardingweg bestaat uit:
Schuttevaerweg 22-24 + Vlaardingweg 63-65
Bedrijfsruimte: 13.925 m²
Kantoorruimte: 2.400 m²
Parkeren: 154 plaatsen
OPLEVERINGSNIVEAU EN RENOVATIE WERKZAAMHEDEN
Vlaardingweg 63-65
• Vrije hoogte (onderkant spant): 6,25 m1;
• Vloerbelasting variërend (zie plattegrond op pagina 9);
• Volledig LED-verlichting;
• Gerenoveerde kantoorruimte inclusief pantry’s en sanitaire voorzieningen;
• 17 docks voor bakwagens;
• 6 docks voor trailers (er is uitbreidingsmogelijkheid naar 9);
• 4 overheaddeuren op maaiveld;
• PV-panelen inbegrepen: 255,75 kWp (verwachte opbrengst ca. 222.000 kWh per jaar*);
• Gecontracteerd transportvermogen: 212 kW.
*De verwachte opbrengst is van vele factoren afhankelijk en wordt niet gegarandeerd.
Renovatiewerkzaamheden
het complex wordt op grootschalig niveau gerenoveerd en omvat onder andere de volgende aspecten:
Algemene renovaties:
• Renoveren van de kantoorruimte incl. sanitaire ruimtes en pantry’s;
• Upgraden van het buitenterrein, waar mogelijk voorzien van hekwerk en elektrische poorten;
• Plaatsen nieuwe fietsenrekken met elektrische laadpunten;
• Aanleg groenvoorziening;
• Terrein voorzien van nieuwe LED armaturen.
Duurzaamheidsverbeteringen
• 10 EV oplaadstations
• Volledige bedrijfscomplex wordt voorzien van nieuwe LED verlichting;
• HR++ dubbele beglazing;
• Na renovatie volledig elektrisch gebouw.
Deze werkzaamheden zijn meer in detail toegelicht in de renovatiestukken van Bronsvoort Blaak architecten, welke op aanvraag beschikbaar zijn.
HUURUITGANGSPUNTEN
HUURBETALING
Per kwartaal vooruit.
HUURINDEXERING
Jaarlijks, voor het eerst 1 (één) jaar na huuringangsdatum, op basis van het maandprijsindexcijfer volgens de consumentenprijsindex CPI reeks CPI alle huishoudens (2015=100, dan wel meest recente tijdsbasis), gepubliceerd door het CBS.
HUUROVEREENKOMST
Huurovereenkomst is gebaseerd op ROZ model 2015.
ZEKERHEIDSSTELLING
Bankgarantie of waarborgsom ter grootte van tenminste drie maanden huur inclusief servicekosten en BTW.
BTW
Verhuurder wenst te opteren voor BTW-belaste huur en verhuur. Ingeval huurder de BTW niet kan verrekenen, zal de huurprijs in overleg met huurder worden verhoogd ter compensatie van de gevolgen van het vervallen van de mogelijkheid om te opteren voor BTW-belaste huur.
HUURPRIJS
Op aanvraag.
SERVICEKOSTEN
Nader te bepalen.
HUURINGANGSDATUM
In overleg.
HUURTERMIJN
5 jaar met verlengingsperioden van telkens 5 jaar. De opzegtermijn bedraagt 12 maanden.
Kenmerken
Overdracht
- Huurprijs
- Huurprijs op aanvraag
- Aangeboden sinds
-
- Status
- Beschikbaar
- Aanvaarding
- In overleg
Bouw
- Hoofdfunctie
- Bedrijfshal
- Soort bouw
- Bestaande bouw
- Bouwperiode
- 1971-1980
Oppervlakten
- Oppervlakte
- 16.325 m² (in units vanaf 6.380 m²)
- Bedrijfshal oppervlak
- 13.925 m²
- Kantoor oppervlak
- 2.400 m²
- Vrije hoogte
- 6,3 m
Indeling
- Aantal bouwlagen
- 2 bouwlagen
- Voorzieningen
- Lichtstraten, loading docks, overheaddeuren en betonvloer
Energie
- Energielabel
- Niet beschikbaar
Omgeving
- Ligging
- Bedrijventerrein
Foto's