Vlambloem 160 3068 JE Rotterdam
€ 299.000 v.o.n.
Omschrijving
LAATSTE 3 UNITS BESCHIKBAAR!
Betreft
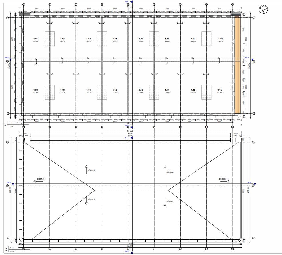
Op een strategische locatie in Rotterdam worden hoogwaardige nieuwbouw bedrijfsunits gerealiseerd. De units worden casco opgeleverd en zijn flexibel in te delen, in afmeting variërend vanaf circa 120 m² bruto vloeroppervlak. De prijs van een unit van 120 m² begint vanaf € 299.000,- V.O.N. De nieuwe erfpacht regeling is van toepassing en het erfpachtrecht is eeuwigdurend afgekocht.
Locatie
De ontwikkeling vindt plaats op een goed bereikbare locatie in Rotterdam, met directe verbindingen naar de A16 en A20. Dit maakt de bedrijfsunits ideaal voor bedrijven die zichtbaarheid en logistieke bereikbaarheid belangrijk vinden. De ligging in een van Europa’s belangrijkste handelssteden versterkt de investeringspotentie en aantrekkelijkheid voor gebruikers.
Start bouw/oplevering
Start bouw staat gepland voor het 1e kwartaal van 2026. De oplevering staat gepland voor het 4e kwartaal van 2026.
Indeling/koopsom/beschikbaarheid
Unit 3 t/m 5 - Tussenunits
Begane grond 60 m²
Verdieping 63 m²
Koopsom € 299.000 V.O.N. excl. BTW.
Opleveringsniveau
Buitenzijde
• De units hebben een constructie van kalkzandsteen en staal, ook de unitscheidende wanden zijn van kalkzandsteen. De gevels worden afgewerkt met sandwichpanelen met een hoge isolatiewaarde;
• Elektrische overheaddeur (ca. 3,0 x 3,4 meter) met vergrendeling en ventilatierooster;
• Separate entreedeur;
• Dakconstructie voorbereid op zonnepanelen;
• Hoogwaardige isolatie voor energie-efficiëntie;
• Hemelwaterafvoer voor gecontroleerde afwatering.
Binnenzijde
• De begane grondvloer wordt monoliet afgewerkt en heeft een vloerbelasting van circa 1.000 kg/m²;
• De verdiepingsvloer bestaat uit beton, afgewerkt met een cementdekvloer en is berekend op een vloerbelasting van circa 300 kg/m² ;
• De riolering is aangesloten op het gemeentelijke netwerk;
• De meterkast op de begane grond is uitgerust met 220V, 3x25 ampère (er is ruimte voor uitbreiding van elektrische installaties);
• Eigen aansluitingen voor water en elektriciteit in meterkast;
• De unitscheidende wanden zijn van kalkzandsteen;
• De units worden ontwikkeld volgens de geldende brandveiligheidseisen van de gemeentelijke brandweer. Iedere unit vormt daarbij een eigen brandcompartiment;
• Houten trap en optioneel voorzien van hekwerk naar de verdieping.
Parkeren
Bij elke unit hoort voldoende parkeergelegenheid op het buitenterrein. Dit terrein wordt volledig bestraat en voorzien van riolering.
Algemeen
Ondanks de zorg en aandacht die wordt besteed aan de samenstelling van deze projectinformatie en de hierin opgenomen gegevens, kan Goud Bedrijfshuisvesting niet instaan voor de volledigheid, juistheid of voortdurende actualiteit van de gegevens en wijst iedere vorm van aansprakelijkheid van de hand voor onvolkomenheden, onvolledigheden, dan wel onjuistheden in de weergegeven informatie. Nadrukkelijk is vermeld dat deze informatie niet als een aanbieding of offerte mag worden beschouwd.
Betreft
Op een strategische locatie in Rotterdam worden hoogwaardige nieuwbouw bedrijfsunits gerealiseerd. De units worden casco opgeleverd en zijn flexibel in te delen, in afmeting variërend vanaf circa 120 m² bruto vloeroppervlak. De prijs van een unit van 120 m² begint vanaf € 299.000,- V.O.N. De nieuwe erfpacht regeling is van toepassing en het erfpachtrecht is eeuwigdurend afgekocht.
Locatie
De ontwikkeling vindt plaats op een goed bereikbare locatie in Rotterdam, met directe verbindingen naar de A16 en A20. Dit maakt de bedrijfsunits ideaal voor bedrijven die zichtbaarheid en logistieke bereikbaarheid belangrijk vinden. De ligging in een van Europa’s belangrijkste handelssteden versterkt de investeringspotentie en aantrekkelijkheid voor gebruikers.
Start bouw/oplevering
Start bouw staat gepland voor het 1e kwartaal van 2026. De oplevering staat gepland voor het 4e kwartaal van 2026.
Indeling/koopsom/beschikbaarheid
Unit 3 t/m 5 - Tussenunits
Begane grond 60 m²
Verdieping 63 m²
Koopsom € 299.000 V.O.N. excl. BTW.
Opleveringsniveau
Buitenzijde
• De units hebben een constructie van kalkzandsteen en staal, ook de unitscheidende wanden zijn van kalkzandsteen. De gevels worden afgewerkt met sandwichpanelen met een hoge isolatiewaarde;
• Elektrische overheaddeur (ca. 3,0 x 3,4 meter) met vergrendeling en ventilatierooster;
• Separate entreedeur;
• Dakconstructie voorbereid op zonnepanelen;
• Hoogwaardige isolatie voor energie-efficiëntie;
• Hemelwaterafvoer voor gecontroleerde afwatering.
Binnenzijde
• De begane grondvloer wordt monoliet afgewerkt en heeft een vloerbelasting van circa 1.000 kg/m²;
• De verdiepingsvloer bestaat uit beton, afgewerkt met een cementdekvloer en is berekend op een vloerbelasting van circa 300 kg/m² ;
• De riolering is aangesloten op het gemeentelijke netwerk;
• De meterkast op de begane grond is uitgerust met 220V, 3x25 ampère (er is ruimte voor uitbreiding van elektrische installaties);
• Eigen aansluitingen voor water en elektriciteit in meterkast;
• De unitscheidende wanden zijn van kalkzandsteen;
• De units worden ontwikkeld volgens de geldende brandveiligheidseisen van de gemeentelijke brandweer. Iedere unit vormt daarbij een eigen brandcompartiment;
• Houten trap en optioneel voorzien van hekwerk naar de verdieping.
Parkeren
Bij elke unit hoort voldoende parkeergelegenheid op het buitenterrein. Dit terrein wordt volledig bestraat en voorzien van riolering.
Algemeen
Ondanks de zorg en aandacht die wordt besteed aan de samenstelling van deze projectinformatie en de hierin opgenomen gegevens, kan Goud Bedrijfshuisvesting niet instaan voor de volledigheid, juistheid of voortdurende actualiteit van de gegevens en wijst iedere vorm van aansprakelijkheid van de hand voor onvolkomenheden, onvolledigheden, dan wel onjuistheden in de weergegeven informatie. Nadrukkelijk is vermeld dat deze informatie niet als een aanbieding of offerte mag worden beschouwd.
Kenmerken
Overdracht
- Vraagprijs
- € 299.000 vrij op naam
- Aangeboden sinds
-
- Status
- Beschikbaar
- Aanvaarding
- In overleg
Bouw
- Hoofdfunctie
- Bedrijfshal
- Soort bouw
- Nieuwbouw
- Bouwjaar
- Momenteel in aanbouw
Oppervlakten
- Oppervlakte
- 144 m² (in units vanaf 120 m²)
- Bedrijfshal oppervlak
- 144 m²
- Draagvermogen
- 1.000 kg/m²
- Perceel
- 2.040 m²
Indeling
- Voorzieningen
- Overheaddeuren en betonvloer
Energie
- Energielabel
- Niet verplicht
Omgeving
- Ligging
- Bedrijventerrein
- Bereikbaarheid
- Bushalte op 1000 m tot 1500 m, metrohalte op 1000 m tot 1500 m, NS Intercitystation op 2000 m tot 3000 m en snelwegafrit op 1000 m tot 1500 m
Foto's
Plattegrond
First floor