Boeingavenue 307-R 1119 PD Schiphol-Rijk
€ 2.050 /mnd
Omschrijving
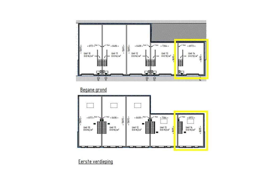
De aangeboden hoekunit (nr. 14) is onderdeel van de tweede fase van een nieuwbouw complex De Mainport met in totaal 18 multifunctionele bedrijfsunits op een prima locatie in Schiphol-Rijk, vlak bij de uitvalswegen. Het betreft een turnkey op te leveren unit van ca. 141 m².
Op de 1e verdieping wordt de kantoorruimte opgeleverd voorzien van een pvc vloer, airconditioning, pantry voorzien van diverse inbouwapparatuur en een systeemplafond voorzien van ledverlichting.
Het complex heeft een strak klassieke, zeer representatieve uitstraling en is geschikt voor velerlei soorten bedrijven die behoefte hebben aan een showroom, werkplaats, kantoor of opslag.
Ligging/bereikbaarheid
Het complex is uitstekend bereikbaar door de centrale ligging nabij uitvalswegen en openbaar vervoer verbindingen. Schiphol-Rijk ligt aan de N196 en de nieuwe N201 met directe aansluiting op de rijksweg A4/A5 richting Amsterdam, Haarlem, Den Haag en Rotterdam, rijksweg A9 richting Haarlem, Amsterdam Zuidoost en Utrecht en rijksweg A10 richting Amsterdam, Amersfoort.
Ook het nieuw ontwikkelde gebied Greenpark en de bloemenveiling Royal FloraHolland zijn op korte rijafstand gelegen. Schiphol-Rijk wordt aangemerkt als een hoogwaardig modern gebied met fraai aangelegde water- en groenpartijen.
Vloeroppervlak
De beschikbare hoekunit (nr. 14) omvat:
bedrijfsruimte : ca. 70,5 m² b.v.o.
kantoorruimte : ca. 70.5 m² b.v.o.
Verhuurder heeft eenzelfde unit beschikbaar (nr. 13). Deze kan op eenzelfde wijze worden afgewerkt als unit 14.
Parkeren
Bij deze unit behoren 2 parkeerplaatsen, gelegen op eigen terrein direct naast de unit.
Opleveringsniveau
De bedrijfsruimte is/wordt voorzien van:
- overheaddeur;
- krachtstroomaansluiting;
- toilet;
- personenentree;
- ledverlichting;
- vrije hoogte ca. 3.70 m;
- maximale vloerbelasting op de begane grond 2.000 kg/m².
De kantoorruimte is/wordt voorzien van:
- systeemplafonds met ledverlichting;
- lichtkoepel;
- pvc visgraat vloerafwerking;
- gestucte en gesausde wanden;
- te openen ramen;
- kabelgoot voorzien van elektra aansluitingen;
- airconditioning ten behoeve van koeling en verwarming;
- pantry voorzien van diverse inbouwapparatuur;
Eventuele extra opleveringswensen van huurder zijn bespreekbaar.
Na afbouw zal een energielabel worden opgesteld.
Huurprijs
De huurprijs bedraagt € 2.050,-- per maand, te vermeerderen met BTW en servicekosten.
Bij het vaststellen van de huurprijs is uitgangspunt dat huurder het gehuurde voor ten minste het bij de wet vastgestelde of nader vast te stellen minimum percentage blijvend zal gebruiken voor prestaties die recht geven op aftrek van BTW, zodanig dat kan worden geopteerd voor een belaste verhuur.
Servicekosten
Nader overeen te komen. Huurder heeft eigen aansluitingen voor de levering van water en elektra.
Aanvaarding
In overleg.
Alle door BT Makelaars verstrekte informatie is met zorg samengesteld. Aan de juistheid van de vrijblijvend verstrekte informatie kunnen echter geen rechten worden ontleend.
Op de 1e verdieping wordt de kantoorruimte opgeleverd voorzien van een pvc vloer, airconditioning, pantry voorzien van diverse inbouwapparatuur en een systeemplafond voorzien van ledverlichting.
Het complex heeft een strak klassieke, zeer representatieve uitstraling en is geschikt voor velerlei soorten bedrijven die behoefte hebben aan een showroom, werkplaats, kantoor of opslag.
Ligging/bereikbaarheid
Het complex is uitstekend bereikbaar door de centrale ligging nabij uitvalswegen en openbaar vervoer verbindingen. Schiphol-Rijk ligt aan de N196 en de nieuwe N201 met directe aansluiting op de rijksweg A4/A5 richting Amsterdam, Haarlem, Den Haag en Rotterdam, rijksweg A9 richting Haarlem, Amsterdam Zuidoost en Utrecht en rijksweg A10 richting Amsterdam, Amersfoort.
Ook het nieuw ontwikkelde gebied Greenpark en de bloemenveiling Royal FloraHolland zijn op korte rijafstand gelegen. Schiphol-Rijk wordt aangemerkt als een hoogwaardig modern gebied met fraai aangelegde water- en groenpartijen.
Vloeroppervlak
De beschikbare hoekunit (nr. 14) omvat:
bedrijfsruimte : ca. 70,5 m² b.v.o.
kantoorruimte : ca. 70.5 m² b.v.o.
Verhuurder heeft eenzelfde unit beschikbaar (nr. 13). Deze kan op eenzelfde wijze worden afgewerkt als unit 14.
Parkeren
Bij deze unit behoren 2 parkeerplaatsen, gelegen op eigen terrein direct naast de unit.
Opleveringsniveau
De bedrijfsruimte is/wordt voorzien van:
- overheaddeur;
- krachtstroomaansluiting;
- toilet;
- personenentree;
- ledverlichting;
- vrije hoogte ca. 3.70 m;
- maximale vloerbelasting op de begane grond 2.000 kg/m².
De kantoorruimte is/wordt voorzien van:
- systeemplafonds met ledverlichting;
- lichtkoepel;
- pvc visgraat vloerafwerking;
- gestucte en gesausde wanden;
- te openen ramen;
- kabelgoot voorzien van elektra aansluitingen;
- airconditioning ten behoeve van koeling en verwarming;
- pantry voorzien van diverse inbouwapparatuur;
Eventuele extra opleveringswensen van huurder zijn bespreekbaar.
Na afbouw zal een energielabel worden opgesteld.
Huurprijs
De huurprijs bedraagt € 2.050,-- per maand, te vermeerderen met BTW en servicekosten.
Bij het vaststellen van de huurprijs is uitgangspunt dat huurder het gehuurde voor ten minste het bij de wet vastgestelde of nader vast te stellen minimum percentage blijvend zal gebruiken voor prestaties die recht geven op aftrek van BTW, zodanig dat kan worden geopteerd voor een belaste verhuur.
Servicekosten
Nader overeen te komen. Huurder heeft eigen aansluitingen voor de levering van water en elektra.
Aanvaarding
In overleg.
Alle door BT Makelaars verstrekte informatie is met zorg samengesteld. Aan de juistheid van de vrijblijvend verstrekte informatie kunnen echter geen rechten worden ontleend.
Kenmerken
Overdracht
- Huurprijs
- € 2.050 per maand
- Aangeboden sinds
-
- Status
- Beschikbaar
- Aanvaarding
- In overleg
Bouw
- Hoofdfunctie
- Bedrijfshal
- Soort bouw
- Bestaande bouw
- Bouwjaar
- 2025
Oppervlakten
- Oppervlakte
- 140 m²
- Bedrijfshal oppervlak
- 70 m²
- Kantoor oppervlak
- 70 m²
Indeling
- Aantal bouwlagen
- 1 bouwlaag
Energie
- Energielabel
- Niet verplicht
Foto's