Omschrijving
9 duurzame nieuwbouw bedrijfsunits | Puntweg 5 | Bedrijventerrein Halfweg | eigen grond | v.o.n. excl. btw
INTRODUCTIE
Op het populaire bedrijventerrein Halfweg in Spijkenisse wordt De Punt gerealiseerd: een representatief en duurzaam nieuwbouw bedrijfsverzamelgebouw met 9 hoogwaardige en volledig zelfstandige bedrijfsunits. Ontworpen voor ondernemers die waarde hechten aan uitstraling, flexibiliteit en bereikbaarheid.
ONDERNEMEN MET UITSTRALING EN FLEXIBILITEIT
De bedrijfsunits worden casco opgeleverd en bieden maximale vrijheid in indeling. Ideaal voor een combinatie van werkplaats/opslag en kantoorruimte. Dankzij de hoogwaardige bouwkwaliteit en moderne architectuur is De Punt niet alleen functioneel, maar ook een visitekaartje voor uw bedrijf.
OPPERVLAKTE & INDELING
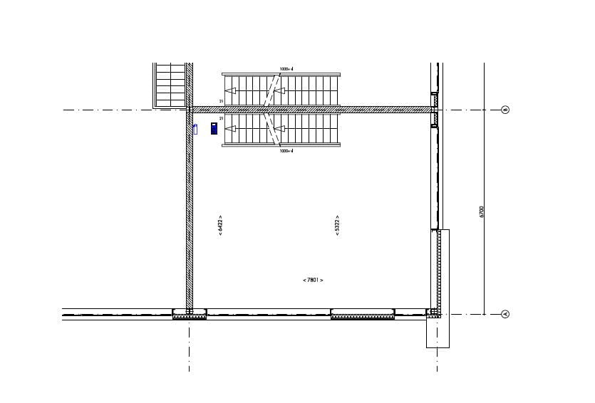
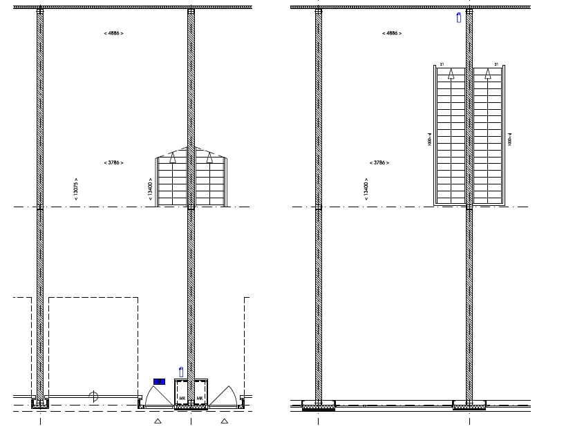
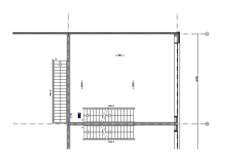
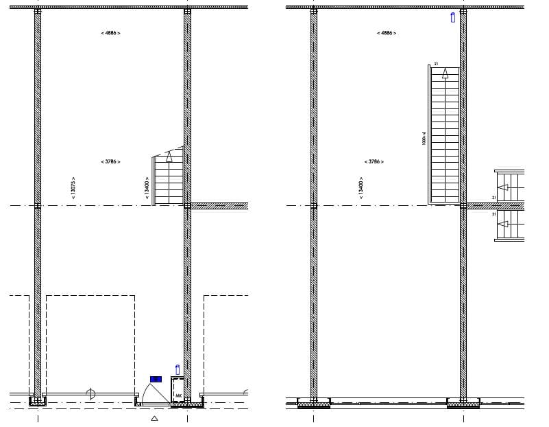
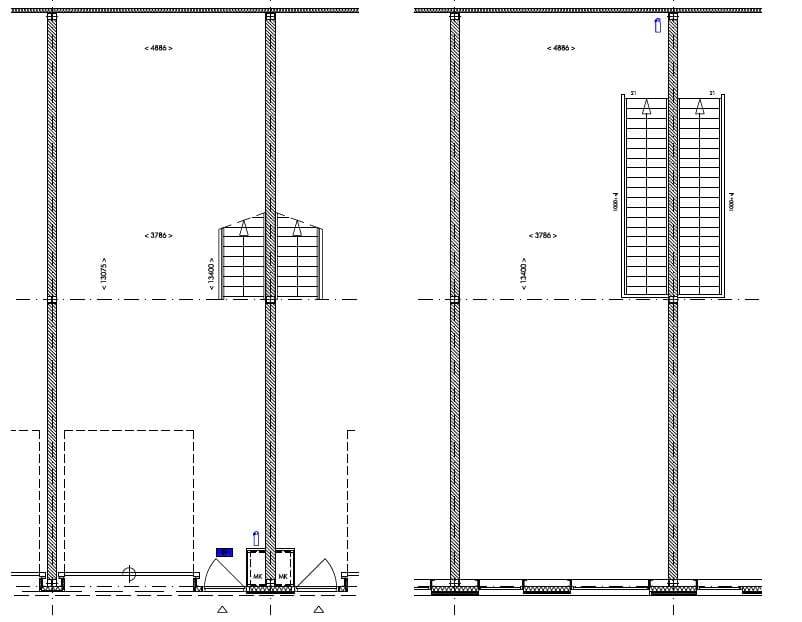
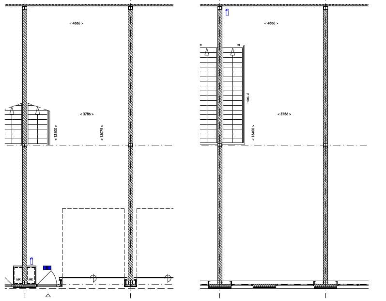
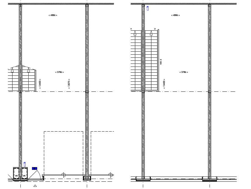
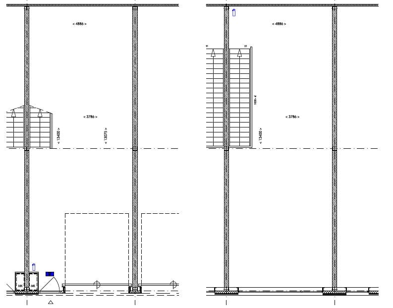
• Oppervlaktes van ca. 138 m² tot 170 m² BVO, 50/50 verdeel over de begane grond en 1e verdieping
• Hoge maximale vloerbelasting (1.000 kg/m²)
• Begane grond met vrije hoogte van ca. 3,6 meter
• Betonnen verdiepingsvloeren (kanaalplaat, max. vloerbelasting 400 kg/m²)
• Handmatig bedienbare overheaddeur (ca. 3,0 x 3,3 m)
• Separate loopdeur
• Mogelijkheid tot het koppelen van units
EIGENDOM & KOOP
• Gelegen op eigen grond (volledig eigendom)
• Geen overdrachtsbelasting (v.o.n.)
• Koopsommen vanaf ca. € 269.500 v.o.n. excl. btw
PARKEREN
• 2 tot 3 privé parkeerplaatsen per unit
UITSTEKENDE BEREIKBAARHEID
• De locatie is strategisch gelegen tussen Spijkenisse, Rotterdam en de Europoort.
• Direct nabij Groene Kruisweg (N218)
• Snelle aansluiting op de A15 richting Rotterdam, Maasvlakte en het achterland
• Goed bereikbaar per auto én openbaar vervoer
TYPE BEDRIJFSUNITS
Type 1 - totaal ca. 170 m² - € 388.500,-- (verdeeld over 3 bouwlagen)
Type 2 - totaal ca. 138 m² - € 269.500,-- (tussenunit)
Type 3 - totaal ca. 144 m² - € 285.500,-- (hoekunit)
Bovengenoemde verkoopprijzen zijn v.o.n. en dienen te worden vermeerderd met de wettelijk verschuldigde omzetbelasting (huidig tarief 21%). Maatvoering in BVO.
PLANNING
Start bouw: verwacht Q3 2026
Oplevering: verwacht Q1 2027
BESTEMMING
Bestemmingsplan: Halfweg-Molenwatering
Bestemming: Bedrijventerrein – 2
Geschikt voor bedrijven tot en met milieucategorie 5.1
INTERESSANTE INVESTERING
Dankzij de combinatie van nieuwbouw, eigen grond, moderne uitstraling en strategische ligging is De Punt ook aantrekkelijk als beleggingsobject voor verhuur of eigen gebruik.
INTERESSE
Interesse? Neem gerust en geheel vrijblijvend contact op met de verkoopmakelaar voor actuele beschikbaarheid, plattegronden, aanvullende informatie en/of vragen.
BRiQ Real Estate
Tel.nr.: +31(0)10 511 99 55
E-mail:
DISCLAIMER
BRiQ Real Estate B.V. heeft deze vrijblijvende projectinformatie met de grootst mogelijke zorgvuldigheid samengesteld, maar aanvaardt geen aansprakelijkheid voor de eventuele onjuistheid ervan.
Op alle teksten en beelden in deze vrijblijvende projectinformatie berust het copyright bij BRiQ Real Estate B.V. Dit houdt in dat er niets zonder toestemming van BRiQ real estate B.V. mag worden gekopieerd.
Deze vrijblijvende projectinformatie dient slechts als indicatieve informatieverstrekking en kan nimmer worden beschouwd als aanbieding c.q. offerte.
INTRODUCTIE
Op het populaire bedrijventerrein Halfweg in Spijkenisse wordt De Punt gerealiseerd: een representatief en duurzaam nieuwbouw bedrijfsverzamelgebouw met 9 hoogwaardige en volledig zelfstandige bedrijfsunits. Ontworpen voor ondernemers die waarde hechten aan uitstraling, flexibiliteit en bereikbaarheid.
ONDERNEMEN MET UITSTRALING EN FLEXIBILITEIT
De bedrijfsunits worden casco opgeleverd en bieden maximale vrijheid in indeling. Ideaal voor een combinatie van werkplaats/opslag en kantoorruimte. Dankzij de hoogwaardige bouwkwaliteit en moderne architectuur is De Punt niet alleen functioneel, maar ook een visitekaartje voor uw bedrijf.
OPPERVLAKTE & INDELING
• Oppervlaktes van ca. 138 m² tot 170 m² BVO, 50/50 verdeel over de begane grond en 1e verdieping
• Hoge maximale vloerbelasting (1.000 kg/m²)
• Begane grond met vrije hoogte van ca. 3,6 meter
• Betonnen verdiepingsvloeren (kanaalplaat, max. vloerbelasting 400 kg/m²)
• Handmatig bedienbare overheaddeur (ca. 3,0 x 3,3 m)
• Separate loopdeur
• Mogelijkheid tot het koppelen van units
EIGENDOM & KOOP
• Gelegen op eigen grond (volledig eigendom)
• Geen overdrachtsbelasting (v.o.n.)
• Koopsommen vanaf ca. € 269.500 v.o.n. excl. btw
PARKEREN
• 2 tot 3 privé parkeerplaatsen per unit
UITSTEKENDE BEREIKBAARHEID
• De locatie is strategisch gelegen tussen Spijkenisse, Rotterdam en de Europoort.
• Direct nabij Groene Kruisweg (N218)
• Snelle aansluiting op de A15 richting Rotterdam, Maasvlakte en het achterland
• Goed bereikbaar per auto én openbaar vervoer
TYPE BEDRIJFSUNITS
Type 1 - totaal ca. 170 m² - € 388.500,-- (verdeeld over 3 bouwlagen)
Type 2 - totaal ca. 138 m² - € 269.500,-- (tussenunit)
Type 3 - totaal ca. 144 m² - € 285.500,-- (hoekunit)
Bovengenoemde verkoopprijzen zijn v.o.n. en dienen te worden vermeerderd met de wettelijk verschuldigde omzetbelasting (huidig tarief 21%). Maatvoering in BVO.
PLANNING
Start bouw: verwacht Q3 2026
Oplevering: verwacht Q1 2027
BESTEMMING
Bestemmingsplan: Halfweg-Molenwatering
Bestemming: Bedrijventerrein – 2
Geschikt voor bedrijven tot en met milieucategorie 5.1
INTERESSANTE INVESTERING
Dankzij de combinatie van nieuwbouw, eigen grond, moderne uitstraling en strategische ligging is De Punt ook aantrekkelijk als beleggingsobject voor verhuur of eigen gebruik.
INTERESSE
Interesse? Neem gerust en geheel vrijblijvend contact op met de verkoopmakelaar voor actuele beschikbaarheid, plattegronden, aanvullende informatie en/of vragen.
BRiQ Real Estate
Tel.nr.: +31(0)10 511 99 55
E-mail:
DISCLAIMER
BRiQ Real Estate B.V. heeft deze vrijblijvende projectinformatie met de grootst mogelijke zorgvuldigheid samengesteld, maar aanvaardt geen aansprakelijkheid voor de eventuele onjuistheid ervan.
Op alle teksten en beelden in deze vrijblijvende projectinformatie berust het copyright bij BRiQ Real Estate B.V. Dit houdt in dat er niets zonder toestemming van BRiQ real estate B.V. mag worden gekopieerd.
Deze vrijblijvende projectinformatie dient slechts als indicatieve informatieverstrekking en kan nimmer worden beschouwd als aanbieding c.q. offerte.
Kaart
Kaart laden...
Kadastrale grens
Bebouwing
Reistijd
Krijg inzicht in de bereikbaarheid van dit object vanuit bijvoorbeeld een openbaar vervoer station of vanuit een adres.