Taylorweg 8-A 5466 AE Veghel
Huurprijs op aanvraag
Omschrijving
THE FRANCHISE CLUB - HUB
Dit is de perfecte plek voor jonge ondernemers en zelfstandigen die willen groeien. Hier vindt u een ondernemende setting waar samenwerken en kennisdeling vanzelfsprekend is. Of u nu een werkplek, studio of opslag zoekt, deze locatie biedt alles wat u nodig heeft in een prettige, professionele omgeving.
Het pand aan de Taylorweg 8a is van alle gemakken voorzien en u kunt daar als huurder van een ruimte natuurlijk optimaal gebruik van maken. De kantoor/vergaderruimtes worden gestoffeerd opgeleverd en zijn voorzien gas, water en elektra, koffie en thee, een volledig ingericht bureau en wifi.
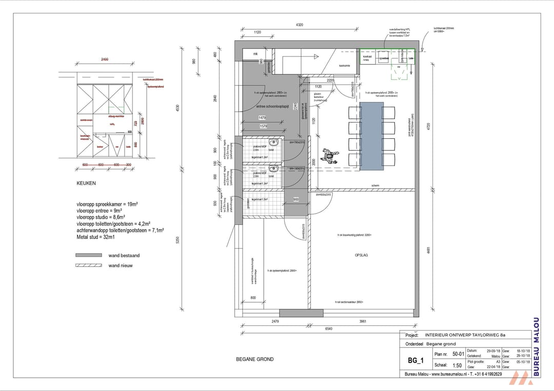
BEGANE GROND:
Via de gezamenlijke entree betreedt u een prettige en professionele ruimtes. Hier bevinden zich ook 2 toiletruimtes, een gootsteen, de meterkast en de trapopgang naar de eerste verdieping.
RUIMTE 1: VERGADERRUIMTE
Voorzien van pantry, presentatiescherm en vergadertafel met 8 stoelen
Huurprijs: € 25,- per uur exclusief BTW
RUIMTE 2: OPSLAGRUIMTE MET ROLDEUR
Oppervlakte: 29 m²
Huurprijs: € 250,- per maand exclusief BTW
RUIMTE 3: STUDIO
Beschikt over veel daglicht en is afzonderlijk te huur van andere ruimtes, deze biedt volop ruimte voor rustig of creatief werk.
Oppervlakte: 9 m²
Huurprijs: € 400,- per maand exclusief BTW
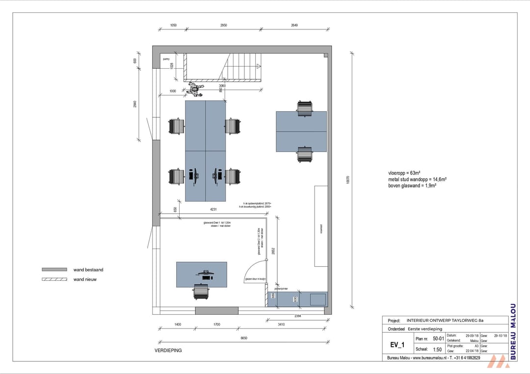
EERSTE VERDIEPING:
Op de eerste verdieping vindt u zes losse werkplekken te huur, als ook een afgesloten werkplek voor twee personen.
Daarnaast is er een pantry en een handige reprohoek met printer, scanner en kantoorbenodigdheden, zodat u alles bij de hand hebt voor een productieve werkdag.
RUIMTE 4: WERKPLEKKEN
6x 1 vaste werkplek
Huurprijs: € 225,- per werkplek exclusief BTW
RUIMTE 5: 2-PERSOONS KANTOOR
Oppervlakte: 11 m²
Huurprijs: € 450,- per maand exclusief BTW
LOCATIE:
Het pand is zeer centraal gelegen aan de Zuid-Willemsvaart op bedrijventerrein "De Dubbelen" te Veghel. Met enkele autominuten bent u op de A50 onderweg naar Eindhoven of Nijmegen. Wanneer u naar 's-Hertogenbosch of Helmond wilt kan u de provinciale weg N279 nemen.
PARKEERGELEGENHEID:
Direct voor en rondom het pand zijn verschillende parkeerplaatsen waar u gebruik van kunt maken.
Bovengenoemde informatie is met uiterste precisie samengesteld echter kunnen hieraan geen rechten worden ontleend.
Dit is de perfecte plek voor jonge ondernemers en zelfstandigen die willen groeien. Hier vindt u een ondernemende setting waar samenwerken en kennisdeling vanzelfsprekend is. Of u nu een werkplek, studio of opslag zoekt, deze locatie biedt alles wat u nodig heeft in een prettige, professionele omgeving.
Het pand aan de Taylorweg 8a is van alle gemakken voorzien en u kunt daar als huurder van een ruimte natuurlijk optimaal gebruik van maken. De kantoor/vergaderruimtes worden gestoffeerd opgeleverd en zijn voorzien gas, water en elektra, koffie en thee, een volledig ingericht bureau en wifi.
BEGANE GROND:
Via de gezamenlijke entree betreedt u een prettige en professionele ruimtes. Hier bevinden zich ook 2 toiletruimtes, een gootsteen, de meterkast en de trapopgang naar de eerste verdieping.
RUIMTE 1: VERGADERRUIMTE
Voorzien van pantry, presentatiescherm en vergadertafel met 8 stoelen
Huurprijs: € 25,- per uur exclusief BTW
RUIMTE 2: OPSLAGRUIMTE MET ROLDEUR
Oppervlakte: 29 m²
Huurprijs: € 250,- per maand exclusief BTW
RUIMTE 3: STUDIO
Beschikt over veel daglicht en is afzonderlijk te huur van andere ruimtes, deze biedt volop ruimte voor rustig of creatief werk.
Oppervlakte: 9 m²
Huurprijs: € 400,- per maand exclusief BTW
EERSTE VERDIEPING:
Op de eerste verdieping vindt u zes losse werkplekken te huur, als ook een afgesloten werkplek voor twee personen.
Daarnaast is er een pantry en een handige reprohoek met printer, scanner en kantoorbenodigdheden, zodat u alles bij de hand hebt voor een productieve werkdag.
RUIMTE 4: WERKPLEKKEN
6x 1 vaste werkplek
Huurprijs: € 225,- per werkplek exclusief BTW
RUIMTE 5: 2-PERSOONS KANTOOR
Oppervlakte: 11 m²
Huurprijs: € 450,- per maand exclusief BTW
LOCATIE:
Het pand is zeer centraal gelegen aan de Zuid-Willemsvaart op bedrijventerrein "De Dubbelen" te Veghel. Met enkele autominuten bent u op de A50 onderweg naar Eindhoven of Nijmegen. Wanneer u naar 's-Hertogenbosch of Helmond wilt kan u de provinciale weg N279 nemen.
PARKEERGELEGENHEID:
Direct voor en rondom het pand zijn verschillende parkeerplaatsen waar u gebruik van kunt maken.
Bovengenoemde informatie is met uiterste precisie samengesteld echter kunnen hieraan geen rechten worden ontleend.
Kenmerken
Overdracht
- Huurprijs
- Huurprijs op aanvraag
- Servicekosten
- Geen servicekosten bekend
- Aangeboden sinds
-
- Status
- Beschikbaar
- Aanvaarding
- In overleg
Bouw
- Hoofdfunctie
- Kantoorruimte
- Mogelijke functie(s)
- Bedrijfsruimte
- Soort bouw
- Bestaande bouw
- Bouwjaar
- 2008
Oppervlakten
- Oppervlakte
- 29 m²
- Perceel
- 75 m²
Indeling
- Voorzieningen
- Mechanische ventilatie, te openen ramen, systeemplafond, toilet, pantry, verwarming en kamerindeling
Energie
- Energielabel
- A++++
Omgeving
- Ligging
- Bedrijventerrein
- Bereikbaarheid
- Bushalte op 1500 m tot 2000 m, NS Intercitystation op 5000 m of meer en snelwegafrit op 1500 m tot 2000 m
Foto's
Plattegrond
First floor