De Kolk 6 3781 AZ Voorthuizen
- Verhuurd
€ 1.250 /mnd
Omschrijving
Bij deze in aanbouw zijnde representatieve bedrijfsruimte krijgt u de kans om te werken vanuit een moderne bedrijfsruimte op een uitstekende locatie.
Met een bruto vloeroppervlakte van circa 143 m² biedt de ruimte volop mogelijkheden voor uiteenlopende bedrijfsactiviteiten. De combinatie van een functionele indeling, veel lichtinval en een moderne uitstraling maakt het geheel zeer geschikt voor zowel opslag, werkplaats als kantoor.
De unit beschikt over eigen parkeergelegenheid en is gelegen op een goed bereikbare locatie, met directe verbindingen naar de A1 en A30. Een uitstekende kans voor ondernemers die centraal en professioneel willen werken in een nieuwbouwomgeving met uitstraling. Verwachting is dat het bedrijfspand in Q2 2026 wordt opgeleverd.
Locatie:
De bedrijfsruimte aan de de Kolk 6 in Voorthuizen, een zijtak van de Baron van Nagellstraat, is uitstekend gelegen in Voorthuizen, nabij het centrum én diverse uitvalswegen. Deze locatie combineert een centrale ligging met goede bereikbaarheid, zowel per auto als met het openbaar vervoer. Dankzij de ligging aan een doorgaande weg is er veel zicht en verkeer, wat deze plek aantrekkelijk maakt voor ondernemers die willen profiteren van een representatieve uitstraling en maximale zichtbaarheid.
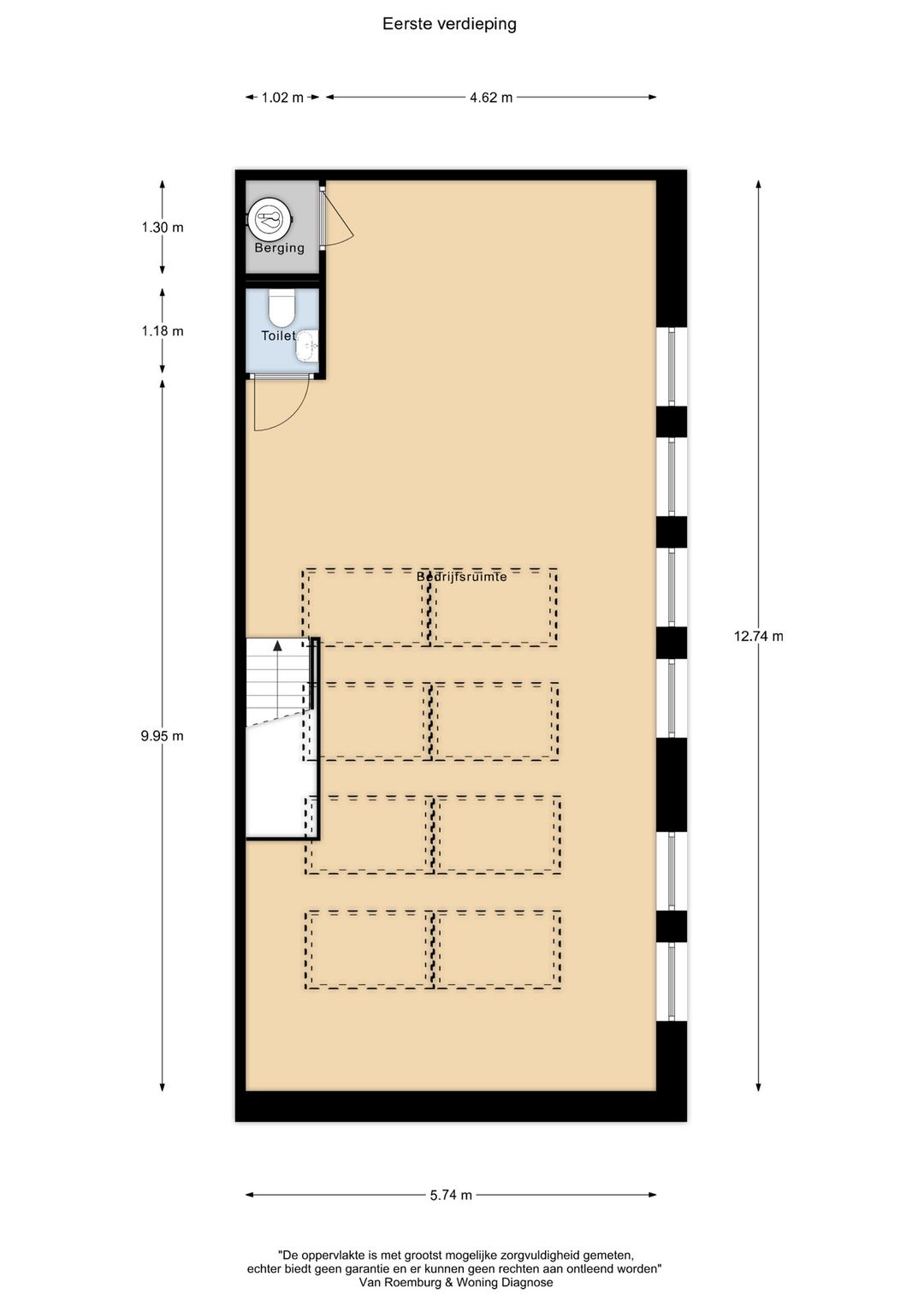
Oppervlaktes:
Begane grond : ca. 72 m² BVO
Verdieping : ca. 71 m² BVO
De bovenvermelde metrage is uitsluitend indicatief. Het object is niet conform NEN 2580 gemeten, derhalve kan geen enkel recht worden ontleend aan de genoemde metrage
Voorzieningen:
- Betonvloer begane grond (vloerbelasting 1000 kg/m²);
- Grote elektrisch bedienbare overheaddeur van 4,5 x 4,5 meter;
- Separate loopdeur;
- Stroomvoorziening van 3 x 25 Ampère;
- Kozijnen v.v. dubbelglas;
- Houten trap naar verdieping;
- Afgedopte riolering;
- Meterkast v.v. elektra en wateraansluiting.
Bouwjaar:
2025
Parkeren:
2 parkeerplaatsen op eigen terrein.
Bestemming:
Enkelbestemming Bedrijventerrein. Bedrijven t/m categorie 2 zijn toegestaan.
Huurprijs:
€ 1.250,- per maand exclusief BTW en servicekosten.
Voorschot servicekosten:
Servicekosten zijn op basis van een maandelijks voorschot met nacalculatie. Het bedrag wordt nader bepaald bij oplevering en hebben betrekking op:
- periodiek onderhoud van het bedrijfscomplex zoals glas-/ gevelbewassing
Verder wordt huurder zelf contractant bij de nutsbedrijven.
Huurtermijn
In overleg.
Huurbetaling
Per maand vooruit.
Zekerheidsstelling
Waarborgsom ter grootte van 3 maanden huur te vermeerderen met BTW.
Huurovereenkomst
Volgens ROZ-Model.
Huurprijsindexering
Jaarlijks, voor het eerst één jaar na ingangsdatum huurovereenkomst, op basis van de wijziging van het maand prijs indexcijfer volgens de consumentenprijsindex (CPI) reeks alle huishoudens (2015 = 100), gepubliceerd door het Centraal Bureau voor Statistiek (CBS).
Aanvaarding
In overleg.
DOWNLOAD DE VOLLEDIGE BROCHURE VIA MNM.NL
Alle informatie is geheel vrijblijvend en onder voorbehoud. Hieraan kunnen geen rechten worden ontleend.
Met een bruto vloeroppervlakte van circa 143 m² biedt de ruimte volop mogelijkheden voor uiteenlopende bedrijfsactiviteiten. De combinatie van een functionele indeling, veel lichtinval en een moderne uitstraling maakt het geheel zeer geschikt voor zowel opslag, werkplaats als kantoor.
De unit beschikt over eigen parkeergelegenheid en is gelegen op een goed bereikbare locatie, met directe verbindingen naar de A1 en A30. Een uitstekende kans voor ondernemers die centraal en professioneel willen werken in een nieuwbouwomgeving met uitstraling. Verwachting is dat het bedrijfspand in Q2 2026 wordt opgeleverd.
Locatie:
De bedrijfsruimte aan de de Kolk 6 in Voorthuizen, een zijtak van de Baron van Nagellstraat, is uitstekend gelegen in Voorthuizen, nabij het centrum én diverse uitvalswegen. Deze locatie combineert een centrale ligging met goede bereikbaarheid, zowel per auto als met het openbaar vervoer. Dankzij de ligging aan een doorgaande weg is er veel zicht en verkeer, wat deze plek aantrekkelijk maakt voor ondernemers die willen profiteren van een representatieve uitstraling en maximale zichtbaarheid.
Oppervlaktes:
Begane grond : ca. 72 m² BVO
Verdieping : ca. 71 m² BVO
De bovenvermelde metrage is uitsluitend indicatief. Het object is niet conform NEN 2580 gemeten, derhalve kan geen enkel recht worden ontleend aan de genoemde metrage
Voorzieningen:
- Betonvloer begane grond (vloerbelasting 1000 kg/m²);
- Grote elektrisch bedienbare overheaddeur van 4,5 x 4,5 meter;
- Separate loopdeur;
- Stroomvoorziening van 3 x 25 Ampère;
- Kozijnen v.v. dubbelglas;
- Houten trap naar verdieping;
- Afgedopte riolering;
- Meterkast v.v. elektra en wateraansluiting.
Bouwjaar:
2025
Parkeren:
2 parkeerplaatsen op eigen terrein.
Bestemming:
Enkelbestemming Bedrijventerrein. Bedrijven t/m categorie 2 zijn toegestaan.
Huurprijs:
€ 1.250,- per maand exclusief BTW en servicekosten.
Voorschot servicekosten:
Servicekosten zijn op basis van een maandelijks voorschot met nacalculatie. Het bedrag wordt nader bepaald bij oplevering en hebben betrekking op:
- periodiek onderhoud van het bedrijfscomplex zoals glas-/ gevelbewassing
Verder wordt huurder zelf contractant bij de nutsbedrijven.
Huurtermijn
In overleg.
Huurbetaling
Per maand vooruit.
Zekerheidsstelling
Waarborgsom ter grootte van 3 maanden huur te vermeerderen met BTW.
Huurovereenkomst
Volgens ROZ-Model.
Huurprijsindexering
Jaarlijks, voor het eerst één jaar na ingangsdatum huurovereenkomst, op basis van de wijziging van het maand prijs indexcijfer volgens de consumentenprijsindex (CPI) reeks alle huishoudens (2015 = 100), gepubliceerd door het Centraal Bureau voor Statistiek (CBS).
Aanvaarding
In overleg.
DOWNLOAD DE VOLLEDIGE BROCHURE VIA MNM.NL
Alle informatie is geheel vrijblijvend en onder voorbehoud. Hieraan kunnen geen rechten worden ontleend.
Kenmerken
Overdracht
- Laatste huurprijs
- € 1.250 per maand
- Aangeboden sinds
-
- Status
- Verhuurd
Bouw
- Hoofdfunctie
- Bedrijfshal
- Soort bouw
- Bestaande bouw
- Bouwjaar
- Momenteel in aanbouw
Oppervlakten
- Oppervlakte
- 143 m²
- Bedrijfshal oppervlak
- 143 m²
Energie
- Energielabel
- Niet beschikbaar
Omgeving
- Ligging
- Bedrijventerrein
Foto's