Risseweg 3 6004 RM Weert
Prijs op aanvraag
Omschrijving
TE KOOP RISSEWEG 3 6004RM WEERT
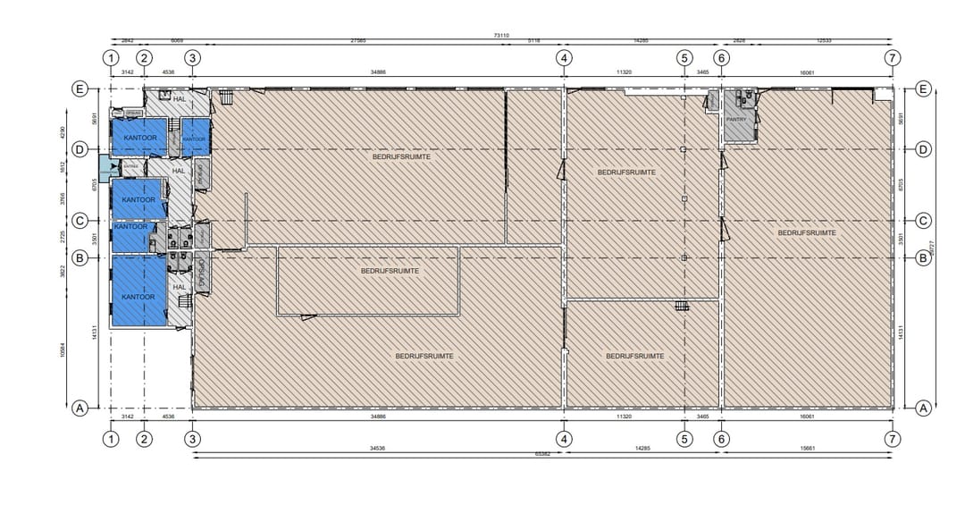
Bedrijfsruimte 1.884 m2 & kantoor 370 m2 .
Het betreft hier een verhuurd vastgoed object welke te koop wordt aangeboden in verhuurde staat, “as is – where is”.
PRIJS OP AANVRAAG.
Kadastraal:
Gemeente Weert, sectie T, nummer 2090 en 2364, groot 1.264 m2 + 1.990 m2 (het totale perceel oppervlakte is 3.254 m2).
Actueel Bestemmingsplan "Industrieterrein Leuken Noord, vastgesteld 22 mei 2013".
Toegestaan zijn bedrijven tot en met de categorie 5.1. Zie voor meer informatie de site Regels op de Kaart.
Bijlage: Staat van bedrijfsactiviteiten Cat. 1 t/m 5
Bouwjaar 1996 / Energielabel A+ geldig tot 25-11-2032.
Het betreft hier een verhuurd vastgoed object, bestaande uit een voorgelegen kantoorgebouw (met o.a. kantoorruimte over 2 bouwlagen) en vanuit dit kantoor gebouw is een directe toegang tot de daaraan vastgelegen bedrijfsruimten.
Het complex is voor het laden en lossen vanaf de voorzijde en de aan de linkerzijde gelegen oprit bereikbaar.
Aan de voorzijde van het kantoorobject is sprake van ruime parkeergelegenheid op eigen terrein.
Locatie:
Het vastgoed is gelegen op bedrijventerrein ‘Leuken-Noord’. Het terrein huisvest een diverse mix van bedrijven, waaronder productiebedrijven (zoals metaal-bewerkingsbedrijven, fabrikanten van machines, bedrijven in de bouwsector), transport- en logistiekbedrijven, groothandels en dienstverleners.
De bereikbaarheid van de locatie is goed via de N275 (de rondweg van Weert). Op korte afstand liggen de op- en afritten A2 Eindhoven-Maastricht en ook het centrum van Weert en uitvalswegen richting Helmond en Venlo.
Huuropgave:
De huurcontract informatie is voor serieuze gegadigden beschikbaar op aanvraag.
Bestemming:
De onderhavige percelen vallen onder het bestemmingsplan Industrieterrein Leuken-Noord, vastgesteld d.d. 22 mei 2013. De voor ‘Bedrijventerrein' aangewezen gronden zijn o.a bestemd voor: Bedrijven van milieu categorieën 2 tot en met 5.1, zoals opgenomen in de Bijlage 1 bij deze regels opgenomen Staat van Bedrijfsactiviteiten, ter plaatse van de aanduiding bedrijf tot en met categorie 5.1’.
Metrages:
Begane grond kantoren: 195 m2
Begane grond bedrijfsruimte: 1884 m2
1e Verdieping kantoren: 175 m2
Totaal: 2.254 m2
Nutsvoorzieningen:
Gas aansluiting: G 25
Elektra aansluiting: 3 x 160 A (Risseweg 3) & 3x 50 A (Risseweg 3c).
WML Water aansluiting.
Oplevering:
In overleg en in verhuurde staat.
Bijzonderheden:
Het object wordt “as is – where is” verkocht.
Aan de linkerzijde bevindt zich de toegang tot meerdere hallen. Deze (toegang)oprit is belast met een erfdienstbaarheid. Zie hiervoor de notariële akte.
Een gedeelte van de hallen heeft een aparte elektra aansluiting, welke zich bevindt in de meterkast welke aan de linkerzijde van het vastgoed object is gesitueerd.
In de meetinstructie wordt weergegeven dat er nog een extra entresol is van circa 367 m2. Deze is door huurder gerealiseerd en maakt geen deel uit van onze opgave en is verder buiten beschouwing gelaten.
Rechten en plichten gaan pas werken na goedkeuring en ondertekening van een verkoopovereenkomst.
Bedrijfsruimte 1.884 m2 & kantoor 370 m2 .
Het betreft hier een verhuurd vastgoed object welke te koop wordt aangeboden in verhuurde staat, “as is – where is”.
PRIJS OP AANVRAAG.
Kadastraal:
Gemeente Weert, sectie T, nummer 2090 en 2364, groot 1.264 m2 + 1.990 m2 (het totale perceel oppervlakte is 3.254 m2).
Actueel Bestemmingsplan "Industrieterrein Leuken Noord, vastgesteld 22 mei 2013".
Toegestaan zijn bedrijven tot en met de categorie 5.1. Zie voor meer informatie de site Regels op de Kaart.
Bijlage: Staat van bedrijfsactiviteiten Cat. 1 t/m 5
Bouwjaar 1996 / Energielabel A+ geldig tot 25-11-2032.
Het betreft hier een verhuurd vastgoed object, bestaande uit een voorgelegen kantoorgebouw (met o.a. kantoorruimte over 2 bouwlagen) en vanuit dit kantoor gebouw is een directe toegang tot de daaraan vastgelegen bedrijfsruimten.
Het complex is voor het laden en lossen vanaf de voorzijde en de aan de linkerzijde gelegen oprit bereikbaar.
Aan de voorzijde van het kantoorobject is sprake van ruime parkeergelegenheid op eigen terrein.
Locatie:
Het vastgoed is gelegen op bedrijventerrein ‘Leuken-Noord’. Het terrein huisvest een diverse mix van bedrijven, waaronder productiebedrijven (zoals metaal-bewerkingsbedrijven, fabrikanten van machines, bedrijven in de bouwsector), transport- en logistiekbedrijven, groothandels en dienstverleners.
De bereikbaarheid van de locatie is goed via de N275 (de rondweg van Weert). Op korte afstand liggen de op- en afritten A2 Eindhoven-Maastricht en ook het centrum van Weert en uitvalswegen richting Helmond en Venlo.
Huuropgave:
De huurcontract informatie is voor serieuze gegadigden beschikbaar op aanvraag.
Bestemming:
De onderhavige percelen vallen onder het bestemmingsplan Industrieterrein Leuken-Noord, vastgesteld d.d. 22 mei 2013. De voor ‘Bedrijventerrein' aangewezen gronden zijn o.a bestemd voor: Bedrijven van milieu categorieën 2 tot en met 5.1, zoals opgenomen in de Bijlage 1 bij deze regels opgenomen Staat van Bedrijfsactiviteiten, ter plaatse van de aanduiding bedrijf tot en met categorie 5.1’.
Metrages:
Begane grond kantoren: 195 m2
Begane grond bedrijfsruimte: 1884 m2
1e Verdieping kantoren: 175 m2
Totaal: 2.254 m2
Nutsvoorzieningen:
Gas aansluiting: G 25
Elektra aansluiting: 3 x 160 A (Risseweg 3) & 3x 50 A (Risseweg 3c).
WML Water aansluiting.
Oplevering:
In overleg en in verhuurde staat.
Bijzonderheden:
Het object wordt “as is – where is” verkocht.
Aan de linkerzijde bevindt zich de toegang tot meerdere hallen. Deze (toegang)oprit is belast met een erfdienstbaarheid. Zie hiervoor de notariële akte.
Een gedeelte van de hallen heeft een aparte elektra aansluiting, welke zich bevindt in de meterkast welke aan de linkerzijde van het vastgoed object is gesitueerd.
In de meetinstructie wordt weergegeven dat er nog een extra entresol is van circa 367 m2. Deze is door huurder gerealiseerd en maakt geen deel uit van onze opgave en is verder buiten beschouwing gelaten.
Rechten en plichten gaan pas werken na goedkeuring en ondertekening van een verkoopovereenkomst.
Kenmerken
Overdracht
- Vraagprijs
- Prijs op aanvraag
- Aangeboden sinds
-
- Status
- Beschikbaar
- Aanvaarding
- In overleg
Bouw
- Hoofdfunctie
- Bedrijfshal
- Soort bouw
- Bestaande bouw
- Bouwjaar
- 1996
Oppervlakten
- Oppervlakte
- 2.254 m²
- Bedrijfshal oppervlak
- 1.884 m²
- Kantoor oppervlak
- 370 m²
- Perceel
- 3.254 m²
Indeling
- Aantal bouwlagen
- 2 bouwlagen
- Voorzieningen
- Airconditioning, overheaddeuren, krachtstroom, betonvloer, heater en toilet
Energie
- Energielabel
- A+
Omgeving
- Ligging
- Bedrijventerrein
Parkeergelegenheid
- Parkeerplaatsen
- 20 niet-overdekte parkeerplaatsen
NVM makelaar
Foto's