Edisonlaan 2 6003 DB Weert

€ 2.450 /mnd

Omschrijving

TE HUUR TE WEERT AAN DE EDISONLAAN 2:

EEN FUNCTIONELE BEDRIJFSRUIMTE VAN 240 M² MET REPRESENTATIEVE KANTOORVERDIEPING.

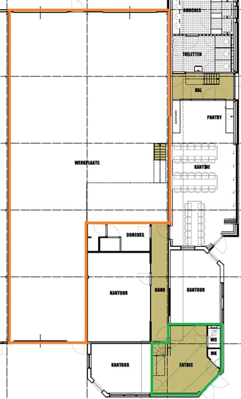
ALGEMEEN.
Het te verhuren gedeelte maakt onderdeel uit van een groter bedrijfsbedrijfscomplex waar LTT B.V. thans haar onderneming exploiteert. Voor de verhuur is beschikbaar een representatieve entree op de begane grond v.v. toilet en garderobe. Via de trappartij is de verdieping bereikbaar waar middels de overloop drie gesegmenteerde kantoren te huur worden aangeboden. Grenzend aan het kantoordeel wordt de functionele bedrijfsruimte aangeboden v.v. smeerput en remmentestbank waarbij de toegankelijkheid optimaal is vanwege drie overheaddeuren. Het aangebodene is in één transactie beschikbaar, maar ook deelverhuur behoort tot de mogelijkheden.

LOCATIE:
Het object is gelegen op het representatieve bedrijventerrein Kampershoek aan de westzijde van Weert. Kampershoek is één van de belangrijkste bedrijventerreinen van de regio en huisvest een brede mix van moderne bedrijfs-, logistieke en industriële ondernemingen.

De locatie is uitstekend bereikbaar via de Ringbanen van Weert met een directe aansluiting op de A2 (Maastricht – Eindhoven). De op- en afritten bevinden zich op circa 1,5 kilometer afstand. Tevens is het bedrijventerrein goed bereikbaar met het openbaar vervoer. Kampershoek beschikt over het Keurmerk Veilig Ondernemen (KVO) en biedt een veilige en professionele werkomgeving.

OPPERVLAKTE.
- kantoordeel ca. 67 m² inclusief toebedeling algemene ruime bg
- bedrijfsruimte ca. 240 m²

VOORZIENINGEN.

Kantoorruimte:
Op basis van de huidige indeling en afwerking beschikt het object onder meer over:
- gezamenlijke representatieve entree op de begane grond;
- vernieuwde sanitaire ruimte;
- garderobe;
- opbouw LED verlichting;
- trappartij naar verdieping;
- tegelvloer;
- systeemplafonds met inbouwverlichting;
- 3 gesegmenteerde kantoren;
- cv-installatie, warmtedistributie middels radiatoren;
- airco-units;
- te openen ramen;
- noodverlichting.

Bedrijfsruimte:
- gevlinderde betonvloer;
- smeerput / remmentestbank;
- krachtstroomaansluitingen;
- opbouw verlichtingsarmaturen;
- indirect gestookte heater;
- 3 elektrisch bedienbare overheaddeuren;
- tussenmeters elektra, gasverbruik.

PARKEREN:
Tot het gehuurde behoort meer dan voldoende parkeergelegenheid.

HUURPRIJS.
- Bedrijfsruimte begane grond: € 1.400,- per maand, te vermeerderen met btw en exclusief gas, water en elektra.
- Kantoorruimte verdieping: € 1.050,- per maand, all-in.

Servicekosten (bedrijfsruimte):
De verhuurder zal aan de huurder diverse leveringen en diensten verstrekken die in vorm van servicekosten in rekening worden gebracht. Dit omvat o.a de navolgende onderdelen:
- levering van elektra, gas en water inclusief vastrecht (verrekening op basis van geplaatste tussenmeters;
- onderhoud/inspectie aan overheaddeuren;
- onderhoud buitenterrein;
- onderhoud/inspectie brandmeld-/alarminstallatie;
- onderhoud/inspectie aan de toegangspoorten.

HUURPRIJSINDEXERING.
Jaarlijks, conform de consumentenprijsindex (CPI), reeks alle huishoudens (2015=100), gepubliceerd door het CBS.

HUURTERMIJN.
Uitgangspunt is een huurtermijn van vijf (5) jaar, vastgelegd in een huurovereenkomst conform het model van de Raad voor Onroerende Zaken (ROZ), met de bijbehorende algemene bepalingen.

VERLENGINGSTERMIJN.
Na afloop van de initiële huurperiode wordt de huurovereenkomst telkens verlengd met een periode van vijf (5) jaar, behoudens tijdige en rechtsgeldige opzegging door één der partijen.

BETALINGEN.
De huurprijs, te vermeerderen met eventueel verschuldigde btw en servicekosten, dient maandelijks bij vooruitbetaling te worden voldaan.

ZEKERHEIDSSTELLING.
Huurder dient bij aanvang van de huurovereenkomst een zekerheidsstelling ter grootte van drie (3) maanden huurverplichting, te vermeerderen met btw, te stellen in de vorm van een bankgarantie of waarborgsom, ter zekerheid van de nakoming van alle verplichtingen uit de huurovereenkomst.

Kenmerken

Overdracht

Huurprijs
€ 2.450 per maand
Aangeboden sinds
Status
Beschikbaar
Aanvaarding
In overleg

Bouw

Hoofdfunctie
Bedrijfshal
Soort bouw
Bestaande bouw
Bouwjaar
1993

Oppervlakten

Oppervlakte
307 m²
Bedrijfshal oppervlak
240 m²
Kantoor oppervlak
67 m²
Vrije overspanning
15 m
Draagvermogen
2.500 kg/m²

Indeling

Aantal bouwlagen
1 bouwlaag
Voorzieningen
Overheaddeuren, krachtstroom, betonvloer, heater, airconditioning, inbouwarmaturen en te openen ramen

Energie

Energielabel
Niet beschikbaar

Kaart

Kaart laden...

Kadastrale grens Bebouwing

Reistijd

Krijg inzicht in de bereikbaarheid van dit object vanuit bijvoorbeeld een openbaar vervoer station of vanuit een adres.

Edisonlaan 2

€ 2.450 /mnd