Hamersestraat 21-a 6931 EV Westervoort

€ 1.675 /mnd

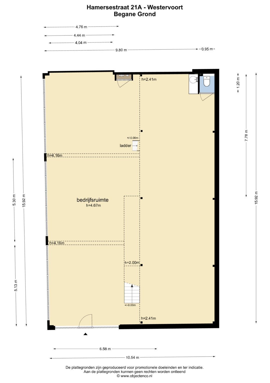
Omschrijving

Te huur aangeboden:
Hamersestraat 21 A te Westervoort

Huurprijs: € 1675,- per maand, exclusief gas, water en elektra.

Bedrijfsruimte met kantoor gelegen aan de Hamersestraat 21A te Westervoort.

Het betreft een net pand geschikt voor diverse doeleinden met overheaddeur en afgesloten parkeerterrein.
Parkeermogelijkheden op eigen terrein aanwezig.
Op minder dan 500 meter gelegen van NS station Westervoort en het centrum.
Binnen 5 minuten op de A12. Circa 10 minuten van Arnhem centrum gelegen.

Bedrijfsruimte:
Ruime bedrijfs-/opslagruimte met twee kantoormogelijkheden, pantry, toiletgroep, c.v. ketel, heater en overheaddeur.

Bereikbaarheid
Uitstekend bereikbaar met eigen vervoer. Op enkele autominuten gelegen van de Pleijroute welke aansluit op de A12 richting Utrecht/Den Haag/Oberhausen en de A325/A15/A50 richting Nijmegen, Venlo en Rotterdam.

Indeling:
Entree middels overheaddeur, welke direct uitkomt in de bedrijfsruimte met pantry en toiletgroep.
Middels vaste trap te bereiken 2 kantoorruimtes alsmede middels een losse trap te bereiken ruime (opslag)vliering.

Totale vloeroppervlakte
Circa 167 m2 bedrijfsruimte op de begane grond en ca. 50 m2 kantoor en een opslagruimte (25 m2) op de 1e verdieping.

Bijzonderheden:
Krachtstroom aanwezig
Eigen gas en elektra meter, gezamenlijke watermeter (tussenmeter)
CV en heater aanwezig
Voldoende parkeergelegenheid
Waarborgsom van 2 maanden van toepassing

Opleveringsniveau
Het object zal worden opgeleverd in de huidige staat met nutsvoorzieningen en parkeervoorzieningen;

Bestemmingsplan:
“Westervoort Noord 2015”, met bestemming gemengd.
Voor specificaties zie omgevingsloket “Regels op de kaart”.

Kenmerken

Overdracht

Huurprijs
€ 1.675 per maand
Aangeboden sinds
Status
Beschikbaar
Aanvaarding
In overleg

Bouw

Hoofdfunctie
Bedrijfshal
Soort bouw
Bestaande bouw
Bouwjaar
1930

Oppervlakten

Oppervlakte
217 m²
Bedrijfshal oppervlak
167 m²
Kantoor oppervlak
50 m²
Perceel
624 m²

Indeling

Aantal bouwlagen
2 bouwlagen
Voorzieningen
Overheaddeuren, krachtstroom, heater en toilet

Energie

Energielabel
G

Kaart

Kaart laden...

Kadastrale grens Bebouwing

Reistijd

Krijg inzicht in de bereikbaarheid van dit object vanuit bijvoorbeeld een openbaar vervoer station of vanuit een adres.

Hamersestraat 21-a

€ 1.675 /mnd