Omschrijving
Drie nieuwbouw bedrijfshallen op bedrijventerrein Hoogtij Westzaan.
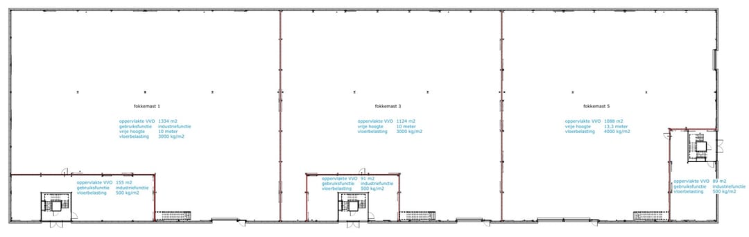
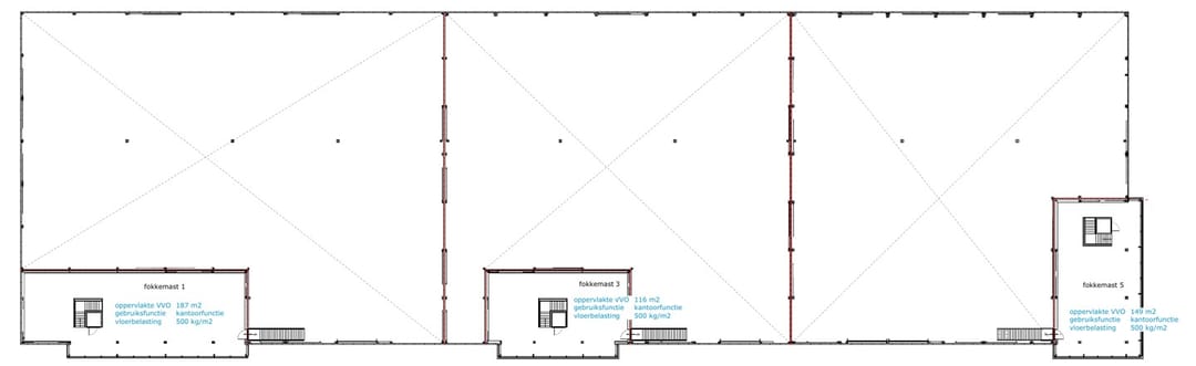
OPPERVLAKTE
Fokkemast 1: circa 1.489 m² v.v.o. bedrijfshal begane grond + 187 m² v.v.o. kantoor eerste verdieping
Fokkemast 3: circa 1.215 m² v.v.o. bedrijfshal begane grond + 116 m² v.v.o. kantoor eerste verdieping
Fokkemast 5: circa 1.177 m² v.v.o. bedrijfshal begane grond + 149 m² v.v.o. kantoor eerste verdieping
LIGGING EN BEREIKBAARHEID
Direct gelegen tegen Amsterdam aan het Noordzeekanaal.
In de directe nabijheid van Kuehne + Nagel, Equans, PostNL, Ahold en Fiege.
Het bedrijventerrein ligt op tien minuten afstand van de A7 en A8. Via ringweg A10 zijn vervolgens de snelwegen A1, A2, A4, A5 en A9 eenvoudig aan te rijden.
Op vijf minuten lopen vanaf het gebouw bevindt zich bushalte Kleine Steng, waarvandaan twee keer per uur de bus in 9 minuten naar treinstation Zaandam gaat.
PARKEREN
Per unit 16 parkeerplaatsen op eigen terrein
BESTEMMINGSPLAN
- Bedrijventerrein -2.
- Milieucategorie 4.2.
Zie s.v.p. omgevingsloket online.
OPLEVERINGSNIVEAU
Elke unit is voorzien van eigen:
Overheaddeur(en), personenlift, vloerverwarming welke is aangesloten op stadsverwarming, w.c. en pantry, elektra 3x80A
HUURCONDITIES
Huurprijs Fokkemast 1: € 209.500,-- per jaar, excl. BTW.
Huurprijs Fokkemast 3: € 166.500,-- per jaar, excl. BTW.
Huurprijs Fokkemast 5: € 172.500,-- per jaar, excl. BTW.
Huurtermijn: 5 jaar + 5 verlengingsjaren.
Servicekosten: nader te bepalen.
Aanvaarding: Per Q2 2026.
Opzegtermijn: 12 maanden.
Zekerheidstelling: Waarborgsom: ter grootte van 3 maanden huur inclusief BTW.
Huurindexering: Jaarlijks overeenkomstig het maand prijsindexcijfer volgens het consumentenprijsindexcijfer (CPI) reeks CPI alle huishoudens (2015=100) gepubliceerd door het Centraal Bureau voor de Statistiek (CBS). De huurprijs zal nimmer minder bedragen dan de huurprijs van het voorafgaande jaar. Indexatie voor het eerst 12 maanden na huur ingangsdatum en zo vervolgens jaarlijks.
BTW: Ja, is van toepassing.
Tevens zijn de bedrijfsruimtes te koop. Voor meer informatie neem contact op met de Online Bedrijfsmakelaar.
VOORBEHOUD
voorbehoud goedkeuring eigenaar.
Disclaimer: Ondanks dat deze publicatie met de grootst mogelijke zorgvuldigheid is samengesteld is de Online Bedrijfsmakelaar BV niet aansprakelijk te stellen voor onjuiste of onvolledige informatie die in deze publicatie vermeld staan. Aan deze gegevens kunnen geen rechten worden ontleend.
====================
Alle beschikbare informatie ontvangen?
Benieuwd naar alle beschikbare informatie over het pand? Vraag dan nu, onder de grote contactbutton, de gratis objectbrochure van de Fokkemast 1 - 5 in Westzaan aan en ontvang de objectbrochure binnen 5 minuten in uw mailbox. Uiteraard kunt u ook direct een geheel vrijblijvende bezichtiging met de beheerder van het pand inplannen.
OPPERVLAKTE
Fokkemast 1: circa 1.489 m² v.v.o. bedrijfshal begane grond + 187 m² v.v.o. kantoor eerste verdieping
Fokkemast 3: circa 1.215 m² v.v.o. bedrijfshal begane grond + 116 m² v.v.o. kantoor eerste verdieping
Fokkemast 5: circa 1.177 m² v.v.o. bedrijfshal begane grond + 149 m² v.v.o. kantoor eerste verdieping
LIGGING EN BEREIKBAARHEID
Direct gelegen tegen Amsterdam aan het Noordzeekanaal.
In de directe nabijheid van Kuehne + Nagel, Equans, PostNL, Ahold en Fiege.
Het bedrijventerrein ligt op tien minuten afstand van de A7 en A8. Via ringweg A10 zijn vervolgens de snelwegen A1, A2, A4, A5 en A9 eenvoudig aan te rijden.
Op vijf minuten lopen vanaf het gebouw bevindt zich bushalte Kleine Steng, waarvandaan twee keer per uur de bus in 9 minuten naar treinstation Zaandam gaat.
PARKEREN
Per unit 16 parkeerplaatsen op eigen terrein
BESTEMMINGSPLAN
- Bedrijventerrein -2.
- Milieucategorie 4.2.
Zie s.v.p. omgevingsloket online.
OPLEVERINGSNIVEAU
Elke unit is voorzien van eigen:
Overheaddeur(en), personenlift, vloerverwarming welke is aangesloten op stadsverwarming, w.c. en pantry, elektra 3x80A
HUURCONDITIES
Huurprijs Fokkemast 1: € 209.500,-- per jaar, excl. BTW.
Huurprijs Fokkemast 3: € 166.500,-- per jaar, excl. BTW.
Huurprijs Fokkemast 5: € 172.500,-- per jaar, excl. BTW.
Huurtermijn: 5 jaar + 5 verlengingsjaren.
Servicekosten: nader te bepalen.
Aanvaarding: Per Q2 2026.
Opzegtermijn: 12 maanden.
Zekerheidstelling: Waarborgsom: ter grootte van 3 maanden huur inclusief BTW.
Huurindexering: Jaarlijks overeenkomstig het maand prijsindexcijfer volgens het consumentenprijsindexcijfer (CPI) reeks CPI alle huishoudens (2015=100) gepubliceerd door het Centraal Bureau voor de Statistiek (CBS). De huurprijs zal nimmer minder bedragen dan de huurprijs van het voorafgaande jaar. Indexatie voor het eerst 12 maanden na huur ingangsdatum en zo vervolgens jaarlijks.
BTW: Ja, is van toepassing.
Tevens zijn de bedrijfsruimtes te koop. Voor meer informatie neem contact op met de Online Bedrijfsmakelaar.
VOORBEHOUD
voorbehoud goedkeuring eigenaar.
Disclaimer: Ondanks dat deze publicatie met de grootst mogelijke zorgvuldigheid is samengesteld is de Online Bedrijfsmakelaar BV niet aansprakelijk te stellen voor onjuiste of onvolledige informatie die in deze publicatie vermeld staan. Aan deze gegevens kunnen geen rechten worden ontleend.
====================
Alle beschikbare informatie ontvangen?
Benieuwd naar alle beschikbare informatie over het pand? Vraag dan nu, onder de grote contactbutton, de gratis objectbrochure van de Fokkemast 1 - 5 in Westzaan aan en ontvang de objectbrochure binnen 5 minuten in uw mailbox. Uiteraard kunt u ook direct een geheel vrijblijvende bezichtiging met de beheerder van het pand inplannen.
Kaart
Kaart laden...
Kadastrale grens
Bebouwing
Reistijd
Krijg inzicht in de bereikbaarheid van dit object vanuit bijvoorbeeld een openbaar vervoer station of vanuit een adres.