Eenspan 3897 AL Zeewolde
€ 2.050.000 v.o.n.
Omschrijving
Nieuwbouwproject BEDRIJVENPARC ZEEWOLDE - Bouw is gestart
Op bedrijventerrein Horsterparc in Zeewolde wordt een nieuwe vrijstaand bedrijfsgebouw ontwikkeld.
De locatie ligt nabij de provinciale weg tussen Harderwijk-Nijkerk en Almere in en is goed bereikbaar per auto via 2-baans wegen. Horsterparc is een kleinschalig jong bedrijventerrein naast het grote Trekkersveld. Het dorp van Zeewolde ligt op 2-3 minuten rijafstand. In de directe omgeving zijn diverse bedrijven gehuisvest waaronder o.a. King Nonwovens, Bakker, Wolter Koops, Brouwer Units en het Tegeldepot.
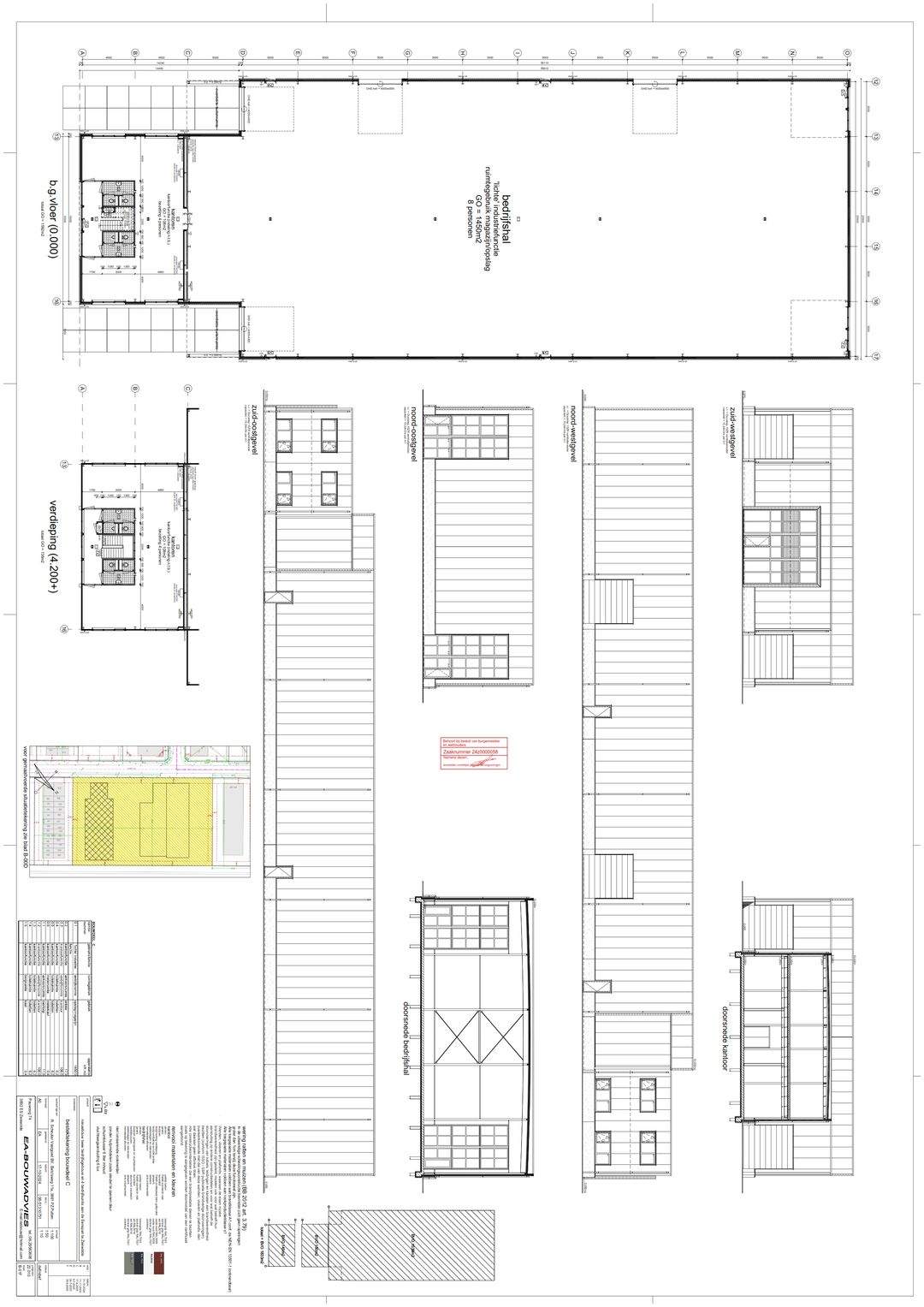
Het nieuwbouwplan "Bedrijvenparc Zeewolde" bestaat uit 1 groot bedrijfsgebouw en 4 naastgelegen middelgrote bedrijfsunits, in grootte variërend van 416 m² tot 419 m² bruto vloeroppervlak. Voor de units worden parkeerplaatsen aangelegd. De gebouwen worden duurzaam opgeleverd met o.a. hoge isolatiewaardes en eigentijdse luxe uitstraling.
Dit gebouw wordt aan de voorzijde voorzien van 2 bouwlagen waar naar eigen inzicht een kantoorruimte, showroom of andere functie aan kan worden gegeven.
Opleveringsniveau
Het gebouw is voorzien van:
- Aansluitingen in meterkast voor elektra, water, glasvezel;
- Afvoer riool in vloer gestort;
- Monoliet afgewerkte begane grond vloer met draagvermogen van circa 3.000 kg/m²;
- Kanaalplaatvloer (onafgewerkt) verdieping met draagvermogen van circa 500 kg/m²;
- 4 overheaddeuren (circa 3,75 x 4,20 meter);
- Kunststof profiel kozijnen met draai/kiepraam met meerpuntssluiting;
- Vurenhouten trap naar verdieping;
- Betonnen plint in gevel gebouw;
- Vrije hoogte circa 9 meter;
- Gevel deels voorzien van sandwichpanelen;
- Mogelijkheid om zonnepanelen te plaatsen op het dak door koper;
De units worden nieuw gebouwd en volgens de laatste inzichten, regelgeving en normering casco opgeleverd. De koper kan de afbouw zelf verzorgen en dient hiervoor mogelijk een aanvulling op de omgevingsvergunning aan te vragen.
Bestemming
De voor 'Bedrijventerrein - 3' aangewezen gronden zijn bestemd voor:
- ter plaatse van de aanduiding 'bedrijf tot en met categorie 3.2', het uitoefenen van bedrijfsmatige activiteiten in de categorieën 1 tot en met 3.2 van de bij deze regels behorende Staat van Bedrijfsactiviteiten-Horsterparc;
met dien verstande dat:
g. risicovolle inrichtingen niet zijn toegestaan;
h. bedrijven die in belangrijke mate geluidhinder kunnen veroorzaken niet zijn toegestaan;
Kadaster
Het betreft grond in vol eigendom wat gesplitst zal gaan worden in appartementsrechten.
Koopsom
€ 2.050.000,- v.o.n. excl. BTW
Oppervlakte
De totaal oppervlakte bedraagt 1.829 m² bestaande uit:
- 149 m² kantoorruimte/showroom op begane grond
- 143 m² kantoorruimte op de verdieping
- 1.537 m² bedrijfsruimte
De oppervlaktes zijn op basis van Bruto Vloer Oppervlakte (b.v.o.) vermeld. Bekijk de plattegronden voor de exacte oppervlakte per unit. Prijzen zijn geldig tot 1juli 2026.
Parkeren
Op eigen terrein worden ruim voldoende parkeerplaatsen aangelegd.
Bijkomende kosten en BTW
Het gebouw wordt "Vrij op naam" geleverd. De kosten voor de levering bij de notaris zijn inbegrepen in de prijs. De genoemde prijzen zijn exclusief 21% BTW.
Voor de aansluiting op de nutsvoorzieningen wordt een bijdrage van €4.000,- in rekening gebracht met als uitgangspunt dat er 3 x 63 A elektra aansluiting wordt geleverd.
Projectnotaris
Schaap uit Almere.
Planning
De bouwvergunning is verleend. De verwachting is dat de bouw in april 2026 start en de oplevering eind 2026 plaats vindt.
Voorbehoud
Voorbehoud gunning verkoper.
Aanvaarding
In overleg.
MEER INFO VIA
UPPELSCHOTEN REAL ESTATE | 085-0605055
Wij werken voor ú
Op bedrijventerrein Horsterparc in Zeewolde wordt een nieuwe vrijstaand bedrijfsgebouw ontwikkeld.
De locatie ligt nabij de provinciale weg tussen Harderwijk-Nijkerk en Almere in en is goed bereikbaar per auto via 2-baans wegen. Horsterparc is een kleinschalig jong bedrijventerrein naast het grote Trekkersveld. Het dorp van Zeewolde ligt op 2-3 minuten rijafstand. In de directe omgeving zijn diverse bedrijven gehuisvest waaronder o.a. King Nonwovens, Bakker, Wolter Koops, Brouwer Units en het Tegeldepot.
Het nieuwbouwplan "Bedrijvenparc Zeewolde" bestaat uit 1 groot bedrijfsgebouw en 4 naastgelegen middelgrote bedrijfsunits, in grootte variërend van 416 m² tot 419 m² bruto vloeroppervlak. Voor de units worden parkeerplaatsen aangelegd. De gebouwen worden duurzaam opgeleverd met o.a. hoge isolatiewaardes en eigentijdse luxe uitstraling.
Dit gebouw wordt aan de voorzijde voorzien van 2 bouwlagen waar naar eigen inzicht een kantoorruimte, showroom of andere functie aan kan worden gegeven.
Opleveringsniveau
Het gebouw is voorzien van:
- Aansluitingen in meterkast voor elektra, water, glasvezel;
- Afvoer riool in vloer gestort;
- Monoliet afgewerkte begane grond vloer met draagvermogen van circa 3.000 kg/m²;
- Kanaalplaatvloer (onafgewerkt) verdieping met draagvermogen van circa 500 kg/m²;
- 4 overheaddeuren (circa 3,75 x 4,20 meter);
- Kunststof profiel kozijnen met draai/kiepraam met meerpuntssluiting;
- Vurenhouten trap naar verdieping;
- Betonnen plint in gevel gebouw;
- Vrije hoogte circa 9 meter;
- Gevel deels voorzien van sandwichpanelen;
- Mogelijkheid om zonnepanelen te plaatsen op het dak door koper;
De units worden nieuw gebouwd en volgens de laatste inzichten, regelgeving en normering casco opgeleverd. De koper kan de afbouw zelf verzorgen en dient hiervoor mogelijk een aanvulling op de omgevingsvergunning aan te vragen.
Bestemming
De voor 'Bedrijventerrein - 3' aangewezen gronden zijn bestemd voor:
- ter plaatse van de aanduiding 'bedrijf tot en met categorie 3.2', het uitoefenen van bedrijfsmatige activiteiten in de categorieën 1 tot en met 3.2 van de bij deze regels behorende Staat van Bedrijfsactiviteiten-Horsterparc;
met dien verstande dat:
g. risicovolle inrichtingen niet zijn toegestaan;
h. bedrijven die in belangrijke mate geluidhinder kunnen veroorzaken niet zijn toegestaan;
Kadaster
Het betreft grond in vol eigendom wat gesplitst zal gaan worden in appartementsrechten.
Koopsom
€ 2.050.000,- v.o.n. excl. BTW
Oppervlakte
De totaal oppervlakte bedraagt 1.829 m² bestaande uit:
- 149 m² kantoorruimte/showroom op begane grond
- 143 m² kantoorruimte op de verdieping
- 1.537 m² bedrijfsruimte
De oppervlaktes zijn op basis van Bruto Vloer Oppervlakte (b.v.o.) vermeld. Bekijk de plattegronden voor de exacte oppervlakte per unit. Prijzen zijn geldig tot 1juli 2026.
Parkeren
Op eigen terrein worden ruim voldoende parkeerplaatsen aangelegd.
Bijkomende kosten en BTW
Het gebouw wordt "Vrij op naam" geleverd. De kosten voor de levering bij de notaris zijn inbegrepen in de prijs. De genoemde prijzen zijn exclusief 21% BTW.
Voor de aansluiting op de nutsvoorzieningen wordt een bijdrage van €4.000,- in rekening gebracht met als uitgangspunt dat er 3 x 63 A elektra aansluiting wordt geleverd.
Projectnotaris
Schaap uit Almere.
Planning
De bouwvergunning is verleend. De verwachting is dat de bouw in april 2026 start en de oplevering eind 2026 plaats vindt.
Voorbehoud
Voorbehoud gunning verkoper.
Aanvaarding
In overleg.
MEER INFO VIA
UPPELSCHOTEN REAL ESTATE | 085-0605055
Wij werken voor ú
Kenmerken
Overdracht
- Vraagprijs
- € 2.050.000 vrij op naam
- Aangeboden sinds
-
- Status
- Beschikbaar
- Aanvaarding
- In overleg
Bouw
- Hoofdfunctie
- Bedrijfshal
- Soort bouw
- Nieuwbouw
- Bouwjaar
- Momenteel in aanbouw
Oppervlakten
- Oppervlakte
- 1.829 m²
- Bedrijfshal oppervlak
- 1.537 m²
- Kantoor oppervlak
- 292 m²
- Vrije hoogte
- 9 m
- Vrije overspanning
- 15 m
- Draagvermogen
- 3.000 kg/m²
Indeling
- Aantal bouwlagen
- 2 bouwlagen
- Voorzieningen
- Overheaddeuren, betonvloer en te openen ramen
Energie
- Energielabel
- Niet verplicht
Omgeving
- Ligging
- Bedrijventerrein
- Bereikbaarheid
- Bushalte op 500 m tot 1000 m, busknooppunt op 1000 m tot 1500 m, metrohalte op 5000 m of meer, metroknooppunt op 5000 m of meer, NS Intercitystation op 5000 m of meer, snelwegafrit op 5000 m of meer, Tramhalte op 5000 m of meer en tramknooppunt op 5000 m of meer
- Lokale voorzieningen
- Bank op 1000 m tot 1500 m, ontspanning op 1000 m tot 1500 m, restaurant op minder dan 500 m en winkel op 1500 m tot 2000 m
Parkeergelegenheid
- Parkeerplaatsen
- 25 niet-overdekte parkeerplaatsen
Foto's