Omschrijving
Vrijstaand en volledig gemoderniseerd bedrijfs-/kantoorpand gelegen op bedrijventerrein Zuid-Beijerland.
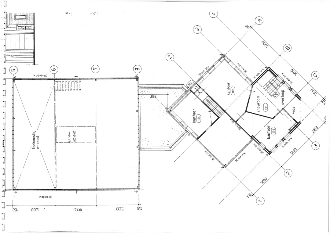
De bedrijfsruimte is functioneel van opzet en is o.a. voorzien van een lichtstraat, een entresolvloer van ca. 75 m², een elektrisch bedienbare overheaddeur, direct gestookte heater en led-verlichting. Aangrenzend bevindt zich een magazijnruimte met nieuwe coating en een wasruimte.
De kantoorruimte is in meerdere ruimten gecompartimenteerd en is o.a. voorzien van een luxe keuken, toiletruimten, airconditioning, verwarming, ledverlichting en inbraakbeveiliging.
Het buitenterrein is voorzien van 4 gemarkeerde parkeerplaatsen en groenvoorzieningen.
Locatie:
Het bedrijventerrein Zuid-Beijerland ligt op enkele autominuten van de op- en afritten van de rijksweg A29, daarnaast ligt bushalte R. van Dorplaan (bus 164, 194 en 712) op loopafstand.
Afmetingen:
- bedrijfsruimte : ca. 258 m²;
- entresolvloer : ca. 75 m²;
- kantoorruimte : ca. 223 m²;
- buitenterrein : ca. 300 m².
Parkeren:
4 gemarkeerde parkeerplaatsen op voorterrein. Daarnaast parkeergelegenheid langs de openbare weg.
Bestemming:
Bedrijfsdoeleinden t/m categorie 3.1.
Energielabel:
B, geldig t/m 9 mei 2035.
Bouwjaar:
1999.
Kadastrale gegevens:
- gemeente : Zuid-Beijerland;
- sectie : K;
- nummer : 651;
- grootte : 853 m² eigen grond.
Bouwaard/algemeen:
- onderheide fundering en betonvloer;
- opbouw staalconstructie;
- gevels deels metselwerk en deels geïsoleerde, geperforeerde sandwichpanelen met stalen
- damwandprofielbeplating;
- aluminium gevelkozijnen met isolerende beglazing;
- geïsoleerd staaldak met bitumineuze dakbedekking;
- meterkast met aansluitingen voor elektra, gas, water en telefonie/internet;
- brandblusmiddelen, brandhaspels, brandmeldinstallatie en inbraakbeveiliging (nieuw).
Voorzieningen/specificaties bedrijfsruimte rechts:
- monoliet afgewerkte betonvloer;
- vrije hoogte ca. 5,93 meter onder de staalconstructie;
- ruime daglichttoetreding door middel van een lichtstraat;
- verwarming door middel van een direct gestookte heater;
- elektrisch bedienbare overheaddeur;
- led-verlichting;
- entresolvloer met een max. vloerbelasting van ca. 500 kg/m², voorzien van o.a. een houten vloer,
- stalen constructie, valbeveiliging en een stalen steektrap.
- magazijnruimte van 34 m² voorzien van betonvloer met nieuwe coating, led-verlichting, toiletruimte en wastrog.
Voorzieningen/specificaties kantoorruimte:
- nieuw systeemplafond met led-verlichting;
- vloerafwerking pvc en tapijt;
- wandafwerking nieuw gesausd glasvliesbehang;
- verwarming; c.v.-installatie met radiatoren;
- stalen bordestrap met houten treden;
- houten steektrap;
- nieuwe airco-units;
- nieuwe luxe keuken met inbouwapparatuur;
- fraai sanitair;
- wandgoten.
Reclamevoering:
Uitsluitend in overleg met en na goedkeuring van eigenaar/verhuurder.
Huurprijs:
€ 4.250,- per maand exclusief servicekosten exclusief BTW.
Vraagprijs:
€ 725.000,- kosten koper.
Servicekosten (bij verhuur):
Per maand wordt € 250,- exclusief BTW in rekening gebracht als voorschot op onderstaande leveringen en diensten:
- periodiek onderhoud c.v.-installatie;
- periodiek onderhoud airco-units;
- periodiek tuinonderhoud;
- periodiek dakonderhoud;
- scope 10-keuring;
- periodiek onderhoud brandblusmiddelen;
- periodiek onderhoud overheaddeuren;
- periodiek onderhoud brandmeldinstallatie;
- periodiek onderhoud inbraakbeveiliging;
- administratiekosten 5%.
Huurperiode:
In nader overleg.
Huurbetaling:
Per maand vooruit.
Huurverhoging:
Jaarlijks, voor het eerst 1 jaar na huuringangsdatum, conform de wijziging van het maandprijsindexcijfer volgens de Consumentenprijsindex (CPI), reeks CPI-alle huishoudens (2015 = 100), gepubliceerd door het Centraal Bureau voor de Statistiek (CBS).
Huurovereenkomst:
De te sluiten huurovereenkomst zal worden opgemaakt op basis van het ROZ-model (Raad van Onroerende Zaken) kantoorruimte en andere bedrijfsruimte in de zin van artikel 7:230a BW, vastgesteld 30-01-2015 met bijbehorende Algemene Bepalingen gedeponeerd bij de griffie van de Rechtbank te Den Haag en op 17-02-2015 aldaar ingeschreven onder nummer 15/21.
Zekerheidstelling:
Bankgarantie of waarborgsom ter grootte van een kwartaalverplichting huur inclusief servicekosten inclusief BTW.
Omzetbelasting:
De huurprijs wordt belast met de geldende omzetbelasting. Huurder en verhuurder opteren voor een BTW-belaste verhuur. Indien op basis van de nieuwe BTW-wetgevingsvoorstelling huurder niet meer aan het criterium meer dan 90% BTW-belaste prestaties verricht voldoet, en zodoende het verzoek om BTW-belaste verhuur niet geaccepteerd wordt, dan zal de
huurprijs worden verhoogd met een nader door verhuurder vast te stellen percentage.
As is, where is:
De in deze verkoopbrochure gepresenteerde verkoop is gebaseerd op het ‘as is, where is’-principe waarbij de eigendom wordt aanvaard in de feitelijke, commerciële, juridische, milieukundige, technische en fiscale situatie zoals het is op de datum van overdracht, aldus met alle fouten en met inbegrip van alle bekende en onbekende, zichtbare en onzichtbare gebreken, lasten, beperkingen en verplichtingen. De verkoper zal na voltooiing van de transactie geen enkele aansprakelijkheid aanvaarden.
Oplevering:
Per direct beschikbaar.
Deze informatie is door ons met de nodige zorgvuldigheid samengesteld. Onzerzijds wordt echter geen enkele aansprakelijkheid aanvaard voor enige onvolledigheid, onjuistheid of anderszins, dan wel de gevolgen daarvan. Alle opgegeven maten en oppervlakten zijn indicatief.
De bedrijfsruimte is functioneel van opzet en is o.a. voorzien van een lichtstraat, een entresolvloer van ca. 75 m², een elektrisch bedienbare overheaddeur, direct gestookte heater en led-verlichting. Aangrenzend bevindt zich een magazijnruimte met nieuwe coating en een wasruimte.
De kantoorruimte is in meerdere ruimten gecompartimenteerd en is o.a. voorzien van een luxe keuken, toiletruimten, airconditioning, verwarming, ledverlichting en inbraakbeveiliging.
Het buitenterrein is voorzien van 4 gemarkeerde parkeerplaatsen en groenvoorzieningen.
Locatie:
Het bedrijventerrein Zuid-Beijerland ligt op enkele autominuten van de op- en afritten van de rijksweg A29, daarnaast ligt bushalte R. van Dorplaan (bus 164, 194 en 712) op loopafstand.
Afmetingen:
- bedrijfsruimte : ca. 258 m²;
- entresolvloer : ca. 75 m²;
- kantoorruimte : ca. 223 m²;
- buitenterrein : ca. 300 m².
Parkeren:
4 gemarkeerde parkeerplaatsen op voorterrein. Daarnaast parkeergelegenheid langs de openbare weg.
Bestemming:
Bedrijfsdoeleinden t/m categorie 3.1.
Energielabel:
B, geldig t/m 9 mei 2035.
Bouwjaar:
1999.
Kadastrale gegevens:
- gemeente : Zuid-Beijerland;
- sectie : K;
- nummer : 651;
- grootte : 853 m² eigen grond.
Bouwaard/algemeen:
- onderheide fundering en betonvloer;
- opbouw staalconstructie;
- gevels deels metselwerk en deels geïsoleerde, geperforeerde sandwichpanelen met stalen
- damwandprofielbeplating;
- aluminium gevelkozijnen met isolerende beglazing;
- geïsoleerd staaldak met bitumineuze dakbedekking;
- meterkast met aansluitingen voor elektra, gas, water en telefonie/internet;
- brandblusmiddelen, brandhaspels, brandmeldinstallatie en inbraakbeveiliging (nieuw).
Voorzieningen/specificaties bedrijfsruimte rechts:
- monoliet afgewerkte betonvloer;
- vrije hoogte ca. 5,93 meter onder de staalconstructie;
- ruime daglichttoetreding door middel van een lichtstraat;
- verwarming door middel van een direct gestookte heater;
- elektrisch bedienbare overheaddeur;
- led-verlichting;
- entresolvloer met een max. vloerbelasting van ca. 500 kg/m², voorzien van o.a. een houten vloer,
- stalen constructie, valbeveiliging en een stalen steektrap.
- magazijnruimte van 34 m² voorzien van betonvloer met nieuwe coating, led-verlichting, toiletruimte en wastrog.
Voorzieningen/specificaties kantoorruimte:
- nieuw systeemplafond met led-verlichting;
- vloerafwerking pvc en tapijt;
- wandafwerking nieuw gesausd glasvliesbehang;
- verwarming; c.v.-installatie met radiatoren;
- stalen bordestrap met houten treden;
- houten steektrap;
- nieuwe airco-units;
- nieuwe luxe keuken met inbouwapparatuur;
- fraai sanitair;
- wandgoten.
Reclamevoering:
Uitsluitend in overleg met en na goedkeuring van eigenaar/verhuurder.
Huurprijs:
€ 4.250,- per maand exclusief servicekosten exclusief BTW.
Vraagprijs:
€ 725.000,- kosten koper.
Servicekosten (bij verhuur):
Per maand wordt € 250,- exclusief BTW in rekening gebracht als voorschot op onderstaande leveringen en diensten:
- periodiek onderhoud c.v.-installatie;
- periodiek onderhoud airco-units;
- periodiek tuinonderhoud;
- periodiek dakonderhoud;
- scope 10-keuring;
- periodiek onderhoud brandblusmiddelen;
- periodiek onderhoud overheaddeuren;
- periodiek onderhoud brandmeldinstallatie;
- periodiek onderhoud inbraakbeveiliging;
- administratiekosten 5%.
Huurperiode:
In nader overleg.
Huurbetaling:
Per maand vooruit.
Huurverhoging:
Jaarlijks, voor het eerst 1 jaar na huuringangsdatum, conform de wijziging van het maandprijsindexcijfer volgens de Consumentenprijsindex (CPI), reeks CPI-alle huishoudens (2015 = 100), gepubliceerd door het Centraal Bureau voor de Statistiek (CBS).
Huurovereenkomst:
De te sluiten huurovereenkomst zal worden opgemaakt op basis van het ROZ-model (Raad van Onroerende Zaken) kantoorruimte en andere bedrijfsruimte in de zin van artikel 7:230a BW, vastgesteld 30-01-2015 met bijbehorende Algemene Bepalingen gedeponeerd bij de griffie van de Rechtbank te Den Haag en op 17-02-2015 aldaar ingeschreven onder nummer 15/21.
Zekerheidstelling:
Bankgarantie of waarborgsom ter grootte van een kwartaalverplichting huur inclusief servicekosten inclusief BTW.
Omzetbelasting:
De huurprijs wordt belast met de geldende omzetbelasting. Huurder en verhuurder opteren voor een BTW-belaste verhuur. Indien op basis van de nieuwe BTW-wetgevingsvoorstelling huurder niet meer aan het criterium meer dan 90% BTW-belaste prestaties verricht voldoet, en zodoende het verzoek om BTW-belaste verhuur niet geaccepteerd wordt, dan zal de
huurprijs worden verhoogd met een nader door verhuurder vast te stellen percentage.
As is, where is:
De in deze verkoopbrochure gepresenteerde verkoop is gebaseerd op het ‘as is, where is’-principe waarbij de eigendom wordt aanvaard in de feitelijke, commerciële, juridische, milieukundige, technische en fiscale situatie zoals het is op de datum van overdracht, aldus met alle fouten en met inbegrip van alle bekende en onbekende, zichtbare en onzichtbare gebreken, lasten, beperkingen en verplichtingen. De verkoper zal na voltooiing van de transactie geen enkele aansprakelijkheid aanvaarden.
Oplevering:
Per direct beschikbaar.
Deze informatie is door ons met de nodige zorgvuldigheid samengesteld. Onzerzijds wordt echter geen enkele aansprakelijkheid aanvaard voor enige onvolledigheid, onjuistheid of anderszins, dan wel de gevolgen daarvan. Alle opgegeven maten en oppervlakten zijn indicatief.
Kaart
Kaart laden...
Kadastrale grens
Bebouwing
Reistijd
Krijg inzicht in de bereikbaarheid van dit object vanuit bijvoorbeeld een openbaar vervoer station of vanuit een adres.