Raadhuisstraat 17 6161 GB Geleen

€ 475.000 k.k.

Omschrijving

TE KOOP | RAADHUISSTRAAT 17 - SALMSTRAAT 2-2A | GELEEN

In het centrum van Geleen, op een uitstekende zichtlocatie op de hoek van de Raadhuisstraat en de Salmstraat, mogen wij dit unieke beleggingsobject aanbieden. Het object bestaat uit drie afzonderlijke eenheden, twee winkelruimtes op de begane grond en een bovenwoning, elk met eigen entree. Ieder adres heeft een eigen elektra-aansluiting. Er is één water- en gasaansluiting met tussenmeters.

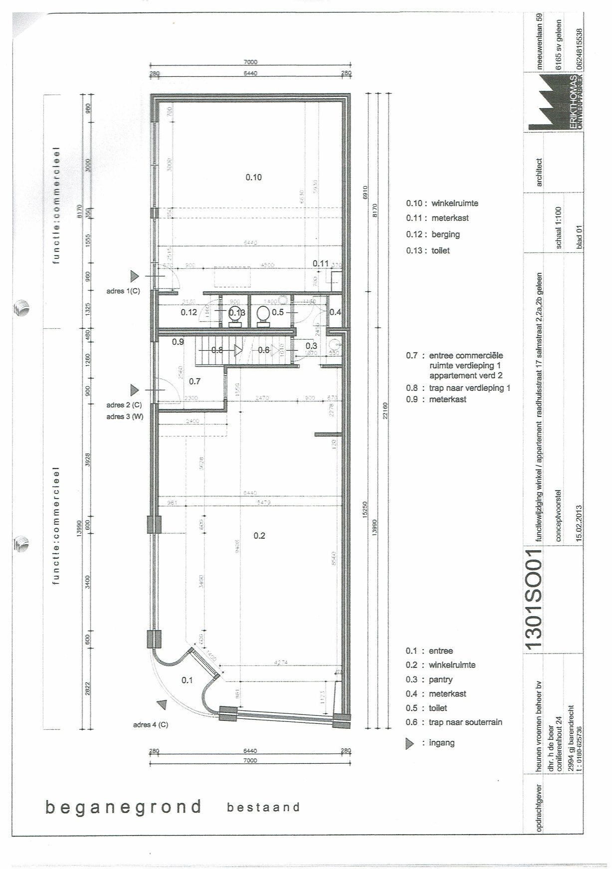
Raadhuisstraat 17 biedt een lichte en uitnodigende commerciële ruimte op de begane grond, dankzij de grote ramen die zorgen voor een prettige hoeveelheid daglicht. De ruimte is praktisch ingericht met een pantry, een toilet en een kelder en is geschikt voor diverse commerciële doeleinden

Salmstaat 2 is een royaal appartement van ca. 160 m², verdeeld over twee verdiepingen. Het appartement beschikt over een nette, functionele keuken, drie slaapkamers, een badkamer met toilet, een separaat toilet én een balkon om van buitenlucht te genieten.

Daarnaast is er aan Salmstraat 2A een compacte commerciële ruimte van ca. 36 m², compleet met een kleine pantry en toilet. Via een vlizotrap is er toegang tot de zolder, wat extra bergruimte biedt.

Direct naast de winkel aan de Salmstraat is een garagebox gelegen, deze is in het verleden gebruikt door de bewoner van de bovenwoning. De volledige onroerende zaak wordt bij verkoop leeg en vrij van huur opgeleverd.

Meer weten?
Neem vrijblijvend contact met ons op voor aanvullende informatie of het inplannen van een bezichtiging.

BASISKENMERKEN

Adres: Raadhuisstraat 17 – Salmstraat 2-2A - 6161GB – 6161 EM, Geleen
Bouwjaar: 1935
Gebruik: detailhandel, horeca, diensterlening, maatschappelijk, wonen
Perceeloppervlakte: 177 m2
Vraagprijs: € 475.000,- k.k.
Aanvaarding: In overleg, op korte termijn mogelijk

LOCATIE

Het object is gelegen op de hoek van de Raadhuisstraat en Salmstraat, midden in het centrum van Geleen.
Op loopafstand liggen diverse voorzieningen, waaronder een Albert Heijn, HEMA, Kruidvat en verschillende horecagelegenheden.

Bereikbaarheid:
Per auto: Vanaf de A76 is het object binnen 5 minuten te bereiken.
Per openbaar vervoer: Het busstation en treinstation van Geleen bevindt zich op loopafstand.

OBJECTINFORMATIE

Het gebouw bestaat uit:
Bouwlaag - Omschrijving – Oppervlakte (v.v.o.)
Kelder - opslagruimte - ca. 72 m²
Raadhuisstraat 17 multifunctionele ruimte - ca. 72 m²
Salmstraat 2 – appartement - ca. 160 m²
Salmstraat 2A – winkelruimte - ca. 36 m²
Totaal ca. 340 m²

Parkeren:
Er is één parkeerplaats beschikbaar in de garage op eigen terrein. Verder is voldoende openbare parkeergelegenheid in de nabije omgeving van het object.

Bestemming:
Als ruimtelijk kader geldt het Omgevingsplan ‘gemeente Sittard-Geleen’, met specifiek voor dit object het bestemmingsplan ‘Geleen Centrum’. Op basis van dit plan is het object bestemd als ‘Centrum -1’. Het Omgevingsplan is op eerste aanvraag beschikbaar via ons kantoor.

Opleveringsniveau:
Het object wordt in huidige staat (´as-is, where-is´) opgeleverd.

KOOPGEGEVENS

Vraagprijs: € 475.000,- kosten koper.
Aanvaarding: In overleg, op korte termijn mogelijk.
Kadastrale info: het object is kadastraal bekend:
Gemeente Geleen, sectie A, nummers 6081
Totaal groot: 177 m2
Eigendom soort: Volle eigendom.
Oplevering: In huidige staat, vrij van huur en bezemschoon.

Verkoop of verhuur van dit object is te allen tijde onder voorbehoud van schriftelijke goedkeuring door eigenaar.
Alle maten en afmetingen zijn bij benadering weergegeven. Deze aanbieding mag slechts worden gezien als een uitnodiging tot bezichtiging. Een afspraak hiertoe kunt u maken bij ons kantoor.

Kenmerken

Overdracht

Vraagprijs
€ 475.000 kosten koper
Aangeboden sinds
Status
Beschikbaar
Aanvaarding
In overleg

Bouw

Hoofdfunctie
Belegging
Mogelijke functie(s)
Horeca en winkelruimte
Soort bouw
Bestaande bouw
Bouwperiode
1931-1944

Oppervlakten

Oppervlakte
340 m²
Perceel
177 m²

Energie

Energielabel
Niet beschikbaar

Omgeving

Ligging
Stadscentrum/dorpskern
Bereikbaarheid
Bushalte op minder dan 500 m, NS Intercitystation op 500 m tot 1000 m en snelwegafrit op 1500 m tot 2000 m

Parkeergelegenheid

Parkeerplaatsen
1 overdekte parkeerplaats

Beleggingsobject

Verhuurd
340 m²

Kaart

Kaart laden...

Kadastrale grens Bebouwing

Reistijd

Krijg inzicht in de bereikbaarheid van dit object vanuit bijvoorbeeld een openbaar vervoer station of vanuit een adres.

Raadhuisstraat 17

€ 475.000 k.k.