Willemstraat 37 7551 DL Hengelo (OV)

€ 650.000 k.k.

Omschrijving

ALGEMEEN
In het hart van het Hengelose stadscentrum bieden wij dit volledig verhuurde beleggingsobject te koop aan. Het object is gelegen aan dé horecastraat van Hengelo en maakt daardoor onderdeel uit van een levendig en aantrekkelijk horecagebied.

Het gehele object is langdurig verhuurd aan één huurder, die zowel de horeca- als de woonruimten in gebruik heeft en de kamers onderverhuurt. De huidige huurovereenkomst loopt tot en met 28 februari 2031.

De gemeente Hengelo heeft plannen om dit deel van het centrum op korte termijn te transformeren, waarbij de openbare ruimte groener en moderner zal worden ingericht. Dit zal de uitstraling en aantrekkelijkheid van de omgeving verder versterken.

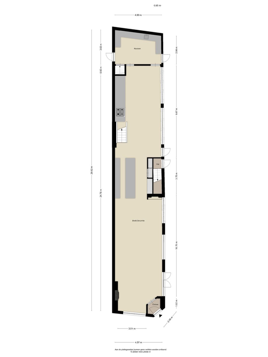
Het object omvat een horecaruimte op de begane grond met bijbehorende kelderruimte. Tevens beschikt het object over een separate opslagruimte en toilet voor bezoekers op de eerste verdieping, welke direct verbonden is met de horecaruimte.

Op de eerste en tweede verdieping bevinden zich een vijftal kamers, één badkamer, een separate toiletruimte en een keuken.

BEREIKBAARHEID
Het object is gelegen in het kernwinkelgebied van Hengelo en is derhalve met de auto en/of het openbaar vervoer goed toegankelijk. Het treinstation is gelegen op ca. 500 meter afstand.

VLOEROPPERVLAKTE
De totale verhuurbare vloeroppervlakte van het gebouw bedraagt ca. 391 m² en is als volgt onderverdeeld:

Willemstraat 37 (horecaruimte): 260,7 m²
Frontbreedte: ca. 30 meter
Marktstraat 30 (kamerverhuur): 130,3 m²

Het vloeroppervlak is ingemeten en berekend door Zibber conform de meetinstructie NEN 2580. Het meetcertificaat is op aanvraag beschikbaar.

ENERGIELABELS
Het object beschikt over twee afzonderlijke energielabels vanwege de aanwezigheid van twee adressen. Voor de bovenverdieping aan de Marktstraat 30 geldt het energielabel C. De horecaruimte aan de Willemstraat 37 heeft energielabel E.

PARKEREN
In de directe omgeving is ruim voldoende (betaalde) parkeergelegenheid.

BESTEMMING
Volgens het bestemmingsplan “Centrum 2013“ heeft het onderhavige de enkelbestemming “Horeca“ en de functieaanduiding “horeca van categorie 1”.

Voor het volledige bestemmingsplan kunt u terecht op: omgevingswet.overheid.nl

WIJZE VAN OPLEVERING
Het object wordt, in de huidige staat, onder bezwaar van huur en gebruik, opgeleverd.

HUUROPBRENGST
De actuele bruto huuropbrengst bedraagt € 52.938,84 op jaarbasis excl. BTW. De huurovereenkomst, die betrekking heeft op het volledig object, loopt tot en met 28 februari 2031. De huurder exploiteert naast de horecaruimte ook de kamers, door deze onder te verhuren aan derden.

Bij serieuze interesse zijn nadere gegevens betreffende de huurovereenkomst op aanvraag beschikbaar.

KADASTRAAL
Het geheel is plaatselijk bekend als Willemstraat 37, 7551 DL Hengelo én Marktstraat 30, 7551 DV Hengelo, kadastraal bekend gemeente Hengelo, sectie O, nummer 2863, perceelsoppervlakte 164 m².

LEVERING
Het object zal “as is, where is“ worden verkocht, om deze reden dus zonder enige verklaringen of garanties met betrekking tot de huidige juridische, milieu-, technische en/of fiscale aspecten van het object en zonder garanties over de afwezigheid van gebreken, lasten en/of beperkingen.

VRAAGPRIJS
€ 650.000,- kosten koper.

ZEKERHEIDSSTELLING
Waarborgsom ter grootte van 10% van de koopsom.

NOTARIS
Ter keuze van de koper.

VOORBEHOUD
Definitieve goedkeuring opdrachtgever.

De vermelde informatie is van algemene aard en is niet meer dan een uitnodiging om in onderhandeling te treden. Aan de inhoud van deze informatie kunnen geen rechten worden ontleend.

Kenmerken

Overdracht

Vraagprijs
€ 650.000 kosten koper
Aangeboden sinds
Status
Beschikbaar
Aanvaarding
In overleg

Bouw

Hoofdfunctie
Belegging
Soort bouw
Bestaande bouw
Bouwjaar
1907

Oppervlakten

Oppervlakte
391 m²
Perceel
164 m²

Indeling

Woonruimte
Aanwezig (inpandig, 130 m²)

Energie

Energielabel
C

Omgeving

Ligging
Stadscentrum/dorpskern
Bereikbaarheid
Bushalte op minder dan 500 m, NS Intercitystation op minder dan 500 m en snelwegafrit op 2000 m tot 3000 m

Beleggingsobject

Bruto huuropbrengst
€ 52.938 per jaar
Huurders
1 huurder
Verhuurd
391 m²

Kaart

Kaart laden...

Kadastrale grens Bebouwing

Reistijd

Krijg inzicht in de bereikbaarheid van dit object vanuit bijvoorbeeld een openbaar vervoer station of vanuit een adres.

Willemstraat 37

€ 650.000 k.k.