Begoniastraat 60 1214 CX Hilversum
€ 695.000 k.k.
Omschrijving
Deze gecombineerde bedrijfsruimte totaal ca. 221m2, voor het laatst in gebruik als kantoor en woning, staat momenteel leeg en biedt diverse gebruiksmogelijkheden. Het object is gelegen in Het Bloemenkwartier, een geliefd en primair woongebied in Hilversum Zuid. In de directe nabijheid bevindt zich de populaire winkelstraat Gijsbrecht van Amstelstraat met een breed aanbod aan kwalitatieve lokale en regionale ondernemers. Diverse nationale en internationale scholen zijn op loop en fietsafstand gelegen en het intercitystation Hilversum is binnen circa tien minuten per fiets bereikbaar. Dankzij de gunstige ligging ten opzichte van uitvalswegen en openbaar vervoer bent u binnen ongeveer dertig minuten in het centrum van Utrecht of Amsterdam.
Begane grond/kantoor
De begane grond is ingericht als kantoorruimte en is enkele jaren geleden zorgvuldig gerenoveerd. Daarbij zijn onder andere nieuwe kozijnen met dubbele beglazing geplaatst en is de ruimte voorzien van een moderne keuken, een toilet, een tegelvloer met vloerverwarming, vernieuwde elektra en strak afgewerkte wanden. De ruimte maakt een verzorgde en representatieve indruk.
Opleveringsniveau
Het object wordt opgeleverd in de huidige staat, "as is where is", inclusief de navolgende voorzieningen:
- vloerverwarming met tegelvloer;
- hangend toilet;
- moderne keuken;
- winkelpui;
- gladde wandafwerking.
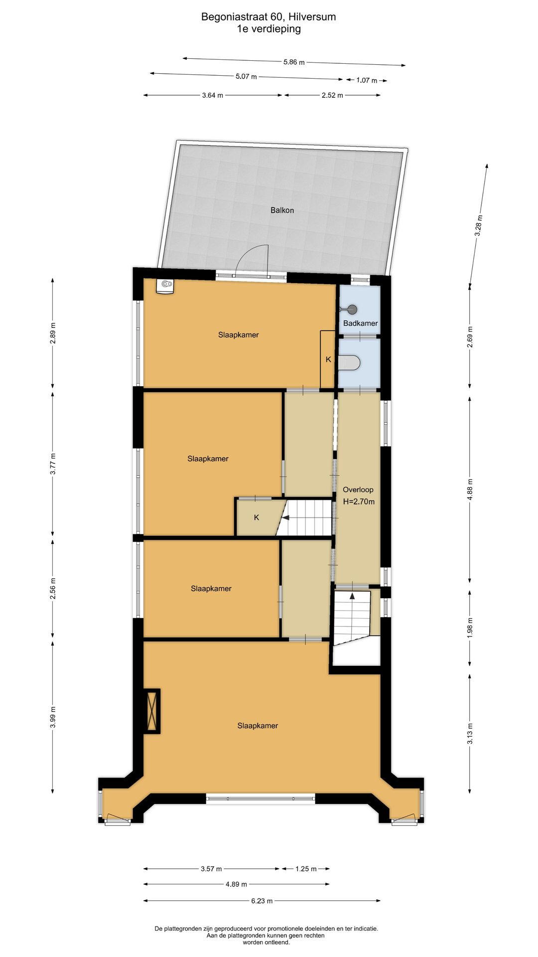
Eerste verdieping/woning
De eerste verdieping is de afgelopen periode verhuurd geweest als woonruimte, ingedeeld in vijf kamers met een gedeelde keuken en badkamer met toilet. Ook deze verdieping is momenteel leeg en kan door de nieuwe eigenaar naar eigen wens en binnen de geldende regelgeving worden ingericht en gebruikt. De verdieping is voorzien van nieuwe kozijnen en beglazing. Aan de voorzijde bevindt zich de grootste kamer met twee karakteristieke erkers. Aan de achterzijde was voorheen een keuken gesitueerd en is er toegang tot het dakterras.
Tweede verdieping/woning
Op de tweede verdieping bevinden zich twee ruime kamers, beide voorzien van een dakkapel met moderne beglazing. De daken zijn goed geïsoleerd, wat bijdraagt aan een prettig wooncomfort.
Bijzonderheden
- begane grond circa 96 m²;
- eerste en tweede verdieping samen circa 125 m²;
- berging naast het object;
- bestemming bedrijf, voor nader onderzoek naar de gebruiksmogelijkheden verwijzen wij u naar het omgevingsloket;
- pand is voorzien van energielabel D en G, mede doordat onder andere de vloerisolatie niet aantoonbaar is;
- uitstekende locatie in een primair woongebied;
- Bestemming "bedrijf".
Begane grond/kantoor
De begane grond is ingericht als kantoorruimte en is enkele jaren geleden zorgvuldig gerenoveerd. Daarbij zijn onder andere nieuwe kozijnen met dubbele beglazing geplaatst en is de ruimte voorzien van een moderne keuken, een toilet, een tegelvloer met vloerverwarming, vernieuwde elektra en strak afgewerkte wanden. De ruimte maakt een verzorgde en representatieve indruk.
Opleveringsniveau
Het object wordt opgeleverd in de huidige staat, "as is where is", inclusief de navolgende voorzieningen:
- vloerverwarming met tegelvloer;
- hangend toilet;
- moderne keuken;
- winkelpui;
- gladde wandafwerking.
Eerste verdieping/woning
De eerste verdieping is de afgelopen periode verhuurd geweest als woonruimte, ingedeeld in vijf kamers met een gedeelde keuken en badkamer met toilet. Ook deze verdieping is momenteel leeg en kan door de nieuwe eigenaar naar eigen wens en binnen de geldende regelgeving worden ingericht en gebruikt. De verdieping is voorzien van nieuwe kozijnen en beglazing. Aan de voorzijde bevindt zich de grootste kamer met twee karakteristieke erkers. Aan de achterzijde was voorheen een keuken gesitueerd en is er toegang tot het dakterras.
Tweede verdieping/woning
Op de tweede verdieping bevinden zich twee ruime kamers, beide voorzien van een dakkapel met moderne beglazing. De daken zijn goed geïsoleerd, wat bijdraagt aan een prettig wooncomfort.
Bijzonderheden
- begane grond circa 96 m²;
- eerste en tweede verdieping samen circa 125 m²;
- berging naast het object;
- bestemming bedrijf, voor nader onderzoek naar de gebruiksmogelijkheden verwijzen wij u naar het omgevingsloket;
- pand is voorzien van energielabel D en G, mede doordat onder andere de vloerisolatie niet aantoonbaar is;
- uitstekende locatie in een primair woongebied;
- Bestemming "bedrijf".
Kenmerken
Overdracht
- Vraagprijs
- € 695.000 kosten koper
- Aangeboden sinds
-
- Status
- Beschikbaar
- Aanvaarding
- In overleg
Bouw
- Hoofdfunctie
- Belegging
- Mogelijke functie(s)
- Kantoorruimte
- Soort bouw
- Bestaande bouw
- Bouwjaar
- 1903
Oppervlakten
- Oppervlakte
- 125 m²
- Perceel
- 150 m²
Indeling
- Woonruimte
- Aanwezig (inpandig, 0 m²)
Energie
- Energielabel
- D
Omgeving
- Ligging
- In woonwijk
- Bereikbaarheid
- Bushalte op minder dan 500 m, NS Intercitystation op 1000 m tot 1500 m en snelwegafrit op 1000 m tot 1500 m
Foto's
Plattegrond
Begane grond
1e verdieping
2e verdieping