Omschrijving
Op toplocatie in het centrum van Leeuwarden, aan de Nieuwestad in de hoofdwinkelstraat van Leeuwarden gelegen woon-/winkel beleggingsobject.
Locatie
Het pand, een uit circa 1930 stammend beeld ondersteunend object beschermd door de gemeente Leeuwarden, is gelegen op een absolute A-locatie in het historische en levendige hart van Leeuwarden.
De Nieuwestad kenmerkt zich door een verscheidenheid aan winkels, boetieks, speciaalzaken en een gevarieerd horeca aanbod.
Vermeldenswaardig dat de Nieuwestad in het kader van de herinrichting van de binnenstad door de gemeente Leeuwarden zal worden aangepast waardoor de verblijfskwaliteit verder zal toenemen.
Zie tevens :
Parkeren
In de directe omgeving zijn diverse mogelijkheden om te parkeren. Betaald parkeren is van toepassing in de straten rondom het centrum. Voor bezoekers zijn er meerdere parkeergarages in de buurt, zoals de Oldehove, Hoeksterend en de Zaailandgarage, hier kan veilig en overdekt worden geparkeerd.
Oppervlakte
De totale vloeroppervlakte bedraagt: circa 145 m² GO, verdeeld over:
Winkel;
Begane grond: circa 53 m² GO.
Woning:
- Entree begane grond : circa 4 m² GO.
- Eerste verdieping : circa 53 m² GO.
- Tweede verdieping : circa 35 m² GO.
Indeling onder meer
Op de begane grond is een zelfstandige winkelruimte gesitueerd, deze winkelruimte is thans in casco staat en kan door diverse type kleinschalige gebruikers in gebruik worden gaan genomen.
Op BG niveau bevindt zich tevens de eigen voordeur en opgang naar de verhuurde bovenwoning.
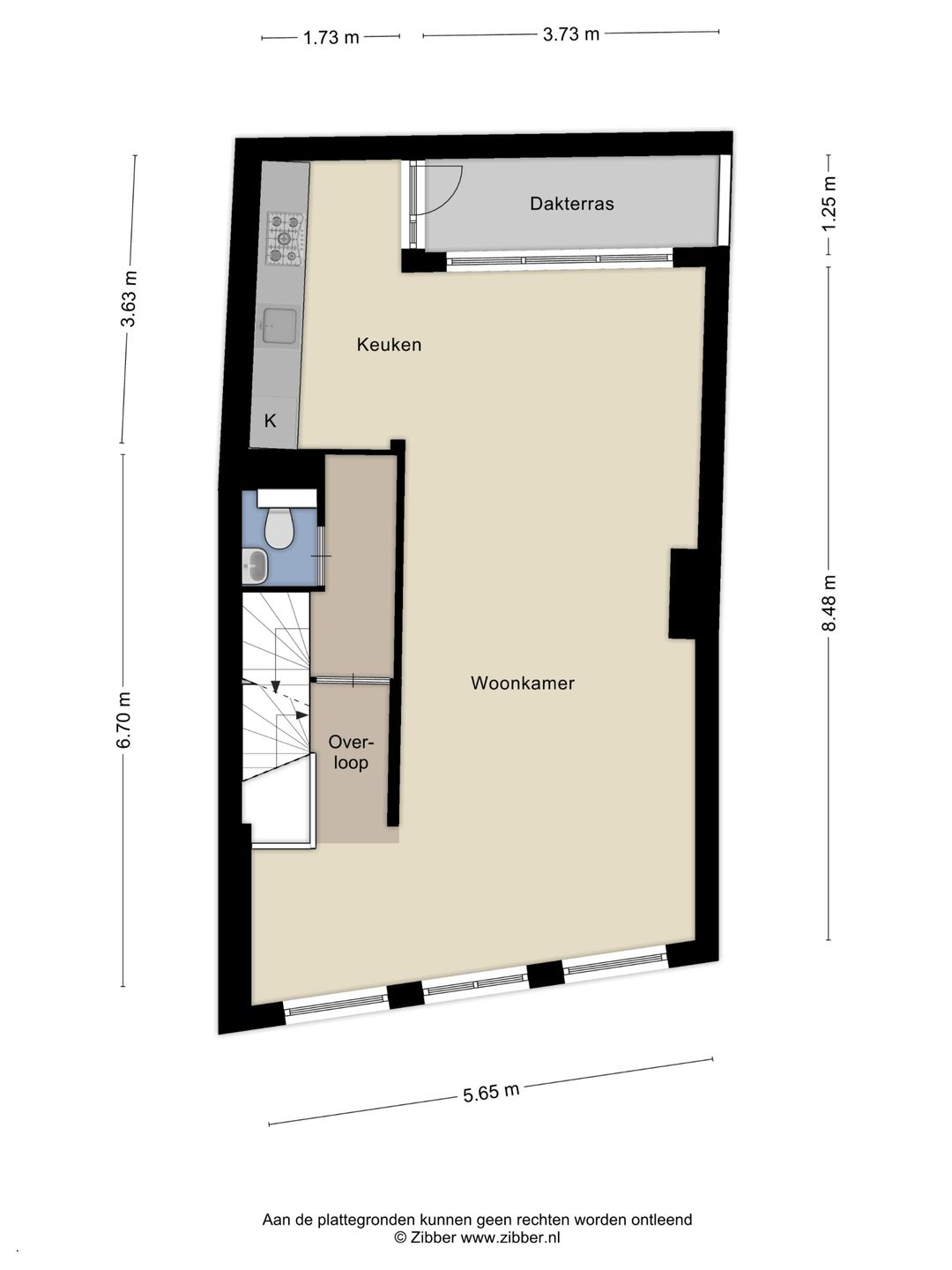
De bovenwoning betreft een zelfstandige moderne woonruimte gesitueerd op de 1e en 2e etage.
De 1e etage bestaat uit een woonkamer met open keuken (luxe inbouwkeuken met diverse inbouwapparatuur) en balkon, een overloop met daaraan een separaat toilet.
De 2e etage bestaat uit 2 slaapkamers en een moderne badkamer / douche voorzien van 2e toilet.
Huurgegevens
Nieuwestad 35 - Winkelruimte met casco opleveringsniveau
Huurder: thans niet verhuurd, leegstand
Huurprijs: € 15.000,- per jaar, te vermeerderen met BTW.
Nieuwestad 35a - Bovenwoning
Huurder: vanaf april 2025
Huuropbrengst: circa € 12.000 per jaar, te vermeerderen met BTW
Huurtermijn: onbepaald
Bestemmingsplan:
Binnenstad – gemeente Leeuwarden, vastgesteld op 17 december 2017.
Bestemming: Enkelbestemming Centrum 2, Dubbelbestemming: Waarde Archeologisch gemeentelijk monument en Beschermd Stadsgezicht.
Energielabel
Het pand betreft een gemeentelijk monument, hierdoor is het momenteel niet energielabel plichtig.
De vrijstelling hiervoor vervalt 29 mei 2026.
Enerigelabel 35: A+++, geldig tot 21-02-2036.
Energielabel 35A: D, geldig tot 21-01-2036.
VERKOOPVOORWAARDEN
Vraagprijs
€ 399.000,- kosten koper.
Aanvaarding
In overleg.
Bijzonderheden
Levering onder de conditie "as is, where is".
Waarborgsom/bankgarantie
Bij het tot stand komen van een koopovereenkomst dient koper 10% borgsom te storten c.q. een bankgarantie ter grootte van 10% van de koopsom af te geven bij de notaris.
Meer informatie over dit object?
Voor meer informatie en/of het maken van een afspraak kunt u contact opnemen met Tjibbe-Jan Boringa, Jeroen van Reenen of Levi Huijser, telefoon 0513 - 644 355 of 058 - 204 0000 of stuur een e-mail naar info @ rbmt .nl
DISCLAIMER
Deze informatie (inclusief bijlagen) van "RBMT Bedrijfsmakelaars & Taxateurs Noord-Nederland B.V. " is met grote zorgvuldigheid samengesteld. Voor mogelijke onjuistheid en/of onvolledigheid van de verstrekte informatie kan "RBMT Bedrijfsmakelaars & Taxateurs Noord-Nederland B.V. " geen aansprakelijkheid aanvaarden, evenmin kunnen aan de inhoud van deze informatie (inclusief bijlagen) rechten worden ontleend. Deze informatie is geheel vrijblijvend en niet meer dan een uitnodiging tot het doen van een voorstel.
Locatie
Het pand, een uit circa 1930 stammend beeld ondersteunend object beschermd door de gemeente Leeuwarden, is gelegen op een absolute A-locatie in het historische en levendige hart van Leeuwarden.
De Nieuwestad kenmerkt zich door een verscheidenheid aan winkels, boetieks, speciaalzaken en een gevarieerd horeca aanbod.
Vermeldenswaardig dat de Nieuwestad in het kader van de herinrichting van de binnenstad door de gemeente Leeuwarden zal worden aangepast waardoor de verblijfskwaliteit verder zal toenemen.
Zie tevens :
Parkeren
In de directe omgeving zijn diverse mogelijkheden om te parkeren. Betaald parkeren is van toepassing in de straten rondom het centrum. Voor bezoekers zijn er meerdere parkeergarages in de buurt, zoals de Oldehove, Hoeksterend en de Zaailandgarage, hier kan veilig en overdekt worden geparkeerd.
Oppervlakte
De totale vloeroppervlakte bedraagt: circa 145 m² GO, verdeeld over:
Winkel;
Begane grond: circa 53 m² GO.
Woning:
- Entree begane grond : circa 4 m² GO.
- Eerste verdieping : circa 53 m² GO.
- Tweede verdieping : circa 35 m² GO.
Indeling onder meer
Op de begane grond is een zelfstandige winkelruimte gesitueerd, deze winkelruimte is thans in casco staat en kan door diverse type kleinschalige gebruikers in gebruik worden gaan genomen.
Op BG niveau bevindt zich tevens de eigen voordeur en opgang naar de verhuurde bovenwoning.
De bovenwoning betreft een zelfstandige moderne woonruimte gesitueerd op de 1e en 2e etage.
De 1e etage bestaat uit een woonkamer met open keuken (luxe inbouwkeuken met diverse inbouwapparatuur) en balkon, een overloop met daaraan een separaat toilet.
De 2e etage bestaat uit 2 slaapkamers en een moderne badkamer / douche voorzien van 2e toilet.
Huurgegevens
Nieuwestad 35 - Winkelruimte met casco opleveringsniveau
Huurder: thans niet verhuurd, leegstand
Huurprijs: € 15.000,- per jaar, te vermeerderen met BTW.
Nieuwestad 35a - Bovenwoning
Huurder: vanaf april 2025
Huuropbrengst: circa € 12.000 per jaar, te vermeerderen met BTW
Huurtermijn: onbepaald
Bestemmingsplan:
Binnenstad – gemeente Leeuwarden, vastgesteld op 17 december 2017.
Bestemming: Enkelbestemming Centrum 2, Dubbelbestemming: Waarde Archeologisch gemeentelijk monument en Beschermd Stadsgezicht.
Energielabel
Het pand betreft een gemeentelijk monument, hierdoor is het momenteel niet energielabel plichtig.
De vrijstelling hiervoor vervalt 29 mei 2026.
Enerigelabel 35: A+++, geldig tot 21-02-2036.
Energielabel 35A: D, geldig tot 21-01-2036.
VERKOOPVOORWAARDEN
Vraagprijs
€ 399.000,- kosten koper.
Aanvaarding
In overleg.
Bijzonderheden
Levering onder de conditie "as is, where is".
Waarborgsom/bankgarantie
Bij het tot stand komen van een koopovereenkomst dient koper 10% borgsom te storten c.q. een bankgarantie ter grootte van 10% van de koopsom af te geven bij de notaris.
Meer informatie over dit object?
Voor meer informatie en/of het maken van een afspraak kunt u contact opnemen met Tjibbe-Jan Boringa, Jeroen van Reenen of Levi Huijser, telefoon 0513 - 644 355 of 058 - 204 0000 of stuur een e-mail naar info @ rbmt .nl
DISCLAIMER
Deze informatie (inclusief bijlagen) van "RBMT Bedrijfsmakelaars & Taxateurs Noord-Nederland B.V. " is met grote zorgvuldigheid samengesteld. Voor mogelijke onjuistheid en/of onvolledigheid van de verstrekte informatie kan "RBMT Bedrijfsmakelaars & Taxateurs Noord-Nederland B.V. " geen aansprakelijkheid aanvaarden, evenmin kunnen aan de inhoud van deze informatie (inclusief bijlagen) rechten worden ontleend. Deze informatie is geheel vrijblijvend en niet meer dan een uitnodiging tot het doen van een voorstel.
Kaart
Kaart laden...
Kadastrale grens
Bebouwing
Reistijd
Krijg inzicht in de bereikbaarheid van dit object vanuit bijvoorbeeld een openbaar vervoer station of vanuit een adres.