Brink 43-434 7963 AB Ruinen (Gem. De Wolden)
- Verkocht onder voorbehoud
Prijs op aanvraag
Omschrijving
BRINK 43 - 43 A - 43.1 t/m 43.4: Herontwikkeling met toekomst!
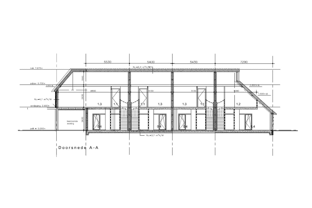
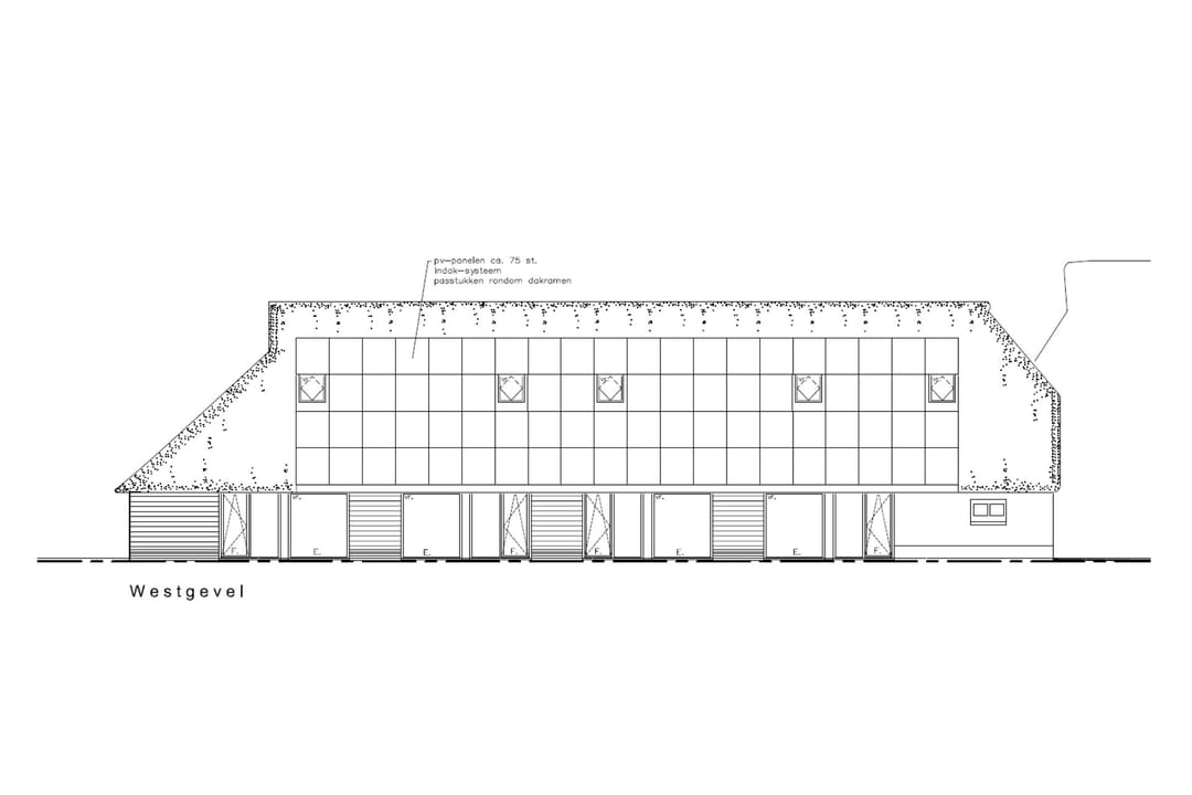
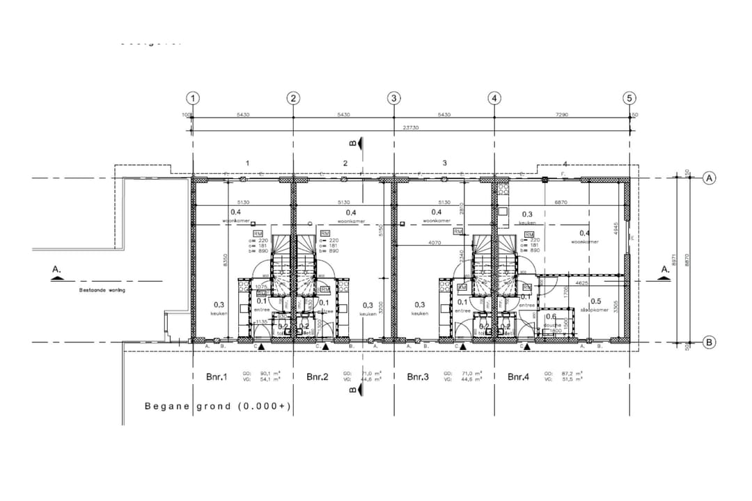
Aan de Brink in Ruinen, staat dit unieke object met een uitzonderlijk ontwikkelingspotentieel! Voor de schuur zijn bouwtekeningen en een vergunning beschikbaar voor de realisatie van vier appartementen, waardoor de nieuwe eigenaar direct aan de slag kan met deze buitenkans.
De woning zelf, volledig herbouwd in 2012, is modern, optimaal geïsoleerd en voorzien van vloerverwarming en muurverwarming. Het beschikt over een separaat appartement (Brink 43a), ideaal voor inwoning of mantelzorg, en biedt diverse gebruiksmogelijkheden zoals bedrijvigheid, kantoor aan huis, zorg, B&B of verdere herontwikkeling (Brink 43.1, 43.2 ,43.3, 43.4).
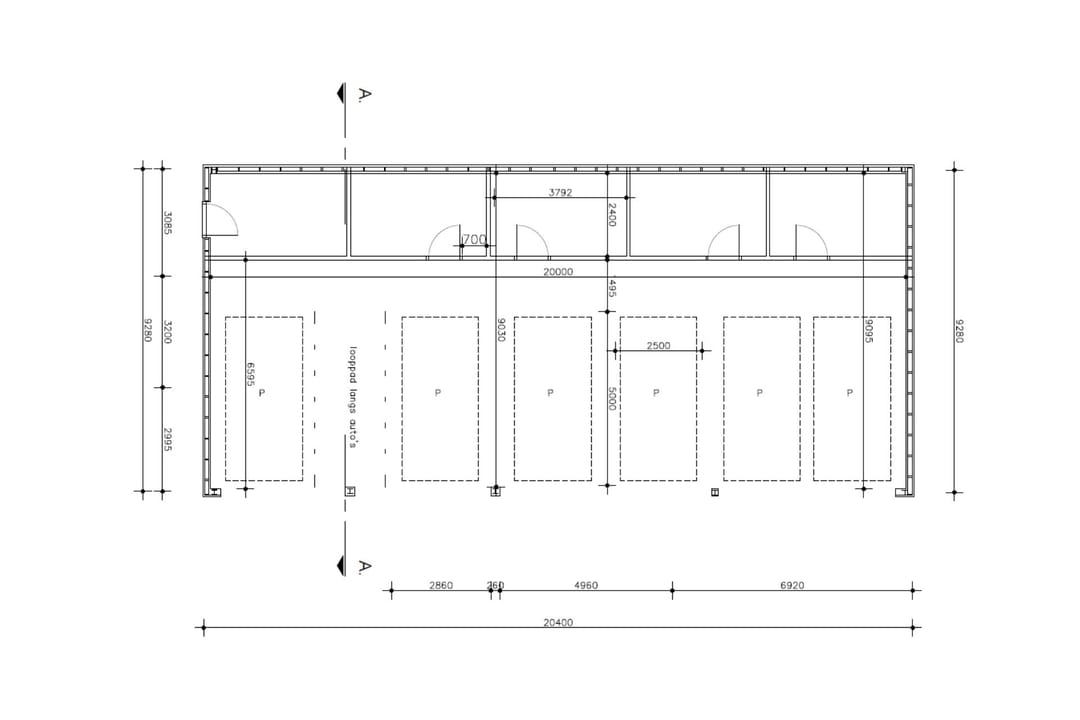
De ruime bijgebouwen, waaronder een kapschuur en carport, bieden meer dan voldoende parkeerruimte, ook voor campers, caravans of boten. De tuin is met zorg aangelegd en vormt een rustige plek om te genieten van deze bijzondere locatie.
Een unieke kans voor wie zoekt naar een veelzijdige woning met concrete ontwikkelingsmogelijkheden!
Perceeloppervlakte 3.096 m².
Woongedeelte
Woonkeuken
Een sfeervolle en karaktervolle woonkeuken met een rechte wandopstelling en een spoeleiland. De keuken is uitgerust met diverse apparatuur, waaronder een AGA-fornuis met meerdere ovens, een vaatwasser en een afzuigkap. In de hoek zijn een koelkast, en een combimagnetron geplaatst. Verder is er lekker veel werk- en bergruimte aanwezig.
Sanitair
• De badkamer op de begane grond is voorzien van een stijlvol wastafelmeubel, een toilet, een whirlpool ligbad en een dubbele inloopdouche.
• Het aparte toilet beschikt over een wandcloset en een fontein.
• De twee en-suite badkamers op de bovenverdieping zijn voorzien van een wastafelmeubel en een inloopdouche.
• De aparte badkamer is uitgerust met een ligbad, een wastafelmeubel en een douche.
Appartement
Keuken
De keuken is voorzien van een rechte wandopstelling een inductiekookplaat, afzuigkap en een oven.
Sanitair
• Het toilet in de entree is ingericht met een wandcloset en fontein.
• De badkamer is voorzien van wastafelmeubel en inloopdouche.
Bestemming
Ter plaatse van de woning, verdere opstallen en erf is de bestemming ‘Wonen’( centrum). Meer informatie kunt u vinden bij de gemeente, het Omgevingsloket of de website van Het Betere Boerenerf. Wij hebben het omgevingsplan ook voor u beschikbaar.
Installaties
• Verwarming en warm water worden verzorgd door een cv-ketel (Type: Daalderop. Bouwjaar: 2010).
• De woning is volledig voorzien van vloerverwarming, verdeeld in zes groepen, met zoneregeling.
• Verwarming wordt ook geregeld door muurverwarming en twee pelletkachels.
• In 2012 zijn er maar liefst 39 zonnepanelen geplaatst.
• Glasvezelaansluiting is aanwezig.
• Voorzien van domoticasysteem.
‘Kortom, een imposante woonboerderij met oneindig veel mogelijkheden. Bel voor een bezichtiging met de makelaars van Het Betere Boerenerf.’
We hebben uitgebreide informatie voor u beschikbaar.
Aanvaarding in overleg.
Aan de Brink in Ruinen, staat dit unieke object met een uitzonderlijk ontwikkelingspotentieel! Voor de schuur zijn bouwtekeningen en een vergunning beschikbaar voor de realisatie van vier appartementen, waardoor de nieuwe eigenaar direct aan de slag kan met deze buitenkans.
De woning zelf, volledig herbouwd in 2012, is modern, optimaal geïsoleerd en voorzien van vloerverwarming en muurverwarming. Het beschikt over een separaat appartement (Brink 43a), ideaal voor inwoning of mantelzorg, en biedt diverse gebruiksmogelijkheden zoals bedrijvigheid, kantoor aan huis, zorg, B&B of verdere herontwikkeling (Brink 43.1, 43.2 ,43.3, 43.4).
De ruime bijgebouwen, waaronder een kapschuur en carport, bieden meer dan voldoende parkeerruimte, ook voor campers, caravans of boten. De tuin is met zorg aangelegd en vormt een rustige plek om te genieten van deze bijzondere locatie.
Een unieke kans voor wie zoekt naar een veelzijdige woning met concrete ontwikkelingsmogelijkheden!
Perceeloppervlakte 3.096 m².
Woongedeelte
Woonkeuken
Een sfeervolle en karaktervolle woonkeuken met een rechte wandopstelling en een spoeleiland. De keuken is uitgerust met diverse apparatuur, waaronder een AGA-fornuis met meerdere ovens, een vaatwasser en een afzuigkap. In de hoek zijn een koelkast, en een combimagnetron geplaatst. Verder is er lekker veel werk- en bergruimte aanwezig.
Sanitair
• De badkamer op de begane grond is voorzien van een stijlvol wastafelmeubel, een toilet, een whirlpool ligbad en een dubbele inloopdouche.
• Het aparte toilet beschikt over een wandcloset en een fontein.
• De twee en-suite badkamers op de bovenverdieping zijn voorzien van een wastafelmeubel en een inloopdouche.
• De aparte badkamer is uitgerust met een ligbad, een wastafelmeubel en een douche.
Appartement
Keuken
De keuken is voorzien van een rechte wandopstelling een inductiekookplaat, afzuigkap en een oven.
Sanitair
• Het toilet in de entree is ingericht met een wandcloset en fontein.
• De badkamer is voorzien van wastafelmeubel en inloopdouche.
Bestemming
Ter plaatse van de woning, verdere opstallen en erf is de bestemming ‘Wonen’( centrum). Meer informatie kunt u vinden bij de gemeente, het Omgevingsloket of de website van Het Betere Boerenerf. Wij hebben het omgevingsplan ook voor u beschikbaar.
Installaties
• Verwarming en warm water worden verzorgd door een cv-ketel (Type: Daalderop. Bouwjaar: 2010).
• De woning is volledig voorzien van vloerverwarming, verdeeld in zes groepen, met zoneregeling.
• Verwarming wordt ook geregeld door muurverwarming en twee pelletkachels.
• In 2012 zijn er maar liefst 39 zonnepanelen geplaatst.
• Glasvezelaansluiting is aanwezig.
• Voorzien van domoticasysteem.
‘Kortom, een imposante woonboerderij met oneindig veel mogelijkheden. Bel voor een bezichtiging met de makelaars van Het Betere Boerenerf.’
We hebben uitgebreide informatie voor u beschikbaar.
Aanvaarding in overleg.
Kenmerken
Overdracht
- Vraagprijs
- Prijs op aanvraag
- Aangeboden sinds
-
- Status
- Verkocht onder voorbehoud
- Aanvaarding
- In overleg
Bouw
- Hoofdfunctie
- Belegging
- Soort bouw
- Bestaande bouw
- Bouwjaar
- 2012
Oppervlakten
- Oppervlakte
- 904 m²
- Perceel
- 3.096 m²
Energie
- Energielabel
- A
Omgeving
- Ligging
- In woonwijk
Parkeergelegenheid
- Parkeerplaatsen
- 6 overdekte parkeerplaatsen
Beleggingsobject
- Huurders
- 6 huurders
NVM makelaar
Foto's