• Verkocht onder voorbehoud

Dr. Dreeslaan 5707 KE Helmond

€ 379.000 k.k.

Omschrijving

LAATSTE KAVEL TE KOOP!
Op het plan Dr. Dreeslaan - Hoefkens in Helmond wordt het laatste woon-werkkavel te koop aangeboden!

Er zijn door verkoper reeds twee volledig uitgewerkte bouwplannen aanwezig welke in de verkoop betrokken zullen worden.
De volledige tekeningen zijn op aanvraag beschikbaar.

Toestand kavel:
- Bouwrijp;
- Bouwaansluiting aanwezig;
- Wateraansluiting aanwezig;
- Bodemonderzoeken reeds uitgevoerd.

Kadastrale gegevens:
Gemeente: Helmond;
Sectie: T
Nummer: 7992
Groot: 1.025m²

Ligging
Plan de Hoefkens is gelegen aan de Dr. Dreeslaan in Helmond ‘t Hout. Aan de noordzijde grenst het plan aan de Burgemeester Krollaan en aan de zuidzijde aan De Hoefkens. Station Helmond ‘t Hout bevindt zich op loopafstand. En op steenworp afstand ligt de Europaweg / N270. Aan de overzijde van het spoor aan de Hoofdstraat in Mierlo Hout ligt een wijkwinkelcentrum en een basisschool. De aanliggende woonwijk is te kwalificeren als uitstekend. Het wordt gekenmerkt door vrijstaande woningen, brede straten en veel ruimte voor groen en spelen. Dit maakt het tot een uiterst aangenaam woonklimaat. Aan de oostzijde van het plan ligt het terrein van Groep Jumbo Groenewegen die vrachtwagentrailers produceert. De ligging van het plangebied maakt het bij uitstek geschikt voor de combinatie van wonen en werken op dezelfde (ruime) kavel.

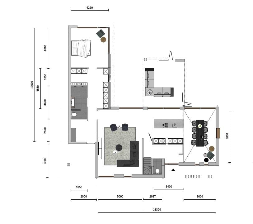
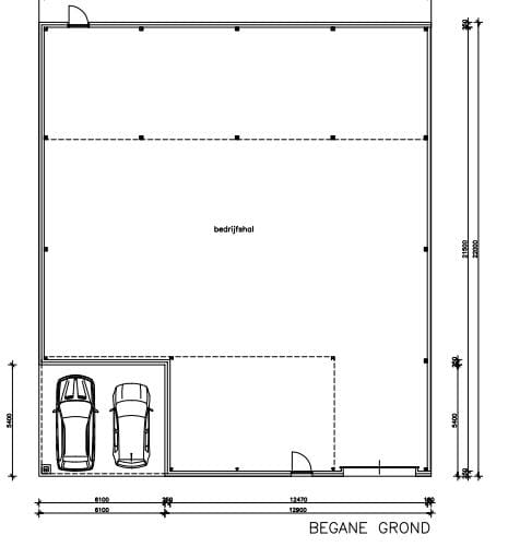
Informatie aanwezige bouwplannen:
Plan 1:
Woonoppervlakte: circa 227m²
Bedrijfsruimte: circa 370m²

Plan 2:
Woonoppervlakte: circa 260m²
Bedrijfsruimte: circa 370m²

Deze oppervlakten zijn indicatief gemeten en mogen niet als NEN2580 meetrapport worden beschouwd.
Aan deze informatie kunnen geen rechten worden ontleend.

Bestemmingsplan:
Ter plaatse geldt het bestemmingsplan “’t Hout - Hoek Dr Dreeslaan - Hoefkens”.
Het object heeft hierin de bestemming “Bedrijf".

Functieaanduiding:
Specifieke vorm van bedrijf - 1.

Binnen deze bestemming is toegestaan:
Bedrijven in de milieucategorie 1 en 2;
Commerciële dienstverlening en aan huis gebonden beroepen, doch met uitzondering van consumentgebonden dienstverlening;

De overige bouwregels zijn op aanvraag beschikbaar.

KOOPGEGEVENS:
Koopprijs: € 379.000,= excl. BTW.

Aanvaarding:
In overleg.

Notariskosten:
Voor rekening van koper.

Overdrachtsbelasting:
Niet van toepassing.

Omzetbelasting:
Van toepassing.

Zekerheidsstelling:
Waarborgsom of bankgarantie ter grootte van 10% van de koopsom.

Voorbehoud:
Een en ander geschiedt onder aanvaarding en voorbehoud goedkeuring opdrachtgever.

Kenmerken

Overdracht

Vraagprijs
€ 379.000 kosten koper
Aangeboden sinds
Status
Verkocht onder voorbehoud
Aanvaarding
In overleg

Bouw

Hoofdfunctie
Bouwgrond
Bebouwingsmogelijkheid
Bedrijfsruimte
Maximale bouwhoogte
6 m

Oppervlakten

Oppervlakte
1.025 m²
Perceel
1.025 m²

Kaart

Kaart laden...

Kadastrale grens Bebouwing

Reistijd

Krijg inzicht in de bereikbaarheid van dit object vanuit bijvoorbeeld een openbaar vervoer station of vanuit een adres.

Dr. Dreeslaan

€ 379.000 k.k.