Koggeweg 26 1606 MN Venhuizen
Price on request
Description
Fraai gelegen TULPENBROEIERIJ op totaal 04.12.15 hectare, bestaande uit een royale vrijstaande bedrijfswoning met ondergrond erf en tuin, nette royale bedrijfsschuur met koelcellen, glasopstanden, cultuurgronden, erfverharding en watersilo.
Staande en zeer gunstig gelegen aan de rand van het West-Friese IJsselmeerdorp Venhuizen met een goede afstand en ontsluiting van uitvalswegen.
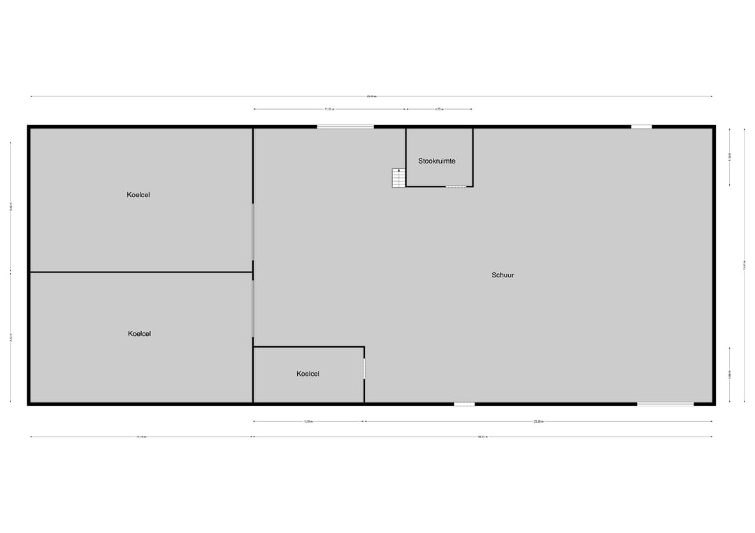
BEDRIJFSSCHUUR
Bouwjaar: 2002
Afmeting: 50 bij 20 meter (1000 m²)
Voorzien van twee ruime koelcellen, 2x 150 m² (2 verdampers per cel) en een kleine cel van circa 32 m².
Aparte ketelruimte voorzien van een koelinstallatie met tweetal motoren uit 2001 en een
Unical gasketel met een capaciteit van 650 KW/circa.580.000 cal (300 cal per m²)
GLASOPSTANDEN
Bouwjaar: 1992
Type: Breedkapper (3 tal kappen)
Oppervlakte: Circa 1940 m²
Poothoogte: 3,25 meter
Goothoogte: 3,40 meter (condensgoot)
Kapbreedte: 12,80 meter
Onderbouw: Verzinkt staal
Dek: Aluminium dek met roeden
Beluchting: Doorlopende nokbeluchting
Brandwerend schermdoek
Sercom klimaatcomputer
Infrastructuur: Betonpaden
SCHUUR/GARAGE/KANTINE/KANTOOR
Bouwjaar 1964
Oppervlakte circa 124 m²
Dubbele elektrische deuren, opslagruimte, omvormers, toiletruimte, kantine met keukenblok en nette kantoorruimte.
ERFVERHARDING
Betonplein voor- en om de gebouwen bestaande uit betonverharding stelcon beplating. totaal circa 1.540 m².
OVERIGE LANDERIJEN
Gelegen achter en naast de gebouwen met een oppervlakte van circa 03.33.00 hectare. Deze grond is goed ontsloten middels het voorgelegen verharde betonplein alsmede een tweede dam aan de Koggeweg.
Kwalitatief hoogwaardige cultuurgrond bestaande uit kalk -en zwavelrijke zeekleigrond met minerale eerdlaag met oplopende profielopbouw met een juiste lengte/breedte verhouding en een goede vlakteligging.
DE VRIJSTAANDE BEDRIJFSWONING
Royale bedrijfswoning met op de begane grond een logische en praktische indeling. Binnenkomen via de achterdeur in de bijkeuken met garderoberuimte, achterdeur, aansluitingen voor het witgoed én de recent vernieuwde en hedendaagse riante badkamer. De woonkamer is heerlijk licht met diverse zithoeken, twee schuifpuien én openslaande deuren naar de omliggende keurig ingerichte tuin. De open keuken is eigentijds en voorziet in alle wenselijk gemakken. Op de verdieping een ruime overloop, een viertal grote slaapkamers en een tweede toilet. De tuin is ingericht met een groot terras, gazon, fraaie beplanting en een keurige overkapping, welke ruimte biedt aan een loungeset en eetgelegenheid. Alles opgeteld maakt dit een heerlijk privacyvol geheel.
BESTEMMING
Het geheel heeft als vigerende bestemming agrarisch grondgebonden.
KENMERKEN
- Gunstig gelegen in het buitengebied van Venhuizen met goede ontsluiting
- Woonoppervlakte woning 208 m²
- Inhoud woning 698 m³
- Woning met energielabel B
- Tuin om de woning circa 1.420 m²
- Erfverharding circa 1.540 m²
- Glasopstanden circa 1.940 m²
- Schuurruimte circa 1.000 m²
- Garage 124 m²
- Overige landerijen circa 34.400 m²
- Electrische aansluiting van 160 Ampère
- 298 zonnepanelen met drietal omvormers (120Amp)
- Capaciteit circa 5.000.000 tulpen
- Voldoende uitbreidingsmogelijkheden
Meer informatie is op te vragen bij ons kantoor. U bent van harte welkom voor een uitgebreide rondleiding.
Staande en zeer gunstig gelegen aan de rand van het West-Friese IJsselmeerdorp Venhuizen met een goede afstand en ontsluiting van uitvalswegen.
BEDRIJFSSCHUUR
Bouwjaar: 2002
Afmeting: 50 bij 20 meter (1000 m²)
Voorzien van twee ruime koelcellen, 2x 150 m² (2 verdampers per cel) en een kleine cel van circa 32 m².
Aparte ketelruimte voorzien van een koelinstallatie met tweetal motoren uit 2001 en een
Unical gasketel met een capaciteit van 650 KW/circa.580.000 cal (300 cal per m²)
GLASOPSTANDEN
Bouwjaar: 1992
Type: Breedkapper (3 tal kappen)
Oppervlakte: Circa 1940 m²
Poothoogte: 3,25 meter
Goothoogte: 3,40 meter (condensgoot)
Kapbreedte: 12,80 meter
Onderbouw: Verzinkt staal
Dek: Aluminium dek met roeden
Beluchting: Doorlopende nokbeluchting
Brandwerend schermdoek
Sercom klimaatcomputer
Infrastructuur: Betonpaden
SCHUUR/GARAGE/KANTINE/KANTOOR
Bouwjaar 1964
Oppervlakte circa 124 m²
Dubbele elektrische deuren, opslagruimte, omvormers, toiletruimte, kantine met keukenblok en nette kantoorruimte.
ERFVERHARDING
Betonplein voor- en om de gebouwen bestaande uit betonverharding stelcon beplating. totaal circa 1.540 m².
OVERIGE LANDERIJEN
Gelegen achter en naast de gebouwen met een oppervlakte van circa 03.33.00 hectare. Deze grond is goed ontsloten middels het voorgelegen verharde betonplein alsmede een tweede dam aan de Koggeweg.
Kwalitatief hoogwaardige cultuurgrond bestaande uit kalk -en zwavelrijke zeekleigrond met minerale eerdlaag met oplopende profielopbouw met een juiste lengte/breedte verhouding en een goede vlakteligging.
DE VRIJSTAANDE BEDRIJFSWONING
Royale bedrijfswoning met op de begane grond een logische en praktische indeling. Binnenkomen via de achterdeur in de bijkeuken met garderoberuimte, achterdeur, aansluitingen voor het witgoed én de recent vernieuwde en hedendaagse riante badkamer. De woonkamer is heerlijk licht met diverse zithoeken, twee schuifpuien én openslaande deuren naar de omliggende keurig ingerichte tuin. De open keuken is eigentijds en voorziet in alle wenselijk gemakken. Op de verdieping een ruime overloop, een viertal grote slaapkamers en een tweede toilet. De tuin is ingericht met een groot terras, gazon, fraaie beplanting en een keurige overkapping, welke ruimte biedt aan een loungeset en eetgelegenheid. Alles opgeteld maakt dit een heerlijk privacyvol geheel.
BESTEMMING
Het geheel heeft als vigerende bestemming agrarisch grondgebonden.
KENMERKEN
- Gunstig gelegen in het buitengebied van Venhuizen met goede ontsluiting
- Woonoppervlakte woning 208 m²
- Inhoud woning 698 m³
- Woning met energielabel B
- Tuin om de woning circa 1.420 m²
- Erfverharding circa 1.540 m²
- Glasopstanden circa 1.940 m²
- Schuurruimte circa 1.000 m²
- Garage 124 m²
- Overige landerijen circa 34.400 m²
- Electrische aansluiting van 160 Ampère
- 298 zonnepanelen met drietal omvormers (120Amp)
- Capaciteit circa 5.000.000 tulpen
- Voldoende uitbreidingsmogelijkheden
Meer informatie is op te vragen bij ons kantoor. U bent van harte welkom voor een uitgebreide rondleiding.
Features
Transfer of ownership
- Asking price
- Price on request
- Listed since
-
- Status
- Available
- Acceptance
- Available in consultation
Construction
- Main use
- Other
- Alternative use(s)
- Greenhouse farming
- Building type
- Resale property
- Constructions
- 3 constructions (year of construction between 1964 and 2002)
Surface areas
- Total area
- 4 ha 12 a 15 ca
- Building plots
- 1 building plot (1 ha 0 a 0 ca)
- House plots
- 3 ha 12 a 15 ca
- Type of soil
- Clay, sand and sandy clay
Living space
- Company houses
- 1
-
Main residence
- Volume
- 698 m³
- Year of construction
- 1970
- Energy label
- B 1.0
Cadastral data
-
VENHUIZEN G 3938
- Cadastral map
- Ownership situation
- 4 ha 12 a 15 ca (whole parcel)
NVM real estate agent
Photos
Floorplan
First floor
Floor 1
Floor 4
Floor 2
Floor 3
Floor 5
Floor 6