Poortland 112 1046 BD Amsterdam
€ 500,000 k.k.
Description
Multifunctionele bedrijfsruimte in Amsterdam-West met 2 eigen parkeerplaatsen
Let op ondernemers!
Op zoek naar een veelzijdige bedrijfsruimte met uitbreidingsmogelijkheden op een uitstekende locatie? Gelegen op bedrijventerrein Sloterdijk III in Amsterdam-West – direct grenzend aan het Westelijk Havengebied – bieden wij deze functionele bedrijfsunit aan, momenteel ingericht als foodproductieruimte met kantoorruimte op de verdieping. Oplevering incl. apparatuur en inboedel is bespreekbaar.
Indelingsmogelijkheden (vergunning reeds verleend!)
De ruimte leent zich uitstekend voor een nieuwe indeling, zoals:
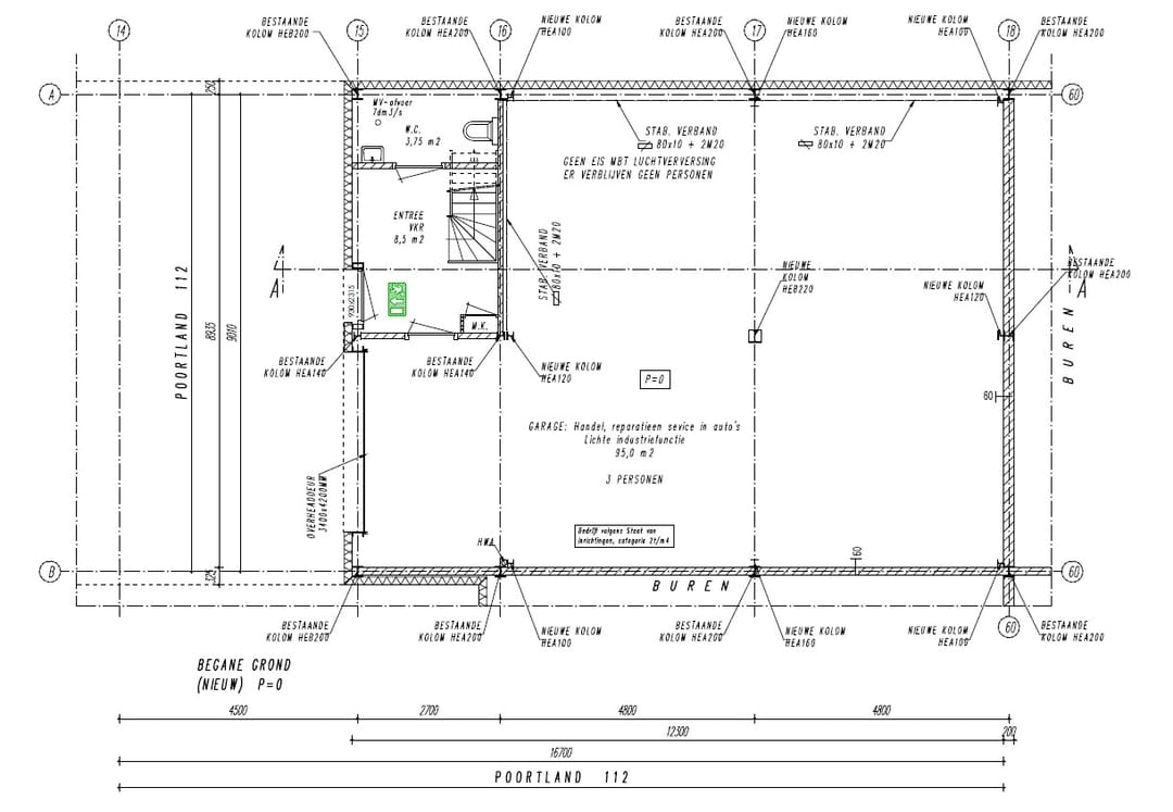
- Begane grond (ca. 95 m²): Bedrijfsruimte met een vrije hoogte van circa 3,65 meter, voorzien van entree en toiletruimte
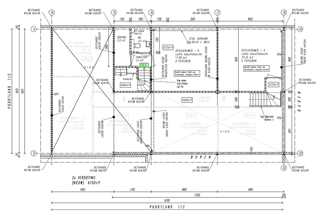
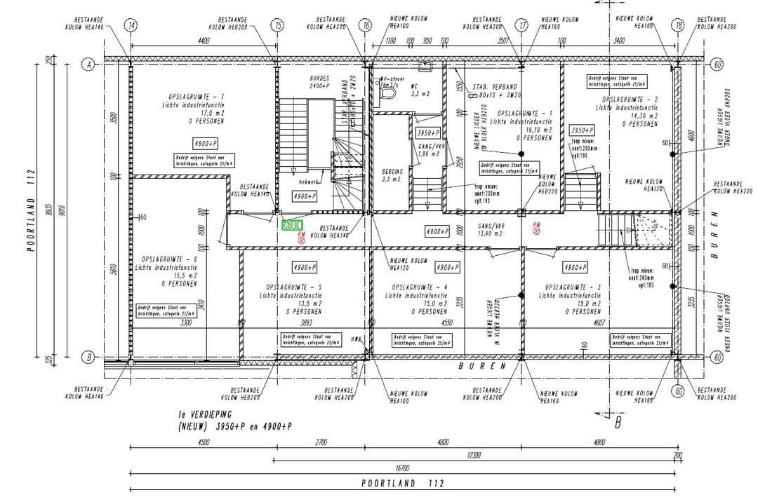
- Eerste verdieping: Zeven afzonderlijke ruimtes (ca. 13,5 – 17 m²), berging en toilet
- Tweede verdieping: Twee ruimtes (ca. 18 – 21 m²), eveneens met berging en toilet
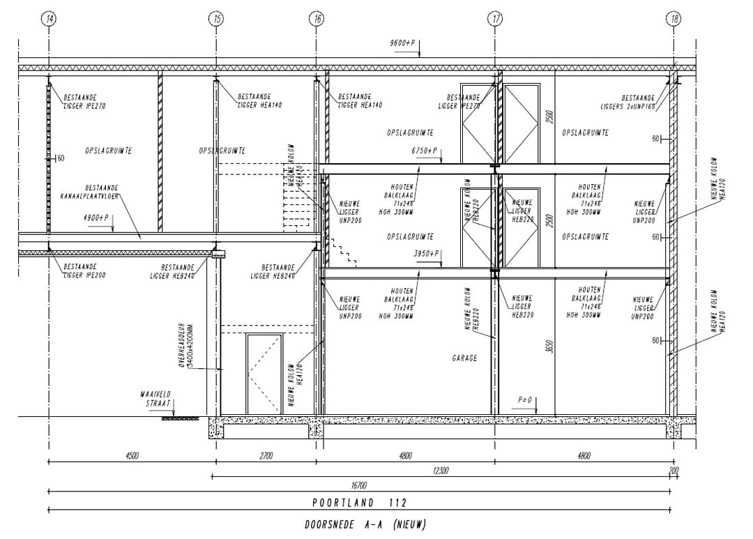
Huisnummerbesluit en bijbehorende vergunningen zijn reeds aanwezig. Toekomstige indelingen zijn als afbeelding toegevoegd met bijbehorende maatvoeringen.
Bestemmingsplan
Het object valt onder een bestemming voor bedrijven in categorie 2 t/m 4 van de Staat van Bedrijfsactiviteiten. Ondergeschikte kantoorfuncties en niet-zelfstandige horeca zijn toegestaan.
Ligging en bereikbaarheid
Strategisch gelegen op bedrijventerrein Sloterdijk III:
- Slechts 3 minuten rijden van de snelweg A5
- 8 minuten rijden naar de Ringweg A10
- Openbaar vervoer: bushalte op slechts 2 minuten loopafstand
Parkeergelegenheid
Bij het object horen twee eigen parkeerplaatsen:
- twee op eigen terrein
- Extra parkeergelegenheid in de directe omgeving
Kenmerken op een rij:
- Vraagprijs: € 500.000,- (b.t.w. niet van toepassing)
- Bijdrage VvE: ca. € 190,- per maand
Erfpacht:
- Looptijd: 1 oktober 2016 t/m 30 september 2066
- Jaarcanon: € 1.584,97 (2024/2025) per halfjaar
Meer weten of een bezichtiging plannen?
Neem dan contact op met ons kantoor. Wij informeren u graag verder over de mogelijkheden die dit object te bieden heeft.
De informatie in deze aanbieding is met zorg samengesteld, maar hieraan kunnen geen rechten worden ontleend. Wij adviseren u om bij interesse contact op te nemen met uw makelaar of ons kantoor.
Let op ondernemers!
Op zoek naar een veelzijdige bedrijfsruimte met uitbreidingsmogelijkheden op een uitstekende locatie? Gelegen op bedrijventerrein Sloterdijk III in Amsterdam-West – direct grenzend aan het Westelijk Havengebied – bieden wij deze functionele bedrijfsunit aan, momenteel ingericht als foodproductieruimte met kantoorruimte op de verdieping. Oplevering incl. apparatuur en inboedel is bespreekbaar.
Indelingsmogelijkheden (vergunning reeds verleend!)
De ruimte leent zich uitstekend voor een nieuwe indeling, zoals:
- Begane grond (ca. 95 m²): Bedrijfsruimte met een vrije hoogte van circa 3,65 meter, voorzien van entree en toiletruimte
- Eerste verdieping: Zeven afzonderlijke ruimtes (ca. 13,5 – 17 m²), berging en toilet
- Tweede verdieping: Twee ruimtes (ca. 18 – 21 m²), eveneens met berging en toilet
Huisnummerbesluit en bijbehorende vergunningen zijn reeds aanwezig. Toekomstige indelingen zijn als afbeelding toegevoegd met bijbehorende maatvoeringen.
Bestemmingsplan
Het object valt onder een bestemming voor bedrijven in categorie 2 t/m 4 van de Staat van Bedrijfsactiviteiten. Ondergeschikte kantoorfuncties en niet-zelfstandige horeca zijn toegestaan.
Ligging en bereikbaarheid
Strategisch gelegen op bedrijventerrein Sloterdijk III:
- Slechts 3 minuten rijden van de snelweg A5
- 8 minuten rijden naar de Ringweg A10
- Openbaar vervoer: bushalte op slechts 2 minuten loopafstand
Parkeergelegenheid
Bij het object horen twee eigen parkeerplaatsen:
- twee op eigen terrein
- Extra parkeergelegenheid in de directe omgeving
Kenmerken op een rij:
- Vraagprijs: € 500.000,- (b.t.w. niet van toepassing)
- Bijdrage VvE: ca. € 190,- per maand
Erfpacht:
- Looptijd: 1 oktober 2016 t/m 30 september 2066
- Jaarcanon: € 1.584,97 (2024/2025) per halfjaar
Meer weten of een bezichtiging plannen?
Neem dan contact op met ons kantoor. Wij informeren u graag verder over de mogelijkheden die dit object te bieden heeft.
De informatie in deze aanbieding is met zorg samengesteld, maar hieraan kunnen geen rechten worden ontleend. Wij adviseren u om bij interesse contact op te nemen met uw makelaar of ons kantoor.
Features
Transfer of ownership
- Asking price
- € 500,000 kosten koper
- Listed since
-
- Status
- Available
- Acceptance
- Available in consultation
Construction
- Main use
- Industrial unit
- Building type
- Resale property
- Year of construction
- 2017
Surface areas
- Area
- 170 m² (units from 10 m²)
- Industrial unit area
- 110 m²
- Area of site
- 60 m²
- Office area
- 60 m²
- Clearance
- 6 m
- Maximum load
- 1,000 kg/m²
Layout
- Number of floors
- 1 floor
- Facilities
- Mechanical ventilation, overhead doors, three-phase electric power, concrete floor and toilet
Energy
- Energy label
- Not required
Surroundings
- Location
- Business park
- Accessibility
- Bus stop in 500 m to 1000 m, bus junction in less than 500 m, subway station in 1500 m to 2000 m, subway junction in 1500 m to 2000 m, Dutch Railways Intercity station in 1500 m to 2000 m, motorway exit in 500 m to 1000 m, Tram stop in 1500 m to 2000 m and tram junction in 1500 m to 2000 m
- Local facilities
- Bank in 1500 m to 2000 m, recreation in less than 500 m, restaurant in less than 500 m and retail outlet in less than 500 m
Parking
- Parking spaces
- 2 covered parking spaces
Real estate agent
Photos