Zwarte Wegje 1 5062 AN Oisterwijk
- New
Price on request
Description
TE KOOP: Zwarte Wegje 1, (5062 AN) Oisterwijk
Buitenplaats TESSLOO ontleent haar naam aan de Oud-Hollandse begrippen ‘Loo’ (open plek in het bos) en Tess (bijzonder en mooi). En die unieke en kwaliteit heeft Tessloo.
Het ligt aan de rand van de Oisterwijkse bebouwde kom op de grens met het uitgestrekte natuurgebied de Kampina, een buitenplaats met internationale allure. In 2000 is de ontwikkeling van Tessloo gestart. De buitenplaats bestaat uit drie bouwvolumes, een ontvangstgebouw, een tentoonstellingsruimte en een kantoor. Het gebied, oorspronkelijk een aantal sportvelden, was volledig kaal met uitzondering van de bomenlaan aan de straatkant. In eerste instantie is de oranjerie met het kantoor gebouwd, hierna is gestart met de tuinaanleg. Het poortgebouw is in 2006 ontwikkeld met het laatste deel van de tuin welke een sterke ontwikkeling heeft doorgemaakt de afgelopen jaren. In 2007 is het project voltooid en sindsdien heeft men er vele tentoonstellingen en bijeenkomsten georganiseerd. Deze moderne buitenplaats heeft net als haar historische voorbeelden een bloementuin, een kruidentuin en een moestuin, die zich door de goede balans tussen vorm en de natuur uitstekend lenen voor het exposeren van beeldende kunst.
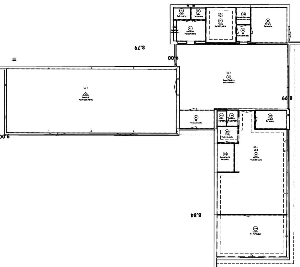
Buitenplaats TESSLOO heeft een oppervlakte van ca. 13.800 m² waar naast de tuinen, een boomgaard en een parkgedeelte meerdere gebouwen aanwezig zijn. De hypermoderne oranjerie is het meest opvallende gebouw. Alle drie gebouwen op Tessloo zijn ontworpen door Peer Bedaux van het befaamde architectenbureau Bedaux de Brouwer. De drie gebouwen hebben ieder hun eigen sfeer en karakter. Het poortgebouw annex ontvangstruimte is ondergebracht in een rechthoekig volume met een zadeldaken en grijs gekeimde bakstenen gevels. Dit deel heeft schoorstenen in het midden van de kopgevels en smalle verticale vensters. In de opengewerkte kap zijn de houten spanten zichtbaar. De grote Orangerie annex tentoonstellingsruimte bestaat uit een grotendeels glazen gebouw met een licht hellend schilddak. Het gebouw opent zich naar de tuin door hoge glazen puien. Het kantoor bestaat uit een lager volume onder een plat dak. De gebouwen worden door de tuin harmonisch met elkaar tot een eenheid verbonden. De moderne architectuur, de serene sfeer van de tuinen en de overweldigende natuur bieden veel mogelijkheden.
BIJZONDERHEDEN
- de drie gebouwen zijn ontworpen door Peer Bedaux van Bedaux de Brouwer;
- de buitenplaats en tuin is ontworpen door tuin en landschapsarchitect Bert Huls;
- bloementuin, moestuin, kruidentuin, boomgaard, bostuin, vijvers en een park;
- harmonische overgang tussen binnen en buiten o.a. door hoge glazen puien;
- opengewerkte kap in het poortgebouw met zichtbare houten spanten;
- perceeloppervlakte van 13.800 m²;
- kantoorgedeelte ca. 140 m2, gehele complex ca. 640 m2
- parkeerplaats voor ca. 80 auto's.
ORANJERIE
- vestibule;
- oranjerie 20 x 7 meter;
- centrale ruimte 13 x 7,50 meter;
- keukenruimte ca. 20 m²
- garderobe;
- toiletten.
KANTOORGEBOUW
- directie kantoor 7,50 x 5 meter;
- kantoorruimte 10 x 7,50 meter;
- keuken;
- toilet met garderobe;
- archief ca. 2,50 x 5 meter;
- opslagruimte ca. 2,50 x 5 meter.
POORTGEBOUW
- hoofdruimte 14 x 16 meter;
- keuken ca. 12 m²;
- bijkeuken;
- 2 toiletten.
VRAAGPRIJS
Op aanvraag
OPLEVERDATUM
Aanvaarding in overleg
KADASTRALE GEGEVENS
Gemeente Oisterwijk
Sectie B
Perceel 3034
ZEKERHEIDSSTELLING
Door koper zal een bankgarantie of waarborgsom ter grootte van 10% van de koopsom gesteld worden, uiterlijk beschikbaar ten tijde van ondertekening van de koopovereenkomst.
NOTARIS
Nader door koper te bepalen.
VOORBEHOUD
Een en ander geschiedt onder aanvaarding en uitdrukkelijk voorbehoud goedkeuring eigenaar.
Buitenplaats TESSLOO ontleent haar naam aan de Oud-Hollandse begrippen ‘Loo’ (open plek in het bos) en Tess (bijzonder en mooi). En die unieke en kwaliteit heeft Tessloo.
Het ligt aan de rand van de Oisterwijkse bebouwde kom op de grens met het uitgestrekte natuurgebied de Kampina, een buitenplaats met internationale allure. In 2000 is de ontwikkeling van Tessloo gestart. De buitenplaats bestaat uit drie bouwvolumes, een ontvangstgebouw, een tentoonstellingsruimte en een kantoor. Het gebied, oorspronkelijk een aantal sportvelden, was volledig kaal met uitzondering van de bomenlaan aan de straatkant. In eerste instantie is de oranjerie met het kantoor gebouwd, hierna is gestart met de tuinaanleg. Het poortgebouw is in 2006 ontwikkeld met het laatste deel van de tuin welke een sterke ontwikkeling heeft doorgemaakt de afgelopen jaren. In 2007 is het project voltooid en sindsdien heeft men er vele tentoonstellingen en bijeenkomsten georganiseerd. Deze moderne buitenplaats heeft net als haar historische voorbeelden een bloementuin, een kruidentuin en een moestuin, die zich door de goede balans tussen vorm en de natuur uitstekend lenen voor het exposeren van beeldende kunst.
Buitenplaats TESSLOO heeft een oppervlakte van ca. 13.800 m² waar naast de tuinen, een boomgaard en een parkgedeelte meerdere gebouwen aanwezig zijn. De hypermoderne oranjerie is het meest opvallende gebouw. Alle drie gebouwen op Tessloo zijn ontworpen door Peer Bedaux van het befaamde architectenbureau Bedaux de Brouwer. De drie gebouwen hebben ieder hun eigen sfeer en karakter. Het poortgebouw annex ontvangstruimte is ondergebracht in een rechthoekig volume met een zadeldaken en grijs gekeimde bakstenen gevels. Dit deel heeft schoorstenen in het midden van de kopgevels en smalle verticale vensters. In de opengewerkte kap zijn de houten spanten zichtbaar. De grote Orangerie annex tentoonstellingsruimte bestaat uit een grotendeels glazen gebouw met een licht hellend schilddak. Het gebouw opent zich naar de tuin door hoge glazen puien. Het kantoor bestaat uit een lager volume onder een plat dak. De gebouwen worden door de tuin harmonisch met elkaar tot een eenheid verbonden. De moderne architectuur, de serene sfeer van de tuinen en de overweldigende natuur bieden veel mogelijkheden.
BIJZONDERHEDEN
- de drie gebouwen zijn ontworpen door Peer Bedaux van Bedaux de Brouwer;
- de buitenplaats en tuin is ontworpen door tuin en landschapsarchitect Bert Huls;
- bloementuin, moestuin, kruidentuin, boomgaard, bostuin, vijvers en een park;
- harmonische overgang tussen binnen en buiten o.a. door hoge glazen puien;
- opengewerkte kap in het poortgebouw met zichtbare houten spanten;
- perceeloppervlakte van 13.800 m²;
- kantoorgedeelte ca. 140 m2, gehele complex ca. 640 m2
- parkeerplaats voor ca. 80 auto's.
ORANJERIE
- vestibule;
- oranjerie 20 x 7 meter;
- centrale ruimte 13 x 7,50 meter;
- keukenruimte ca. 20 m²
- garderobe;
- toiletten.
KANTOORGEBOUW
- directie kantoor 7,50 x 5 meter;
- kantoorruimte 10 x 7,50 meter;
- keuken;
- toilet met garderobe;
- archief ca. 2,50 x 5 meter;
- opslagruimte ca. 2,50 x 5 meter.
POORTGEBOUW
- hoofdruimte 14 x 16 meter;
- keuken ca. 12 m²;
- bijkeuken;
- 2 toiletten.
VRAAGPRIJS
Op aanvraag
OPLEVERDATUM
Aanvaarding in overleg
KADASTRALE GEGEVENS
Gemeente Oisterwijk
Sectie B
Perceel 3034
ZEKERHEIDSSTELLING
Door koper zal een bankgarantie of waarborgsom ter grootte van 10% van de koopsom gesteld worden, uiterlijk beschikbaar ten tijde van ondertekening van de koopovereenkomst.
NOTARIS
Nader door koper te bepalen.
VOORBEHOUD
Een en ander geschiedt onder aanvaarding en uitdrukkelijk voorbehoud goedkeuring eigenaar.
Features
Transfer of ownership
- Asking price
- Price on request
- Listed since
-
- Status
- Available
- Acceptance
- Available in consultation
Construction
- Main use
- Tourism & leisure
- Alternative use(s)
- Office space
- Building type
- Resale property
- Construction period
- 2001-2010
Surface areas
- Area
- 140 m² (units from 13 m²)
- Plot size
- 13,800 m²
Layout
- Number of floors
- 1 floor
Energy
- Energy label
- Not available
Surroundings
- Location
- In residential district and rural area
NVM real estate agent
Photos