Omschrijving
TE HUUR:
Karakteristiek horecapand een unieke locatie aan het Alkmaardermeer in Akersloot (Noord-Holland), nabij Jachthaven Akersloot.
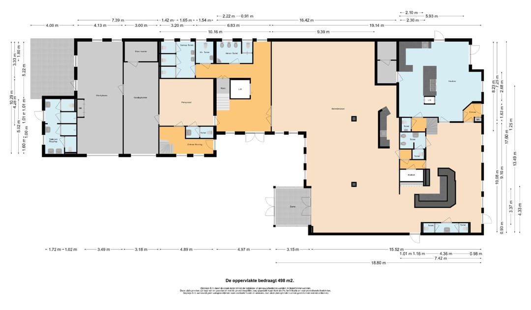
Het object is volledig verbouwd tot een volwaardige horecalocatie met diverse zalen, flexibel inzetbaar voor restaurant- en caféactiviteiten, evenementen, vergaderingen, bruiloften en andere besloten bijeenkomsten. De totale oppervlakte bedraagt ca. 623 m² (BVO), verdeeld over ca. 369 m² restaurant en kroeg met bar op de begane grond en ca. 254 m² multifunctionele evenementenruimte op de eerste verdieping.
De professionele horecakeuken is compleet ingericht en instapklaar. Het pand beschikt over energielabel A (geldig tot 10 januari 2033) en is akoestisch geïsoleerd, waardoor het bij uitstek geschikt is voor uiteenlopende horeca- en eventconcepten.
INDELING / OPLEVERINGSNIVEAU:
Begane grond: Restaurant en kroeg met bar en tapinstallatie. De professionele horecakeuken is voorzien van onder meer een professionele oven, spoelkeuken, snijmachine, werkbanken, koelingen en opslagruimte. Vanuit de keuken is een lift aanwezig waarmee gerechten en materialen efficiënt naar de bovenverdieping kunnen worden vervoerd.
Eerste verdieping: Zelfstandige multifunctionele ruimte, uitermate geschikt voor evenementen, vergaderingen, feesten en besloten bijeenkomsten.
Het object beschikt over twee terrassen (voor- en achterzijde), wat extra exploitatiemogelijkheden biedt gedurende het seizoen.
Oplevering geschiedt in de huidige staat (“as is, where is”), inclusief aanwezige horecavoorzieningen.
GROOTTE:
Ca. 623 m² (BVO)
LOCATIE EN BEREIKBAARHEID:
Gelegen aan het Alkmaardermeer in de gemeente Akersloot, provincie Noord-Holland, nabij Jachthaven Akersloot. De locatie is goed bereikbaar per auto via de nabijgelegen A9 en tevens per fiets en over water.
PARKEREN:
Aan de achterzijde zijn privéparkeerplaatsen aanwezig. Aan de voorzijde zijn aanvullende parkeermogelijkheden voor bezoekers beschikbaar.
BESTEMMING:
Bestemming: horeca conform het vigerende bestemmingsplan. Huurder dient zelfstandig onderzoek te verrichten naar de geldende bestemming via
OPLEVERING:
In huidige staat (“as is, where is”).
KADASTRALE GEGEVENS:
Gemeente: Akersloot
HUURPRIJS:
€ 5.833,33 per maand
HUURBETALING:
Per maand bij vooruitbetaling.
ZEKERHEIDSSTELLING:
Waarborgsom of bankgarantie ter grootte van drie maanden huurverplichting.
HUURTERMIJN:
In overleg.
Huurovereenkomst op basis van ROZ-model winkelruimte (artikel 7:290 BW)
Laat je verrassen door de mogelijkheden! Dit is jouw kans om te ondernemen op een plek die écht inspireert.
Karakteristiek horecapand een unieke locatie aan het Alkmaardermeer in Akersloot (Noord-Holland), nabij Jachthaven Akersloot.
Het object is volledig verbouwd tot een volwaardige horecalocatie met diverse zalen, flexibel inzetbaar voor restaurant- en caféactiviteiten, evenementen, vergaderingen, bruiloften en andere besloten bijeenkomsten. De totale oppervlakte bedraagt ca. 623 m² (BVO), verdeeld over ca. 369 m² restaurant en kroeg met bar op de begane grond en ca. 254 m² multifunctionele evenementenruimte op de eerste verdieping.
De professionele horecakeuken is compleet ingericht en instapklaar. Het pand beschikt over energielabel A (geldig tot 10 januari 2033) en is akoestisch geïsoleerd, waardoor het bij uitstek geschikt is voor uiteenlopende horeca- en eventconcepten.
INDELING / OPLEVERINGSNIVEAU:
Begane grond: Restaurant en kroeg met bar en tapinstallatie. De professionele horecakeuken is voorzien van onder meer een professionele oven, spoelkeuken, snijmachine, werkbanken, koelingen en opslagruimte. Vanuit de keuken is een lift aanwezig waarmee gerechten en materialen efficiënt naar de bovenverdieping kunnen worden vervoerd.
Eerste verdieping: Zelfstandige multifunctionele ruimte, uitermate geschikt voor evenementen, vergaderingen, feesten en besloten bijeenkomsten.
Het object beschikt over twee terrassen (voor- en achterzijde), wat extra exploitatiemogelijkheden biedt gedurende het seizoen.
Oplevering geschiedt in de huidige staat (“as is, where is”), inclusief aanwezige horecavoorzieningen.
GROOTTE:
Ca. 623 m² (BVO)
LOCATIE EN BEREIKBAARHEID:
Gelegen aan het Alkmaardermeer in de gemeente Akersloot, provincie Noord-Holland, nabij Jachthaven Akersloot. De locatie is goed bereikbaar per auto via de nabijgelegen A9 en tevens per fiets en over water.
PARKEREN:
Aan de achterzijde zijn privéparkeerplaatsen aanwezig. Aan de voorzijde zijn aanvullende parkeermogelijkheden voor bezoekers beschikbaar.
BESTEMMING:
Bestemming: horeca conform het vigerende bestemmingsplan. Huurder dient zelfstandig onderzoek te verrichten naar de geldende bestemming via
OPLEVERING:
In huidige staat (“as is, where is”).
KADASTRALE GEGEVENS:
Gemeente: Akersloot
HUURPRIJS:
€ 5.833,33 per maand
HUURBETALING:
Per maand bij vooruitbetaling.
ZEKERHEIDSSTELLING:
Waarborgsom of bankgarantie ter grootte van drie maanden huurverplichting.
HUURTERMIJN:
In overleg.
Huurovereenkomst op basis van ROZ-model winkelruimte (artikel 7:290 BW)
Laat je verrassen door de mogelijkheden! Dit is jouw kans om te ondernemen op een plek die écht inspireert.
Kaart
Kaart laden...
Kadastrale grens
Bebouwing
Reistijd
Krijg inzicht in de bereikbaarheid van dit object vanuit bijvoorbeeld een openbaar vervoer station of vanuit een adres.