Prinsenstraat 5 7126 AX Bredevoort
€ 445.000 k.k.
Omschrijving
WONEN EN WERKEN GECOMBINEERD IN TWEE UNIEKE GEKOPPELDE PANDEN IN EEN PRACHTIGE DORP
Aan de Prinsenstraat in Bredevoort staan twee bij elkaar behorende, karakteristieke, panden die samen veel mogelijkheden bieden om op een creatieve manier wonen en werken te combineren. Op deze historisch plek was al in 1669 een herberg gevestigd. De huidige panden dateren uit de periode rond 1800. Heden ten dage bevindt zich in het ene pand het gezellige café de Zwaan, met zijn horeca keuken en laat middeleeuwse kelder, dat op dit moment alleen nog incidenteel in gebruik is voor feestelijke bijeenkomsten. In het andere pand, en boven de café ruimte, bevindt zich de bedrijfswoning die al langere tijd niet in gebruik is. In deze bedrijfswoning bevinden zich op de begane grond een karakteristieke opkamer, een keuken, een badkamer en een slaapkamer. Op de eerste verdieping bevinden zich 5 kamers en een grote zolder.
Achter het pand ligt een patio met een prachtig uitzicht op de kerktoren van Bredevoort.
Het gemeentelijke omgevingsplan geeft de nieuwe eigenaar heel veel mogelijkheden voor de ontwikkeling van bedrijfsmatige activiteiten op het gebied van:
- Horeca (bijvoorbeeld café, eetcafé, restaurant, het uitbaten van de snackbar die Bredevoort op dit moment niet heeft of het maken van de combinatie café met daarin een snackbar)
- Bed en breakfast (of andere overnachtingsmogelijkheden)
- Dienstverlening en kantoorruimten (bijvoorbeeld werkruimtes of zzp’ers)
- Detailhandel (een grote winkel of verschillende kleine winkeltjes)
- medische en/of gezondheidsvoorzieningen (bijvoorbeeld een dagactiviteit voor mensen die behoefte hebben aan meer contact of een praktijkruimte)
De panden beschikken over voldoende ruimte en hebben een hele logische indeling om op een creatieve manier verschillende op zich zelf staande bedrijfsactiviteiten en functies te combineren. Zo is het ook voorstelbaar dat er op de begane grond drie bedrijfsruimten gecreëerd worden met ieder een bijbehorend appartement op de eerste verdieping.
In het verleden is er met de gemeente Aalten overleg geweest over de mogelijkheden voor het maken van drie appartementen in de twee panden en de gemeente heeft aangegeven hier in principe positief tegenover te staan. Voor het daadwerkelijk vestigen van drie woonheden zal formele toestemming van de gemeente nodig zijn.
HISTORIE
Bredevoort is bekend als de geboorteplaats van Hendrickje Stoffels, de geliefde van schilder Rembrandt van Rijn (1626-1663). Zij werd geboren in de Muizenstraat achter café De Zwaan waar haar zus gewerkt zou hebben. Het verhaal gaat dat Rembrand en Hendrickje ook samen tijd in de Zwaan hebben doorgebracht.
Bredevoort is sinds 1991 een nationale boekenstad en dat betekent dat er in het dorp veel boekwinkeltjes zijn en dat er ook regelmatig boekenmarkten gehouden worden.
LIGGING
De panden liggen in het hart van Bredevoort, aan een van de oudste straten van het dorp. Bredevoort is goed bewaard gebleven en is in feite een stadje omdat het rond 1833 stadsrechten kreeg. Het dorp is rustig maar ook levendig door zijn vele boekwinkeltjes, horeca en culturele activiteiten.
Bredevoort is goed bereikbaar via de N18 en ligt op korte afstand van plaatsen zoals Aalten en Winterswijk. Om het dorp liggen mooie fiets- en voetpaden die door het geweldige Achterhoekse coulissen landschap voeren.
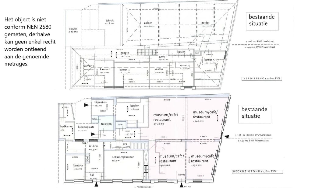
OPPERVLAKTE (BVO)
Begane grond: ca. 240 m2
Eerste verdieping: ca. 210 m2
Vliering: ca. 32 m2
Kelder: ca. 25 m2
Totaal: ca. 507 m2
Het object is niet conform NEN 2580 gemeten, derhalve kan geen enkel recht worden ontleend aan de genoemde metrages.
BENT U GEINTRESSEERD MAAR GEEFT U DE VOORKEUR AAN EEN WAT KLEINER PROJECT
Dit object biedt zoals gezegd uitstekende kansen voor ontwikkeling. Wanneer deze panden en hun mogelijkheden u aanspreken maar u de omvang of investering te groot vindt dan zijn er, zoals gezegd, ook mogelijkheden tot verdeling van het pand in kleinere eenheden voor wonen en/of bedrijfsactiviteiten. Ook wanneer u geïnteresseerd bent in het kopen van een deel van dit object kunt u contact opnemen en bij de eigenaar uw wensen kenbaar maken.
KADASTRALE GEGEVENS
Gemeente: Bredevoort
Sectie: B
Nummers: 1111
Perceeloppervlakte: 255 m2
KOOPCONDITIES
Vraagprijs: € 445.000,- K.K.
Zekerheidstelling: Waarborgsom of bankgarantie van 10% van de koopsom. De koper dient deze 2 weken ná hetvervallen van de ontbindende voorwaarden bij de desbetreffende notaris te deponeren.
BTW: Nee, is niet van toepassing.
Aanvaarding: Per direct of in overleg mogelijk.
OMGEVINGSPLAN
De voor 'Gemengd - Beschermd Stadsgezicht' aangewezen gronden zijn bestemd voor:
a. dienstverlening;
b. detailhandel;
C. horeca, met inachtneming van het volgende:
horeca is uitsluitend toegestaan ter plaatse van de aanduiding 'horeca' en 'horeca van categorie 1', met dien verstande
dat:
- ter plaatse van de aanduiding 'horeca' horeca uit horecacategorie 1 en 2 is toegestaan;
- ter plaatse van de aanduiding 'horeca van categorie 1' uitsluitend horeca uit horecacategorie 1 is toegestaan;
- een bed & breakfast is toegestaan, met inachtneming van het bepaalde in 10.4.3;
in afwijking van het bepaalde in sub 1 is ondersteunende horeca binnen de gehele bestemming toegestaan;
d. kantoren;
e. medische en/of gezondheidsvoorzieningen;
g. wonen, met dien verstande dat op een bouwperceel maximaal één woning dan wel het bestaande aantal woningen
is toegestaan;
met bijbehorende voorzieningen, zoals erven, terreinen, beplanting, parkeervoorzieningen en voorzieningen voor de
waterhuishouding.
Als gebruiker bent u zelf verantwoordelijk om navraag te doen naar het actuele omgevingsplan bij de gemeente. Aan deze omschrijving kunnen geen rechten worden ontleend.
GOEDKEURING
Bovenstaande is onder finaal voorbehoud van de eigenaar.
Disclaimer: Ondanks dat deze publicatie met de grootst mogelijke zorgvuldigheid is samengesteld is de Online Bedrijfsmakelaar BV niet aansprakelijk te stellen voor onjuiste of onvolledige informatie die in deze publicatie vermeld staan. Aan deze gegevens kunnen geen rechten worden ontleend.
====================
Alle beschikbare informatie ontvangen?
Benieuwd naar alle beschikbare informatie over dit pand? Vraag dan nu, onder de grote contactbutton, de gratis objectbrochure van Prinsenstraat 5 in Bredevoort aan en ontvang de objectbrochure binnen 5 minuten in uw mailbox. Uiteraard kunt u ook direct een geheel vrijblijvende bezichtiging met de beheerder van het pand inplannen.
Aan de Prinsenstraat in Bredevoort staan twee bij elkaar behorende, karakteristieke, panden die samen veel mogelijkheden bieden om op een creatieve manier wonen en werken te combineren. Op deze historisch plek was al in 1669 een herberg gevestigd. De huidige panden dateren uit de periode rond 1800. Heden ten dage bevindt zich in het ene pand het gezellige café de Zwaan, met zijn horeca keuken en laat middeleeuwse kelder, dat op dit moment alleen nog incidenteel in gebruik is voor feestelijke bijeenkomsten. In het andere pand, en boven de café ruimte, bevindt zich de bedrijfswoning die al langere tijd niet in gebruik is. In deze bedrijfswoning bevinden zich op de begane grond een karakteristieke opkamer, een keuken, een badkamer en een slaapkamer. Op de eerste verdieping bevinden zich 5 kamers en een grote zolder.
Achter het pand ligt een patio met een prachtig uitzicht op de kerktoren van Bredevoort.
Het gemeentelijke omgevingsplan geeft de nieuwe eigenaar heel veel mogelijkheden voor de ontwikkeling van bedrijfsmatige activiteiten op het gebied van:
- Horeca (bijvoorbeeld café, eetcafé, restaurant, het uitbaten van de snackbar die Bredevoort op dit moment niet heeft of het maken van de combinatie café met daarin een snackbar)
- Bed en breakfast (of andere overnachtingsmogelijkheden)
- Dienstverlening en kantoorruimten (bijvoorbeeld werkruimtes of zzp’ers)
- Detailhandel (een grote winkel of verschillende kleine winkeltjes)
- medische en/of gezondheidsvoorzieningen (bijvoorbeeld een dagactiviteit voor mensen die behoefte hebben aan meer contact of een praktijkruimte)
De panden beschikken over voldoende ruimte en hebben een hele logische indeling om op een creatieve manier verschillende op zich zelf staande bedrijfsactiviteiten en functies te combineren. Zo is het ook voorstelbaar dat er op de begane grond drie bedrijfsruimten gecreëerd worden met ieder een bijbehorend appartement op de eerste verdieping.
In het verleden is er met de gemeente Aalten overleg geweest over de mogelijkheden voor het maken van drie appartementen in de twee panden en de gemeente heeft aangegeven hier in principe positief tegenover te staan. Voor het daadwerkelijk vestigen van drie woonheden zal formele toestemming van de gemeente nodig zijn.
HISTORIE
Bredevoort is bekend als de geboorteplaats van Hendrickje Stoffels, de geliefde van schilder Rembrandt van Rijn (1626-1663). Zij werd geboren in de Muizenstraat achter café De Zwaan waar haar zus gewerkt zou hebben. Het verhaal gaat dat Rembrand en Hendrickje ook samen tijd in de Zwaan hebben doorgebracht.
Bredevoort is sinds 1991 een nationale boekenstad en dat betekent dat er in het dorp veel boekwinkeltjes zijn en dat er ook regelmatig boekenmarkten gehouden worden.
LIGGING
De panden liggen in het hart van Bredevoort, aan een van de oudste straten van het dorp. Bredevoort is goed bewaard gebleven en is in feite een stadje omdat het rond 1833 stadsrechten kreeg. Het dorp is rustig maar ook levendig door zijn vele boekwinkeltjes, horeca en culturele activiteiten.
Bredevoort is goed bereikbaar via de N18 en ligt op korte afstand van plaatsen zoals Aalten en Winterswijk. Om het dorp liggen mooie fiets- en voetpaden die door het geweldige Achterhoekse coulissen landschap voeren.
OPPERVLAKTE (BVO)
Begane grond: ca. 240 m2
Eerste verdieping: ca. 210 m2
Vliering: ca. 32 m2
Kelder: ca. 25 m2
Totaal: ca. 507 m2
Het object is niet conform NEN 2580 gemeten, derhalve kan geen enkel recht worden ontleend aan de genoemde metrages.
BENT U GEINTRESSEERD MAAR GEEFT U DE VOORKEUR AAN EEN WAT KLEINER PROJECT
Dit object biedt zoals gezegd uitstekende kansen voor ontwikkeling. Wanneer deze panden en hun mogelijkheden u aanspreken maar u de omvang of investering te groot vindt dan zijn er, zoals gezegd, ook mogelijkheden tot verdeling van het pand in kleinere eenheden voor wonen en/of bedrijfsactiviteiten. Ook wanneer u geïnteresseerd bent in het kopen van een deel van dit object kunt u contact opnemen en bij de eigenaar uw wensen kenbaar maken.
KADASTRALE GEGEVENS
Gemeente: Bredevoort
Sectie: B
Nummers: 1111
Perceeloppervlakte: 255 m2
KOOPCONDITIES
Vraagprijs: € 445.000,- K.K.
Zekerheidstelling: Waarborgsom of bankgarantie van 10% van de koopsom. De koper dient deze 2 weken ná hetvervallen van de ontbindende voorwaarden bij de desbetreffende notaris te deponeren.
BTW: Nee, is niet van toepassing.
Aanvaarding: Per direct of in overleg mogelijk.
OMGEVINGSPLAN
De voor 'Gemengd - Beschermd Stadsgezicht' aangewezen gronden zijn bestemd voor:
a. dienstverlening;
b. detailhandel;
C. horeca, met inachtneming van het volgende:
horeca is uitsluitend toegestaan ter plaatse van de aanduiding 'horeca' en 'horeca van categorie 1', met dien verstande
dat:
- ter plaatse van de aanduiding 'horeca' horeca uit horecacategorie 1 en 2 is toegestaan;
- ter plaatse van de aanduiding 'horeca van categorie 1' uitsluitend horeca uit horecacategorie 1 is toegestaan;
- een bed & breakfast is toegestaan, met inachtneming van het bepaalde in 10.4.3;
in afwijking van het bepaalde in sub 1 is ondersteunende horeca binnen de gehele bestemming toegestaan;
d. kantoren;
e. medische en/of gezondheidsvoorzieningen;
g. wonen, met dien verstande dat op een bouwperceel maximaal één woning dan wel het bestaande aantal woningen
is toegestaan;
met bijbehorende voorzieningen, zoals erven, terreinen, beplanting, parkeervoorzieningen en voorzieningen voor de
waterhuishouding.
Als gebruiker bent u zelf verantwoordelijk om navraag te doen naar het actuele omgevingsplan bij de gemeente. Aan deze omschrijving kunnen geen rechten worden ontleend.
GOEDKEURING
Bovenstaande is onder finaal voorbehoud van de eigenaar.
Disclaimer: Ondanks dat deze publicatie met de grootst mogelijke zorgvuldigheid is samengesteld is de Online Bedrijfsmakelaar BV niet aansprakelijk te stellen voor onjuiste of onvolledige informatie die in deze publicatie vermeld staan. Aan deze gegevens kunnen geen rechten worden ontleend.
====================
Alle beschikbare informatie ontvangen?
Benieuwd naar alle beschikbare informatie over dit pand? Vraag dan nu, onder de grote contactbutton, de gratis objectbrochure van Prinsenstraat 5 in Bredevoort aan en ontvang de objectbrochure binnen 5 minuten in uw mailbox. Uiteraard kunt u ook direct een geheel vrijblijvende bezichtiging met de beheerder van het pand inplannen.
Kenmerken
Overdracht
- Vraagprijs
- € 445.000 kosten koper
- Aangeboden sinds
-
- Status
- Beschikbaar
- Aanvaarding
- Per direct beschikbaar
Overname
- Personeel
- Nee
Bouw
- Hoofdfunctie
- Horeca
- Soort horeca
- Café, eetcafé, bistro en café-restaurant
- Mogelijke functie(s)
- Winkelruimte
- Soort bouw
- Bestaande bouw
- Bouwjaar
- 1936
Oppervlakten
- Oppervlakte
- 507 m²
- Verkoopvloeroppervlakte
- 240 m²
- Perceel
- 255 m²
Indeling
- Aantal bouwlagen
- 3 bouwlagen
- Gelegen op
- Begane grond
Energie
- Energielabel
- Niet beschikbaar
Omgeving
- Ligging
- In woonwijk
Foto's