Omschrijving
Multifunctioneel object, geschikt voor het combineren van wonen en werken. Interessant voor zowel eigen gebruik als belegging.
Met de reeds verleende splitsingsvergunning bestaat de mogelijkheid om het pand bouwkundig te splitsen en twee separate units te realiseren. De uitvoering hiervan ligt bij u. Dit biedt kansen voor verhuur en verdere waardeontwikkeling.
Het huidige gebruik als horeca met bovenwoning kan direct voortgezet worden, maar ook andere invullingen zijn denkbaar. Het bestemmingsplan biedt mogelijkheden voor bijvoorbeeld kantoorruimte of een ‘aan-huis-verbonden-beroep’. Voor dergelijke wijzigingen is toestemming vanuit de gemeente vereist en dient rekening gehouden te worden met aanvullende investeringen.
ALGEMEEN:
• Bouwjaar: 1929
• Beneden gedeelte: totaal circa 100 m²
• Woonoppervlakte: circa 74 m²
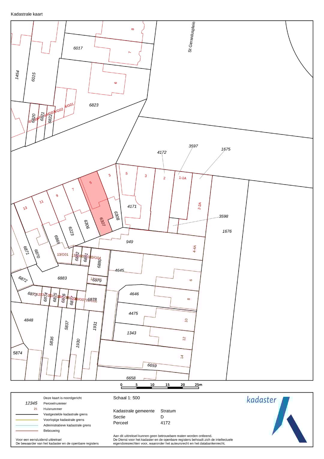
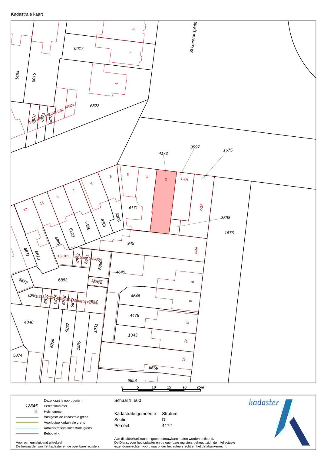
• Perceeloppervlakte: 126 m2
• Energielabel begane grond: C, geldig tot 23-07-2034
• Energielabel bovenwoning: D, geldig tot 23-07-2034
• Aanvaarding: in overleg
• Bestemming: “Horeca”, functieaanduiding: café. D.w.z. horeca t/m categorie 2a (zoals een restaurant of een lunchroom). Op de verdiepingen is wonen toegestaan. Andere gebruiksvormen zijn in beginsel mogelijk, maar vereisen een bestemmingswijziging of omgevingsvergunning, waarbij kosten en procedures van toepassing zijn. Zie voor meer informatie het bestemmingsplan Stratum buiten de Ring II 2016 (zie omgevingsloket of op te vragen via ons kantoor)
• Splitsingsvergunning voor bouwkundige splitsing vanuit de gemeente is verleend. Tekeningen en vergunning zijn aanwezig. U kan zelf de bouwkundige realisatie uitvoeren en het object transformeren naar twee zelfstandige units, geschikt voor eigen gebruik of verhuur.
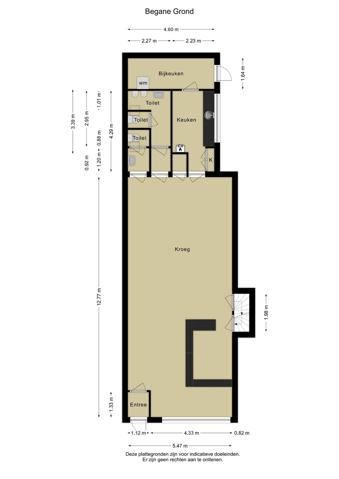
BENEDEN GEDEELTE:
Bijzonderheden:
• Oppervlakte: horecagedeelte ca. 64 m2, overige ruimtes ca. 38 m2. Door verbouw kan een aaneengesloten ruimte van circa 100 m2 gerealiseerd worden, passend bij diverse gebruiksdoeleinden.
• Energielabel begane grond: C, gelding tot 23-07-2034
• Verwarming middels aparte cv-installatie
• Overeenkomsten: vrij/geen overeenkomsten
Indeling
Begane grond: tochtportaal. Open ruimte van circa 64 m2, ingericht als café met een bar aan de rechterzijde. De ruimte is geschikt voor horeca, maar kan – afhankelijk van vergunningverlening – ook worden ingericht voor kantoor- of dienstverlenende activiteiten. Ter hoogte van de bar bevinden zich de trappen naar de bovenwoning en de kelderruimte. \
Aan de achterzijde een apart toilet, tweede sanitaire ruimte met 2 urinoirs en een separaat toilet, bergkast en keuken. De keuken is voorzien van een inbouwkast, eenvoudig keukenmeubel met spoelbak en de cv-installatie. Aansluitend een bijkeuken met wasmachineaansluiting en deur naar buiten.
Kelder: manshoge kelderruimte, geschikt als opslag of ondersteunende ruimte.
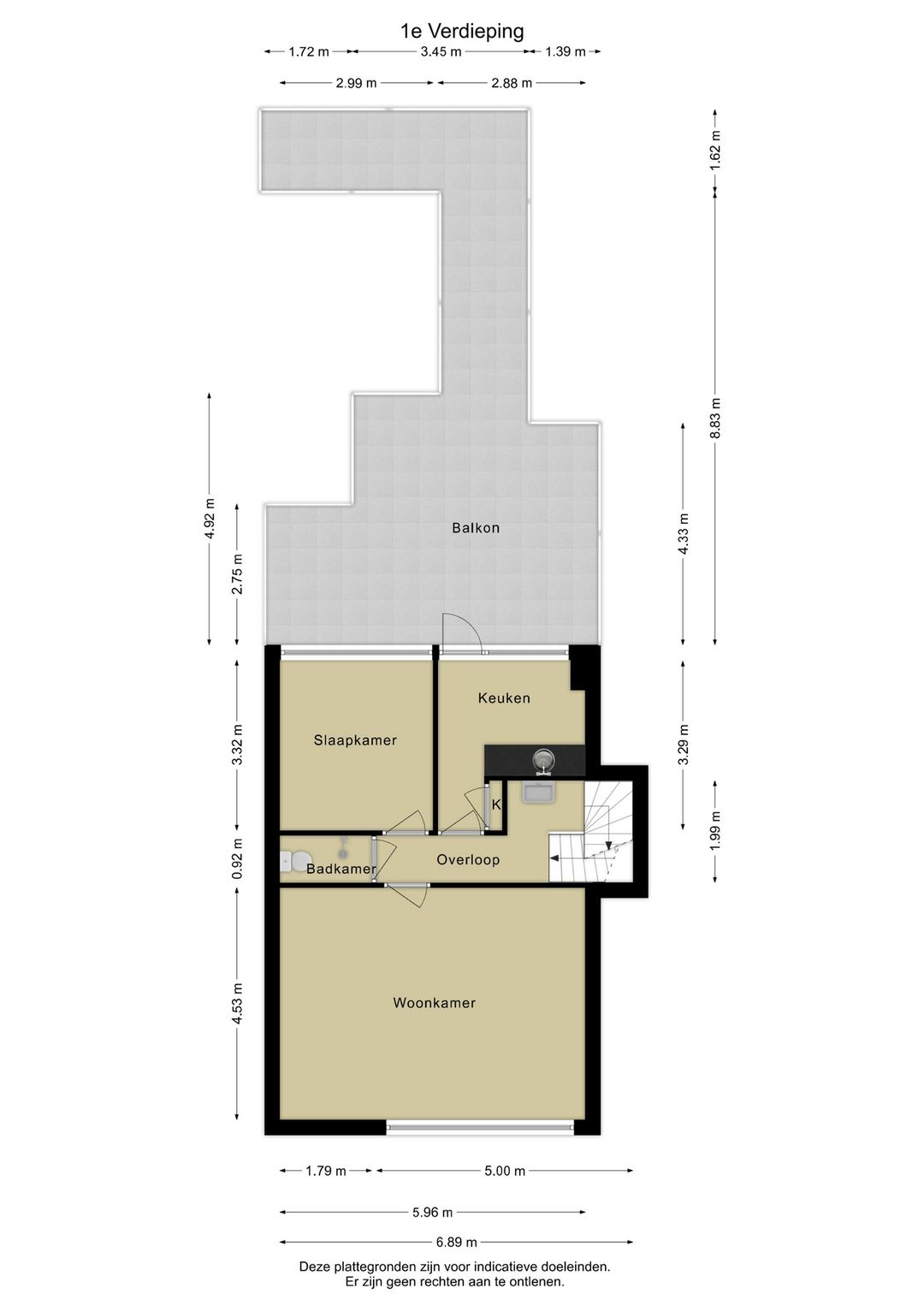
BOVENWONING:
Bijzonderheden:
• Verwarming en warm water middels eigen cv-installatie
• Energielabel bovenwoning: D, geldig tot 23-07-2034
• Groot dakterras gelegen op het zuiden
Indeling
1ste verdieping:
Overloop met toegang tot de woonkamer, badkamer, keuken en slaapkamer. Woonkamer van circa 27 m2, afgewerkt met een laminaatvloer. Aparte keuken met eenvoudig keukenmeubel in wandopstelling, zonder verdere inbouwapparatuur, en met toegang tot het dakterras. Deels betegelde badkamer voorzien van toilet en inloopdouche. Wastafel in meubel op de overloop.
Buiten:
Dakterras van circa 43 m2, gelegen op het zuiden.
2de verdieping:
Overloop met cv-installatie en bergruimte onder de schuine kap. Aansluitend 2 slaapkamers, beide voorzien van een dakkapel en extra bergruimte.
LIGGING:
Gelegen aan het karakteristieke Gerardusplein in het stadsdeel Stratum. Iedere vrijdagmiddag vindt er een weekmarkt plaats op het plein. Op korte loopafstand van fitnesscentra, diverse winkels en supermarkten, horecagelegenheden, een basisschool (BS De Talisman), kinderdagopvang, huisartsenpraktijk en tandarts. De Genneperparken liggen op circa 15 minuten loopafstand. Binnen circa 15 minuten fietsen bereik je onder andere het centrum van Eindhoven, de Genneper Sportparken (met o.a. zwembad De Tongelreep en ijsbaan), de High Tech Campus, landgoed Eikenburg, Strijp-S, de TU/e, het treinstation en het dorpscentrum van Aalst. Door de ligging nabij uitvalswegen (Rondweg en Leenderweg) is de bereikbaarheid in alle richtingen goed.
DISCLAIMER:
De verstrekte gegevens zijn met zorg samengesteld. Voor de juistheid van de verstrekte informatie, waarvoor wij in belangrijke mate afhankelijk zijn van derden, aanvaarden wij, noch de verkoper, enige aansprakelijkheid. De opgegeven maten zijn circa-maten. De vermelde informatie is van algemene aard, geheel vrijblijvend en is niet meer dan een uitnodiging om in onderhandeling te treden.
Interesse in de mogelijkheden van dit object? Neem contact op met ons kantoor voor een nadere toelichting of het plannen van een bezichtiging.
Met de reeds verleende splitsingsvergunning bestaat de mogelijkheid om het pand bouwkundig te splitsen en twee separate units te realiseren. De uitvoering hiervan ligt bij u. Dit biedt kansen voor verhuur en verdere waardeontwikkeling.
Het huidige gebruik als horeca met bovenwoning kan direct voortgezet worden, maar ook andere invullingen zijn denkbaar. Het bestemmingsplan biedt mogelijkheden voor bijvoorbeeld kantoorruimte of een ‘aan-huis-verbonden-beroep’. Voor dergelijke wijzigingen is toestemming vanuit de gemeente vereist en dient rekening gehouden te worden met aanvullende investeringen.
ALGEMEEN:
• Bouwjaar: 1929
• Beneden gedeelte: totaal circa 100 m²
• Woonoppervlakte: circa 74 m²
• Perceeloppervlakte: 126 m2
• Energielabel begane grond: C, geldig tot 23-07-2034
• Energielabel bovenwoning: D, geldig tot 23-07-2034
• Aanvaarding: in overleg
• Bestemming: “Horeca”, functieaanduiding: café. D.w.z. horeca t/m categorie 2a (zoals een restaurant of een lunchroom). Op de verdiepingen is wonen toegestaan. Andere gebruiksvormen zijn in beginsel mogelijk, maar vereisen een bestemmingswijziging of omgevingsvergunning, waarbij kosten en procedures van toepassing zijn. Zie voor meer informatie het bestemmingsplan Stratum buiten de Ring II 2016 (zie omgevingsloket of op te vragen via ons kantoor)
• Splitsingsvergunning voor bouwkundige splitsing vanuit de gemeente is verleend. Tekeningen en vergunning zijn aanwezig. U kan zelf de bouwkundige realisatie uitvoeren en het object transformeren naar twee zelfstandige units, geschikt voor eigen gebruik of verhuur.
BENEDEN GEDEELTE:
Bijzonderheden:
• Oppervlakte: horecagedeelte ca. 64 m2, overige ruimtes ca. 38 m2. Door verbouw kan een aaneengesloten ruimte van circa 100 m2 gerealiseerd worden, passend bij diverse gebruiksdoeleinden.
• Energielabel begane grond: C, gelding tot 23-07-2034
• Verwarming middels aparte cv-installatie
• Overeenkomsten: vrij/geen overeenkomsten
Indeling
Begane grond: tochtportaal. Open ruimte van circa 64 m2, ingericht als café met een bar aan de rechterzijde. De ruimte is geschikt voor horeca, maar kan – afhankelijk van vergunningverlening – ook worden ingericht voor kantoor- of dienstverlenende activiteiten. Ter hoogte van de bar bevinden zich de trappen naar de bovenwoning en de kelderruimte. \
Aan de achterzijde een apart toilet, tweede sanitaire ruimte met 2 urinoirs en een separaat toilet, bergkast en keuken. De keuken is voorzien van een inbouwkast, eenvoudig keukenmeubel met spoelbak en de cv-installatie. Aansluitend een bijkeuken met wasmachineaansluiting en deur naar buiten.
Kelder: manshoge kelderruimte, geschikt als opslag of ondersteunende ruimte.
BOVENWONING:
Bijzonderheden:
• Verwarming en warm water middels eigen cv-installatie
• Energielabel bovenwoning: D, geldig tot 23-07-2034
• Groot dakterras gelegen op het zuiden
Indeling
1ste verdieping:
Overloop met toegang tot de woonkamer, badkamer, keuken en slaapkamer. Woonkamer van circa 27 m2, afgewerkt met een laminaatvloer. Aparte keuken met eenvoudig keukenmeubel in wandopstelling, zonder verdere inbouwapparatuur, en met toegang tot het dakterras. Deels betegelde badkamer voorzien van toilet en inloopdouche. Wastafel in meubel op de overloop.
Buiten:
Dakterras van circa 43 m2, gelegen op het zuiden.
2de verdieping:
Overloop met cv-installatie en bergruimte onder de schuine kap. Aansluitend 2 slaapkamers, beide voorzien van een dakkapel en extra bergruimte.
LIGGING:
Gelegen aan het karakteristieke Gerardusplein in het stadsdeel Stratum. Iedere vrijdagmiddag vindt er een weekmarkt plaats op het plein. Op korte loopafstand van fitnesscentra, diverse winkels en supermarkten, horecagelegenheden, een basisschool (BS De Talisman), kinderdagopvang, huisartsenpraktijk en tandarts. De Genneperparken liggen op circa 15 minuten loopafstand. Binnen circa 15 minuten fietsen bereik je onder andere het centrum van Eindhoven, de Genneper Sportparken (met o.a. zwembad De Tongelreep en ijsbaan), de High Tech Campus, landgoed Eikenburg, Strijp-S, de TU/e, het treinstation en het dorpscentrum van Aalst. Door de ligging nabij uitvalswegen (Rondweg en Leenderweg) is de bereikbaarheid in alle richtingen goed.
DISCLAIMER:
De verstrekte gegevens zijn met zorg samengesteld. Voor de juistheid van de verstrekte informatie, waarvoor wij in belangrijke mate afhankelijk zijn van derden, aanvaarden wij, noch de verkoper, enige aansprakelijkheid. De opgegeven maten zijn circa-maten. De vermelde informatie is van algemene aard, geheel vrijblijvend en is niet meer dan een uitnodiging om in onderhandeling te treden.
Interesse in de mogelijkheden van dit object? Neem contact op met ons kantoor voor een nadere toelichting of het plannen van een bezichtiging.
Kaart
Kaart laden...
Kadastrale grens
Bebouwing
Reistijd
Krijg inzicht in de bereikbaarheid van dit object vanuit bijvoorbeeld een openbaar vervoer station of vanuit een adres.