Omschrijving
van Welderenstraat 126 Nijmegen
Voor deze locatie is geen overnamesom van toepassing. Verhuurder hecht nadrukkelijk waarde aan de kwaliteit en duurzaamheid van het concept; een ondernemersplan maakt daarom onderdeel uit van de selectie.
Voormalig café gelegen in het stadscentrum van Nijmegen in de nabijheid van diverse horeca gelegenheden en winkels, in het midden van de van Welderenstraat aan de rand van het kernwinkelgebied. De van Welderenstraat evenals de van Broeckhuysenstraat zijn bij uitstek de straten die aantrekkelijk zijn voor een bezoeker van het centrum, leuke (deels startende) ondernemers met verassende concepten, maar ook de bekende specialiteitenwinkels die in het centrum van Nijmegen niet te vinden zijn. Daarbij is er mogelijkheid om te parkeren (betaald) direct voor de deur.
LIGGING EN BEREIKBAARHEID
Het object is gelegen aan de van Welderenstraat in het stadscentrum van Nijmegen. In de van Welderenstraat zijn diverse winkels, dienstverleners en horecagelegenheden gevestigd. De speciaalzaken, horeca en dienstverlening wisselen elkaar prettig af. Het is juist de mix die de straat aantrekkelijk maakt. De locatie is goed bereikbaar met de auto. Op korte afstand zijn diverse parkeergarages gelegen, waaronder parkeergarage “De Molenpoort Passage”. Tevens zijn er betaalde parkeervoorzieningen naast de openbare weg. Per openbaar vervoer is de locatie goed bereikbaar doordat diverse bushaltes in de omgeving zijn gelegen. Het busstation en verderop gelegen centraal station zijn op loopafstand gelegen.
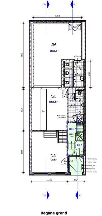
OPPERVLAKTE
ca. 102m² begane grond excl. 32m² kelderruimte.
BESTEMMINGSPLAN
Enkelbestemming gemengd-3
cultuur en ontspanning
detailhandel
horeca (cat. 1a, 1b en 2).
Categorie 2 betreft hier middelzware horeca, waaronder bar, café of proeflokaal. Het bestemmingsplan met staat van
horeca-activiteiten is opvraagbaar bij de makelaar.
OPLEVERINGSNIVEAU
De ruimte wordt opgeleverd in de huidige staat. De indeling is functioneel en flexibel, waardoor de ruimte zich
uitstekend leent voor diverse commerciële invullingen.
HUUPRIJS
€ 2.200,-- per maand, excl. BTW.
SERVICEKOSTEN
niet van toepassing, huurder dient zelf contacten af te sluiten voor G/W/E alsmede internet/telefonie.
BESCHIKBAARHEID
in overleg
Voor deze locatie is geen overnamesom van toepassing. Verhuurder hecht nadrukkelijk waarde aan de kwaliteit en duurzaamheid van het concept; een ondernemersplan maakt daarom onderdeel uit van de selectie.
Voormalig café gelegen in het stadscentrum van Nijmegen in de nabijheid van diverse horeca gelegenheden en winkels, in het midden van de van Welderenstraat aan de rand van het kernwinkelgebied. De van Welderenstraat evenals de van Broeckhuysenstraat zijn bij uitstek de straten die aantrekkelijk zijn voor een bezoeker van het centrum, leuke (deels startende) ondernemers met verassende concepten, maar ook de bekende specialiteitenwinkels die in het centrum van Nijmegen niet te vinden zijn. Daarbij is er mogelijkheid om te parkeren (betaald) direct voor de deur.
LIGGING EN BEREIKBAARHEID
Het object is gelegen aan de van Welderenstraat in het stadscentrum van Nijmegen. In de van Welderenstraat zijn diverse winkels, dienstverleners en horecagelegenheden gevestigd. De speciaalzaken, horeca en dienstverlening wisselen elkaar prettig af. Het is juist de mix die de straat aantrekkelijk maakt. De locatie is goed bereikbaar met de auto. Op korte afstand zijn diverse parkeergarages gelegen, waaronder parkeergarage “De Molenpoort Passage”. Tevens zijn er betaalde parkeervoorzieningen naast de openbare weg. Per openbaar vervoer is de locatie goed bereikbaar doordat diverse bushaltes in de omgeving zijn gelegen. Het busstation en verderop gelegen centraal station zijn op loopafstand gelegen.
OPPERVLAKTE
ca. 102m² begane grond excl. 32m² kelderruimte.
BESTEMMINGSPLAN
Enkelbestemming gemengd-3
cultuur en ontspanning
detailhandel
horeca (cat. 1a, 1b en 2).
Categorie 2 betreft hier middelzware horeca, waaronder bar, café of proeflokaal. Het bestemmingsplan met staat van
horeca-activiteiten is opvraagbaar bij de makelaar.
OPLEVERINGSNIVEAU
De ruimte wordt opgeleverd in de huidige staat. De indeling is functioneel en flexibel, waardoor de ruimte zich
uitstekend leent voor diverse commerciële invullingen.
HUUPRIJS
€ 2.200,-- per maand, excl. BTW.
SERVICEKOSTEN
niet van toepassing, huurder dient zelf contacten af te sluiten voor G/W/E alsmede internet/telefonie.
BESCHIKBAARHEID
in overleg
Kaart
Kaart laden...
Kadastrale grens
Bebouwing
Reistijd
Krijg inzicht in de bereikbaarheid van dit object vanuit bijvoorbeeld een openbaar vervoer station of vanuit een adres.