Feiko Clockstraat 132 9665 BH Oude Pekela
€ 325.000 k.k.
Omschrijving
Dit bedrijfspand met woongedeelte is gelegen op een centrale locatie in het hart van Oude Pekela en wordt volledig verhuurd aangeboden. Een uitstekende kans voor beleggers die op zoek zijn naar een object met direct rendement en stabiele verhuur. De huidige huurders zijn betrouwbaar en blijven het pand huren, wat zorgt voor continuïteit en zekerheid vanaf de overdracht.
Het betreft een cafetaria met een bijbehorend woongedeelte, waardoor er sprake is van een functionele combinatie van wonen en werken. De inventaris hoort niet bij het te koop aangeboden pand. Aan de achterzijde bevindt zich een ruime tuin met een recent geplaatste schuur, wat extra gebruiks- en opslagmogelijkheden biedt. Het pand is gelegen op een perceel van 276 m² en beschikt over een centrumbestemming, wat diverse mogelijkheden biedt voor de toekomst.
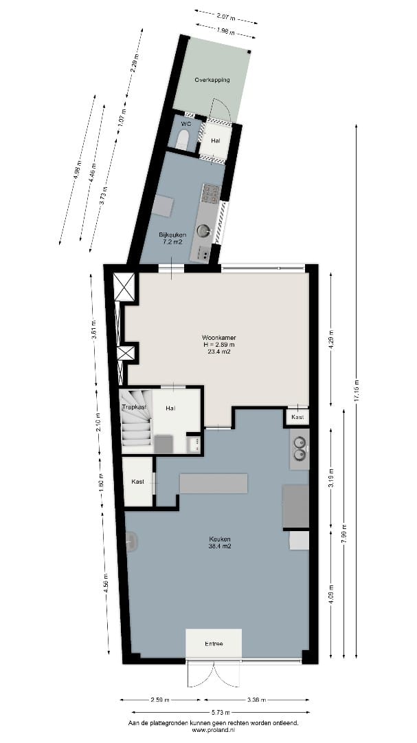
Met een bruto vloeroppervlak van 162 m², een verhuurbaar vloeroppervlak van circa 137,8 m² en een netto vloeroppervlak van 144 m² is het geheel efficiënt ingedeeld.
Indeling van het pand:
Begane grond: entree van de horecaruimte met keuken, doorgang naar het woongedeelte, bijkeuken, hal met achterentree, toilet en een hal met vaste trap naar de verdieping.
Eerste verdieping: overloop met vaste kastruimte, berging, badkamer en drie slaapkamers voorzien van vaste kasten.
Extra informatie:
• Ideaal beleggingsobject met direct rendement;
• Volledig verhuurd (huurders blijven aanwezig);
• Gelegen in het centrum van Oude Pekela;
• Perceeloppervlakte 276 m²;
• Energielabel C (geldig tot 09-09-2030);
• Scope 10 rapport aanwezig;
• Ruime tuin met recent geplaatste schuur;
• Bestemming: centrum;
• Ouderdomsclausule van toepassing;
• Mijnbouwschade is niet meer te claimen;
• Scope-10 rapport is aanwezig;
• Energielabel C.
Bent u op zoek naar een belegging met directe huuropbrengsten en een stabiele verhuursituatie? Neem dan gerust contact met ons op voor meer informatie.
Het betreft een cafetaria met een bijbehorend woongedeelte, waardoor er sprake is van een functionele combinatie van wonen en werken. De inventaris hoort niet bij het te koop aangeboden pand. Aan de achterzijde bevindt zich een ruime tuin met een recent geplaatste schuur, wat extra gebruiks- en opslagmogelijkheden biedt. Het pand is gelegen op een perceel van 276 m² en beschikt over een centrumbestemming, wat diverse mogelijkheden biedt voor de toekomst.
Met een bruto vloeroppervlak van 162 m², een verhuurbaar vloeroppervlak van circa 137,8 m² en een netto vloeroppervlak van 144 m² is het geheel efficiënt ingedeeld.
Indeling van het pand:
Begane grond: entree van de horecaruimte met keuken, doorgang naar het woongedeelte, bijkeuken, hal met achterentree, toilet en een hal met vaste trap naar de verdieping.
Eerste verdieping: overloop met vaste kastruimte, berging, badkamer en drie slaapkamers voorzien van vaste kasten.
Extra informatie:
• Ideaal beleggingsobject met direct rendement;
• Volledig verhuurd (huurders blijven aanwezig);
• Gelegen in het centrum van Oude Pekela;
• Perceeloppervlakte 276 m²;
• Energielabel C (geldig tot 09-09-2030);
• Scope 10 rapport aanwezig;
• Ruime tuin met recent geplaatste schuur;
• Bestemming: centrum;
• Ouderdomsclausule van toepassing;
• Mijnbouwschade is niet meer te claimen;
• Scope-10 rapport is aanwezig;
• Energielabel C.
Bent u op zoek naar een belegging met directe huuropbrengsten en een stabiele verhuursituatie? Neem dan gerust contact met ons op voor meer informatie.
Kenmerken
Overdracht
- Vraagprijs
- € 325.000 kosten koper
- Aangeboden sinds
-
- Status
- Beschikbaar
- Aanvaarding
- Per direct beschikbaar
Overname
- Personeel
- Nee
Bouw
- Hoofdfunctie
- Horeca
- Soort horeca
- Horecagelegenheid
- Soort bouw
- Bestaande bouw
- Bouwjaar
- 1920
Oppervlakten
- Oppervlakte
- 161 m²
- Verkoopvloeroppervlakte
- 161 m²
- Perceel
- 276 m²
Indeling
- Aantal bouwlagen
- 1 bouwlaag
- Gelegen op
- 1e woonlaag
Energie
- Energielabel
- C
Foto's