Omschrijving
TE HUUR
Amsterdamseweg 51-A Amersfoort
OBJECT
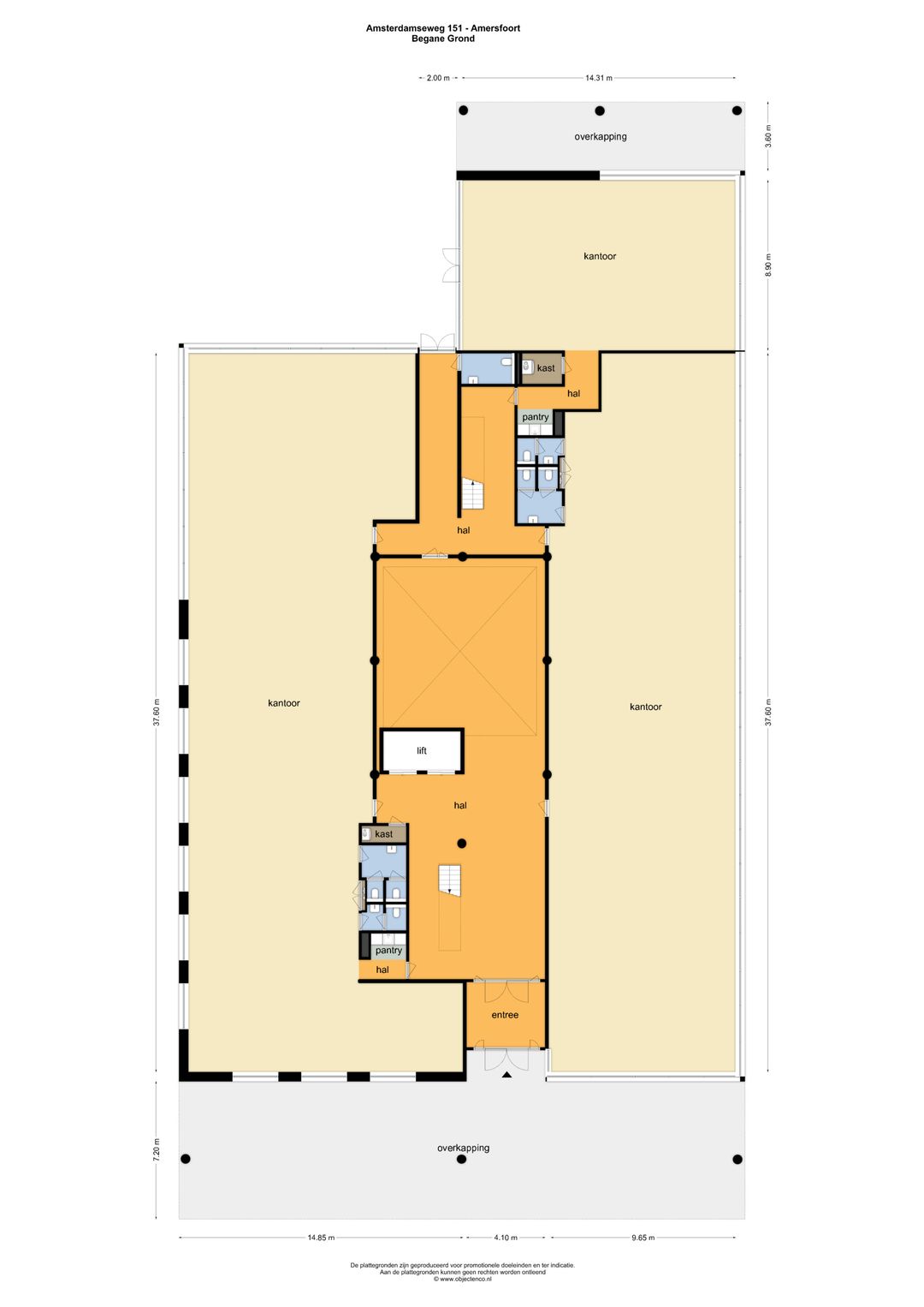
Aan de Amsterdamseweg 51a in Amersfoort, in kantoorgebouw De Voorsprong, komt ca. 678m2 kantoorruimte beschikbaar voor de verhuur. Het kantoorgebouw kenmerkt zich door haar specifieke architectuur en prominente zich locatie. De ruimte bevindt zich op de eerste verdieping en beschikt over een representatieve entree, goede indeling en veel daglichttoetreding. De kantoorruimte kan aangeboden worden vanaf ca. 200m2 met volledig ingerichte werkplekken, voorzien van vergaderruimten en tv screens. De kantoorruimte op de eerste verdieping heeft de beschikking over een eigen toiletgroep en moderne pantry. In het gebouw zijn o.a. gehuisvest Lexima, Acto en Sensotec.
LIGGING EN BEREIKBAARHEID
Het kantoorgebouw ligt op het bedrijventerrein De Isselt, aan de westzijde van Amersfoort en heeft een prominente zicht locatie. De locatie maakt deel uit van de Kop van Isselt, een gebied dat volop wordt herontwikkeld tot een levendige stadswijk waar werken, wonen, horeca en cultuur samenkomen. In de de directe nabijheid zijn al voorzieningen aanwezig, zoals restaurants RAUW, B.A.S. Bites & Store bierbrouwerij Rock City en supermarkten (AH en Aldi) en de komende jaren groeit dit verder uit tot een bruisende omgeving. Dankzij deze mix van stedelijke faciliteiten, creatieve bedrijvigheid en industriële uitstraling is het een inspirerende en hippe werkomgeving die aantrekkelijk is voor jong talent en bedrijven die hun medewerkers een dynamische werkplek willen bieden.
Reistijd vanaf rijksweg A1 (Amsterdam-Amersfoort-Enschede): ca. 5 autominuten;
Reistijd vanaf rijksweg A28 (Utrecht-Amersfoort-Zwolle): ca. 8 autominuten;
Reistijd vanaf stadscentrum: ca. 6 autominuten;
Reistijd vanaf CS Amersfoort: ca. 8 autominuten.
Reistijd met de fiets naar CS Amersfoort: 9 minuten;
Looptijd naar CS Amersfoort: ca. 25-30 minuten.
Met het openbaar vervoer is de bereikbaarheid eveneens goed. Bushaltes bevinden zich op loopafstand en bieden een directe verbinding met station Amersfoort Centraal.
PARKEREN
Het object beschikt over achttien (18) parkeerplaatsen op een eigen terrein welke middels een slagboom te bereiken is. De parkeerplaatsen zijn zowel vanaf de ventweg langs de Amsterdamseweg bereikbaar als via de slagboom op het achter terrein via de Chromiumweg.
BESTEMMINGSPLAN
Amsterdamseweg 51a te Amersfoort valt onder het bestemmingsplan ''Bedrijventerrein -1 Isselt' en heeft de functie aanduiding 'Kantoor'.
VERHUURBARE VLOEROPPERVLAKTE
1e verdieping ca. 678 m² kantoorruimte, inclusief aandeel medegebruik van de algemene ruimtes.
VOORZIENINGEN
- Entree met tochtsluis, belplateau en elektrische schuifdeuren;
- Centrale entree met trappenhuis en lift;
- Op de eerste verdieping 3 verschillende ingangen/toegangsdeuren;
- Systeemplafond voorzien van ledverlichting;
- Uitpandige zonwering, inpandig te bedienen;
- Vloerbedekking;
- Glazen- en dichte scheidingswanden;
- Luchtbehandeling voorzien van topkoeling;
- Verwarming door middel van radiatoren;
- 1 centrale pantry voorzien van koelkast en vaatwasser;
- Sanitaire voorzieningen voor dames en heren;
- Te openen ramen;
- Kabelgoten voorzien bekabeling;
- Personen lift.
ENERGIELABEL
Het gebouw beschikt over energielabel A, geldig tot en met 12 april 2033.
HUURPRIJS
€ 135,-- per m² per jaar, exclusief omzetbelasting (Het is mogelijk om deze ruimte vrij van BTW te huren).
HUURPRIJS PARKEERRUIMTE
Parkeren € 500,-- per parkeerplaats per jaar, exclusief omzetbelasting.
LEVERINGEN EN DIENSTEN
Het voorschot servicekosten bedraagt € 45,-- per m² per jaar exclusief omzetbelasting, ten behoeve van:
- Elektriciteitsverbruik inclusief vastrecht;
- Waterverbruik inclusief vastrecht;
- Gasverbruik inclusief vastrecht;
- Schoonmaak algemene ruimten;
- Verzorging huisvuil/containerhuur;
- Onderhoud elektrische installaties;
- Onderhoud werktuigbouwkundige installaties;
- Onderhoud liftinstallatie;
- Onderhoud slagboominstallatie;
- Onderhoud toegangsdeuren;
- Glasbewassing;
- Groenvoorziening;
- Brandbeveiliging;
- Dakafwerking;
- Diversen;
- Individuele doorbelasting;
- 5% administratiekosten over bovenstaande leveringen en diensten.
OPLEVERING
In huidige staat. Het is mogelijk het bestaande werkplekken, kantoormeubilair en tv screens over te nemen of mee te huren tegen een overeen te komen bedrag.
PROJECTWEBSITE
AANVAARDING
Per direct.
HUURTERMIJN
Vijf (05) jaar, kortere huurperiode bespreekbaar.
VOORTZETTINGSTERMIJN
Telkens vijf (05) jaar.
OPZEGTERMIJN
Twaalf (12) volle kalendermaanden.
INDEXERING
Jaarlijks conform CPI-Alle Huishoudens (2015=100), voor het eerst één jaar na de ingangsdatum van de
huurovereenkomst.
CONTRACT
ROZ-huurcontract voor kantoorruimte, versie 2015 met bijbehorende algemene bepalingen, alsmede
enkele aanvullende bepalingen
BANKGARANTIE/WAARBORGSOM
Ter grootte van een kwartaalhuur te vermeerderen met omzetbelasting.
OMZETBELASTING
Er wordt geopteerd voor belaste verhuur, c.q. de huurprijs wordt verhoogd met omzetbelasting. Indien er
niet wordt geopteerd voor belaste verhuur, wordt de huurprijs verhoogd met een door de accountant van
de verhuurder nader vast te stellen percentage.
PRIVACY
Brandt Bedrijfsmakelaars respecteert uw recht op privacy en garandeert dat uw persoons- en bedrijfsgegevens op een vertrouwelijke en verantwoordelijke wijze zullen worden behandeld, overeenkomstig de richtlijnen uit de Algemene Verordening Gegevensbescherming (AVG).
DISCLAIMER
Nadrukkelijk is vermeld dat deze informatieverstrekking niet als een aanbieding of offerte mag worden beschouwd. Aan deze gegevens kunnen geen rechten worden ontleend.
Amsterdamseweg 51-A Amersfoort
OBJECT
Aan de Amsterdamseweg 51a in Amersfoort, in kantoorgebouw De Voorsprong, komt ca. 678m2 kantoorruimte beschikbaar voor de verhuur. Het kantoorgebouw kenmerkt zich door haar specifieke architectuur en prominente zich locatie. De ruimte bevindt zich op de eerste verdieping en beschikt over een representatieve entree, goede indeling en veel daglichttoetreding. De kantoorruimte kan aangeboden worden vanaf ca. 200m2 met volledig ingerichte werkplekken, voorzien van vergaderruimten en tv screens. De kantoorruimte op de eerste verdieping heeft de beschikking over een eigen toiletgroep en moderne pantry. In het gebouw zijn o.a. gehuisvest Lexima, Acto en Sensotec.
LIGGING EN BEREIKBAARHEID
Het kantoorgebouw ligt op het bedrijventerrein De Isselt, aan de westzijde van Amersfoort en heeft een prominente zicht locatie. De locatie maakt deel uit van de Kop van Isselt, een gebied dat volop wordt herontwikkeld tot een levendige stadswijk waar werken, wonen, horeca en cultuur samenkomen. In de de directe nabijheid zijn al voorzieningen aanwezig, zoals restaurants RAUW, B.A.S. Bites & Store bierbrouwerij Rock City en supermarkten (AH en Aldi) en de komende jaren groeit dit verder uit tot een bruisende omgeving. Dankzij deze mix van stedelijke faciliteiten, creatieve bedrijvigheid en industriële uitstraling is het een inspirerende en hippe werkomgeving die aantrekkelijk is voor jong talent en bedrijven die hun medewerkers een dynamische werkplek willen bieden.
Reistijd vanaf rijksweg A1 (Amsterdam-Amersfoort-Enschede): ca. 5 autominuten;
Reistijd vanaf rijksweg A28 (Utrecht-Amersfoort-Zwolle): ca. 8 autominuten;
Reistijd vanaf stadscentrum: ca. 6 autominuten;
Reistijd vanaf CS Amersfoort: ca. 8 autominuten.
Reistijd met de fiets naar CS Amersfoort: 9 minuten;
Looptijd naar CS Amersfoort: ca. 25-30 minuten.
Met het openbaar vervoer is de bereikbaarheid eveneens goed. Bushaltes bevinden zich op loopafstand en bieden een directe verbinding met station Amersfoort Centraal.
PARKEREN
Het object beschikt over achttien (18) parkeerplaatsen op een eigen terrein welke middels een slagboom te bereiken is. De parkeerplaatsen zijn zowel vanaf de ventweg langs de Amsterdamseweg bereikbaar als via de slagboom op het achter terrein via de Chromiumweg.
BESTEMMINGSPLAN
Amsterdamseweg 51a te Amersfoort valt onder het bestemmingsplan ''Bedrijventerrein -1 Isselt' en heeft de functie aanduiding 'Kantoor'.
VERHUURBARE VLOEROPPERVLAKTE
1e verdieping ca. 678 m² kantoorruimte, inclusief aandeel medegebruik van de algemene ruimtes.
VOORZIENINGEN
- Entree met tochtsluis, belplateau en elektrische schuifdeuren;
- Centrale entree met trappenhuis en lift;
- Op de eerste verdieping 3 verschillende ingangen/toegangsdeuren;
- Systeemplafond voorzien van ledverlichting;
- Uitpandige zonwering, inpandig te bedienen;
- Vloerbedekking;
- Glazen- en dichte scheidingswanden;
- Luchtbehandeling voorzien van topkoeling;
- Verwarming door middel van radiatoren;
- 1 centrale pantry voorzien van koelkast en vaatwasser;
- Sanitaire voorzieningen voor dames en heren;
- Te openen ramen;
- Kabelgoten voorzien bekabeling;
- Personen lift.
ENERGIELABEL
Het gebouw beschikt over energielabel A, geldig tot en met 12 april 2033.
HUURPRIJS
€ 135,-- per m² per jaar, exclusief omzetbelasting (Het is mogelijk om deze ruimte vrij van BTW te huren).
HUURPRIJS PARKEERRUIMTE
Parkeren € 500,-- per parkeerplaats per jaar, exclusief omzetbelasting.
LEVERINGEN EN DIENSTEN
Het voorschot servicekosten bedraagt € 45,-- per m² per jaar exclusief omzetbelasting, ten behoeve van:
- Elektriciteitsverbruik inclusief vastrecht;
- Waterverbruik inclusief vastrecht;
- Gasverbruik inclusief vastrecht;
- Schoonmaak algemene ruimten;
- Verzorging huisvuil/containerhuur;
- Onderhoud elektrische installaties;
- Onderhoud werktuigbouwkundige installaties;
- Onderhoud liftinstallatie;
- Onderhoud slagboominstallatie;
- Onderhoud toegangsdeuren;
- Glasbewassing;
- Groenvoorziening;
- Brandbeveiliging;
- Dakafwerking;
- Diversen;
- Individuele doorbelasting;
- 5% administratiekosten over bovenstaande leveringen en diensten.
OPLEVERING
In huidige staat. Het is mogelijk het bestaande werkplekken, kantoormeubilair en tv screens over te nemen of mee te huren tegen een overeen te komen bedrag.
PROJECTWEBSITE
AANVAARDING
Per direct.
HUURTERMIJN
Vijf (05) jaar, kortere huurperiode bespreekbaar.
VOORTZETTINGSTERMIJN
Telkens vijf (05) jaar.
OPZEGTERMIJN
Twaalf (12) volle kalendermaanden.
INDEXERING
Jaarlijks conform CPI-Alle Huishoudens (2015=100), voor het eerst één jaar na de ingangsdatum van de
huurovereenkomst.
CONTRACT
ROZ-huurcontract voor kantoorruimte, versie 2015 met bijbehorende algemene bepalingen, alsmede
enkele aanvullende bepalingen
BANKGARANTIE/WAARBORGSOM
Ter grootte van een kwartaalhuur te vermeerderen met omzetbelasting.
OMZETBELASTING
Er wordt geopteerd voor belaste verhuur, c.q. de huurprijs wordt verhoogd met omzetbelasting. Indien er
niet wordt geopteerd voor belaste verhuur, wordt de huurprijs verhoogd met een door de accountant van
de verhuurder nader vast te stellen percentage.
PRIVACY
Brandt Bedrijfsmakelaars respecteert uw recht op privacy en garandeert dat uw persoons- en bedrijfsgegevens op een vertrouwelijke en verantwoordelijke wijze zullen worden behandeld, overeenkomstig de richtlijnen uit de Algemene Verordening Gegevensbescherming (AVG).
DISCLAIMER
Nadrukkelijk is vermeld dat deze informatieverstrekking niet als een aanbieding of offerte mag worden beschouwd. Aan deze gegevens kunnen geen rechten worden ontleend.
Kaart
Kaart laden...
Kadastrale grens
Bebouwing
Reistijd
Krijg inzicht in de bereikbaarheid van dit object vanuit bijvoorbeeld een openbaar vervoer station of vanuit een adres.