Berkenweg 46 3818 LB Amersfoort
€ 52.500 /jr
Omschrijving
ALGEMEEN
Het kleinschalige, vrijstaande kantoorgebouw “ De Berk “ ligt in een gemengde omgeving van kantoren en het hogere segment woningen op wat genoemd het Bergkwartier. De rustieke directe omgeving heeft veel groenvoorzieningen en de Berkenweg kent geen doorgaande functie qua autoverkeer.
Het kantoorgebouw “De Berk” bestaat uit drie lagen, te weten twee kantoorverdiepingen en een multifunctioneel souterrain, met een totale oppervlakte van circa 210 m². Het pand is recent geheel gemoderniseerd.
Het souterrain is uitstekend geschikt voor gebruik als extra vergaderruimte dan wel als lunchruimte. Daarnaast beschikt het object over een tuin, waar u in alle rust kunt ontspannen. In de tuin bevindt zich tevens een overdekte berging ten behoeve van fietsen en dergelijke.
Het pand is ideaal voor een breed scala aan adviesbureaus, uitzendorganisaties, medische en well being beroepen, grafische studio’s & consultants etc.
LOCATIE
Het kantoorgebouw “De Berk” is gelegen in het centrum van Amersfoort, op loopafstand van diverse winkels en horecagelegenheden. Het object bevindt zich op slechts circa 350 meter van Amersfoort Centraal Station en het busstation, waardoor de lokale, regionale en landelijke verbindingen uitstekend zijn.
“De Berk “is daarnaast heel eenvoudig en snel met de auto te bereiken vanuit de Stichtse Rotonde en de Stadsring, alwaar u via de A1 en A28 binnen 10 minuten al rijdt.
VLOEROPPERVLAKTE
Zoals gesteld, kent “ De Berk “ drie bouwlagen. In totaal zo’n 210 m2.
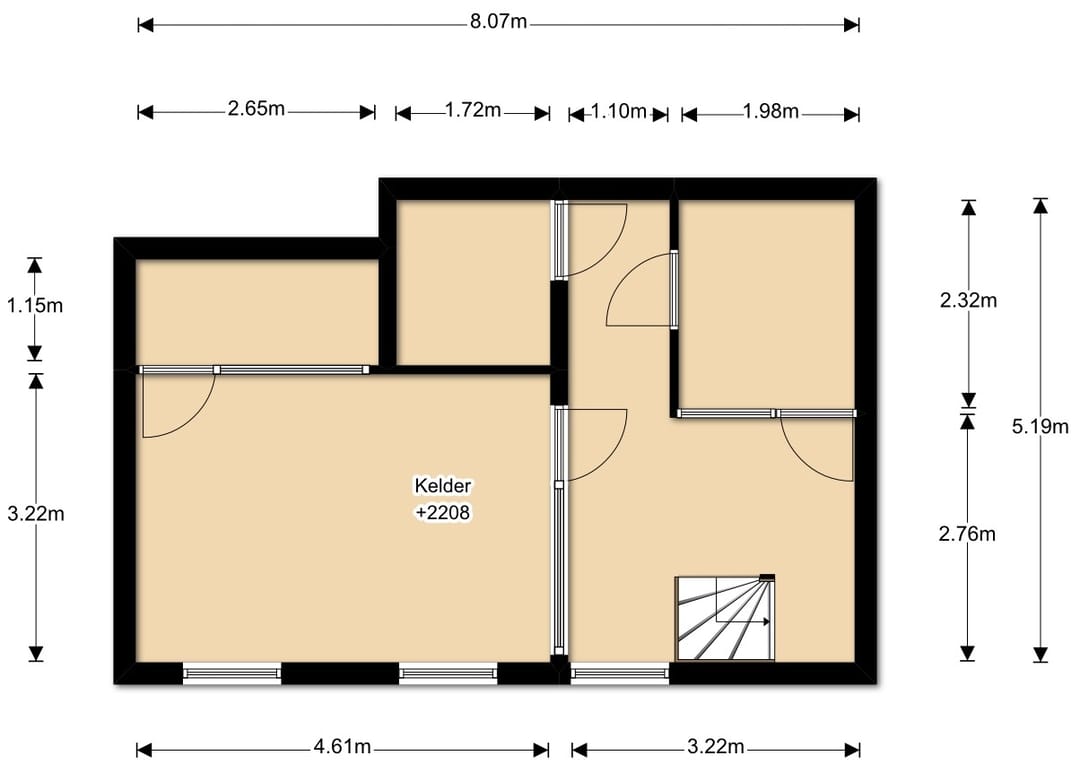
Indeling: Zie de plattegrondtekeningen in de bijlagen.
OPLEVERINGSNIVEAU
"De Berk" wordt opgeleverd in huidige staat:
• Houten vloeren;
• Voorzien van rolluiken;
• Alle ruimten voorzien van airco installaties;
• Alarminstallatie;
• Kabelgoten;
• Internetaansluiting (T-mobile);
• HR++ ramen;
• Geïsoleerde buitengevel;
• Led verlichting;
• 16 Zonnepanelen.
PARKEREN
Er zijn 3 parkeerplaatsen op eigen terrein beschikbaar. Daarnaast is er parkeergelegenheid aan de openbare weg.
BESTEMMING
Kantoorruimte
Informatie inzake gebruiksmogelijkheden en voorschriften is te verkrijgen via ons kantoor, bij de gemeente of via de website van ruimtelijke plannen.
HUURPRIJS
€ 52.500,- per jaar te vermeerderen met de geldende BTW.
BTW
Uitgangspunt is een met BTW belaste huurprijs. Indien een huurder niet voldoet aan de voor belaste verhuur gestelde criteria zal de huurprijs zodanig worden verhoogd dat het voor verhuurder ontstane financiële nadeel volledig wordt gecompenseerd.
SERVICEKOSTEN
Verrekenbaar voorschot van € 30,- per m² per jaar, te vermeerderen met de geldende BTW.
HUURTERMIJN
Huurperiode van 5 jaar gevolgd door verlengingstermijnen van telkens 5 jaar.
Kortere huurtermijnen zijn bespreekbaar.
OPZEGTERMIJN
12 maanden.
HUURBETALING
De totale betalingsverplichting dient per kwartaal vooruit te worden voldaan.
ZEKERHEIDSTELLING
Een bankgarantie ter grootte van drie maanden huur en servicekosten te vermeerderen met de geldende BTW.
HUURINDEXATIE
De huurprijs zal jaarlijks, voor het eerst 1 jaar na de huuringangsdatum, worden verhoogd op basis van de consumentenprijsindex (CPI) zoals wordt gepubliceerd door het Centraal Bureau voor de Statistiek (CBS).
HUUROVEREENKOMST
De huurovereenkomst zal zijn gebaseerd op het model zoals is vastgesteld door de Raad voor Onroerende Zaken (ROZ) 2025, inclusief de algemene bepalingen.
AANVAARDING
In overleg.
Het kleinschalige, vrijstaande kantoorgebouw “ De Berk “ ligt in een gemengde omgeving van kantoren en het hogere segment woningen op wat genoemd het Bergkwartier. De rustieke directe omgeving heeft veel groenvoorzieningen en de Berkenweg kent geen doorgaande functie qua autoverkeer.
Het kantoorgebouw “De Berk” bestaat uit drie lagen, te weten twee kantoorverdiepingen en een multifunctioneel souterrain, met een totale oppervlakte van circa 210 m². Het pand is recent geheel gemoderniseerd.
Het souterrain is uitstekend geschikt voor gebruik als extra vergaderruimte dan wel als lunchruimte. Daarnaast beschikt het object over een tuin, waar u in alle rust kunt ontspannen. In de tuin bevindt zich tevens een overdekte berging ten behoeve van fietsen en dergelijke.
Het pand is ideaal voor een breed scala aan adviesbureaus, uitzendorganisaties, medische en well being beroepen, grafische studio’s & consultants etc.
LOCATIE
Het kantoorgebouw “De Berk” is gelegen in het centrum van Amersfoort, op loopafstand van diverse winkels en horecagelegenheden. Het object bevindt zich op slechts circa 350 meter van Amersfoort Centraal Station en het busstation, waardoor de lokale, regionale en landelijke verbindingen uitstekend zijn.
“De Berk “is daarnaast heel eenvoudig en snel met de auto te bereiken vanuit de Stichtse Rotonde en de Stadsring, alwaar u via de A1 en A28 binnen 10 minuten al rijdt.
VLOEROPPERVLAKTE
Zoals gesteld, kent “ De Berk “ drie bouwlagen. In totaal zo’n 210 m2.
Indeling: Zie de plattegrondtekeningen in de bijlagen.
OPLEVERINGSNIVEAU
"De Berk" wordt opgeleverd in huidige staat:
• Houten vloeren;
• Voorzien van rolluiken;
• Alle ruimten voorzien van airco installaties;
• Alarminstallatie;
• Kabelgoten;
• Internetaansluiting (T-mobile);
• HR++ ramen;
• Geïsoleerde buitengevel;
• Led verlichting;
• 16 Zonnepanelen.
PARKEREN
Er zijn 3 parkeerplaatsen op eigen terrein beschikbaar. Daarnaast is er parkeergelegenheid aan de openbare weg.
BESTEMMING
Kantoorruimte
Informatie inzake gebruiksmogelijkheden en voorschriften is te verkrijgen via ons kantoor, bij de gemeente of via de website van ruimtelijke plannen.
HUURPRIJS
€ 52.500,- per jaar te vermeerderen met de geldende BTW.
BTW
Uitgangspunt is een met BTW belaste huurprijs. Indien een huurder niet voldoet aan de voor belaste verhuur gestelde criteria zal de huurprijs zodanig worden verhoogd dat het voor verhuurder ontstane financiële nadeel volledig wordt gecompenseerd.
SERVICEKOSTEN
Verrekenbaar voorschot van € 30,- per m² per jaar, te vermeerderen met de geldende BTW.
HUURTERMIJN
Huurperiode van 5 jaar gevolgd door verlengingstermijnen van telkens 5 jaar.
Kortere huurtermijnen zijn bespreekbaar.
OPZEGTERMIJN
12 maanden.
HUURBETALING
De totale betalingsverplichting dient per kwartaal vooruit te worden voldaan.
ZEKERHEIDSTELLING
Een bankgarantie ter grootte van drie maanden huur en servicekosten te vermeerderen met de geldende BTW.
HUURINDEXATIE
De huurprijs zal jaarlijks, voor het eerst 1 jaar na de huuringangsdatum, worden verhoogd op basis van de consumentenprijsindex (CPI) zoals wordt gepubliceerd door het Centraal Bureau voor de Statistiek (CBS).
HUUROVEREENKOMST
De huurovereenkomst zal zijn gebaseerd op het model zoals is vastgesteld door de Raad voor Onroerende Zaken (ROZ) 2025, inclusief de algemene bepalingen.
AANVAARDING
In overleg.
Kenmerken
Overdracht
- Huurprijs
- € 52.500 per jaar
- Oorspronkelijke huurprijs
- € 51.500 per jaar
- Servicekosten
- € 30 per vierkante meter per jaar (21% BTW van toepassing)
- Aangeboden sinds
-
- Status
- Beschikbaar
- Aanvaarding
- In overleg
Bouw
- Hoofdfunctie
- Kantoor
- Soort bouw
- Bestaande bouw
- Bouwjaar
- 1959
Oppervlakten
- Oppervlakte
- 210 m²
Indeling
- Aantal bouwlagen
- 3 bouwlagen
- Voorzieningen
- Airconditioning, inbouwarmaturen, te openen ramen, kabelgoten, toilet, pantry, verwarming en kamerindeling
Energie
- Energielabel
- C 2,52
Omgeving
- Ligging
- Stadscentrum/dorpskern, in woonwijk en stationslocatie
- Bereikbaarheid
- NS Intercitystation op minder dan 500 m en snelwegafrit op 500 m tot 1000 m
Parkeergelegenheid
- Parkeerplaatsen
- 3 niet-overdekte parkeerplaatsen
Foto's