Gaardenweg 3 5324 JJ Ammerzoden
- Nieuw
€ 65 /m²/jaar
Omschrijving
Representatief en volledig geïsoleerd bedrijfspand met kantoorruimte beschikbaar aan de Gaardenweg 3 in Ammerzoden. Het object is volledig gecertificeerd voor foodproductie en daardoor uitermate geschikt voor bedrijven actief in de foodsector, distributie of gekoelde opslag. De bedrijfsruimte is praktisch ingericht met een gekoelde expeditieruimte aan de loading docks met een separate entree, waarna directe toegang wordt verkregen tot de koelcellen en diverse productieruimtes. Daarnaast beschikt het pand over meerdere kantoorruimtes op de begane grond en eerste verdieping, een toilet, wasruimte en een kantine.
Bij de realisatie is gebruik gemaakt van duurzame materialen, wat de kwaliteit van het pand ten goede is gekomen.
OPPERVLAKTE (BVO)
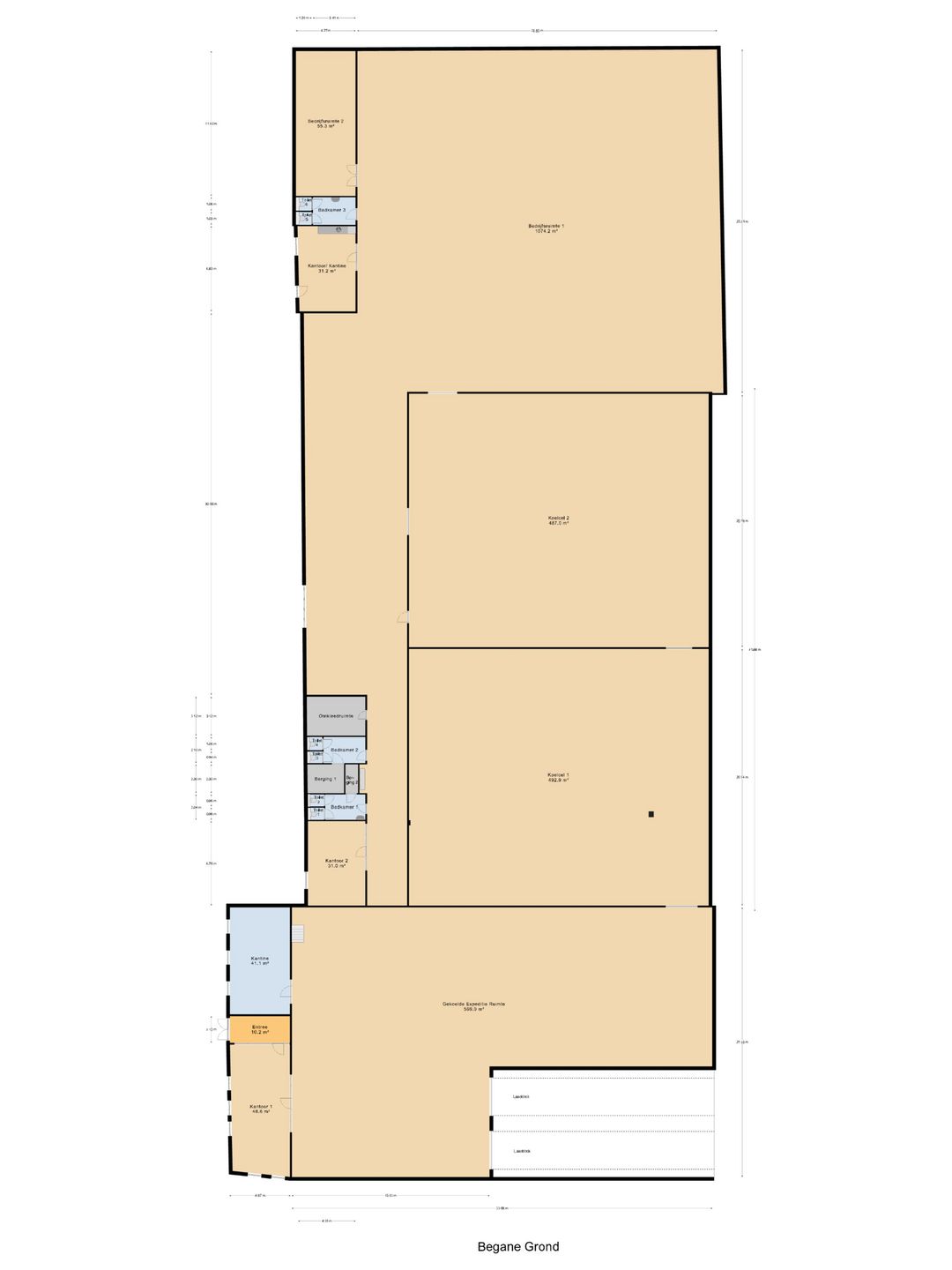
Begane grond: circa 2.852 m2
Eerste verdieping: circa. 176 m2
PARKEREN
Het buitenterrein is voorzien van bestrating en biedt ruimte voor 25 parkeerplaatsen en tevens mogelijkheden voor laden- en lossen.
LIGGING EN BEREIKBAARHEID
Het bedrijfspand is gelegen aan de Gaardenweg 3 te Ammerzoden, in een landelijke omgeving met tegelijkertijd een goede bereikbaarheid. De locatie combineert rust en ruimte met praktische voordelen voor ondernemers die behoefte hebben aan een strategisch gelegen bedrijfsobject.
De bereikbaarheid is uitstekend dankzij de gunstige ligging nabij de N831 en op korte afstand van de A2. Hierdoor zijn steden als ’s-Hertogenbosch, Utrecht en Eindhoven goed bereikbaar. Daarnaast zorgt de aansluiting op de A59 voor snelle verbindingen richting onder meer Nijmegen, Breda en Waalwijk.
BESTEMMING
Volgens het huidige bestemmingsplan is er sprake van een “Agrarisch met waarden” bestemming met de functieaanduiding ‘specifieke vorm van agrarisch – paddenstoelenteelt’.
Als gebruiker bent u zelf verantwoordelijk om navraag te doen naar het actuele bestemmingsplan bij de gemeente. Aan deze omschrijving kunnen geen rechten worden ontleend.
OPLEVERINGSNIVEAU BEDRIJFSRUIMTE
- Deels voorzien van persluchtleidingen
- Freon R134A koelinstallatie met 155kW koelvermogen in de koelcellen en expeditie ruimte met minimum temperatuur van 3 graden afhankelijk van soort en hoeveelheid product
- Alarminstallatie en camerabeveiliging
- toiletruimtes
- Automatische snelloopdeuren (circa 10 stuks)
- Betonvloer
- Brandpreventiemiddelen per ruimte (haspels en blussers)
- Centrale waterafvoer / put
- Eigen trafo
- Gasheater
- Hogedruk watervoorziening met 10.000 liter tank met diverse tappunten binnen en buiten
- Krachtstroom (150 kWh)
- Loading docks met vloerverwarming in de helling(2 stuks)
- Overheaddeuren
- Aanrijbeveiliging intern (gele paaltjes)
- Diverse palletstellingen
- Tussenmeters
- Vrije hoogte vanaf circa 5 meter
OPLEVERINGSNIVEAU KANTOORRUIMTE
- Cv-ketel
- Glasvezel aanwezig
- Internet- en telefonieaansluiting
- Kantine incl. vaatwasser en koelkast
- Afzuiginstallatie
- Lamellen
- Serverruimte
- Stucwerkwanden
- Systeemplafond met inbouw Ledverlichting
- Vaste ramen voorzien van veiligheidsglas
- Toiletruimte
- Vloerbedekking op bovenverdieping, gietvloeren op benedenverdieping
HUURCONDITIES
Huurprijs: vanaf € 65,- per m2 per jaar excl. BTW
Huurtermijn: In overleg, minimaal 5 jaar.
Servicekosten: In overleg.
Aanvaarding: In overleg, per 1 oktober 2026.
Opzegtermijn: 12 maanden
Zekerheidstelling: Waarborgsom: ter grootte van drie maanden huur inclusief BTW.
Huurindexering: Jaarlijks overeenkomstig het maand prijsindexcijfer volgens het consumentenprijsindexcijfer (CPI) reeks CPI alle huishoudens (2006=100) gepubliceerd door het Centraal Bureau voor de Statistiek (CBS). De huurprijs zal nimmer minder bedragen dan de huurprijs van het voorafgaande jaar. Indexatie voor het eerst 12 maanden na huur ingangsdatum en zo vervolgens jaarlijks.
BTW: Indien huurder niet aan het “90%-criterium”(aandeel belaste prestaties) voldoet, zal er van rechtswege sprake zijn van omzetbelasting vrijgestelde verhuur. Als dan wordt de overeengekomen kale huurprijs, exclusief omzetbelasting, zodanig verhoogd, dat het voor verhuurder ontstane financiële nadeel wordt gecompenseerd.
Huurcontract: R.O.Z.-model, huurovereenkomst kantoorruimte en andere bedrijfsruimte in de zin van artikel 7:230a BW met de benodigde aanvullingen.
GOEDKEURING
Het bovenstaande is onder finaal voorbehoud van de eigenaar.
Disclaimer: Ondanks dat deze publicatie met de grootst mogelijke zorgvuldigheid is samengesteld is de Online Bedrijfsmakelaar BV niet aansprakelijk te stellen voor onjuiste of onvolledige informatie die in deze publicatie vermeld staan. Aan deze gegevens kunnen geen rechten worden ontleend.
====================
Alle beschikbare informatie ontvangen?
Benieuwd naar alle beschikbare informatie over het pand? Vraag dan nu, onder de grote contactbutton, de gratis objectbrochure van de Gaardenweg 3 in Ammerzoden aan en ontvang deze direct in uw mailbox. Uiteraard kunt u ook direct een geheel vrijblijvende bezichtiging met de beheerder van het pand inplannen.
Bij de realisatie is gebruik gemaakt van duurzame materialen, wat de kwaliteit van het pand ten goede is gekomen.
OPPERVLAKTE (BVO)
Begane grond: circa 2.852 m2
Eerste verdieping: circa. 176 m2
PARKEREN
Het buitenterrein is voorzien van bestrating en biedt ruimte voor 25 parkeerplaatsen en tevens mogelijkheden voor laden- en lossen.
LIGGING EN BEREIKBAARHEID
Het bedrijfspand is gelegen aan de Gaardenweg 3 te Ammerzoden, in een landelijke omgeving met tegelijkertijd een goede bereikbaarheid. De locatie combineert rust en ruimte met praktische voordelen voor ondernemers die behoefte hebben aan een strategisch gelegen bedrijfsobject.
De bereikbaarheid is uitstekend dankzij de gunstige ligging nabij de N831 en op korte afstand van de A2. Hierdoor zijn steden als ’s-Hertogenbosch, Utrecht en Eindhoven goed bereikbaar. Daarnaast zorgt de aansluiting op de A59 voor snelle verbindingen richting onder meer Nijmegen, Breda en Waalwijk.
BESTEMMING
Volgens het huidige bestemmingsplan is er sprake van een “Agrarisch met waarden” bestemming met de functieaanduiding ‘specifieke vorm van agrarisch – paddenstoelenteelt’.
Als gebruiker bent u zelf verantwoordelijk om navraag te doen naar het actuele bestemmingsplan bij de gemeente. Aan deze omschrijving kunnen geen rechten worden ontleend.
OPLEVERINGSNIVEAU BEDRIJFSRUIMTE
- Deels voorzien van persluchtleidingen
- Freon R134A koelinstallatie met 155kW koelvermogen in de koelcellen en expeditie ruimte met minimum temperatuur van 3 graden afhankelijk van soort en hoeveelheid product
- Alarminstallatie en camerabeveiliging
- toiletruimtes
- Automatische snelloopdeuren (circa 10 stuks)
- Betonvloer
- Brandpreventiemiddelen per ruimte (haspels en blussers)
- Centrale waterafvoer / put
- Eigen trafo
- Gasheater
- Hogedruk watervoorziening met 10.000 liter tank met diverse tappunten binnen en buiten
- Krachtstroom (150 kWh)
- Loading docks met vloerverwarming in de helling(2 stuks)
- Overheaddeuren
- Aanrijbeveiliging intern (gele paaltjes)
- Diverse palletstellingen
- Tussenmeters
- Vrije hoogte vanaf circa 5 meter
OPLEVERINGSNIVEAU KANTOORRUIMTE
- Cv-ketel
- Glasvezel aanwezig
- Internet- en telefonieaansluiting
- Kantine incl. vaatwasser en koelkast
- Afzuiginstallatie
- Lamellen
- Serverruimte
- Stucwerkwanden
- Systeemplafond met inbouw Ledverlichting
- Vaste ramen voorzien van veiligheidsglas
- Toiletruimte
- Vloerbedekking op bovenverdieping, gietvloeren op benedenverdieping
HUURCONDITIES
Huurprijs: vanaf € 65,- per m2 per jaar excl. BTW
Huurtermijn: In overleg, minimaal 5 jaar.
Servicekosten: In overleg.
Aanvaarding: In overleg, per 1 oktober 2026.
Opzegtermijn: 12 maanden
Zekerheidstelling: Waarborgsom: ter grootte van drie maanden huur inclusief BTW.
Huurindexering: Jaarlijks overeenkomstig het maand prijsindexcijfer volgens het consumentenprijsindexcijfer (CPI) reeks CPI alle huishoudens (2006=100) gepubliceerd door het Centraal Bureau voor de Statistiek (CBS). De huurprijs zal nimmer minder bedragen dan de huurprijs van het voorafgaande jaar. Indexatie voor het eerst 12 maanden na huur ingangsdatum en zo vervolgens jaarlijks.
BTW: Indien huurder niet aan het “90%-criterium”(aandeel belaste prestaties) voldoet, zal er van rechtswege sprake zijn van omzetbelasting vrijgestelde verhuur. Als dan wordt de overeengekomen kale huurprijs, exclusief omzetbelasting, zodanig verhoogd, dat het voor verhuurder ontstane financiële nadeel wordt gecompenseerd.
Huurcontract: R.O.Z.-model, huurovereenkomst kantoorruimte en andere bedrijfsruimte in de zin van artikel 7:230a BW met de benodigde aanvullingen.
GOEDKEURING
Het bovenstaande is onder finaal voorbehoud van de eigenaar.
Disclaimer: Ondanks dat deze publicatie met de grootst mogelijke zorgvuldigheid is samengesteld is de Online Bedrijfsmakelaar BV niet aansprakelijk te stellen voor onjuiste of onvolledige informatie die in deze publicatie vermeld staan. Aan deze gegevens kunnen geen rechten worden ontleend.
====================
Alle beschikbare informatie ontvangen?
Benieuwd naar alle beschikbare informatie over het pand? Vraag dan nu, onder de grote contactbutton, de gratis objectbrochure van de Gaardenweg 3 in Ammerzoden aan en ontvang deze direct in uw mailbox. Uiteraard kunt u ook direct een geheel vrijblijvende bezichtiging met de beheerder van het pand inplannen.
Kenmerken
Overdracht
- Huurprijs
- € 65 per vierkante meter per jaar
- Aangeboden sinds
-
- Status
- Beschikbaar
- Aanvaarding
- Beschikbaar per 1-10-2026
Bouw
- Hoofdfunctie
- Bedrijfshal
- Mogelijke functie(s)
- Kantoorruimte
- Soort bouw
- Bestaande bouw
- Bouwjaar
- 2015
Oppervlakten
- Oppervlakte
- 177 m²
Indeling
- Aantal bouwlagen
- 1 bouwlaag
- Voorzieningen
- Loading docks, overheaddeuren, krachtstroom, betonvloer, heater, toilet en pantry
Energie
- Energielabel
- Niet beschikbaar
Omgeving
- Ligging
- Landelijk gebied
Parkeergelegenheid
- Parkeerplaatsen
- 25 niet-overdekte parkeerplaatsen
Foto's
Plattegrond
Begane Grond
1e Verdieping