Omschrijving
Ben je op zoek naar een unieke bedrijfsruimte op een toplocatie in Amsterdam? Dan is deze ruimte aan de Wittekade 180-182 precies wat je zoekt!
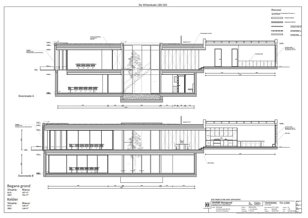
Wij bieden een hoogwaardige, turn-key kantoorruimte aan de Wittenkade. De ruimte beschikt over een patio die het souterrain voorziet van royale lichtinval en is, mede dankzij de hoogte van ruim vijf meter, ingericht met groenvoorziening. De locatie biedt een perfecte mix van rust, karakter en bereikbaarheid. Deze representatieve ruimte is verdeeld over 241 m2 v.v.o. op de begane grond en 146 m2 v.v.o. in het souterrain.
Beschikbaar vanaf: september 2026
Indeling:
Begane grond: 241 m2 – met een royale entree, open werkruimtes, vergaderruimte, een ruime lunchruimte met keuken en toegang tot een groene patio en een terras aan de achterzijde.
Souterrain: 146 m2 – verrassend licht dankzij de patio, open werkruimtes, vergaderruimte en een extra pantry.
Bijzondere kenmerken:
- Turn-key oplevering – volledig afgewerkt en direct gebruiksklaar;
- Twee ruime vergaderruimtes – ideaal voor overleg en samenwerking;
- Moderne lunchruimte – een fijne plek voor pauzes of informele overleggen;
- Groene patio – zorgt voor een natuurlijke lichtinval en een ontspannen sfeer;
- Ruime entree – een professionele ontvangst voor klanten en medewerkers;
- Privéterras van ca. 12 m2 aan de achterzijde – een fijne buitenruimte voor pauzes of informele meetings;
- Souterrain met daglicht – dankzij de patio is ook het souterrain aangenaam en goed verlicht.
Deze kantoorruimte is uitermate geschikt voor bedrijven die op zoek zijn naar een inspirerende werkomgeving in het hart van Amsterdam, met uitstekende voorzieningen en een moderne uitstraling.
Locatie & bereikbaarheid
De Wittenkade ligt in een rustige, karakteristieke buurt met uitzicht op het water, op steenworp afstand van het Westerpark en de levendige Spaarndammerbuurt. De locatie is uitstekend bereikbaar:
Met de auto via de S100 en S103
Met het openbaar vervoer (diverse tram- en buslijnen op loopafstand)
Fietsend binnen 10 minuten van Amsterdam Centraal.
Interesse? Neem contact met ons op voor een bezichtiging of meer informatie.
Bestemming: conform bestemmingsplan, gemengd-4
Opleveringsniveau:
De kantoorruimte wordt in turn-key staat opgeleverd. Het betreft een hoogwaardig afwerkingsniveau, onder andere voorzien van:
- Representatieve entree
- Gedeeltelijk houten parketvloer
- gedeeltelijk gietvloer
- Twee ruime vergaderruimtes
- Panty voorzien van inbouwapparatuur op beide verdiepingen
- Ruime lunchruimte
- Sanitaire voorzieningen op beide verdiepingen
- Groene patio
- Stucwerk en spuitplafond
- Verlichtingsarmaturen
- Privéterras
VOORWAARDEN EN CONDITIES
ROZ huurovereenkomst
Er zal gewerkt worden langs de lijnen van een standaard model kantoorruimte, zoals opgesteld door de Raad voor Onroerende Zaken (ROZ) model 2025, zoals gehanteerd door de Nederlandse Vereniging van Makelaars in onroerende goederen (NVM).
Huurtermijn
5 (vijf) jaren met een verlengingsperiode van 5 (vijf) jaren. Afwijkende huurtermijnen in overleg.
Voorschot servicekosten
Nader te bepalen
* huurder dient zelf contracten af te sluiten met de betreffende leveranciers voor de levering van gas/water/elektra en eventuele overige voorzieningen.
Zekerheidsstelling
Waarborgsom ter grootte van een bedrag gelijk aan 3 (drie) maanden huur en servicekosten, te vermeerderen met BTW, afhankelijk van de te verkrijgen kredietinformatie.
Huurprijsindexering
De huurprijs wordt jaarlijks geïndexeerd, op basis van het prijsindexcijfer volgens de consumentenprijsindex (CPI) reeks Alle Huishoudens (2015 = 100) gepubliceerd door het Centraal Bureau voor de Statistiek (CBS).
Opzegtermijn
Beëindiging van deze overeenkomst vindt plaats door opzegging tegen het einde van een huurperiode met inachtneming van een opzegtermijn van tenminste 12 maanden, waarbij verhuurder de wettelijke opzeggingsgronden in acht neemt.
BTW
Er zal geopteerd worden voor BTW belaste verhuur. Huurder dient derhalve voor meer dan 90% BTW belaste leveringen en diensten blijvend te leveren.
Administratiekosten
€ 300,- excl. btw (eenmalig bij totstandkoming van de huurovereenkomst).
DISCLAIMER
Alle gepresenteerde informatie is met de grootst mogelijke zorg samengesteld. Aan deze informatie kunnen geen rechten worden ontleend.
Dit is een project van AHAM Vastgoed. Voor vragen neem gerust contact met ons op via 020-5244322
Disclaimer: Ondanks dat deze publicatie met de grootst mogelijke zorgvuldigheid is samengesteld is de Online Bedrijfsmakelaar BV niet aansprakelijk te stellen voor onjuiste of onvolledige informatie die in deze publicatie vermeld staan. Aan deze gegevens kunnen geen rechten worden ontleend.
Wij bieden een hoogwaardige, turn-key kantoorruimte aan de Wittenkade. De ruimte beschikt over een patio die het souterrain voorziet van royale lichtinval en is, mede dankzij de hoogte van ruim vijf meter, ingericht met groenvoorziening. De locatie biedt een perfecte mix van rust, karakter en bereikbaarheid. Deze representatieve ruimte is verdeeld over 241 m2 v.v.o. op de begane grond en 146 m2 v.v.o. in het souterrain.
Beschikbaar vanaf: september 2026
Indeling:
Begane grond: 241 m2 – met een royale entree, open werkruimtes, vergaderruimte, een ruime lunchruimte met keuken en toegang tot een groene patio en een terras aan de achterzijde.
Souterrain: 146 m2 – verrassend licht dankzij de patio, open werkruimtes, vergaderruimte en een extra pantry.
Bijzondere kenmerken:
- Turn-key oplevering – volledig afgewerkt en direct gebruiksklaar;
- Twee ruime vergaderruimtes – ideaal voor overleg en samenwerking;
- Moderne lunchruimte – een fijne plek voor pauzes of informele overleggen;
- Groene patio – zorgt voor een natuurlijke lichtinval en een ontspannen sfeer;
- Ruime entree – een professionele ontvangst voor klanten en medewerkers;
- Privéterras van ca. 12 m2 aan de achterzijde – een fijne buitenruimte voor pauzes of informele meetings;
- Souterrain met daglicht – dankzij de patio is ook het souterrain aangenaam en goed verlicht.
Deze kantoorruimte is uitermate geschikt voor bedrijven die op zoek zijn naar een inspirerende werkomgeving in het hart van Amsterdam, met uitstekende voorzieningen en een moderne uitstraling.
Locatie & bereikbaarheid
De Wittenkade ligt in een rustige, karakteristieke buurt met uitzicht op het water, op steenworp afstand van het Westerpark en de levendige Spaarndammerbuurt. De locatie is uitstekend bereikbaar:
Met de auto via de S100 en S103
Met het openbaar vervoer (diverse tram- en buslijnen op loopafstand)
Fietsend binnen 10 minuten van Amsterdam Centraal.
Interesse? Neem contact met ons op voor een bezichtiging of meer informatie.
Bestemming: conform bestemmingsplan, gemengd-4
Opleveringsniveau:
De kantoorruimte wordt in turn-key staat opgeleverd. Het betreft een hoogwaardig afwerkingsniveau, onder andere voorzien van:
- Representatieve entree
- Gedeeltelijk houten parketvloer
- gedeeltelijk gietvloer
- Twee ruime vergaderruimtes
- Panty voorzien van inbouwapparatuur op beide verdiepingen
- Ruime lunchruimte
- Sanitaire voorzieningen op beide verdiepingen
- Groene patio
- Stucwerk en spuitplafond
- Verlichtingsarmaturen
- Privéterras
VOORWAARDEN EN CONDITIES
ROZ huurovereenkomst
Er zal gewerkt worden langs de lijnen van een standaard model kantoorruimte, zoals opgesteld door de Raad voor Onroerende Zaken (ROZ) model 2025, zoals gehanteerd door de Nederlandse Vereniging van Makelaars in onroerende goederen (NVM).
Huurtermijn
5 (vijf) jaren met een verlengingsperiode van 5 (vijf) jaren. Afwijkende huurtermijnen in overleg.
Voorschot servicekosten
Nader te bepalen
* huurder dient zelf contracten af te sluiten met de betreffende leveranciers voor de levering van gas/water/elektra en eventuele overige voorzieningen.
Zekerheidsstelling
Waarborgsom ter grootte van een bedrag gelijk aan 3 (drie) maanden huur en servicekosten, te vermeerderen met BTW, afhankelijk van de te verkrijgen kredietinformatie.
Huurprijsindexering
De huurprijs wordt jaarlijks geïndexeerd, op basis van het prijsindexcijfer volgens de consumentenprijsindex (CPI) reeks Alle Huishoudens (2015 = 100) gepubliceerd door het Centraal Bureau voor de Statistiek (CBS).
Opzegtermijn
Beëindiging van deze overeenkomst vindt plaats door opzegging tegen het einde van een huurperiode met inachtneming van een opzegtermijn van tenminste 12 maanden, waarbij verhuurder de wettelijke opzeggingsgronden in acht neemt.
BTW
Er zal geopteerd worden voor BTW belaste verhuur. Huurder dient derhalve voor meer dan 90% BTW belaste leveringen en diensten blijvend te leveren.
Administratiekosten
€ 300,- excl. btw (eenmalig bij totstandkoming van de huurovereenkomst).
DISCLAIMER
Alle gepresenteerde informatie is met de grootst mogelijke zorg samengesteld. Aan deze informatie kunnen geen rechten worden ontleend.
Dit is een project van AHAM Vastgoed. Voor vragen neem gerust contact met ons op via 020-5244322
Disclaimer: Ondanks dat deze publicatie met de grootst mogelijke zorgvuldigheid is samengesteld is de Online Bedrijfsmakelaar BV niet aansprakelijk te stellen voor onjuiste of onvolledige informatie die in deze publicatie vermeld staan. Aan deze gegevens kunnen geen rechten worden ontleend.
Kaart
Kaart laden...
Kadastrale grens
Bebouwing
Reistijd
Krijg inzicht in de bereikbaarheid van dit object vanuit bijvoorbeeld een openbaar vervoer station of vanuit een adres.