€ 1.215 /mnd
Onderdeel van
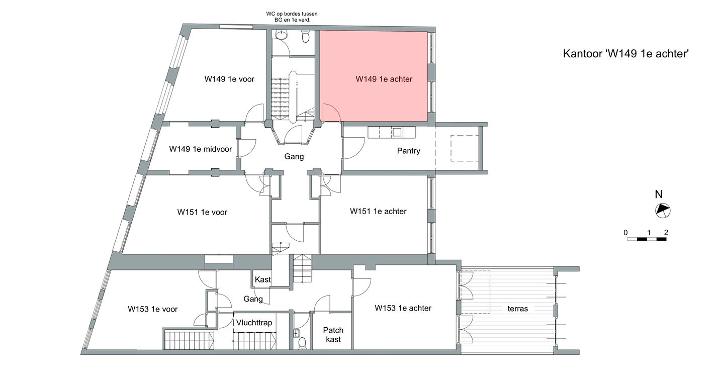
Warmoesstraat 149, 151, 155, Amsterdam
Omschrijving
W149 1e achter
Een gloednieuwe en lichte kamer op de 1e verdieping van dit voormalige hoofdkantoor van drukkerij Ellerman & Harms. Ideaal voor startende ondernemers en met een gezamenlijke vergaderruimte op dezelfde verdieping.
Er zijn talloze mogelijkheden in overleg. We zijn flexibel en denken graag met je mee!
In alle ruimtes is het mogelijk om waterpunten te installeren.
Metrages (BVO)
28 m² kantoorruimte
Huurcondities:
Huurprijs: € 1215,- excl. BTW
Servicekosten: €135,- excl. BTW per maand
Aanvaarding: per 15-09-2025
Opzegtermijn: een kalenderkwartaal
Zekerheidstelling: €4.050,-
FACILITEITEN
- In de servicekosten inbegrepen: verwarming, elektriciteit, water, internet, vergaderruimte, klein onderhoud, sleutels, gemeentelijke belastingen
- Systeembeheer: door SCC Business Systems B.V.
- Meubilair (optioneel): standaard tafel (150x75 cm) € 5,- per maand excl. BTW; zwarte bureaustoel € 10,- per maand excl. BTW
- Gratis gebruik van vergaderruimte: gedeeld met andere gebruikers
- Internet: eigen VLAN-netwerk per kantoorruimte via Ziggo Professional (1000/100 Mbps)
- Pantry met vaatwasser en koelkast: gedeeld met andere gebruikers
- Toiletten: gedeeld met andere gebruikers
- Schoonmaak: dagelijkse schoonmaak van toiletten en pantry
Meer informatie?
Voor meer informatie omtrent de mogelijkheden en de voorwaarden kunt u contact opnemen met Downtown Offices. Ga daarvoor naar dtoff.com.
Online Bedrijfsmakelaar BV is niet aansprakelijk te stellen voor onjuiste of onvolledige informatie die in deze publicatie vermeld staan. Aan deze gegevens kunnen geen rechten worden ontleend.
Ondanks dat deze publicatie met de grootst mogelijke zorgvuldigheid is samengesteld is de Online Bedrijfsmakelaar BV niet aansprakelijk te stellen voor onjuiste of onvolledige informatie die in deze publicatie vermeld staan. Aan deze gegevens kunnen geen rechten worden ontleend.
Een gloednieuwe en lichte kamer op de 1e verdieping van dit voormalige hoofdkantoor van drukkerij Ellerman & Harms. Ideaal voor startende ondernemers en met een gezamenlijke vergaderruimte op dezelfde verdieping.
Er zijn talloze mogelijkheden in overleg. We zijn flexibel en denken graag met je mee!
In alle ruimtes is het mogelijk om waterpunten te installeren.
Metrages (BVO)
28 m² kantoorruimte
Huurcondities:
Huurprijs: € 1215,- excl. BTW
Servicekosten: €135,- excl. BTW per maand
Aanvaarding: per 15-09-2025
Opzegtermijn: een kalenderkwartaal
Zekerheidstelling: €4.050,-
FACILITEITEN
- In de servicekosten inbegrepen: verwarming, elektriciteit, water, internet, vergaderruimte, klein onderhoud, sleutels, gemeentelijke belastingen
- Systeembeheer: door SCC Business Systems B.V.
- Meubilair (optioneel): standaard tafel (150x75 cm) € 5,- per maand excl. BTW; zwarte bureaustoel € 10,- per maand excl. BTW
- Gratis gebruik van vergaderruimte: gedeeld met andere gebruikers
- Internet: eigen VLAN-netwerk per kantoorruimte via Ziggo Professional (1000/100 Mbps)
- Pantry met vaatwasser en koelkast: gedeeld met andere gebruikers
- Toiletten: gedeeld met andere gebruikers
- Schoonmaak: dagelijkse schoonmaak van toiletten en pantry
Meer informatie?
Voor meer informatie omtrent de mogelijkheden en de voorwaarden kunt u contact opnemen met Downtown Offices. Ga daarvoor naar dtoff.com.
Online Bedrijfsmakelaar BV is niet aansprakelijk te stellen voor onjuiste of onvolledige informatie die in deze publicatie vermeld staan. Aan deze gegevens kunnen geen rechten worden ontleend.
Ondanks dat deze publicatie met de grootst mogelijke zorgvuldigheid is samengesteld is de Online Bedrijfsmakelaar BV niet aansprakelijk te stellen voor onjuiste of onvolledige informatie die in deze publicatie vermeld staan. Aan deze gegevens kunnen geen rechten worden ontleend.
Kaart
Kaart laden...
Kadastrale grens
Bebouwing
Reistijd
Krijg inzicht in de bereikbaarheid van dit object vanuit bijvoorbeeld een openbaar vervoer station of vanuit een adres.