Omschrijving
RUSTENBURGERSTRAAT 344
1072 HD AMSTERDAM
Mooie bedrijfsruimte beschikbaar per 1 januari 2026 te midden van de levendige Pijp!
OBJECTOMSCHRIJVING
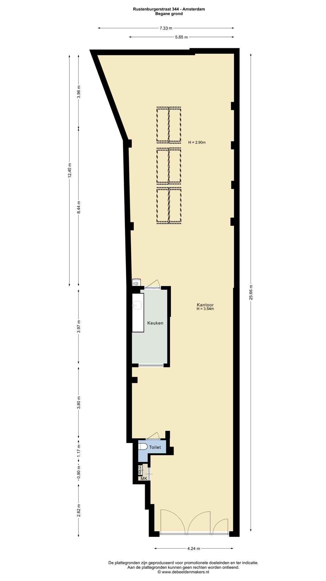
Het object heeft dubbele deuren en is geschikt voor laden en lossen (breed genoeg voor busjes). Tevens staan er voor het object paaltjes zodat er altijd in en uit gereden kan worden.
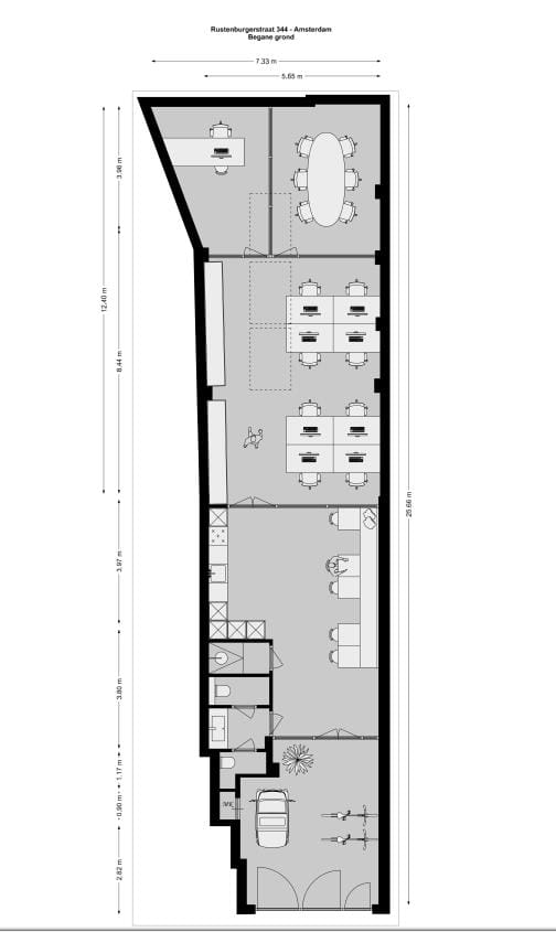
De ruimte is uitstekend bruikbaar voor opslag met kantoor en distributie.
Het object beschikt over een pantry, toilet en lichtkoepels aan de achterzijde.
Goede bereikbaarheid met het openbaar vervoer: metrohalte De Pijp (Noord-/Zuidlijn) bevindt zich om de hoek, daarnaast zijn er diverse tramhaltes (lijnen 1, 3, 12, 24) in de buurt
HUURPRIJS
€34.000 per jaar.
Verhuur in huidige staat is tevens mogelijk.
OPPERVLAKTE
139 m² vvo
BESTEMMING
Volgens het vigerende bestemmingsplan De Pijp 2018 'Gemengd-1. De ruimte is daarmee onder meer geschikt om te worden gebruikt ten behoeve van:
- Detailhandel;
- Dienstverlening;
- Bedrijf;
- Ambachtelijk bedrijf;
- Kantoor;
- Parkeergarage (!)
- Ondersteunende horeca, uitsluitend binnen detailhandel, dienstverlening en bedrijf.
OPLEVERING
1 januari 2026
OPLEVERINGNIVEAU
Het object wordt casco opgeleverd.
HUURBETALING
Per maand vooruit.
HUURCONDITIES
Huurprijzen zijn exclusief servicekosten en te vermeerderen met BTW. De huurprijs zal jaarlijks worden geïndexeerd op basis van het CBS consumenten prijsindex (CPI) Alle Huishoudens (2015 = 100).
OPZEGTERMIJN
Opzegtermijn van één jaar.
HUUROVEREENKOMST
Huurovereenkomst op basis van het standaardmodel van de Raad voor Onroerende Zaken (ROZ), zoals gehanteerd door de NVM in onroerend goed, aangevuld met specifieke verhuurvoorwaarden.
OMZETBELASTING
De huur wordt verhoogd met omzetbelasting naar het geldend tarief. Voor huurders die deze omzetbelasting niet kunnen verrekenen kan de omzetbelasting achterwege blijven. In dat geval wordt een opslag op de huurprijs berekend.
GARANTSTELLING
Een minimale bankgarantie/waarborgsom met een grootte van een drietal maandverplichtingen, inclusief btw en servicekosten. De daadwerkelijke omvang is o.a. afhankelijk van de uitkomst van een kredietwaardigheid onderzoek.
HUURPRIJSINDEXERING
Jaarlijks wordt de laatst geldende huurprijs verhoogd op basis van het maandprijsindexcijfer volgens de consumentenprijsindex (CPI) reeks alle huishoudens (2015=100), gepubliceerd door het Centraal Bureau voor de Statistiek (CBS).
UITDRUKKELIJKE VOORBEHODEN TOTSTANDKOMING OVEREENKOMST
Alle mondelinge en schriftelijke correspondentie is geheel vrijblijvend. Een overeenkomst inzake het aangeboden object komt pas tot stand nadat een daartoe strekkende overeenkomst door beide partijen is geparafeerd en ondertekend. Voorafgaand hieraan is nimmer sprake van enige overeenstemming waaraan rechten en/of plichten zouden kunnen worden ontleend. Daarnaast geldt te allen tijde het voorbehoud van instemming van de eigena(a)r(en) van het object voor de totstandkoming van een overeenkomst.
1072 HD AMSTERDAM
Mooie bedrijfsruimte beschikbaar per 1 januari 2026 te midden van de levendige Pijp!
OBJECTOMSCHRIJVING
Het object heeft dubbele deuren en is geschikt voor laden en lossen (breed genoeg voor busjes). Tevens staan er voor het object paaltjes zodat er altijd in en uit gereden kan worden.
De ruimte is uitstekend bruikbaar voor opslag met kantoor en distributie.
Het object beschikt over een pantry, toilet en lichtkoepels aan de achterzijde.
Goede bereikbaarheid met het openbaar vervoer: metrohalte De Pijp (Noord-/Zuidlijn) bevindt zich om de hoek, daarnaast zijn er diverse tramhaltes (lijnen 1, 3, 12, 24) in de buurt
HUURPRIJS
€34.000 per jaar.
Verhuur in huidige staat is tevens mogelijk.
OPPERVLAKTE
139 m² vvo
BESTEMMING
Volgens het vigerende bestemmingsplan De Pijp 2018 'Gemengd-1. De ruimte is daarmee onder meer geschikt om te worden gebruikt ten behoeve van:
- Detailhandel;
- Dienstverlening;
- Bedrijf;
- Ambachtelijk bedrijf;
- Kantoor;
- Parkeergarage (!)
- Ondersteunende horeca, uitsluitend binnen detailhandel, dienstverlening en bedrijf.
OPLEVERING
1 januari 2026
OPLEVERINGNIVEAU
Het object wordt casco opgeleverd.
HUURBETALING
Per maand vooruit.
HUURCONDITIES
Huurprijzen zijn exclusief servicekosten en te vermeerderen met BTW. De huurprijs zal jaarlijks worden geïndexeerd op basis van het CBS consumenten prijsindex (CPI) Alle Huishoudens (2015 = 100).
OPZEGTERMIJN
Opzegtermijn van één jaar.
HUUROVEREENKOMST
Huurovereenkomst op basis van het standaardmodel van de Raad voor Onroerende Zaken (ROZ), zoals gehanteerd door de NVM in onroerend goed, aangevuld met specifieke verhuurvoorwaarden.
OMZETBELASTING
De huur wordt verhoogd met omzetbelasting naar het geldend tarief. Voor huurders die deze omzetbelasting niet kunnen verrekenen kan de omzetbelasting achterwege blijven. In dat geval wordt een opslag op de huurprijs berekend.
GARANTSTELLING
Een minimale bankgarantie/waarborgsom met een grootte van een drietal maandverplichtingen, inclusief btw en servicekosten. De daadwerkelijke omvang is o.a. afhankelijk van de uitkomst van een kredietwaardigheid onderzoek.
HUURPRIJSINDEXERING
Jaarlijks wordt de laatst geldende huurprijs verhoogd op basis van het maandprijsindexcijfer volgens de consumentenprijsindex (CPI) reeks alle huishoudens (2015=100), gepubliceerd door het Centraal Bureau voor de Statistiek (CBS).
UITDRUKKELIJKE VOORBEHODEN TOTSTANDKOMING OVEREENKOMST
Alle mondelinge en schriftelijke correspondentie is geheel vrijblijvend. Een overeenkomst inzake het aangeboden object komt pas tot stand nadat een daartoe strekkende overeenkomst door beide partijen is geparafeerd en ondertekend. Voorafgaand hieraan is nimmer sprake van enige overeenstemming waaraan rechten en/of plichten zouden kunnen worden ontleend. Daarnaast geldt te allen tijde het voorbehoud van instemming van de eigena(a)r(en) van het object voor de totstandkoming van een overeenkomst.
Kaart
Kaart laden...
Kadastrale grens
Bebouwing
Reistijd
Krijg inzicht in de bereikbaarheid van dit object vanuit bijvoorbeeld een openbaar vervoer station of vanuit een adres.