Omschrijving
Object: Het object is een zelfstandig herenhuis met eigen entree gelegen op zeer goede stand aan de Vondelstraat bestaande een begane grond, 3 verdiepingen en een sou. Direct om de hoek op de 2e Constantijn Huygenstraat bevindt zich een garage met oprit waar circa 4 auto’s kunnen worden geparkeerd op eigen terrein. Vanuit de oprit is het object tevens te betreden.
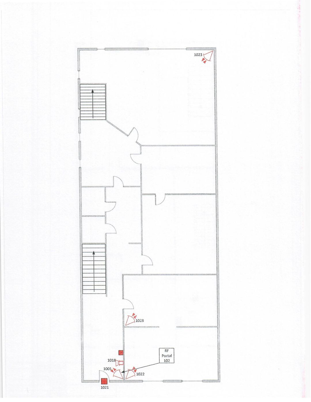
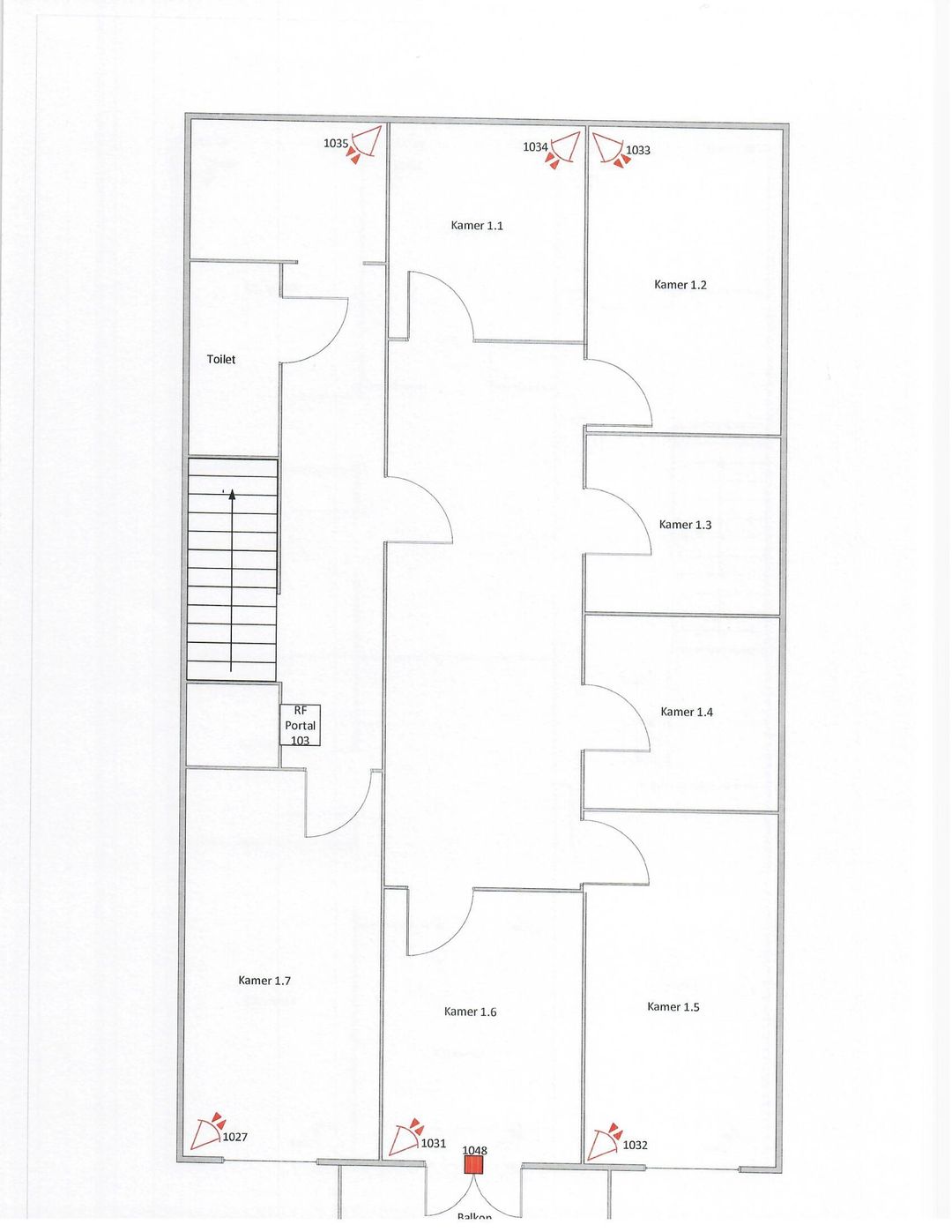
Voor de verhuur is totaal circa 524 m² kantoorruimte beschikbaar.
Ligging en voorzieningen: Het object is gelegen in Amsterdam West, direct naast de Vondelkerk en een ingang naar het Vondelpark. Het voormalige filmmuseum, de PC Hooftstraat, de Overtoom en het Leidseplein zijn op een steenworp afstand gelegen. In de directe omgeving bevinden zich voorts zeer veel buurtverzorgende faciliteiten zoals winkels, bars, lunchgelegenheden, restaurants en bedrijven.
Het gebouw is goed bereikbaar met de auto én openbaar vervoer d.m.v. diverse tram -en busverbindingen.
Parkeerplaatsen: Circa 4 parkeerplaatsen op eigen terrein, voorts betaald parkeren in de openbare ruimte.
Vloeroppervlakte: Het totale metrage bedraagt circa 524 m² kantoorruimte, onderverdeeld in;
- Circa 137 m² gelegen op de sou verdieping;
- Circa 137 m² gelegen op de begane grond;
- Circa 85 m² gelegen op de 1e verdieping.
- Circa 85 m² gelegen op de 2e verdieping;
- Circa 80 m² gelegen op de 3e verdieping.
Huurprijs: € 165.000,-- per jaar te vermeerderen met BTW. Deze prijs is inclusief de parkeerfaciliteit.
Servicekosten: Huurder is zelf verantwoordelijk voor de aansluitingen en betalingen bij de diverse nutleveranciers.
Huurbetaling: Per kwartaal vooruit.
Zekerheidstelling: Een bankgarantie ter grootte van 3 maanden huur inclusief servicekosten, te vermeerderen met de wettelijk verschuldigde omzetbelasting.
Huurperiode: 5 jaar.
Huurcontract: Huurovereenkomst kantoorruimte en andere bedrijfsruimte niet ex artikel art. 7:230a BW volgens het model door de Raad voor Onroerende Zaken in maart 2025 vastgesteld met verhuurders aanvullingen/wijzigingen.
Huuropzegtermijn: 12 maanden.
Huurprijsaanpassing: Jaarlijks, op basis van het Consumenten Prijsindexcijfer (CPI), reeks Alle Huishoudens (2006=100); voor het eerst één jaar na de huuringangsdatum.
Opleveringsdatum: In overleg, kan snel.
Opleveringsniveau: De kantoorruimte wordt in huidige staat geleverd en onder andere voorzien van:
- Diverse pantry’s;
- Alarmsysteem;
- Parketvloer;
- Energielabel A;
- Video intercom op iedere verdieping’;
- Diverse wc groepen;
- Verlichtingsarmaturen;
Informatie:
Renato Grimaldi
Mob; 06- 21 21 67 11
E-mail:
Voor de verhuur is totaal circa 524 m² kantoorruimte beschikbaar.
Ligging en voorzieningen: Het object is gelegen in Amsterdam West, direct naast de Vondelkerk en een ingang naar het Vondelpark. Het voormalige filmmuseum, de PC Hooftstraat, de Overtoom en het Leidseplein zijn op een steenworp afstand gelegen. In de directe omgeving bevinden zich voorts zeer veel buurtverzorgende faciliteiten zoals winkels, bars, lunchgelegenheden, restaurants en bedrijven.
Het gebouw is goed bereikbaar met de auto én openbaar vervoer d.m.v. diverse tram -en busverbindingen.
Parkeerplaatsen: Circa 4 parkeerplaatsen op eigen terrein, voorts betaald parkeren in de openbare ruimte.
Vloeroppervlakte: Het totale metrage bedraagt circa 524 m² kantoorruimte, onderverdeeld in;
- Circa 137 m² gelegen op de sou verdieping;
- Circa 137 m² gelegen op de begane grond;
- Circa 85 m² gelegen op de 1e verdieping.
- Circa 85 m² gelegen op de 2e verdieping;
- Circa 80 m² gelegen op de 3e verdieping.
Huurprijs: € 165.000,-- per jaar te vermeerderen met BTW. Deze prijs is inclusief de parkeerfaciliteit.
Servicekosten: Huurder is zelf verantwoordelijk voor de aansluitingen en betalingen bij de diverse nutleveranciers.
Huurbetaling: Per kwartaal vooruit.
Zekerheidstelling: Een bankgarantie ter grootte van 3 maanden huur inclusief servicekosten, te vermeerderen met de wettelijk verschuldigde omzetbelasting.
Huurperiode: 5 jaar.
Huurcontract: Huurovereenkomst kantoorruimte en andere bedrijfsruimte niet ex artikel art. 7:230a BW volgens het model door de Raad voor Onroerende Zaken in maart 2025 vastgesteld met verhuurders aanvullingen/wijzigingen.
Huuropzegtermijn: 12 maanden.
Huurprijsaanpassing: Jaarlijks, op basis van het Consumenten Prijsindexcijfer (CPI), reeks Alle Huishoudens (2006=100); voor het eerst één jaar na de huuringangsdatum.
Opleveringsdatum: In overleg, kan snel.
Opleveringsniveau: De kantoorruimte wordt in huidige staat geleverd en onder andere voorzien van:
- Diverse pantry’s;
- Alarmsysteem;
- Parketvloer;
- Energielabel A;
- Video intercom op iedere verdieping’;
- Diverse wc groepen;
- Verlichtingsarmaturen;
Informatie:
Renato Grimaldi
Mob; 06- 21 21 67 11
E-mail:
Kaart
Kaart laden...
Kadastrale grens
Bebouwing
Reistijd
Krijg inzicht in de bereikbaarheid van dit object vanuit bijvoorbeeld een openbaar vervoer station of vanuit een adres.